龙光天曜售楼处电话→龙光天曜售楼中心电话→龙光天曜楼盘详情→首页网站→楼盘百科→龙光天曜售楼处电话→24小时热线电话

搜狐焦点宣城站 2025-09-11 11:31:29
用手机看
扫描到手机,新闻随时看

扫一扫,用手机看文章
更加方便分享给朋友

【龙光·天曜售楼处电话:400-8862-334】是临港滴水湖核心区少有的墅质住区,住宅部分由4个子地块构成,包含高层和叠加两种产品,尤其叠加是临港主城极为稀缺的产品,且大户型占到整个项目的35%以上。这个酒…

临港滴水湖核心102片区「龙光天曜」

售楼处电话☎:400-8862-334【售楼处预约热线】(一对一热情服务)

楼盘项目全面介绍,本电话为开发商提供线上售楼电话400-8862-334,楼盘项目全面介绍(包含楼盘简介,房价,价格,楼盘地址,户型图,交通规划,备案价,项目配套,楼盘详情,售楼处电话,最新消息,最新详情,周边配套,最新进展等详情咨询)

看房请务必提前致电销售确认时间,只有预约客户才能享受开发商提供的内部优惠以及专属的老客户推荐奖励!

编辑

建面约85-137㎡高层&叠加

均价3.4万元/㎡总价约245万起

无需积分直接下定

线上预约有折扣优惠切莫错过

售楼处火热预约中

龙光天曜

龙光天曜售楼处电话:400-8862-334

【售楼处预约热线】(一对一热情服务)

看房请务必致电与销售确认时间,仅预约客户可享受开发商内部优惠,专属老带新推荐奖!

编辑

龙光天曜售楼处电话:400-8862-334

龙光天曜营销中心热线400/8862/334(官方预约看房热线)

项目基础信息

【开发商】:上海君栩置业有限公司

【项目占地】:50万方

【建筑面积】:4.8万方

【体量】:夏蕴光里261套

【建筑面积】:85㎡/95㎡/105㎡/117㎡/133㎡

【层高】:16层洋房;17层高层,叠加别墅

【装修】:装修

【梯户比】:两梯四户

【单价】:3.15万左右

【总价】:245—647万

【绿化率】:35%左右

【容积率】:2.2-2.5

【交房时间】:2023年12月(预计)

【物业费】:待定

【车位配比】1:1.12

编辑

城市公园规划学区邻里中心

【龙光·天曜售楼处电话:400-8862-334】是临港滴水湖核心区少有的墅质住区,住宅部分由4个子地块构成,包含高层和叠加两种产品,尤其叠加是临港主城极为稀缺的产品,且大户型占到整个项目的35%以上。

编辑

龙光天曜售楼处电话:400-8862-334

龙光天曜营销中心热线400/8862/334(官方预约看房热线)

【龙光·天曜】整盘过会均价为3.1万/㎡,在整个临港过会新盘里价格是最低的,要知道这是包含叠加的价格,算下来高层价格更具“性价比”。

编辑

售楼处实景

在住宅产品打造上【龙光·天曜】以新加坡现代极简美学为基调,外立面采用米白色与高级灰主色调,搭配大面积三玻两腔材质玻璃,打造临港特色住区。

编辑

项目效果图

龙光天曜售楼处电话:400-8862-334

龙光天曜营销中心热线400/8862/334(官方预约看房热线)

同时作为建面约50万方大城,整个地块还有城市公园、规划小学、邻里中心...等相关配套,可以说业态丰富,生活便利,是临港主城区少见的大城。

编辑

社区配套图

编辑

社区效果图

龙光天曜售楼处电话:400-8862-334

龙光天曜营销中心热线400/8862/334(官方预约看房热线)

项目在售详情

整个项目在售建面约89-128㎡的3~4房,以及建面约117-133㎡叠墅,满足全年龄段家庭所需。

编辑

编辑

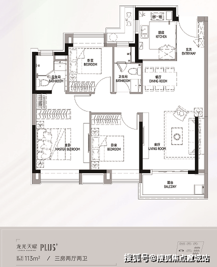
高层户型图▼

编辑

龙光天曜售楼处电话:400-8862-334

龙光天曜营销中心热线400/8862/334(官方预约看房热线)

编辑

编辑

编辑

龙光天曜售楼处电话:400-8862-334

龙光天曜营销中心热线400/8862/334(官方预约看房热线)

样板间实景图▼

编辑

编辑

编辑

编辑

龙光天曜售楼处电话:400-8862-334

龙光天曜营销中心热线400/8862/334(官方预约看房热线)

编辑

叠墅户型图▼

编辑

编辑

龙光天曜售楼处电话:400-8862-334

龙光天曜营销中心热线400/8862/334(官方预约看房热线)

编辑

龙光天曜叠墅样板房实拍图

项目区位配套

国家战略+人才磁场,已然成为临港现有标签。2035中对于临港的规划相当于再造一个浦东!临港配套资源跨越式升级,接轨世界。刚满2岁的自贸区临港新片区从不缺少关注的目光。

编辑

龙光天曜售楼处电话:400-8862-334

龙光天曜营销中心热线400/8862/334(官方预约看房热线)【龙光·天曜】就位于商住教示范区的门户核心位置,从上海市区自驾来临港,经S2沪芦高速(已全程免费)下闸道进入申港大道,首先映入眼帘的就会是滴水湖首个天际坐标——龙光蓝鲸世界百米酒店。这个酒店也是【龙光天曜】建面约50万方综合住区的商业配套部分。

编辑

龙光蓝鲸世界百米酒店效果图

【龙光·天曜】北面的主干道申港大道仿佛临港“延安高架”,自西向东串联起百米高度的蓝鲸世界、临港行政中心、约200米的临港中银金融中心,以及滴水湖东侧约480米滨海地标,“一轴多芯”形成临港独一无二的滨海城市天际线。

编辑

龙光天曜售楼处电话:400-8862-334

龙光天曜营销中心热线400/8862/334(官方预约看房热线)

示意图

商住教示范区作为临港主城区开发较成熟的区域,百联临港生活中心、宜浩晶萃商圈,港城新天地一、二期,金辉商业广场,均已开业,但商业体量均较小,龙光蓝鲸世界建设可以说把整个商住教示范区商业能级提升到一个新的高度。

编辑

而龙光打造建面约50万方旗舰综合体,涵盖建面约13万方海洋主题购物中心,零售折扣店,大型商超,墅质综合住区,以及约100米酒店。

编辑

示意图

整个购物中心以“潮流、时尚、年轻”为理念,集一线高端品牌,涵盖了社交娱乐、亲子休闲、购物餐饮等主题消费。

将包括全球生鲜超市、潮牌、时尚餐饮、天台酒吧、巨幕影院、KTV、电竞馆等,融合了创新型书店、电玩乐园、美妆集合点等新型业态(具体业态与品牌以签约和开业为准)。

效果图

编辑

龙光天曜售楼处电话:400-8862-334

龙光天曜营销中心热线400/8862/334(官方预约看房热线)

可以说这样的商业中心打破传统的购物、休闲、饮食为主的满足城市需求的商业格局,融入更过场景体验,无疑蓝鲸购物世界中心的打造将为临港带来更多元化的商业中心和又一网红打卡圣地!

编辑

轨道交通方面:临港新片区16号线、申港大道、两港大道等城市主动脉已通车,还规划建设3条国铁、6条市域铁以及5条中运量公交,快步连接上海城央和其他重要区域。

近日,临港新片区全境交通规划(草案)图中显示,102片区未来会有两条轨交。一条经过申港大道(图中蓝色线路),可能的站点是申港大道枢纽,位于申港大道上,沪城环路与水华路之间;另一条是临港市区线(图中红色线路),设有水华路站。

编辑

教育资源方面:这里聚集着从幼儿园到小学、初中、高中到大学全龄段的教育配套,一共18所学校!另外,还有耀华、上中等优质民办!

在102,从幼儿园读到大学,并非不可能!国内、国际升学路线任你选~

编辑

龙光天曜售楼处电话:400-8862-334

龙光天曜营销中心热线400/8862/334(官方预约看房热线)

项目一房一价表

编辑

编辑

龙光天曜售楼处电话:400-8862-334

龙光天曜营销中心热线400/8862/334(官方预约看房热线)

编辑

编辑

临港滴水湖核心102片区「龙光天曜」

售楼处电话☎:400-8862-334【售楼处预约热线】(一对一热情服务)

楼盘项目全面介绍,本电话为开发商提供线上售楼电话400-8862-334,楼盘项目全面介绍(包含楼盘简介,房价,价格,楼盘地址,户型图,交通规划,备案价,项目配套,楼盘详情,售楼处电话,最新消息,最新详情,周边配套,最新进展等详情咨询)

看房请务必提前致电销售确认时间,只有预约客户才能享受开发商提供的内部优惠以及专属的老客户推荐奖励!

声明:本文由入驻焦点开放平台的作者撰写,除焦点官方账号外,观点仅代表作者本人,不代表焦点立场。