中冶锦绣公馆(2025年杭州西湖区中冶锦绣公馆)首页网站-中冶锦绣公馆楼盘详情-户型配套
扫描到手机,新闻随时看
扫一扫,用手机看文章
更加方便分享给朋友
中冶锦绣公馆:西湖三公里文教豪宅区!臻藏宽景大宅著写繁盛杭城!5.3米层高跃墅118-270㎡即买即住!
══杭州西湖区「中冶锦绣公馆」══
中冶锦绣公馆售楼处电话:400-8778-334
售楼部官方电话|地址位置:400-8778-334【售楼中心官网已认证√√】
温馨提示:如有问题欢迎来电咨询➨提前预约开发商销售一对一热情讲解楼盘详情【享】内部专属房源限时优惠折扣!
中冶锦绣公馆售楼处电话:400-8778-334
楼盘基本信息
开发商:杭州中冶名锦房地产开发有限公司(中冶置业集团)
备案名:中冶·锦绣公馆
位置:杭州市西湖区教工路与文一路交叉口往北约100米处(文教板块核心区)
产权性质:40年商业产权(类住宅,通燃气)
总户数:110-136户(不同来源数据差异)
主力户型:118㎡(三居)、236-273㎡(四居/跃层)
层高:4.79米(标准层)、5.3米(LOFT)
交付标准:精装(含空调、新风、厨房家电,无地暖)
物业费:7.6元/㎡/月(含能耗)
车位配比:1:1.4(子母车位80万/个)
容积率:2.3-3.0(不同来源数据差异)
绿化率:30%
交付时间:2022年底(现房销售)
中冶锦绣公馆售楼处电话:400-8778-334
售楼处信息
主售楼处:
地址:西湖区教工路与文一路交叉口往北约100米处(费尔曼酒店旁)
电话:中冶锦绣公馆售楼处电话:400-8778-334(官方热线)
临时展厅:
西湖区文一路与学院路交叉口(近地铁2号线学院路站)
核心配套
交通:
地铁:10号线翠柏路站(300米)、2号线学院路站(1.3公里)
自驾:文一路、教工路、莫干山路快速路
商业:
城西银泰、黄龙万科中心、大悦城(10分钟车程)
教育:
行知小学、文一街小学、学军中学(学区未最终划定)
医疗:
浙江省立同德医院、浙一医院(6公里内)
中冶锦绣公馆售楼处电话:400-8778-334
项目亮点
设计团队:宋式美学+华尔道夫酒店风格,外立面采用香槟金铝板与玻璃幕墙1
8
现房优势:2022年已交付,外立面及园林实景可见3
9
稀缺性:西湖文教板块唯一在售类住宅现房,通燃气1
中冶锦绣公馆售楼处电话:400-8778-334
注意事项
产权限制:40年商业产权,水电按商业标准收费(0.9元/度)3
价格参考:2025年7月均价约6万元/㎡(总价700万-2000万)3
12
学区风险:现房但学区未最终确定,需以教育局公示为准
中冶锦绣公馆售楼处电话:400-8778-334
中冶锦绣公馆售楼处电话:400-8778-334
一场交付,一次美好兑现
寄托家人的期盼愿景
中冶·锦绣公馆如约而至
为业主呈上一份满意答卷
手握幸福钥匙,拉开理想生活序幕
精美的归家造景,层次丰富雅致出落。最为显眼的“欢迎回家”,更是让人心生澎湃。一直以来,交付都是决定项目品质与口碑的重要一环。从房屋质量的呈现,到专业水准的展现,以及细致入微的物业服务,环环相扣,精准配合,方能成就一次满意的交付。

中冶锦绣公馆售楼处电话:400-8778-334
作为中冶置业落子杭州的高端现房项目,中冶·锦绣公馆的建筑立面、围合住区、空间营造等每一处细节,都倾注了万分努力,无不彰显眼见即所享的豪宅感。注入宋式美学设计理念,以华尔道夫酒店为灵感来源,选用阿鲁克邦香槟金色铝板,营造出地标级的奢华感。入户电梯奢配七大件原装进口的日立电梯,室内配置旭格系统门窗以及国际一线的厨电卫浴品牌。


中冶锦绣公馆售楼处电话:400-8778-334
中冶·锦绣公馆以匠心致初心,实现完美交付。
恭喜各位业主们,美好生活由此扬帆起航。
中冶锦绣公馆诚邀日清、朗道、HWCD三家“大师团队”,分别担纲建筑、景观及室内设计。项目以宋式美学为设计理念,以华尔道夫酒店为设计原型,开辟杭州现代典雅建筑风格之浪潮,打造立于杭州文教之上的奢侈艺术品。
中冶锦绣公馆售楼处电话:400-8778-334
中冶锦绣公馆规划5幢高层住宅、3幢loft公寓、1幢服务式公寓及高端精品商业街。总户数294户,其中,包含住宅158户以及公寓136户,从去年年中,项目就传出来开盘消息,结果大半年过去了,依旧在“鸽”。
迟迟不开还是价格导致的,中冶锦绣公馆定位顶级精装豪宅,仅石材干挂+金属的栏杆的围墙和大门就号称花了1个多亿,受限价影响,高成本的科技系统虽然被取消了,但锦绣公馆砸进去的成本并不少,品质也绝对够硬!
公建化外立面使阳台做到了全封闭,不仅为业主省去了包阳台的麻烦,提升楼盘整体颜值,而且还是算一半面积,对购房者来说是件好事。室外公共区域的规范也有调整,比如风雨连廊。
中冶锦绣公馆售楼处电话:400-8778-334
楼盘里常见的风雨连廊属于有永久性顶盖,按新规定,双柱围合,计全面积,单柱算半面积,这将直接减少开发商的利润。可以预见的是,未来有风雨连廊的新盘将越来越少。户型和园区的退化在这两年的楼市越来越常见,归根结底还是以前的政策相对宽松,监管没有现在这么严格。
风雨连廊示意图
中冶锦绣公馆售楼处电话:400-8778-334
公寓拥有属于自己的大门、围合园林,人车分流管理。并且小区入口还有保安值守,需刷卡进入,能够更好的保障业主隐私,以及小区人员的纯粹性。且由于是围合式布局,园林因此拥有更大的景观面。在园区内部配套方面,可以享用住宅区域的地下会所、恒温泳池、健身房等,属于市面上的高端序列,符合城西精英的气质。
中冶锦绣公馆售楼处电话:400-8778-334
本次交付的是155㎡和118㎡的跃墅户型。步入155㎡精装户型,“270°广角采光真是喜欢,当初选这个户型就是看中这个采光,视野真当好!”业主感叹道。客餐厅约4.79米挑空,通透明亮,广揽城市盛景,甚有风范。

中冶锦绣公馆售楼处电话:400-8778-334
独立入户玄关为家人预留充足收纳空间。“楼梯下面的这个储藏间,刚好可以收纳一些清洁用具,很实用。”一楼南向双卧,二楼南北均是套房设计,无论长辈或孩童皆有所享,舒适感充盈着每个人的心房。令人欣喜的是,交付当晚就有业主拎包入住。这正是检验现房“即买即住、交付即入住”的标准!

中冶锦绣公馆售楼处电话:400-8778-334
在中冶·锦绣公馆,生活被赋予更多可能性,个人与家庭并不割裂,幸福也并非抽象的符号,而是蕴含在所有日常中那生生不息的活力。中冶锦绣公馆118㎡空中跃墅,为每一个热爱生活的人,实现改善居住的需求,找到生活的归属感。

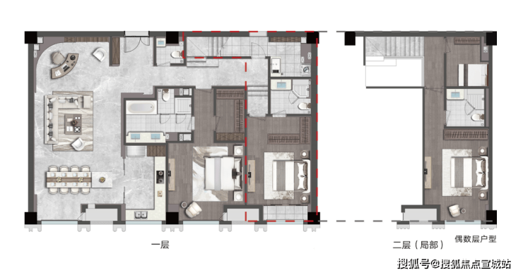
中冶·锦绣公馆118㎡户型图
中冶锦绣公馆售楼处电话:400-8778-334
园区的内部配套齐全且高端,配备有地下会所、恒温泳池、健身房等,并且采用人车分流管理。走进房间内部,第一眼就令人惊叹的,是高达4.79米层高。这样的大层高,最能营造出空间上的奢阔感。不仅如此,据置业顾问介绍,他们在118㎡的户型上还做了错层,客厅4.2米,房间5.4米,堪称神仙设计。
▲向右滑动,查看更多样板间实拍图
中冶锦绣公馆售楼处电话:400-8778-334
中冶·锦绣公馆118㎡效果图
定位高端进阶的中冶·锦绣公馆便就此革新,通过建筑面积约236-273m²西湖平墅给出了人们期待已久的答案。以净高3.9米的层高营建家庭社交会客厅,突破市面上一般产品3米高度,于纵横之间极大延展客餐厅空间感与视觉感。
项目236㎡户型示意图

中冶锦绣公馆售楼处电话:400-8778-334
奢阔南向4开间,搭载宽敞通厅与观景落地窗,预留给每一个功能空间的尺度都很实用且合适。确保视野开阔之余,也能让不同生活习惯的家人互不干扰。且大尺度采光面,极大提升舒适度,这对当代进阶圈层来说,无疑是高品质生活的美好诠释。
中冶锦绣公馆售楼处电话:400-8778-334
中冶·锦绣公馆236㎡户型图
中冶锦绣公馆售楼处电话:400-8778-334
阳光由此亲近入室,心境由此豁然开朗,面宽的大小直接影响生活的奢适尺度。中冶·锦绣公馆建筑面积约236㎡全明跃墅,以媲美豪宅的卧室标准,打造约4.5m开阔面宽,远胜于约3米的标准卧室面宽,提高改善居住的舒适度。
锦绣公馆样板房实景图
中冶锦绣公馆售楼处电话:400-8778-334
家,是生活的容器。作为西湖文教新一代大平层产品的代表,中冶·锦绣印以约3.9M纯粹净层高和局部约5.3M挑高空间(建面约236㎡跃层卧室),营造更加纯粹的家庭关系,充分满足人生不同阶段的居住理想,一步到位满足名仕家庭的生活所需。
样板房实拍图


中冶锦绣公馆售楼处电话:400-8778-334
从户型结构上来看,270方做了四房三卫设计,其中一个卧室设计了室内阳台,解决了一部分客户对阳台的需求。另外所有的卫生间都是做了明卫设计,保障了卫生间的通风及采光。约12平米、u型设计并配置了博世5件套的厨房,让不少前来看房的女性朋友为之心动,毕竟在这样一个宽敞又明亮的厨房里,做饭也是一种享受吧。
中冶锦绣公馆售楼处电话:400-8778-334
中冶·锦绣公馆270㎡户型图
一席西湖文教现房实景大平层,之于杭州名仕,既是一种身份匹配、更是一种品位象征。中冶·锦绣印正因深谙此道,于是户型设计中代入居者痛点,让有限的空间始终铺陈着有关生活的美好和雅致,以细节表达奢贵人居的日常。
为了极致自然与建筑与空间的体验,中冶·锦绣印创新打造一个L型的270°环幕景观视野,让视野从平面升级为立体,打破室内外的界限,将窗外西湖的秀丽山水和城市的璀璨繁华更好地纳入日常,为居住提供更自然生态的空间感受。
配置七大件进口日立电梯的中冶·锦绣公馆给他留下了深刻印象,短短数秒的沉稳升降便可直达家中。他不禁想起曾经父母的给予总是那么无微不至,一部电梯的改善介入,让父母的回家路便捷无忧,这份无言的爱,是两代人岁月的表白。
中冶·锦绣公馆270㎡实景图
中冶锦绣公馆售楼处电话:400-8778-334
最具诚意的,还是它不惜成本的装标:大金中央空调、百朗新风系统、厨房选用博世五件套(双开门冰箱、洗碗机、蒸箱、油烟机、电磁炉)。霍尼韦尔的厨房净水器、高怡的龙头和花洒、杜拉维特的马桶和台盆…看得出来:所有用具都是经过精心甄选的大牌。
中冶锦绣公馆售楼处电话:400-8778-334
锦绣公馆实景拍摄
『西湖的臻藏』
著写繁盛千年的杭城
建面约118-273㎡西湖平墅
净高约3.9米,局部5.3米,限量臻藏
中冶锦绣公馆售楼处电话:400-8778-334
🚩🚩➨杭州西湖中冶锦绣公馆售楼处电话:400-877-8334【官方指定VIP热线】中冶锦绣公馆官方电话/地址☎:400-8778-334(官方看房专线)中冶锦绣公馆售楼中心官方电话:4008778334【开发商授权售楼电话√√】★如有问题欢迎致电「售楼部进行购房咨询」,专业一对一热情服务,让您用专业眼光去买房🏠;
★来电咨询了解楼盘最新动态、楼盘详情介绍,板块位置、小区环境、容积率,得房率,绿化率怎么样,最新一房一价表;房价折扣优惠、交房时间、周边商业配套;地铁交通距离、在售户型面积等相关信息!
📍★温馨提示:由开发商旗下销售团队全程营销策划,房源信息真实有效!部分图片素材来自网络,如有侵权请联系小编删除,感谢支持!
声明:本文由入驻焦点开放平台的作者撰写,除焦点官方账号外,观点仅代表作者本人,不代表焦点立场。
