安高·海印华庭位于闵行莘庄,推出120-170㎡户型,售楼处电话400-8862-334,主打高层和叠墅,精装标准高,地块溢价率30%,预计11月开放样板房。 
     
 
   安高·海印华庭 
 
售楼处电话☎:400-8862-334【售楼处预约热线】(一对一热情服务)
楼盘项目全面介绍,本电话为开发商提供线上售楼电话400-8862-334,楼盘项目全面介绍(包含楼盘简介,房价,价格,楼盘地址,户型图,交通规划,备案价,项目配套,楼盘详情,售楼处电话,最新消息,最新详情,周边配套,最新进展等详情咨询)
 
   看房请务必提前致电销售确认时间,只有预约客户才能享受开发商提供的内部优惠以及专属的老客户推荐奖励!  
 
  
  
 
 
 
   闵行莘庄核心滨水住区 
 
 
   安高莘庄项目 
 
 
   【安高·海印华庭】 
 
 
   将推建面约120㎡/约140㎡左右的3-4房以及170㎡户型 
 
 
   11月份开放样板房 
 
 
   安高·海印华庭售楼处电话☎:400-8862-334✔✔ 
 
 
   安高·海印华庭售楼处电话☎:400-8862-334✔✔ 
 
  
  
 
 
 
   基本信息 
 
 
   7月24日,上海第六批次土拍首日,安徽高速经过78轮竞价最终以总价约36.89亿元竞得闵行莘庄地块,溢价率30%,楼板价56247元/㎡,装修标准4000元/㎡,成为莘庄地区“新地王”。 
 
  
  
 
 
 
   安高·海印华庭售楼处电话☎:400-8862-334✔✔ 
 
 
   地块占地26200㎡,容积率2.5。根据项目规划设计方案:项目拟建6栋17层高层及6栋4层叠加。 
 
  
  
 
 
 
   安高·海印华庭售楼处电话☎:400-8862-334✔✔ 
 
 
   户型方面,项目预计将推出建面约120-140㎡高层3-4房以及建面约170㎡左右的叠墅产品,共计约477户! 
 
 
   高层住宅全两梯两户,无连廊! 
 
 
   8#为建面约120㎡3房2厅2卫,宽厅户型;9#、10#、15#为建面约140㎡4房2厅2卫,横厅+南向双阳合;11#、12#为建面约120㎡3房2厅2卫,竖厅户型,南向双阳合! 
 
 
   5#、6#、7#则为总高4层的叠墅产品,预计面积在170㎡左右! 
 
 
   安高·海印华庭售楼处电话☎:400-8862-334✔✔ 
 
 
   约120㎡的3房2厅2卫户型(过程稿仅供参考,最终以实际为准) 
 
 
   采用一梯一户设计,入户有独立玄关,能很好地保障私密性,同时玄关可作为收纳空间,满足日常鞋帽、杂物的存放需求。客厅、餐厅南北直通,形成通透的采光和通风效果,提升了公共区域的舒适度与空间感。 
 
 
   安高·海印华庭售楼处电话☎:400-8862-334✔✔全卧带飘窗,其中北房间(多功能室)和南次卧的飘窗无墙,进一步拓展了空间利用率,可根据需求改造成书房、儿童房或休闲区等。主卧配备独立主卫,保障了主人的隐私与便利;南次卧和另一个卧室也能满足家人或客人的居住需求。 
 
 
   厨房为U型设计,附赠飘窗且与橱柜一体化,极大地提高了厨房的操作空间和实用面积,让烹饪流程更顺畅。两个卫生间的配置,可避免家庭早高峰的使用冲突,提升生活效率。 
 
 
   安高·海印华庭售楼处电话☎:400-8862-334✔✔三开间朝南,搭配多处飘窗和阳台,能充分引入自然光线,使室内空间明亮通透,同时也能带来较好的景观视野。 
 
 
   该户型在空间利用、采光通风、功能分区等方面表现出色,一梯一户的配置、独立玄关的设计以及全卧飘窗等细节,都为居住者提供了高品质的居住体验,适合追求舒适、注重隐私的家庭选择。 
 
  
  
 
 
 
   安高·海印华庭售楼处电话☎:400-8862-334✔✔ 
 
 
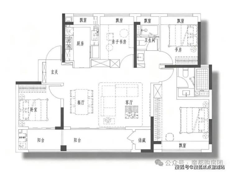
   建面约140㎡的4房2厅2卫户型: 
 
 
   采用一梯一户设计,入户有独立玄关,既保障了私密性,又提供了充足的收纳空间,可用于存放鞋帽、杂物等。客厅与餐厅形成横厅布局,搭配南向双阳台,空间开阔通透,采光和通风效果极佳,适合家庭聚会或日常休闲,也提升了公共区域的整体质感。 
 
 
   安高·海印华庭售楼处电话☎:400-8862-334✔✔四房设计,全卧配备飘窗,其中两个北房间(亲子书房、书房)的飘窗无墙垛,空间利用率更高,可灵活改造为书房、儿童活动区或兴趣空间。主卧为套房设计,配备独立卫生间,且预留了大面积储物空间,满足主人的隐私需求和收纳需求;另外两个卧室也能为家人或客人提供舒适的居住环境。 
 
 
   厨房为U型设计,附赠飘窗且与橱柜一体化,极大地增加了厨房的操作空间和实用面积,让烹饪流程更顺畅高效。两个卫生间的配置,可有效避免家庭早高峰的使用冲突,提升生活便利性。 
 
 
   安高·海印华庭售楼处电话☎:400-8862-334✔✔四开间朝南,结合多处飘窗和双阳台,能充分引入自然光线,使室内空间明亮通透,同时也能带来较好的景观视野,提升居住的舒适感。 
 
 
   安高·海印华庭售楼处电话☎:400-8862-334✔✔该户型在空间规划、功能分区、采光通风等方面亮点突出,一梯一户的配置、独立玄关的设计、全卧飘窗以及主卧套房等细节,都为居住者提供了高品质的居住体验,适合追求舒适、注重生活品质的改善型家庭选择 
 
  
  
 
 
 
   安高·海印华庭售楼处电话☎:400-8862-334✔✔ 
 
  
  
 
 
  
  
 
 
 
   安高·海印华庭售楼处电话☎:400-8862-334✔✔ 
 
 
   版块信息 
 
 
   安高莘庄地块地处水清路与疏影路交叉口,东至水清路,南至疏影路,西至杨水路,北至用地红线。 
 
  
  
 
 
 
   安高·海印华庭售楼处电话☎:400-8862-334✔✔ 
 
 
   网上有人说这块地是闵行区污水处理厂拆迁而来,其实并不准确。闵行区污水处理厂在淀浦河与北横泾的交汇处,在这个项目以西约200米左右。项目地块这块地从90年代至今曾历经报春菜场、京代会所、小田园饭店、全季酒店、聚鑫阁饭店等。 
 
  
  
 
 
 
   安高·海印华庭售楼处电话☎:400-8862-334✔✔ 
 
 
   水清路与疏影路的路口北侧的水清路淀浦河桥,是淀浦河闵行段夜景最漂亮的桥之一。在桥上可以看到莘庄商务区的天际线,世宏金源中心、旭辉莘庄中心、西子国际、中铁华东总部、中铁诺德、AFC大虹桥国际等楼宇。桥下的淀浦河生态廊道更是深受沿线居民喜爱,每天附近居民会在此跑步、散步、休闲、遛娃。 
 
  
  
 
 
 
   安高·海印华庭售楼处电话☎:400-8862-334✔✔ 
 
 
   从该地块沿水清路步行至1/5号线莘庄地铁站距离约1.5km,距离12号线/嘉闵线七莘路站直线距离约1.5km。 
 
  
  
 
 
 
   安高·海印华庭售楼处电话☎:400-8862-334✔✔ 
 
 
   莘庄板块近两年只有保利建工海玥锦上、中企云启春申两个新盘,均在莘庄商务区,售价在8万左右。 
 
 
   地块周边有莘松中学水清路校区和莘光学校,其中,莘松中学水清路校区就在该地块对面,这两所学校都是闵行区传统的公办名校,均建校超过30年。 
 
  
  
 
 
 
   安高·海印华庭售楼处电话☎:400-8862-334✔✔ 
 
 
   社区配套完善。地块周边具备完善的社区服务设施,满足居民多样化生活需求。复旦大学附属闵行区中心医院是三级综合性医院,可提供高水平医疗服务。莘庄社区卫生服务中心、报春社区卫生服务站等基层医疗机构分布密集,方便日常就医。 
 
 
   附近还有维璟印象城、平金中心、龙之梦商业广场、东苑丽宝广场、仲盛世界商城等大型商业综合体。居民可享受购物、餐饮、娱乐等一站式服务,满足日常生活和消费需求。 
 
  
  
 
 
 
   安高·海印华庭售楼处电话☎:400-8862-334✔✔ 
 
  
  
 
 
 
   安高·海印华庭售楼处电话☎:400-8862-334✔✔ 
 
 
   此外,闵行区体育场、山花路市民健身中心等可提供良好的体育锻炼场所。张渊艺术馆则为市民带来丰富的文化艺术体验。 
 
 
   考虑到莘庄板块已经断供两年多,地块本身的资源条件也不错,安高有机会打造出热销产品。 
 
 
   安高·海印华庭 
 
售楼处电话☎:400-8862-334【售楼处预约热线】(一对一热情服务)
楼盘项目全面介绍,本电话为开发商提供线上售楼电话400-8862-334,楼盘项目全面介绍(包含楼盘简介,房价,价格,楼盘地址,户型图,交通规划,备案价,项目配套,楼盘详情,售楼处电话,最新消息,最新详情,周边配套,最新进展等详情咨询)
 
   看房请务必提前致电销售确认时间,只有预约客户才能享受开发商提供的内部优惠以及专属的老客户推荐奖励!