上海宝山招商序(招商序售楼处)首页网站-2025招商序最新房价_楼盘评测丨地址丨详情丨招商序售楼处电话丨招商序楼盘百科

搜狐焦点宣城站 2025-09-16 09:46:05
用手机看
扫描到手机,新闻随时看

扫一扫,用手机看文章
更加方便分享给朋友

其延续了备受好评的三阳台与270°飘窗设计,不仅进一步拓展了空间的实用功能,还以独特的视角将窗外景观纳入室内,让居住者在享受宽敞居住空间的同时,拥有更开阔的观景视野,兼具实用性与观赏性,为品质生活再添一份优雅…

上海宝山招商序

售楼处电话☎:400-8862-334【售楼处预约热线】(一对一热情服务)

楼盘项目全面介绍,本电话为开发商提供线上售楼电话400-8862-334,楼盘项目全面介绍(包含楼盘简介,房价,价格,楼盘地址,户型图,交通规划,备案价,项目配套,楼盘详情,售楼处电话,最新消息,最新详情,周边配套,最新进展等详情咨询)

看房请务必提前致电销售确认时间,只有预约客户才能享受开发商提供的内部优惠以及专属的老客户推荐奖励!

编辑

1、爆款户型回归,臻稀楼栋揽景而来

首开阶段,招商序凭借出彩的三阳台户型设计引起了上海市场的轰动,此次实景公区的开放,更是奠定了“超规格”的项目标签!

此次143㎡的与112㎡实体样板间也随公区开放,南向三阳台+270度飘窗的设计让人惊叹!

三批次户型图如下:

编辑

编辑

编辑

二批次新品新推出的鲲鹏阁Newbigger的115㎡户型,可谓是上海前所未有的“天花板级”产品,更是以“超尺度+超采光+超功能+超奢配”,引发了众多购房者的关注与期待!

毫不夸张!这可能是市面上最好的115㎡三房户型!

编辑

约93%实得率,将「NEWBIGGER」诠释到底!

经第三方专业测绘机构实测,招商序二批次加推的约115㎡「鲲鹏阁」户型,空间实得率达到93%的市场罕见水平。这是什么概念?

在同等建筑面积下,上海新房实得率大多在80-85%左右,就算按85%实得率来看,选择招商序的业主可享有的实际使用面积比市面上常规户型多出约9~10㎡+!这个面积均分到各个卧室,让每个卧室均突破10㎡的舒适门槛,彻底解决传统三房「次卧狭小」的痛点,尺度感爆棚!

三阳台+270度环幕飘窗,重新定义采光与视野标准!

继首批次三阳台户型引发抢购后,「鲲鹏阁」在此基础上升级为「三阳台+主卧270°环幕飘窗」的稀缺组合。

三阳台设计,既拓展了生活场景,可打造为休闲区、绿植角等,也增强了室内的通风采光效果;主卧的270°环幕飘窗,则打破了传统视野局限,将窗外的风景大面积引入室内,让居住者在室内便能感受四季更迭,体验开阔的视觉享受,大幅提升居住品质。

灵活功能布局,满足多元需求!

更值得一提的是,「鲲鹏阁」在空间功能布局上充满巧思。通过巧妙改造次卧,业主能够打造出约50㎡的LDKB一体化空间,实现客厅、餐厅、厨房与阳台的有机融合,构建起一个开放、通透的家庭核心区域。

这里既是日常起居的主场,也是亲友相聚的社交中心,家人可以在此自由交流、互动。而次卧的功能可根据家庭需求灵活变换,无论是作为静谧的书房、雅致的茶室,还是温馨的长辈房,都能轻松实现,让居住空间契合不同生活阶段的需求。

编辑

招商序二批次加推的产品阵容中,除了备受瞩目的约115㎡「鲲鹏阁」,其余户型同样凭借出色的空间设计与高实得率,展现出强大的产品竞争力。

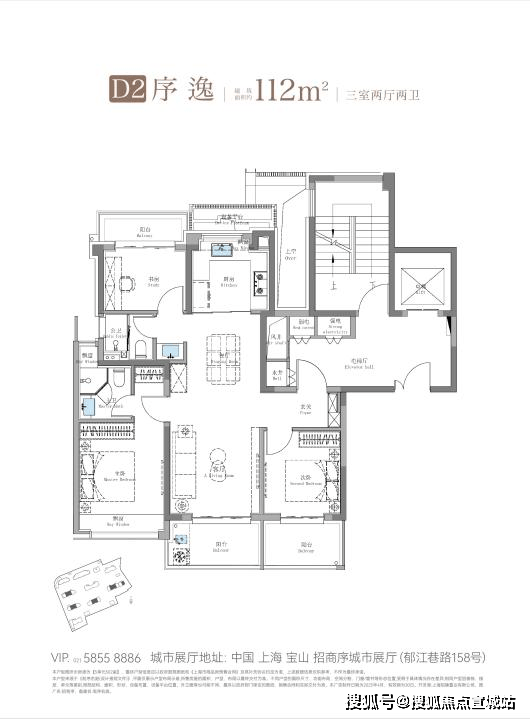
其中,112㎡户型曾在一批次缔造销售传奇,作为当之无愧的“断货王”,该户型在大筹阶段便实现房源售罄,足见市场对其青睐程度。而这批次700万级即可上车,性价比十足!经典的飞机户型搭配三阳台设计,将空间的通透感发挥到极致,无论是室内采光还是空气流通,都达到理想状态,为居住者营造出敞亮、舒适的生活环境。

而143㎡户型作为一批次中最受欢迎的大户型产品,更值得一提的是,143㎡户型的实得率也达到了惊人的92%!此次补货回归也在众多购房者的期待之中。

其延续了备受好评的三阳台与270°飘窗设计,不仅进一步拓展了空间的实用功能,还以独特的视角将窗外景观纳入室内,让居住者在享受宽敞居住空间的同时,拥有更开阔的观景视野,兼具实用性与观赏性,为品质生活再添一份优雅格调。

编辑

宝山招商序售楼处电话☎:400-8862-334

2、7字头入住中环

不可错过的时代机遇

2025年上海楼市正经历深刻的价值重构,中环内核的置业逻辑已悄然改写。

随着第四批次土拍落槌,土地市场的热度再次印证城市核心区的稀缺价值——杨浦中环新地王以80199元/㎡的楼板价刷新区域纪录,业内预测未来售价将突破13万+。这场揽金97.09亿元的土拍盛宴,不仅标志着土地成本的攀升,更预示着中环住宅的价值天花板正在被重新定义。

编辑

宝山招商序售楼处电话☎:400-8862-334

从最新房价地图观察,中环以内板块已全面进入"10万+时代":传统热点区域房价直冲20万/㎡,新兴板块也以破竹之势站稳10万+门槛。对于追求百平三房的改善型客群而言,中环内核的置业门槛已悄然抬升至1000万级——这意味着一套100㎡左右的三房户型,总价预算通常需要突破千万元大关!

在这样的市场背景下,招商序推出的约115㎡三阳台鲲鹏阁户型堪称颠覆想象的"性价比标杆"!

经实测达93%的空间实得率,搭配三阳台与270°环幕飘窗的创新设计,在实现居住尺度突破的同时,总价仅需750万级。这一价格不仅较同环线项目形成约250万的价差优势,更以"每平米单价差"的硬核实力,成为中环内核罕见的价值洼地。

编辑

宝山招商序售楼处电话☎:400-8862-334

作为上海市重大工程,「中环北抬」通过军工路、长江西路、沪太路三条快速路互联,重构浦西北交通骨架。这项工程不仅延伸中环线,更通过立体路网打造串联宝山、杨浦、静安的「城市交通脊梁」,竣工后将形成复合功能交通带,推动沿线板块价值升级。

编辑

宝山招商序售楼处电话☎:400-8862-334

招商序占位内中环黄金节点,依托逸仙路高架构建「三横三纵」交通矩阵:北向衔接郊环,南抵内环核心,与南北高架、中环线立体互通。这一配置使其成为链接五角场、大宁、北外滩的枢纽,形成高效通勤网络。

编辑

随着「中环北抬」落地,淞南正式纳入中环生活圈。参照成熟板块轨迹,交通升级正推动区域从价格洼地向价值高地转型。招商序以「双环加持+高实得率户型」的复合优势,成为抢占板块红利的优选。

项目紧邻长江西路地铁站(在建),直线距离仅200米(北门至地铁站)地铁18号线横向拉通了原本纵向不相连的四线地铁(1/3/18/19),将北上海横向联通,成为区域轨交的交汇聚点。1站江杨南路,5站复旦,7站五角场,让您快速抵达城市的各个核心区域,畅享便捷的都市生活。

编辑

宝山招商序售楼处电话☎:400-8862-334

多维配套咫尺繁华,尽享都市风尚

在招商序,无需远行,即可享受一站式的购物娱乐体验。一街之隔便是保利悦活荟,约600米处有祥腾生活广场、939红街坊,约2万方通南路商业以及淞南购物中心等,满足您的日常购物需求。

三甲护航,守护家人健康

健康是生活的基石,招商序周边拥有完善的医疗配套,为您和家人的健康保驾护航。片区内拥有复旦大学附属中山医院、同济大学附属上海第四人民医院、上海大学附属仁和医院等三甲医院,为您提供专业、高效的医疗服务。

编辑

宝山招商序售楼处电话☎:400-8862-334

3、约4000㎡私享定制会所与架空层

大师天团群著,起笔就是王炸

招商序,以首席大师制,与设计大师共创,在公区斥重金打造,部分产品标准甚至可媲美内环豪宅。

编辑

上海之冕实景门仪

超强的兑现度

近期招商序开放了门楼实景,笔者参观了一下,惊叹于招商设计的落地能力,不多说,让我们看下效果图与实景图的对照吧

编辑

宝山招商序售楼处电话☎:400-8862-334

编辑

编辑

编辑

宝山招商序售楼处电话☎:400-8862-334

真的有种实景图比效果图还效果图的感觉,招商的设计落地力让人惊叹!

堪比内环豪宅的尺度

招商序汲取在地文化,以上海水位源点“吴淞零点”「中国最早的水程标高之处」为灵感,创造约66米宽、约6.7米高的“上海之冕”。如此尺度,完全不输内中环千万级起步豪宅门头,是尊崇感,更是身份认同感。

编辑

不吝成本的石材用料

招商序藉由“吴淞灯塔”及其形制,原创落客雕塑“源流”,保加利亚进口的沉香米黄石材的底座,搭配以安哥拉黑大理石、云石玻璃,营造温润归家昭示。此外,招商序还寻访各地,精选伊朗进口水墨玉天然石材、橙皮红石材等,运用于通高大门、迎宾楼背景墙等处,品质感尽显。

编辑

宝山招商序售楼处电话☎:400-8862-334

传世藏品的艺术定制

大量的艺术定制,让招商序化作耐人欣赏的艺廊。大门墙面橙皮红腰线定制,与沉香米黄石材形成鲜明撞色,仅这一项石材打磨,耗费就近百万;

编辑

宝山招商序售楼处电话☎:400-8862-334

王府规制的通高大门,镶嵌昂贵天然水墨玉,自然天成的“山水画”,传递“玉出东方,门纳乾坤”的美好寓意;会客区域非遗艺术家画作《繁花映春》,耗时3月而成,诠释历久弥新的艺术价值。

编辑

宝山招商序售楼处电话☎:400-8862-334

编辑

宝山招商序售楼处电话☎:400-8862-334

潜心匠艺的慢工细节

实景1:1复刻的背后,是招商序对时间与匠艺的不吝付出。

招商序运用圆弧形工艺切割、弧形倒角设计、非遗火烧金箔工艺、国家级非遗麦秆镶嵌工艺等,在大门、墙面、画作、沙发等诸多细节之中注入手工艺和非遗的痕迹,精细打磨费工费时,彰显对不可复制的敬重。

此外,招商序还千里跋涉、寻访深山,精选朴树、油橄榄等名贵树种植入门头两侧呈对称美学,据悉,树形好、树龄好的油橄榄一棵就价值几十万。

编辑

宝山招商序售楼处电话☎:400-8862-334

不同于寻常项目进门后直接进入小区,招商序打造约4.5m高的迎宾楼,玄关左右两侧均可通行,且各建有一处会客区域,给到了业主更多元和更具仪式感的归家场景。

编辑

宝山招商序售楼处电话☎:400-8862-334

致敬挺拔的上海

外立面借鉴帝国大厦顶部收缩的垂直美学、立面构成以及沙逊大厦强化基座的稳定感,在设计上实现了经典与现代的融合。通过硬朗直线呼应柔和曲线勾勒,辅以温润石材与古铜色金属线条融合,打造东西方美学共融的艺术藏品。

编辑

宝山招商序售楼处电话☎:400-8862-334【售楼处预约热线】

堪比内环鼎豪的公区配置

招商序借鉴伦敦TheWhiteley酒店,打造中央车站,将自然场景和室内设计彼此交融,形成具有仪式感的车行落客。

中央车站作为作为社区中央枢纽,连通社区的各个空间,缩短动线。目前这种设计仅存在于上海少量内环豪宅和五星级酒店中,让业主享受私密性的同时,还营造独一份的尊崇体验。

编辑

让我们再看下会所,招商序的会所与架空层面积近4000㎡,4000㎡是什么水平呢?

翠湖天地六期会所约5000㎡(含室内泳池、艺术空间)

融创外滩壹号院:架空层+会所约4500㎡(含私人影院、品酒区)

通常来说只有鼎豪/旗舰项目的会所与架空层空间会≥4000㎡,且强调“功能复合性+设计稀缺性”,招商序的4000㎡,已接近顶豪标准,而它的首开价格仅6.8万/㎡。

上海宝山招商序

售楼处电话☎:400-8862-334【售楼处预约热线】(一对一热情服务)

楼盘项目全面介绍,本电话为开发商提供线上售楼电话400-8862-334,楼盘项目全面介绍(包含楼盘简介,房价,价格,楼盘地址,户型图,交通规划,备案价,项目配套,楼盘详情,售楼处电话,最新消息,最新详情,周边配套,最新进展等详情咨询)

看房请务必提前致电销售确认时间,只有预约客户才能享受开发商提供的内部优惠以及专属的老客户推荐奖励!

声明:本文由入驻焦点开放平台的作者撰写,除焦点官方账号外,观点仅代表作者本人,不代表焦点立场。