官方售楼处电话:400-885-1337 美兰金色宝邸位于宝山区罗泾,是北上海新兴产城中心,主打高端别墅,总价约1040万,地处城市核心,享受交通与产业红利。
【美兰金色宝邸】
金水湖畔类独栋别墅
建面约:300~305㎡
总价约:1040万起/套
最后11席臻藏 现房销售
官方售楼处电话:400-885-1337


上海“2035规划”明确提出,上海要主动服务“一带一路”建设、长江经济带发展,主动融入长三角区域协同发展。宝山作为长三角枢纽存在,被纳入主城区,开启新一轮时代红利,以北郊未来产业园为转型驱动,致力打造北上海新兴产城中心,城市资源全面升级。

(示意图)
随着“2035”战略规划定调,北郊迎来交通焕新,形成“二纵一轨”立体交通。S7沪崇高速的一期在建、沪太路快速化将促进交通路网的焕新升级;规划中运量交通接驳轨道交通7号线,实现快速通达市区。
(示意图)

上海北郊未来产业园是浦东金桥股份与宝山工业园区合作的科技产业园项目,承载区域产业转型任务,助力打造“上海制造”品牌,着力推动机器人、高端装备、关键智能部件等领域的研发和产业化。智能制造、新材料、移动互联网和健康产业等四大产业将成为支柱产业。

罗泾处于上海市北部,是宝山区城市建设区及上海国际航运中心的组成部分,规划以一核:罗泾公园为生态核心,二轴:以陈功路、罗宁路为城镇发展轴,三带:荻泾河、小川沙河、陶家河绿化景观带环绕,建设成为以中高档居住为主体,融行政办公、商业服务、文化教育、休闲娱乐等多元功能为一体的水韵生态城。美兰金色宝邸,正处于一核、二轴、三带的核心交集,中心区位天然优越,尽享城市发展黄金轴线带来的便捷生活及无限价值。而【美兰金色宝邸】位于宝山区罗泾。

项目基本参数
物业类别:别墅
单 价:均价34000元/㎡
总 价:1040万起
户 型:联排 (330-500㎡)
占地面积:47,442平方米
建筑面积:91,899平方米
装修状况:毛坯、精装修
在售套数:11套
交房时间:现房
绿 化 率:40.5%
容 积 率:1.3
车 位 数:516个
车 位 比:1:0.9
产权年限:住宅70年
物 业 费:住宅:2.2元/m²/月
别墅:3.5元/m²/月
物业公司:上海顾村物业管理有限公司
开 发 商:上海顾村房地产开发(集团)有限公司
销售证号:宝山房管(2013)预字0479号
楼盘特色:轨道沿线,低密居所

【美兰金色宝邸】由上海顾村房地产开发(集团)有限公司开发的罗泾B1-4地块居住小区(金色宝邸),小区由4幢小高层和55栋联排住宅构成。房源建面约300㎡~398㎡,总价约1000万起/套。

小区建筑采用经典优雅英伦风格,近邻115亩罗泾公园仅500米,不仅饱览自然风光,更如同拥有一个天然大氧吧,时时刻刻空气清新。



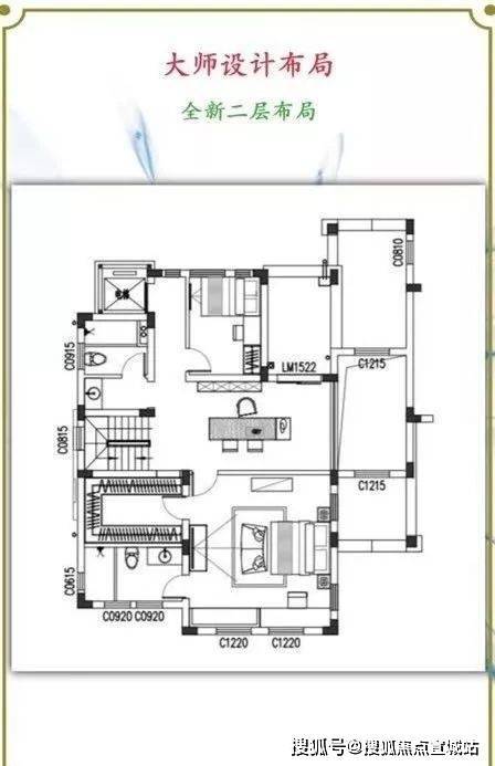
项目在售户型图




项目样板间实景照









项目周边配套
项目位于罗泾镇中心区,周边配套成熟,罗泾中学、罗泾镇卫生服务中心仅一河之隔,周边成熟小区林立,项目西侧地块系规划商业地块,坐享城市便捷生活。10分钟内接驳轨道交通7号线美兰湖站及1号线富锦路站,尽享成熟便捷交通,出行无忧。

公共交通:潘沪路罗宁路 (281米) 、潘泾路潘沪路 (330米) 、罗宁路潘沪路 (400米) 、宝虹家园 (464米) 、潘泾路陈川路 (507米) 、罗宁路陈川路 (589米)

教育资源:罗泾中学(234米) 、宝山区罗泾镇第二幼儿园(461米) 、罗泾镇中心幼儿园(925米) 、上海市宝山区罗泾中心校(947米) 、罗泾中心小学(949米) 、罗泾镇中心幼儿园(993米)

商业配套:世纪华联潘沪店NO.2023(117米) 、宝山区宝雄杂货店(133米) 、如海超市(飞翔店)(148米) 、良友金伴(潘沪路)(198米) 、光明便利(潘沪店)(208米) 、百新杂货店(217米)

医疗资源:罗泾镇社区卫生宝丰站(3053米) 、罗泾镇社区卫生服务中心(272米)
银行配套:上海农商银行陈行分理处(969米) 、上海农村商业银行(罗泾支行)(973米) 、上海农商银行ATM(973米) 、上海农村商业银行ATM(罗泾支行)(974米) 、中国邮政储蓄银行(罗泾支行)(986米)

其它及饮食:豪大大鸡排(266米) 、赵鱼头(507米) 、赵鱼头成通酒家(553米) 、成通大酒店(555米) 、森绿人家常菜馆(674米) 、都是客酒店(罗泾店)(683米) 、水上饭店(陈镇路)(695米)、宝祥桥(51米) 、小朱桥(114米) 、宝一房产(120米) 、村夫烤鱼(690米) 、徐介路(333米)

休闲娱乐:罗泾公园(东南门)(441米) 、罗泾公园(451米)

附一房一价表:
(部分房源已售,以售楼处案场为准)


【美兰金色宝邸】
金水湖畔类独栋别墅
建面约:300~305㎡
总价约:1040万起/套
官方售楼处电话:400-885-1337

作为中国楼市风向标,2025年上海房地产市场呈现鲜明分化特征:新房市场结构性升温与二手房调整承压并存,政策宽松托底与高库存压力交织,正经历供需重构与价值回归的深度调整。
新房市场“高端坚挺、刚需活跃”的两极分化显著。国家统计局数据显示,2025年9月上海新房价格环比上涨0.3%,前9月均价同比上涨5.8%,核心驱动力来自核心区优质改善房源。9月入市的43个楼盘中,内环内项目占7个,单价超10万/㎡的豪宅达14个,网红项目持续热销;宝山、嘉定等区域的高性价比刚需盘,凭借完善配套与友好总价保持活跃度。而中端改善型项目表现平淡,部分尾盘降价促销,结构性差异突出。
二手房市场深陷“高库存、缓去化、价续跌”周期。截至11月中旬,上海二手住宅挂牌量仍达35.5万套,虽阶段性去化1.67万套,但压力未获实质缓解。11月全市二手房均价52677元/㎡,环比下跌1.23%,远郊区域跌幅超4%,核心区也呈微降态势。成交端虽有短期脉冲,11月前15日成交11311套,单日最高破1120套,但多为“以价换量”,300万以内低总价老公房占比达61%,业主议价空间扩大,“挂牌即降价”成普遍现象。
政策宽松成为市场重要托底力量。2025年8月“825新政”后,上海房贷政策持续优化:首套商贷利率低至3.05%,二套3.09%;公积金贷款额度提升,夫妻双方最高可贷160万,多孩家庭达192万,有效降低购房成本。政策效果逐步渗透,9月二手住宅成交同比增幅38.67%,房价同比降幅收窄,但红利传导存在结构性差异,对新房拉动更明显,二手房仍需时间消化库存。
后市,分化格局或将持续。新房市场中,核心区高端项目与远郊刚需盘仍将保持活跃,涨幅有望收窄;二手房“以价换量”为主,学区房、地铁房等稀缺房源跌幅或率先收窄,老旧、远郊房源去化压力仍存。年末传统淡季临近,若无更大力度政策利好,调整周期可能延长,但上海核心城市的人口与资源集聚力未变,房价泡沫已充分挤压,回稳基础逐步筑牢。
对于购房者,当前是机遇与挑战并存的窗口期:刚需可把握政策红利与业主让利,聚焦配套成熟的低总价房源;改善型买家需注重核心价值,优选地段、物业兼具优势的资产;上海楼市已告别普涨时代,进入“精挑细选”的价值投资新阶段,唯有契合真实居住需求与核心价值的房源,方能在调整中站稳脚跟。