缦云上海(上海-缦云上海售楼处)楼盘详情-房价-户型-容积率-周边环境

搜狐焦点宣城站 2025-10-13 07:00:00
用手机看
扫描到手机,新闻随时看

扫一扫,用手机看文章
更加方便分享给朋友

售楼处电话:400-8123-224缦云上海推出140套190-330㎡房源,均价12.1万/㎡,享高端生活空间与优惠,是杨浦滨江重点项目。

缦云上海

售楼处电话:400-8123-224

如有问题欢迎来电咨询,来电即可享受买房优惠!

预约来电尊享购房优惠,可预约案场内部销售人员,专业一对一热情服务,让您用专业眼光去买房。

去年上海第三批次土拍中,成功拍出的杨浦平凉地块的 楼板价超8.84万/㎡ ,溢价率高达21%,未来新房售价将会远超现在,而缦云上海本批次价格还是12.1万/㎡,极具性价比。

杨浦滨江缦云上海认购中,将推出140套建面约190-330㎡房源,均价12.1万/㎡,总价2300-3300万!准一梯一户纯大平层+折叠园林+约3000㎡会所,层高3.3-3.5米。

据悉,缦云上海三期最后一批住宅,10-12层低密小高层产品(面积约190-330㎡4房),楼王位置。

88万方超级TOD综合体,杨浦滨江首个国际生活区

缦云上海是合生创展在上海杨浦滨江的重点项目,不仅涵盖约11万方超极合生汇、5A甲级写字楼、滨水总裁公馆、风貌建筑、高端住宅等多元业态,更引入国际一线奢侈品牌入驻,开创上海商业新格局,为新高知青年提供国际化的生活方式。

(效果图,仅供参考)

上海的第三座合生汇,“超极合生汇”的首个滨江高端落地项目

整个超级合生汇的方向——自由主张 LIFE ON YOUR TERMS,每个人都可以更大胆的、更有自信的去判断自己的要求。

超级合生汇,经营的不只是品牌,而更需要经营社群,有一个定义,就是每一个项目都要找寻当地的超级社群,包括跑步的社群、广场舞的社群;合生汇提供人文的空间,就像城市的第三空间,除了工作、居住、家庭更需要一个生活空间。

超级合生汇总体量达11万平方米,目前正投入建设,预计于2026年底竣工交付,来将引入一批首店和全新业态,给消费者带来全新体验,也为杨浦滨江的消费全面升级。

(效果图,仅供参考)

作为杨浦滨江重要商业节点,依托轨道交通站点,利用地下与空中连廊立体连通,与百年的杨树浦电厂形成新旧融合的杨浦特色;

(效果图,仅供参考)

独一无二的缦系“无边际”服务

作为最懂得生活的缦云,将全球生活方式理念引入城市,将世界顶奢酒店的服务理念引入生活,为杨浦滨江创造了国际化生活的新趋势。

缦系无边际服务,除了7*24*365天无全时服务响应,24小时管家服务响应、15分钟日常维修响应、5分钟紧急事件响应,缦缦APP全域线上覆盖服务等280余项的基础外,还为高净值圈层提供定制化私属增值服务,共包含6大类27项服务内容,涵盖生活、日常维修卫生清洁、资产管理、车辆服务和健康咨询等全维度。

缦云的无边际服务,就是将内容延伸至日常生活的细微之处,想你没想到的,让每位业主时刻感受来自家的温暖与细致,这是值得宣扬和学习的服务标准,也是许多客户选择缦云的理由,住在缦云社区,基本可以生活无忧。

(示意图,仅供参考)

11-12层低密小高层产品,与自然相融

缦云上海市区域内唯数不多的低密产品。通过折叠理念,打造了约3.5万方的园林,并营造多层次的景观美学和沉浸式五感体验;

比如,约3000平的多功能会客空间,满足各种社交、会客的需求,达到生活最松弛的状态;约6000平的林下全龄复合型共享空间,是天然的氧吧、是玩耍的场所,更是邻里交流的中心;还有约2000平的全龄共享活动空间,是社区最有温度的地方;以及全长约450m,宽约1.5m的专业跑环,不出社区也可实际漫跑计划;

(效果图,仅供参考)

建筑的立面采用大面积铝板,并通过数控切割、精度弯弧、手工焊接、打磨抛光、七重清洁、烘干喷漆、高温定型等过十余步精细工艺完成,是高端住宅中品质最高的立面铝材;“高品质铝板+大面积高透玻璃”, 超高的窗墙比让阳光更多的渗入生活。

(效果图,仅供参考)

“N+1”双会所,为生活创造无限可能

一个约3000M2私享会所,提供健身中心、室内游泳、缦宴、24H精品便利店、健康管理中心等高端生活方式服务。

一个泛会所空间,每栋楼下均设置相应的泛会所空间,涵盖茶室、自助咖啡等水吧、儿童游乐区、活动空间等。

(示意图)

(示意图)

缦云上海

售楼处电话:400-8123-224

如有问题欢迎来电咨询,来电即可享受买房优惠!

预约来电尊享购房优惠,可预约案场内部销售人员,专业一对一热情服务,让您用专业眼光去买房。

区域内唯一纯粹大户型社区,代表更纯粹的业主圈层

1 合生地产 高端缦系产品

该项目是合生在上海首个缦云作品,总建面约80万㎡,是杨浦滨江一线的超级综合体,更是杨浦滨江风貌带上的全新街区,项目集合多业态于一体,未来将建设合生汇商业广场、高端住宅、风貌别墅、五星级酒店、办公写字楼等诸多业态。

区域内唯一纯粹大户型社区,代表更纯粹的业主圈层缦云上海售楼处电话:400-8123-224

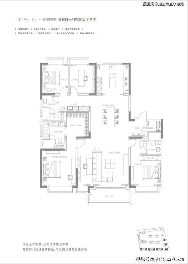
建面约206-330㎡大平层收官发售均价约12万/㎡可直接选,都还是准一梯一户的设计。

户型图如下

缦云上海售楼处电话:400-8123-224

缦云上海售楼处电话:400-8123-224

缦云上海售楼处电话:400-8123-224

缦云上海售楼处电话:400-8123-224

缦云上海售楼处电话:400-8123-224的装修配置,也是远超当下市场平均水平:新风、地暖和中央空调标配三大件,瑞士顶级卫浴品牌Laufen劳芬、德国高端洁具巨头Dornbracht当代、德国知名品牌美诺、还有博世等等,部分大户型还有定制衣柜!

样板间实景!缦云上海售楼处电话:400-8123-224

样板间实拍图缦云上海售楼处电话:400-8123-224

样板间实拍图缦云上海售楼处电话:400-8123-224

样板间实拍图缦云上海售楼处电话:400-8123-224

样板间实拍图缦云上海售楼处电话:400-8123-224

顶级卫浴品牌Laufen劳芬(部分)、Geberit吉博力同层排水系统、德国高端洁具巨头Dornbracht当代、意大利制造Veneta Cucine威乃达橱柜,还有新风、地暖、中央空调都是世界知名品牌......缦云上海售楼处电话:400-8123-224

高端的家居品牌,是每一个开发商愿意花钱就能做的。不过,光说用了多少大牌,完全不足以体现合生·缦系的诚意!细节才是真正体现产品力、区别于其他千万级项目的关键所在~

大门是约1.3米宽的复合子母门,厚重的材质给人以安全感和仪式感!缦云上海售楼处电话:400-8123-224

这个是入户玄关处的地面,大理石地面搭配金属线条勾勒出玄关地界,归家的氛围感从这个区域就开始了~

这还不是重点,玄关座椅背后,是一面皮革包裹的墙面。缦云上海售楼处电话:400-8123-224

惠房宝已经想象出业主未来的归家场景:坐在此处换鞋,往后随意倚靠,触碰到的不是冰冷的墙面,而是质感柔软的皮革,卸下一日疲惫与风尘再步入双厅......缦云上海售楼处电话:400-8123-224

鞋柜下方做了悬浮处理,同样也是内嵌灯带,这里灯光的角度还会再调整,因为灯光映射在大理石地面上,要显得尽量柔和不刺眼;同时,鞋柜下方可放拖鞋,还能放扫地机器人,便于日常清扫打理。

鞋柜的饰面,纹路方向统一,呈现出极强的协调感。缦云上海售楼处电话:400-8123-224

这种细节的打磨,才是最能体现出一个项目对于高端居住人群品味的把握、对于生活的理解......而品质感正是从如此细小的地方中流露出!

缦云上海售楼处电话:400-8123-224

厨房厨房灶台并不像很多项目做了“三眼灶”、“四眼灶”,其实灶眼多反而放不下中式的大炒锅;缦云上海售楼处电话:400-8123-224选用的这款BOSCH博世炉灶,液晶面板可定时,这样煲汤的时候就无需盯着;钢化玻璃材质,更易清理,油渍不容易渗入。

橱柜作为强功能性的收纳系统,自然少不了操作性能上的考究,吊柜做了升降式的拉篮,以后再也不用爬上高凳拿取了。

下方的橱柜则做了转角拉篮,充分利用转角空间,使物品井然有序的同时,轻松方便取放。缦云上海售楼处电话:400-8123-224

缦云上海售楼处电话:400-8123-224水槽也是一个大单槽,放得下炒锅汤锅这种大物件~抽拉式龙头,清洗大水槽的时候很方便,360度旋转伸展自如,这款弯管还是硅胶材质,柔软耐用有弹性,还可切换出水模式,出来的水柱也是很柔和细腻不飞溅。

厨房玻璃门是上轨道移门,意味着地面部分没有任何轨道,不会有灰尘积攒,炒菜时关上,避免油烟散入室内;平时拉开,可以扩充室内视觉感受。缦云上海售楼处电话:400-8123-224

卫浴缦云上海售楼处电话:400-8123-224所有户型的所有卫生间里都用了悬浮式的洁具和柜体,确保了下方空间的打扫无死角,对未来的入住带来非常大的便利性!

缦云上海售楼处电话:400-8123-224吉博力同层排水技术,静音是最大亮点;特制“水母”地漏,多重防臭防反溢。干净舒适的卫生间,是从空气到水流的全面把控~

你们可以看下缦云上海售楼处电话:400-8123-224是如何处理卫生间木门的防潮的——卫生间一侧用大理石做踢脚线,这是真正细致入微的巧思!

缦云上海售楼处电话:400-8123-224主卧卫生间配备的电热毛巾架简直就是遇到潮冷节气的“福音”,让毛巾、内衣都能够提前加热干燥。

层高对于缦云上海售楼处电话:400-8123-224的纯大宅社区定位,能买这样产品的购房者会非常在意空间感。缦云上海售楼处电话:400-8123-224全部户型层高约3.3米,室内所有空间的门都做了通顶设计,更阔绰的居室空间,将生活格局有效放大,通风、采光和观景体验的全方位提升!

弧形元素缦云上海售楼处电话:400-8123-224样板间里随处可见柔和的圆弧修饰,特别是柜体、墙体包边的圆弧转角,在进出各个空间时,减少磕碰的风险,对于有孩子和老人的家庭来说,是非常实用的友好设计。

甚至于抬头所见,吊顶都做了多处圆弧形处理——只是为了不过份尖锐,柔化边缘,让视觉看上去多有变化。弧线的协调往往能带来一种独特的、百看不腻的美感。缦云上海售楼处电话:400-8123-224

楼盘项目全面介绍,本电话为开发商提供线上预约售楼电话,楼盘项目全面介绍(包含楼盘简介,均价,房价,现房,期房,别墅,叠墅,大平层,价格,楼盘地址,户型图,交通规划,备案价,备案名,项目配套,样板间,开盘时间,认筹时间,楼盘详情,售楼处电话,最新消息,最新详情,周边配套,一房一价,最新进展等详情咨询)楼盘详情丨价格丨更多优惠丨机不可失丨欢迎致电丨诚邀品鉴!售楼处位置丨特价房丨工抵房丨剩余房源丨户型图丨最新消息丨免责声明:将文章内容综合来源于网络、只作分享,版权归原作者所有!!如有侵权,请联系我们,我们第一时间处理如有问题欢迎来电咨询,专业一对一热情服务,让您用专业眼光去买房.如果您想了解更多楼盘详情,欢迎提前预约拨打

声明:本文由入驻焦点开放平台的作者撰写,除焦点官方账号外,观点仅代表作者本人,不代表焦点立场。