上海杨浦外滩元境(售楼处)官方网站-2025外滩元境营销中心(售楼处中心)外滩元境欢迎您-周边环境-户型-价格-地址-楼盘详情-户型配套-售楼电话-交房时间
扫描到手机,新闻随时看
扫一扫,用手机看文章
更加方便分享给朋友
上海杨浦外滩元境售楼处电话:400/8862/334【预约看房热线】外滩元境售楼处电话:400/8862/334【售楼处电话/地址】外滩元境售楼处电话:400-8862-334【开发商认证】
杨浦滨江东外滩
【中建壹品·外滩元境】
推出建面约81-268㎡风貌洋房
全精装交付的风貌洋房社区
低容积率仅1.4
总价千万起,即将面市!
上海杨浦外滩元境
售楼处电话☎:400-8862-334【售楼处预约热线】(一对一热情服务)
楼盘项目全面介绍,本电话为开发商提供线上售楼电话400-8862-334,楼盘项目全面介绍(包含楼盘简介,房价,价格,楼盘地址,户型图,交通规划,备案价,项目配套,楼盘详情,售楼处电话,最新消息,最新详情,周边配套,最新进展等详情咨询)
看房请务必提前致电销售确认时间,只有预约客户才能享受开发商提供的内部优惠以及专属的老客户推荐奖励!

项目官宣户型图如下:
建面约104㎡3房2厅2卫(一层下叠):

上海杨浦外滩元境售楼处电话:400/8862/334【预约看房热线】外滩元境售楼处电话:400/8862/334【售楼处电话/地址】外滩元境售楼处电话:400-8862-334【开发商认证】

建面约99㎡3房2厅2卫(二层平叠):

建面约99㎡3房2厅2卫(三层上叠):

上海杨浦外滩元境售楼处电话:400/8862/334【预约看房热线】外滩元境售楼处电话:400/8862/334【售楼处电话/地址】外滩元境售楼处电话:400-8862-334【开发商认证】
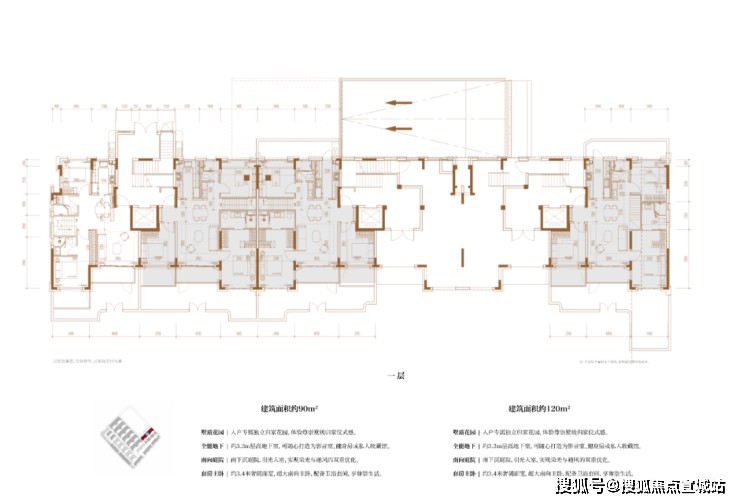
建面约120㎡3房2厅2卫/90㎡2房2厅2卫(一层下叠):


建面约110㎡3房2厅2卫/80㎡2房2厅2卫(二层平墅):

建面约110㎡3房2厅2卫/80㎡2房2厅2卫(三层上叠):

上海杨浦外滩元境售楼处电话:400/8862/334【预约看房热线】外滩元境售楼处电话:400/8862/334【售楼处电话/地址】外滩元境售楼处电话:400-8862-334【开发商认证】建面约90㎡/120㎡3房2厅2卫(一层下叠):


建面约80㎡2房2厅2卫/110㎡3房2厅2卫(二层平墅):

建面约82㎡2房2厅2卫/110㎡3房2厅2卫(三层上叠):

建面约82㎡2房2厅2卫/110㎡3房2厅2卫(四层上叠):

上海杨浦外滩元境售楼处电话:400/8862/334【预约看房热线】外滩元境售楼处电话:400/8862/334【售楼处电话/地址】外滩元境售楼处电话:400-8862-334【开发商认证】
建面约169㎡4房2厅3卫(一层下叠):


建面约139㎡4房2厅2卫(二层平墅):

上海杨浦外滩元境售楼处电话:400/8862/334【预约看房热线】外滩元境售楼处电话:400/8862/334【售楼处电话/地址】外滩元境售楼处电话:400-8862-334【开发商认证】
建面约134㎡4房2厅2卫(三层上叠):

上海杨浦外滩元境
售楼处电话☎:400-8862-334【售楼处预约热线】(一对一热情服务)
楼盘项目全面介绍,本电话为开发商提供线上售楼电话400-8862-334,楼盘项目全面介绍(包含楼盘简介,房价,价格,楼盘地址,户型图,交通规划,备案价,项目配套,楼盘详情,售楼处电话,最新消息,最新详情,周边配套,最新进展等详情咨询)
看房请务必提前致电销售确认时间,只有预约客户才能享受开发商提供的内部优惠以及专属的老客户推荐奖励!
以下是对上海高端住宅项目“外滩元境”的优劣势分析,我将基于公开信息,以**客观审慎**的态度进行梳理,并明确指出信息的来源与潜在局限性。
声明:本文由入驻焦点开放平台的作者撰写,除焦点官方账号外,观点仅代表作者本人,不代表焦点立场。
