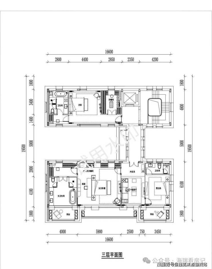
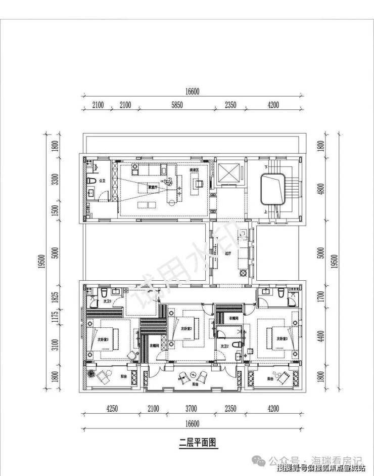
中海·恒昌玖里首页网站-中海·恒昌玖里售楼处电话-中海·恒昌玖里楼盘详情-交房时间-地址-最新房价户型图-小区环境-楼盘详情
扫描到手机,新闻随时看
扫一扫,用手机看文章
更加方便分享给朋友
中海·恒昌玖里售楼处电话:400-8123-224【预约看房热线】中海·恒昌玖里官方售楼处电话:4008123224【售楼处电话/地址】中海·恒昌玖里售楼处电话:400-812-3224【开发商认证】
2025 房产交易税费全解 + 100 个核心术语精简版(优化版)
一、2025 最新房产交易税费明细(按交易主体分类)
(一)个人与个人之间交易
1. 住宅交易
· 买方税费:契税(1%/1.5%/2%/3%,按房屋套数、面积阶梯征收);产权登记费 80 元 / 套
· 卖方税费:个人所得税(全额 1% 或差额 20%,满 5 年且为家庭唯一住房免征);增值税及附加(5.3%,房屋持有不满 2 年征收)
2. 非住宅交易(商铺、写字楼等)
· 买方税费:契税(全额 3%);印花税(全额 0.025%);产权登记费(80 元或 550 元,按产权类型区分)
· 卖方税费:个人所得税(差额 20%);增值税及附加(差额 5.3%);土地增值税(差额 30%-60% 或全额 5%);印花税(全额 0.025%)
(二)个人与公司之间交易
1. 个人购买公司住宅
· 买方税费:契税(1%/1.5%/2%/3%);产权登记费 80 元 / 套
· 卖方税费:增值税及附加(差额 5.3%);土地增值税(差额 30%-60%);印花税(全额 0.025%)
2. 个人购买公司非住宅
· 买方税费:契税(全额 3%);印花税(全额 0.025%);产权登记费(80 元或 550 元)
· 卖方税费:增值税及附加(差额 5.3%);土地增值税(差额 30%-60%);印花税(全额 0.025%)
3. 公司购买个人住宅
· 买方税费:契税(全额 3%);印花税(全额 0.025%);产权登记费 80 元 / 套
· 卖方税费:个人所得税(全额 1% 或差额 20%,满 5 年唯一住房免征);增值税及附加(5.3%,不满 2 年征收)
4. 公司购买个人非住宅
· 买方税费:契税(全额 3%);印花税(全额 0.025%);产权登记费 550 元 / 套
· 卖方税费:个人所得税(差额 20%);增值税及附加(差额 5.3%);土地增值税(差额 30%-60% 或全额 5%);印花税(全额 0.025%)
(三)公司与公司之间交易
1. 住宅交易
· 买方税费:契税(全额 3%);印花税(全额 0.025%);产权登记费 80 元 / 套
· 卖方税费:增值税及附加(差额 5.3%);土地增值税(差额 30%-60%);印花税(全额 0.025%)
2. 非住宅交易
· 买方税费:契税(全额 3%);印花税(全额 0.025%);产权登记费 550 元 / 套
· 卖方税费:增值税及附加(差额 5.3%);土地增值税(差额 30%-60%);印花税(全额 0.025%)
温馨提示:购买非住宅类房产时,需向交易方索取完整的购房发票及契税发票,作为税费核算与产权登记的必备凭证。
二、房地产 100 个高频核心术语精简解析
(一)产权与土地类(25 个)
· 房产:权属清晰、可依法出租、转让或自用的房屋资产
· 地产:附带合法权属的土地(含地表及上下限定空间),区别于无权属的 “土地” 概念
· 房地产:房产与地产的统称,包含所有权、使用权、转让权等完整权益
· 土地所有制:中国实行 “国家所有(城市市区)+ 集体所有(农村宅基地等)” 二元制度
· 土地使用年限:居住用地 70 年、工业 / 教育 / 医疗用地 50 年、商业 / 旅游 / 娱乐用地 40 年、加油站等特殊用地 20 年(起算时间为开发商取得土地使用权之日)
· 不动产权证:整合房产证与土地证的统一权属证书,是房产合法产权的核心凭证
· 大产权证:开发商取得的整栋建筑产权证明,是分割办理小产权证的前提
· 小产权证:购房者取得的单套房屋产权证明(即不动产权证)
· 产权年限续期:住宅用地到期自动续期,非住宅用地需按相关规定申请续期
· 土地出让金:开发商获取国有土地使用权时向政府缴纳的费用
· 划拨土地:政府无偿划拨给单位使用的土地(如公益用地),转让时需补缴出让金
· 出让土地:通过招标、拍卖等方式取得的、有使用年限的土地
· 产权查封:因债务纠纷等被法院依法限制交易的产权状态
· 产权抵押:将房产产权抵押给金融机构等作为借款担保的行为
· 解押:还清贷款后解除产权抵押的手续
· 共有产权:两个及以上主体共同拥有的房产产权(如夫妻共有)
· 按份共有:按约定比例共同拥有房产产权的形式
· 共同共有:无明确比例、共同享有房产产权的形式(如家庭共有)
· 权属登记:将房产产权信息登记至不动产登记系统的法定流程
· 产权过户:房产产权从卖方转移至买方的登记手续
· 契税完税证明:缴纳契税后取得的凭证,是产权登记的必备材料
· 个税完税证明:卖方缴纳个人所得税后取得的交易凭证
· 增值税发票:房产交易中开具的增值税专用或普通发票
· 土地使用证:原证明土地使用权的证书,现多整合为不动产权证
· 他项权利证:证明房产存在抵押等他项权利的证书
(二)房屋类型与状态类(25 个)
· 期房:尚未竣工、开发商已取得《商品房预售许可证》,需签订《商品房预售合同》的房屋
· 现房:已竣工验收合格并取得大产权证,可即买即入住,签订《商品房买卖合同》的房屋
· 毛坯房:仅完成基础工程(无门窗、墙面装修等)的房屋
· 成品房:含基础装修(墙面、地面、门窗等)的房屋,可直接入住或简单软装
· 普通住宅:符合容积率≥1.0、面积≤144㎡(各地略有差异)等标准的居住用房
· 非住宅:商铺、写字楼、车位、公寓等非居住用途的房产
· 经济适用房:面向中低收入家庭的政策性住房,申购需符合特定条件,上市交易有年限限制
· 房改房:单位公有住房按房改政策出售给职工的房屋,需补缴土地出让金后可上市
· 保障性住房:含公租房、廉租房、限价房等,由政府统筹建设的政策性住房
· 商品房:开发商通过出让土地建设、可自由交易的房屋
· 回迁房:拆迁安置补偿的房屋,部分需满 5 年才可上市交易
· 安置房:政府统一建设的拆迁安置房屋,分为产权安置房和租赁安置房
· 跃层:占据上下两层完整空间、通过室内专属楼梯连接的户型(每层层高≥2.2 米)
· 复式:在单层高(通常 3.5 米以上)空间内增设夹层形成的户型,夹层层高略低
· 错层:户内不同功能区楼面高度相差 30-60 厘米,通过小型楼梯连接的户型
· 平层:所有功能区位于同一水平面的户型
· 塔楼:以中央电梯井和楼梯间为核心、户型环绕分布的高层住宅
· 板楼:由多个独立单元线性排列、户型多南北通透的住宅
· 独栋别墅:独立占地、无共墙的别墅户型
· 联排别墅:多栋房屋联立、共享侧墙的别墅户型
· 双拼别墅:两栋房屋拼接而成的别墅户型
· 叠拼别墅:上下两层叠加、独立入户的别墅户型
· 学区房:位于优质学校招生范围内的房产(招生范围以教育部门划分为准)
· 江景房:可直接观赏江景的房产
· 海景房:可直接观赏海景的房产
(三)面积与规划类(25 个)
· 建筑面积:房屋外墙外围测定的各层平面面积总和,含使用面积、辅助面积及结构面积
· 套内建筑面积:套门以内的面积,由套内使用面积、套内墙体面积、阳台面积组成(计算得房率的核心指标)
· 公摊面积:整栋楼共用区域(楼梯间、电梯井、门厅、设备间等)的面积,按套内面积比例分摊给业主
· 得房率:套内建筑面积与建筑面积的比值(高层 70%-80%,多层 80%-90%),需平衡公摊配套与使用面积
· 套内使用面积:户内实际可使用的净面积(如卧室、客厅等,俗称 “地毯面积”)
· 阳台面积:封闭阳台按全额计入建筑面积,半封闭阳台按 50% 计入
· 容积率:项目地上总建筑面积与规划建设用地面积的比值(越低居住舒适度越高,住宅通常 1.0-3.5)
· 绿地率:规划建设用地内有效绿地面积与用地面积的比值(仅统计符合标准的绿地,如距建筑 1.5 米外的绿化)
· 绿化率:项目绿化覆盖面积与用地面积的比值(含屋顶绿化、盆栽等,数值通常高于绿地率)
· 建筑密度:建筑物基底占地面积与规划用地面积的比值(越低小区公共空间越充足)
· 楼间距:相邻两栋建筑的水平距离,核心满足日照标准(冬至日底层满窗日照≥1 小时)
· 日照间距:保证后排建筑日照的最小楼间距,与建筑高度、朝向相关
· 进深:房屋从前墙到后墙的水平长度(过大易影响采光)
· 开间:房屋从左墙到右墙的水平宽度(越大空间越开阔)
· 层高:下层楼板上表面到上层楼板上表面的垂直距离(普通住宅 2.8-3.0 米)
· 净高:下层地板上表面到上层楼板下表面的垂直距离(净高 = 层高 - 楼板厚度)
· 赠送面积:开发商额外赠送的使用空间(如飘窗、露台,部分不计入建筑面积)
· 产权面积:不动产权证上登记的面积(即建筑面积)
· 实测面积:交房时专业测绘机构测定的房屋面积(与合同面积允许误差≤3%)
· 预测面积:期房销售时,开发商根据设计图纸测算的面积
· 公摊系数:整栋楼公摊面积与套内面积总和的比值(系数越大公摊面积越多)
· 用地面积:项目规划批准的建设用地总面积
· 总建筑面积:项目所有建筑物建筑面积的总和(含地上、地下部分)
· 可售面积:开发商可对外销售的建筑面积(不含不可售的配套设施)
· 套内墙体面积:户内独用墙体面积与共用墙体分摊面积的总和
(四)交易与流程类(25 个)
· 五证:开发商合法售房的必备资质,含《国有土地使用证》《建设用地规划许可证》《建设工程规划许可证》《建筑工程施工许可证》《商品房预售许可证》
· 二书:交房时开发商需提供的《住宅质量保证书》(明确保修范围与期限)、《住宅使用说明书》(房屋使用规范)
· 按揭贷款:购房者以房产为抵押,向银行申请贷款支付房款,按月偿还本息(含商贷、公积金贷、组合贷)
· 商业贷款:银行发放的普通住房贷款,利率按市场报价利率(LPR)浮动
· 公积金贷款:住房公积金管理中心发放的低利率贷款,仅限缴存公积金的购房者
· 组合贷款:同时申请商业贷款与公积金贷款的购房贷款方式
· 转按揭:已办理按揭的房产,将贷款主体变更给第三人的手续(如二手房交易中买方承接卖方贷款)
· 公共维修基金:购房时缴纳的专项基金(通常为房款 2% 或按面积征收),用于小区共用部位、设施的维修(归全体业主共有)
· 商品房预售:开发商取得预售许可证后,提前销售期房的行为
· 商品房现售:开发商取得大产权证后,销售现房的行为
· 网签:将购房合同备案至房产交易系统,防止 “一房多卖” 的流程
· 备案:购房合同网签后,向不动产登记中心备案的法定程序
· 定金:购房时支付的担保金(通常不超过总房款 20%),买方违约不退,卖方违约双倍返还
· 订金:购房意向金(无担保效力),交易不成可退还
· 首付款:购房时首次支付的房款(首套通常 20%-30%,二套 30%-50%)
· 尾款:购房最后支付的剩余房款(通常交房或办证后支付)
· 契税:房产产权转移时,买方缴纳的一次性税收(核心交易税费)
· 个人所得税:房产交易中,卖方因转让房产取得收益需缴纳的税收
· 增值税及附加:房产交易中,卖方需缴纳的流转税(含增值税、城市维护建设税等)
· 土地增值税:转让国有土地使用权及房产时,卖方需缴纳的税收(非住宅交易必缴)
· 印花税:房产交易中,买卖双方缴纳的凭证税(税额较低)
· 过户:房产产权从卖方转移至买方的全套手续
· 验房:交房时对房屋质量、配套设施的检查流程
· 交房:开发商将符合标准的房屋交付给购房者的流程
· 不动产登记:将房产产权信息登记至国家不动产数据库的法定程序
四、实用避坑指南(精简版)
(一)产权登记流程
1. 备齐材料:购房合同、付款票据、身份证、户口本(已婚需结婚证)、测绘报告
2. 递交申请:前往不动产登记中心填写申请表,提交材料并缴纳登记费、印花税
3. 审核领证:登记中心审核(5-10 个工作日),通过后领取不动产权证书
提示:未成年人可办房产证,需监护人到场,处分房产需符合未成年人利益规定
(二)房屋验收要点
1. 文件核查:确认开发商已取得《竣工验收备案表》,同时提供 “二书”
2. 质量检查:墙面 / 地面无空鼓、门窗开关顺畅密封良好、水电设施正常使用
3. 面积复核:合同面积与实测面积误差≤3% 按实际面积补 / 退房款,误差>3% 可要求退房
提示:建议聘请专业验房师,重点排查渗水、电路隐患等问题
(三)贷款申请核心条件(2025 参考)
贷款类型
申请条件
额度与利率
公积金贷款
连续缴存 6 个月以上(或累计 1 年),未使用过公积金贷款或已还清
最高 80 万(部分城市上浮),利率约 3.25%
商业贷款
征信良好(无严重逾期),收入证明≥月还款额 2 倍
利率按 LPR 浮动(首套通常低 10-20 个基点)
组合贷款
同时满足公积金与商业贷款条件
额度 = 公积金额度 + 商业贷款额度,利率分别执行对应标准
提示:提前还款需提前 10 个工作日申请,部分银行对 “不满 1 年提前还款” 收取违约金
(四)期房 vs 现房选择建议
对比维度
期房
现房
价格
比现房低 5%-10%(开发商回笼资金需求)
价格较高,直观可见房屋实际状况
风险
存在烂尾、货不对板风险(需核查五证)
无烂尾风险,质量、户型、采光可实地考察
交付时间
通常 1-2 年(需跟踪施工进度)
付款后可尽快入住
适合人群
预算有限、能接受等待的购房者
急需入住、追求稳妥的购房者(如婚房、学区房)
五、收藏提示
1. 税费地域差异:本文税率为全国通用标准,北京、上海、深圳等城市有特殊政策,实际交易需咨询当地不动产登记中心
2. 术语更新:房地产政策调整频繁(如土地年限续期、公积金政策),建议每 1-2 年更新常识库
3. 避坑核心:核查产权清晰度(无抵押、无查封),留存所有交易票据(发票、合同、缴费凭证),拒绝口头承诺
声明:本文由入驻焦点开放平台的作者撰写,除焦点官方账号外,观点仅代表作者本人,不代表焦点立场。
