外滩瑞府售楼处(楼盘首页详情)@2025最新房价_户型配套

搜狐焦点宣城站 2025-10-18 10:02:05
用手机看
扫描到手机,新闻随时看

扫一扫,用手机看文章
更加方便分享给朋友

📍📍上海虹口外滩瑞府官方售楼处电话:400-877-8334「预约看房专线」外滩瑞府营销中心地址/官方售楼热线:400-8778-334√√(官网已认证)

外滩1公里!「外滩瑞府」首开告罄,二批次将加推建面约120-240㎡3-4房,预计10月中旬入市,样板间开放中,预约可看!

══上海虹口「外滩瑞府」══

售楼处电话☎:400-877-8334(最新线上预约电话)

【外滩瑞府营销中心】

💥售楼部服务热线:400-8778-334(官方认证号码)

上海外滩瑞府位于虹口区东至九龙路、南至哈尔滨路,在售面积124-330㎡,均价14.78万/㎡,总高24-32层。地铁10号线四川北路站400米,属北外滩黄金三角核心区;

📍📍上海虹口外滩瑞府官方售楼处电话:400-877-8334「预约看房专线」外滩瑞府营销中心地址/官方售楼热线:400-8778-334√√(官网已认证)

⭐温馨提示:如有问题欢迎来电咨询24小时热线,可对接专属销售顾问一对一热情服务,让您用专业眼光去买房,提前来电预约【享】内部专属优惠折扣!

编辑

📍📍上海虹口外滩瑞府官方售楼处电话:400-877-8334「预约看房专线」外滩瑞府营销中心地址/官方售楼热线:400-8778-334√√(官网已认证)

虹口北外滩旁

10号线四川北路站约400米

华润置地「外滩瑞府」

首开告罄二批次即将加推

建面约120-240㎡3-4房

目前“样板间”已开放

—恭迎品鉴—

编辑

📍📍上海虹口外滩瑞府官方售楼处电话:400-877-8334「预约看房专线」外滩瑞府营销中心地址/官方售楼热线:400-8778-334√√(官网已认证)

最新消息:华润置地虹口项目「外滩瑞府」一批次均价14.78万/㎡,火热售罄!二批次加推1#、3#号楼,建面约120-240㎡3-4房,预计10月中旬入市!

编辑

📍📍上海虹口外滩瑞府官方售楼处电话:400-877-8334「预约看房专线」外滩瑞府营销中心地址/官方售楼热线:400-8778-334√√(官网已认证)

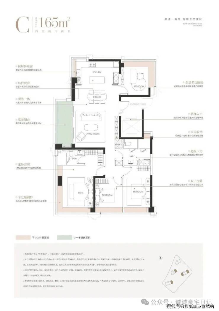
相比一批次,新增建面约195、240㎡户型,附上全套户型图:

编辑

编辑

编辑

编辑

样板间实景

编辑

编辑

编辑

编辑

编辑

项目实景图如下

编辑

编辑

编辑

📍📍上海虹口外滩瑞府官方售楼处电话:400-877-8334「预约看房专线」外滩瑞府营销中心地址/官方售楼热线:400-8778-334√√(官网已认证)

项目位于四平路吴淞路,占地约1.43公顷,容积率3.87,周边拥有九龙路、武进路、四平路、吴淞路等快速路。

编辑

📍📍上海虹口外滩瑞府官方售楼处电话:400-877-8334「预约看房专线」外滩瑞府营销中心地址/官方售楼热线:400-8778-334√√(官网已认证)

地块属于虹口内环内的嘉兴社区,就在第一人民医院北侧,南侧约200米就是北外滩,北侧即为瑞虹新城,项目直线距10号线四川北路站约400米,是今年虹口区非常重要的一个新房供应。

编辑

📍📍上海虹口外滩瑞府官方售楼处电话:400-877-8334「预约看房专线」外滩瑞府营销中心地址/官方售楼热线:400-8778-334√√(官网已认证)

规划设计方案:

项目拟建4栋24-32层高层住宅,另有少量风貌住宅和商业。住宅建面约124-240㎡。

4栋住宅一层全部为架空,入口至楼栋间设置有风雨连廊。

编辑

小区车行主入口设在了南侧哈尔滨路和东侧九龙路上,可以直接下地库,小区地面无车位,人车分流;人行出入口则位于地块东侧九龙路上,

编辑

📍📍上海虹口外滩瑞府官方售楼处电话:400-877-8334「预约看房专线」外滩瑞府营销中心地址/官方售楼热线:400-8778-334√√(官网已认证)

华润TOP级瑞系,作为华润置地产品线的皇冠明珠,自诞生便以钻石级选址标准划定豪宅基因。

从深圳湾的“春笋”旁到北京长安街畔,每一座瑞府都占据着核心城市最核心的地段。

此次外滩瑞府落子外滩1公里核心圈,正是华润对「战略稀缺性」的极致践行:非核心不选,非未来不立。

这也是华润置地那么多年来在上海的首座“瑞系”。

编辑

编辑

📍📍上海虹口外滩瑞府官方售楼处电话:400-877-8334「预约看房专线」外滩瑞府营销中心地址/官方售楼热线:400-8778-334√√(官网已认证)

有别于大多数的市区项目以兵列树阵式的景观设计,外滩瑞府通过建筑楼体的偏转形成了围合式的景观布局,秉持三个最大化,两个最小化(景观最大化,采光最大化,朝向视线最大化;遮挡最小化,影响最小化)。

通过这种创新布局,项目不仅形成连续的中心花园,更因楼栋布局与边界有夹角,自然形成一系列边角院落空间。

尤为难得的是,部分东南高区可看到陆家嘴三件套和北外滩浦西第一高楼的遥相呼应。

全域风雨连廊,外滩瑞府将风雨连廊扩容为完整的归家体系,实现全住宅楼栋无风雨归家,带来顶豪级的归家居住体验。

编辑

📍📍上海虹口外滩瑞府官方售楼处电话:400-877-8334「预约看房专线」外滩瑞府营销中心地址/官方售楼热线:400-8778-334√√(官网已认证)

值得一提,你还将拥有翠湖天地、汤臣一品同款大师设计。

项目力邀大师天团操刀,从建筑到生活全维度高定。

GOA大象设计担纲建筑设计;渡边智昭负责会所和架空层设计,他是2023AD100中国最具影响力建筑和室内设计师,代表作翠湖天地、汤臣一品;TROP操刀艺文景观设计;室内由W.DESIGN无间设计、李益中精琢...

这支曾塑造多个城市封面的大师团队,聚集在外滩瑞府,共筑外滩新一代标杆住宅。

编辑

📍📍上海虹口外滩瑞府官方售楼处电话:400-877-8334「预约看房专线」外滩瑞府营销中心地址/官方售楼热线:400-8778-334√√(官网已认证)

高层基座溯源石库门建筑精髓,复刻经典拱券符号;中段以通透玻璃幕墙搭配流线型金属线条,营造国际前沿的现代质感;顶部“冠冕”造型,进一步升华昭示性。

编辑

编辑

📍📍上海虹口外滩瑞府官方售楼处电话:400-877-8334「预约看房专线」外滩瑞府营销中心地址/官方售楼热线:400-8778-334√√(官网已认证)

项目配套

编辑

📍📍上海虹口外滩瑞府官方售楼处电话:400-877-8334「预约看房专线」外滩瑞府营销中心地址/官方售楼热线:400-8778-334√√(官网已认证)

交通配套:距轨道交通10号线四川北路站0.4公里,商业上,利通广场、壹丰广场、中信广场1933购物中心都在步行距离范围内;

教育配套:有民办新华初级中学、虹口区中州路第一小学、上海市虹口区第一中心小学、上海市海南中学;

医疗配套:临近上海市第一人民医院。

商业配套:利通广场、壹丰广场、中信广场、1933购物中心等在步行距离内,直线距离北侧瑞虹新城三件套约1.5公里。

编辑

编辑

编辑

编辑

编辑

编辑

编辑

编辑

📍📍上海虹口外滩瑞府官方售楼处电话:400-877-8334「预约看房专线」外滩瑞府营销中心地址/官方售楼热线:400-8778-334√√(官网已认证)

编辑

编辑

编辑

编辑

编辑

编辑

编辑

免责声明:📍★温馨提示:由开发商旗下销售团队全程营销策划,房源信息真实有效!部分图片素材来自网络,如有侵权请联系小编删除,感谢支持!

编辑

编辑

★来电咨询了解楼盘最新动态、楼盘详情介绍,板块位置、小区环境、容积率,得房率,绿化率怎么样,最新一房一价表;房价折扣优惠、交房时间、周边商业配套;地铁交通距离、在售户型面积等相关信息!

声明:本文由入驻焦点开放平台的作者撰写,除焦点官方账号外,观点仅代表作者本人,不代表焦点立场。