时代之城首页网站-时代之城售楼处电话-时代之城楼盘详情-交房时间-地址-最新房价户型图-小区环境-楼盘详情-交房时间-周边配套-售楼处电话
扫描到手机,新闻随时看
扫一扫,用手机看文章
更加方便分享给朋友
══✦上海嘉定南翔「华润华发·时代之城」✦══
⭐售楼中心官方电话/地址:400-8778-334【一对一服务】
上海华润华发·时代之城官方售楼处电话:400-877-8334(官方预约看房热线)✦嘉定华润华发·时代之城售楼处官方电话为 400-8778_334【开发商官网已认证√√】项目最新动态配套卖点:华润华发·时代之城位于嘉定南翔惠亚路299弄/嘉前路288弄,在售面积104-177㎡(高层+叠墅),均价约5.85万/㎡,总高5-26层。近11号线南翔站(1.2公里),30分钟直达徐家汇,配套南翔印象城MEGA、古猗园等,参观样板房请来电预约,了解更多项目信息!
⭐温馨提示:如有问题欢迎来电咨询24小时热线,可对接专属销售顾问一对一热情服务,让您用专业眼光去买房,提前来电预约【享】内部专属优惠折扣!

上海华润华发·时代之城官方售楼处电话:400-877-8334(官方预约看房热线)✦嘉定华润华发·时代之城售楼处官方电话为 400-8778_334【开发商官网已认证√√】
1实景示范区
高品质硬核呈现每一帧都是大片
在上海的购房者,都见识过华润置地震撼的造城手笔。
16年的大城华润·中央公园珠玉在前,称霸南翔品质标杆数十年。凭借着丰富的造成经验,23年与华发集团联合拿下的时代之城地块,旨在打造约30万方墅境国际社区“微缩城市”。
这15个月里面,呈现的3万方实景示范区,包含了约2000㎡的奢适会所+沿街配套;下沉式庭院与精装大堂;豪宅级的车库设计;社区内的夏荷池与约300米景观带......这座不断兑现的大城,迄今为止俘获了超1600组客户的心!
华润华发·时代之城营销中心热线400-8778-334(预约看房热线)

实景图,仅供参考

实景图,仅供参考
如今二期的雲墅实景示范区已开放,学长抽空去了一次现场,真切地感受到了它的变化。二期现场的状态可以用三个字概括:太惊艳!
实景图,仅供参考

实景图,仅供参考
从漫步式街区、国际建筑、实景园林,到多元架空层、高定精琢空间等,每一帧都是大片。接下来我将按照归家的动线,带大家沉浸式地体验一下——
首先映入眼帘的,是转角的一个步入式的大树会客厅,体现了“共享、打开”的设计理念,非常像安福路的街区,高低错落的韵味。老人可以在树下互相依偎,走走停停,亲密地交流谈话。华润华发·时代之城营销中心热线400-8778-334(预约看房热线)

上海华润华发·时代之城官方售楼处电话:400-877-8334(官方预约看房热线)✦嘉定华润华发·时代之城售楼处官方电话为 400-8778_334【开发商官网已认证√√】
实景图,仅供参考
还有一个细节,凳子全部是纯石材,任何时间段温度都很适宜,可以随时就坐,体现出“以人为本”的细节。
接下来是千万级别的酒店式高奢门头打造,二期的门头甄选688块珍贵的白雪公主玉石,恢弘气派,除了门头,立面和中间的景观亭都沿用大量玉石,彼此之间不再具有割裂感,而是融合打通。

上海华润华发·时代之城官方售楼处电话:400-877-8334(官方预约看房热线)✦嘉定华润华发·时代之城售楼处官方电话为 400-8778_334【开发商官网已认证√√】
实景图,仅供参考
门口培育名贵树种——80年的红果冬青,寓意红红火火。

实景图,仅供参考
继续往里走,映入眼帘的是二期园林景观——绿野仙踪。它拥有5重立体园林、3大组团、7大森境花园,精心规划了盒中谧林、盒中丘谷、盒中花园、盒中森活等四大园林体系,仿佛一个蓝绿臻宝盒。

庭院中遍布着睡莲,从这里往出去像一幅画,高低层次的叠水景观,超大型的原石,还有私密的谈话空间,舒适惬意。

上海华润华发·时代之城官方售楼处电话:400-877-8334(官方预约看房热线)✦嘉定华润华发·时代之城售楼处官方电话为 400-8778_334【开发商官网已认证√√】
实景图,仅供参考
项目的架空层是看下来最让我惊喜的地方,它拥有健身、儿童、欢聚、阅读等7大功能空间,独树一帜——
首先,区别于传统的归家大堂是一扇简单的门,时代之城做了书吧这样摩登先进的设计;其次,它针对不同年龄段的客户做了不同的分类,无论是老年人、儿童,都能够在这里找到生活的乐趣!
通过格子的打造,整个架空层做到“有开有合”。既能够融合自然,与自然进行亲密接触;也能安静下来,品茗一杯咖啡,静心思考。

实景图,仅供参考
约200平左右的归家大堂做了书吧、落客区、咖啡吧,颇有现代摩登风格的感觉。
华润华发·时代之城售楼处电话:400-8778-334
华润华发·时代之城营销中心热线400-8778-334(预约看房热线)
实景图,仅供参考
开敞式休闲景观区,则以“⽆界⾃然”为线索,临景互动区设置阶梯式观景台,让阳光清风、自然光然,俯拾皆是。

上海华润华发·时代之城官方售楼处电话:400-877-8334(官方预约看房热线)✦嘉定华润华发·时代之城售楼处官方电话为 400-8778_334【开发商官网已认证√√】
实景图,仅供参考
有一个要特别提及的空间,漫咖社,坐在这里,品茗一杯咖啡,看着窗外庭院水景,特别适合打卡拍照,放空冥想,度过悠闲的下午。

实景图,仅供参考
实景图,仅供参考
健身区域,业主在楼下就能满足基础的健身需求.....设施丰富的儿童区,下班之余,可以陪着孩子一起嬉戏游玩,妥妥的“别人家的会所”。

实景图,仅供参考

上海华润华发·时代之城官方售楼处电话:400-877-8334(官方预约看房热线)✦嘉定华润华发·时代之城售楼处官方电话为 400-8778_334【开发商官网已认证√√】
实景图,仅供参考
此外架空层还有很多细节,比如整体的挑高整整有5.2m,妥妥的豪宅级别配置;地面拼花都是纯手工拼接,摩登现代,打造出移步异景的归家仪式感。在600万级的项目中,真真实实属于超配!
最后讲讲项目的建筑立面,它采用了爱马仕同款博斯普鲁斯绿,这种绿色在中国古文化里面名为黛青色,很好地承接了南翔这个板块的文化底蕴。
叠墅外立面陶板+石材,高层是同色系仿水磨石铝板,不仅成本比普通铝板高,整个颜色也非常现代摩登,符合年轻人的潮流审美。华润华发·时代之城售楼处电话:400-8778-334

实景图,仅供参考

实景图,仅供参考
“眼见为实”的产品呈现方式,背后彰显的是华润置地强大的兑现力。如此之用心,对于之前入住的业主也注入一剂“强心针”,是妥妥的幸福。
292-177㎡全纬度的户型设计
匹配菁英人士的需求
「时代之城营销中心实景」
实景图
进入会所,泳池、健身房、儿童乐园、下沉式庭院一应俱全,在这里可运动,亦可待客、闲话家常,既实用又超有排面。



华润华发·时代之城售楼处电话:400-8778-334
华润华发·时代之城营销中心热线400-8778-334(预约看房热线)

实景图
别说是外环外约500-600万级的新房市场了,即使是豪宅市场也少有拥有泳池、健身房等功能的会所了,可谓500万级总价享受千万级豪宅配套。
紧接着泳池会所,项目的地下车库示范区也已兑现:
项目地下车库实景图
地库明亮、灯带漂亮,还有地上地下入户大堂,把面子拉满,未来高质量生活场景完全呈现在眼前。
最后,夏荷池与约300米景观带的实景呈现,更是将整个大城的能级、审美和调性提升了一大截:
华润华发·时代之城售楼处电话:400-8778-334
华润华发·时代之城营销中心热线400-8778-334(预约看房热线)

2023年12月15日,华润&华发联合体以总价891445万元成交嘉定区南翔镇JDC2-0202单元29-01、31-02、32-01、33-02地块,地块出让面积125339.87㎡,容积率29-01:2.4、31-02:2.4、32-01:2.2、33-02:2.4。溢价率5.32%,楼板价30015元/㎡,房地联动价58500元/㎡。

上海华润华发·时代之城官方售楼处电话:400-877-8334(官方预约看房热线)✦嘉定华润华发·时代之城售楼处官方电话为 400-8778_334【开发商官网已认证√√】
项目四至范围:东至鹤槎路、南至嘉前路-嘉宁路、西至惠亚路-安惠路、北至嘉程路。根据项目规划设计方案显示,项目拟建38幢5-26F住宅产品,共计2871套。
整个项目约30万方,由4个纯住宅地块组成,构成了一座以低密大城及互动街区为载体的国际生活大城。

整座大城在地块内部塑造了两条景观轴线:
一条是约300米的连续花园轴;
一条是约600米的日常漫步街区;

上海华润华发·时代之城官方售楼处电话:400-877-8334(官方预约看房热线)✦嘉定华润华发·时代之城售楼处官方电话为 400-8778_334【开发商官网已认证√√】
建筑方面,美学立面质感十足
高层/小高层立面采用极简线条垂直一体化设计,局部甄选天青色铝板和超大面玻璃开窗(LOW-E玻璃),彰显澄澈简约、时尚前卫的建筑气质;顶部具有昭示感的塔冠,成就璀璨夺目的城市天际线。华润华发·时代之城售楼处电话:400-8778-334
时代之城高层建筑效果图

上海华润华发·时代之城官方售楼处电话:400-877-8334(官方预约看房热线)✦嘉定华润华发·时代之城售楼处官方电话为 400-8778_334【开发商官网已认证√√】
时代之城建筑效果图
叠墅立面则采用经典三段式设计,以传统经典演绎现代时尚,部分采用天青色釉面陶板,同样融合大面玻璃开窗(LOW-E玻璃),可更大程度的为业主带来宽绰视野,体验摩登生活。
上海华润华发·时代之城官方售楼处电话:400-877-8334(官方预约看房热线)✦嘉定华润华发·时代之城售楼处官方电话为 400-8778_334【开发商官网已认证√√】
时代之城叠墅建筑效果图
景观方面,大师级别的设计团队
约30万方墅境美学社区内,项目规划九重归家礼序,从酒店式落客-迎宾式花园-摩登式会所-下沉式庭院-空中式庭院-主题式景观-架空式场景-精装式大堂-低密式住品,其中包含丰富多样的全龄化生活场景,如屋顶花园、下沉吧台、精装大堂、架空层等功能一应俱全,可满足全家人的生活志趣。华润华发·时代之城售楼处电话:400-8778-334
时代之城街区效果图
最令人惊艳的当属,项目还配置了约2500平的奢华会所。这里集健身、游泳、瑜伽、私宴、空中花园等于一体,可以为城市精英带来一次质感生活的全然焕新与高端享受。
上海华润华发·时代之城官方售楼处电话:400-877-8334(官方预约看房热线)✦嘉定华润华发·时代之城售楼处官方电话为 400-8778_334【开发商官网已认证√√】
时代之城会所效果图
这些丰富的生活场景,则由两条景观轴线串联:一条是约300米的连续花园轴;一条是约600米的日常漫步街区。
与此同时,项目在街角处还打造了多个口袋公园!

社区内部景观街区示意图,仅供参考
社区与街道融合和延伸示意图,仅供参考
居于此,推窗即是直击心灵深处的绿意美景,下楼即达治愈繁忙世界的漫步空间!理想生活莫过于此。华润华发·时代之城营销中心热线400-8778-334(预约看房热线)
上海华润华发·时代之城官方售楼处电话:400-877-8334(官方预约看房热线)✦嘉定华润华发·时代之城售楼处官方电话为 400-8778_334【开发商官网已认证√√】
时代之城街区效果图
因而,无论是地段还是产品本身,「时代之城」营造的“宜居”属性和高级感,都远超同价位其他竞品!
全套户型图发布&样板房实拍
华润置地时代之城高层产品将百平上下的改善户型做出了轻奢级的居住体验,把约133㎡的改善四房做出了豪宅的尺度感。
无论是收纳还是功能,都比同面积段产品更优越。
约89、108㎡三房、约133㎡四房户型的S墙设计利用空间错位放置冰箱,腾出了将近一个平方的厨房空间,可以多容纳一人进行操作,更是多出了将近4个24寸行李箱的收纳空间
约89㎡三房一卫户型彻底三分离式卫生间设计,赋予主卫同时进行洗漱、沐浴、如厕三个功能,弥补了只有一个卫生间的遗憾
约133㎡四房主卧270°景观飘窗,让窗外自然之景延伸进房间


华润华发·时代之城售楼处电话:400-8778-334
华润华发·时代之城营销中心热线400-8778-334(预约看房热线)



上海华润华发·时代之城官方售楼处电话:400-877-8334(官方预约看房热线)✦嘉定华润华发·时代之城售楼处官方电话为 400-8778_334【开发商官网已认证√√】
样板间实拍
建面约89-133㎡墅区高层/小高层户型
「约89㎡3房2厅1卫」高层25层

「约107㎡3房2厅2卫」高层边套

「约108㎡3房2厅2卫」小高17层

「约133㎡4房2厅2卫」小高边套

上海华润华发·时代之城官方售楼处电话:400-877-8334(官方预约看房热线)✦嘉定华润华发·时代之城售楼处官方电话为 400-8778_334【开发商官网已认证√√】
阔府空间叠墅,高私密性电梯入户
项目创新性地提出来“下叠+中平+上叠”的规划理念,打造了彻底动静分离的上下复式叠墅和平面尺度感更强的平墅。
叠墅一梯两户私密入户,搭配社区森林花园级景观,每位业主都有林中密墅的居住体验。华润华发·时代之城营销中心热线400-8778-334(预约看房热线)



样板间效果图仅供参考
建面约132-170㎡精装叠墅






华润华发·时代之城售楼处电话:400-8778-334
华润华发·时代之城营销中心热线400-8778-334(预约看房热线)
回到产品上,在600-800万级中,各方面都称心如意的产品并不多,「时代之城」是其中最为全面的,产品力非常能打!去年它凭借着遥遥领先的室内收纳设计,引领了一股“卷室内”的潮流。
十一批次一共开放了五个样板间,让我们一一看下:
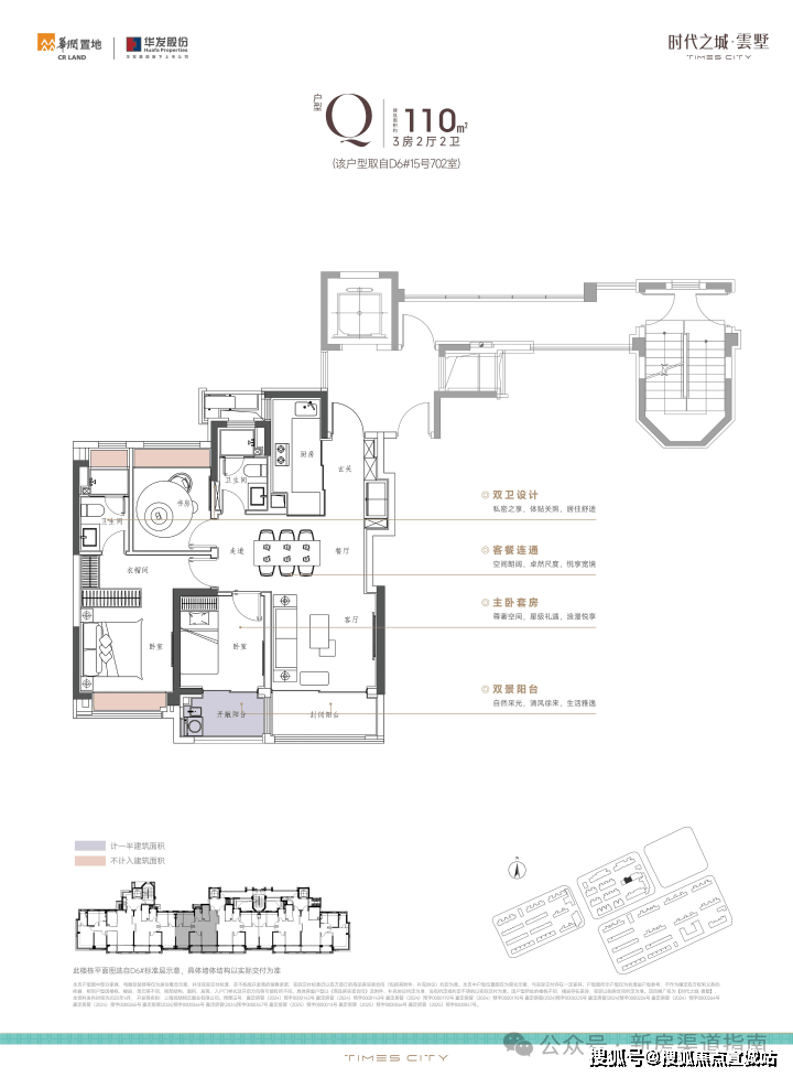
1、92-135㎡高层产品,刚需上车首选!
建面约110㎡的三房两厅两卫,非常适合年轻家庭上车,它的设计风格偏法式,符合年轻人审美。

上海华润华发·时代之城官方售楼处电话:400-877-8334(官方预约看房热线)✦嘉定华润华发·时代之城售楼处官方电话为 400-8778_334【开发商官网已认证√√】
实景图,仅供参考
南向双阳台,在原先一个阳台的基础上再加一个开敞阳台(仅计算一半阳台面积为建筑面积),实现客厅与次卧联通,不仅让得房率瞬间提升一个level,视野更敞亮!整体格局方正,南北通透,每个卧室大小宽裕,实现小家的超满足获得感!

上海华润华发·时代之城官方售楼处电话:400-877-8334(官方预约看房热线)✦嘉定华润华发·时代之城售楼处官方电话为 400-8778_334【开发商官网已认证√√】
户型图,仅供参考
收纳作为中小户型的一个痛点,在时代之城得到了完美解决,它几乎把小户型所有的收纳都搬进家里——
厨房超大柜体的收纳空间,包括调味拉篮、岛台双面收纳,将厨房空间直接扩容约80%,贴心的灶前龙头设计,开火时直接上方接水,非常灵活;
玄关S墙设计,同样包含MAX巨量收纳;创新性采用了钢琴键收纳,600万级的刚需项目中能享受大几千万的豪宅配置;
主卫的美妆冰箱、镜柜收纳、常用物品置物台,可以隐藏90%的卫浴物品......
实景图,仅供参考
同时,这个户型主力总价600万级起,很适合刚需家庭上车!
建面约120㎡的大三房做了一个u型厨房,餐桌可以容纳八人餐桌,双阳台配置+加上所有飘窗都是附赠面积,整体的实用面积可想而知。
S墙的设计,使得玄关和冰箱得到兼容,凹进去的部分放置冰箱,凸出的墙面做成了钢琴键收纳。

上海华润华发·时代之城官方售楼处电话:400-877-8334(官方预约看房热线)✦嘉定华润华发·时代之城售楼处官方电话为 400-8778_334【开发商官网已认证√√】
户型图,仅供参考
建面约135㎡的四房是项目的明星户型,几乎是一抢而空的状态,采光、视野非常敞亮,南北通透,双阳台还能看到窗外的中庭景观。
它的收纳亮点:钢琴键烤漆板,玄关处有一个八百库收纳,厨房扩容80%......800多万能买到这样的一个房子,哪怕是在市区买二手房也买不到这么多的赠送面积!

实景图,仅供参考

上海华润华发·时代之城官方售楼处电话:400-877-8334(官方预约看房热线)✦嘉定华润华发·时代之城售楼处官方电话为 400-8778_334【开发商官网已认证√√】
户型图,仅供参考
总结一下,高层户型可以说在同价位段中,很难再找到比它更出彩的户型了。南向双阳台+巨量收纳体系+超高水准的精装标准,几乎榨干每一寸空间,实用性与美观性都拉到了顶!
2、附赠面积超多的叠墅产品,包含地下室+阁楼
1000万级,挤一挤能在市区买个小三房,但是在时代之城,能享受到完全不一样的生活场景,有天有地有庭院,还有地下室的美好生活!
加上南翔比较宜居,离市区又很近,非常便利。学长很看好这里的叠墅产品:居住起来真的舒服!
1
建面约174㎡的下叠

上海华润华发·时代之城官方售楼处电话:400-877-8334(官方预约看房热线)✦嘉定华润华发·时代之城售楼处官方电话为 400-8778_334【开发商官网已认证√√】
户型图,仅供参考
下叠二期做了改动,一层拥有一个充足的采光面&超级全明的空间,即使是七八月份的上海也丝毫不会闷热潮湿。附赠宽绰地下室+公共绿地(实际交付为毛坯)闲暇时可以在院子里养鱼,种花等等。

实景图,仅供参考
地下室的两个夹层(作为生活场景示意),不仅赠送面积多,还是三面采光!挑高开阔,丝毫没有压抑感。

实景图,仅供参考
一楼,客厅到庭院是全景的落地门窗,夏日凉风习习,边套下叠还拥有全明餐厅。
上海华润华发·时代之城官方售楼处电话:400-877-8334(官方预约看房热线)✦嘉定华润华发·时代之城售楼处官方电话为 400-8778_334【开发商官网已认证√√】
实景图,仅供参考
主卧拥有270度环幕飘窗,视野和采光优越,配备了高奢卫生间,空间感、尊崇感拉到顶格。

上海华润华发·时代之城官方售楼处电话:400-877-8334(官方预约看房热线)✦嘉定华润华发·时代之城售楼处官方电话为 400-8778_334【开发商官网已认证√√】
实景图,仅供参考
下叠的总价段在1300-1600万左右,完全能容纳三代同堂的温馨的墅居生活,置业的终极目标,一步到位!
2
建面约178㎡的中平

上海华润华发·时代之城官方售楼处电话:400-877-8334(官方预约看房热线)✦嘉定华润华发·时代之城售楼处官方电话为 400-8778_334【开发商官网已认证√√】
户型图,仅供参考
中平户型以四开间朝南的IMAX级采光面,打造出堪比市区豪宅的尺度感。4房4飘窗2阳台的设计,配合双套房布局,一共有三个套房,让每个家庭成员都享有独立私密空间。
客厅+餐厅联通+南向双阳台,尺度感非常强。同时还配备了独立的家政间,约4.4个m³,约等于100个标准登机箱的空间!

上海华润华发·时代之城官方售楼处电话:400-877-8334(官方预约看房热线)✦嘉定华润华发·时代之城售楼处官方电话为 400-8778_334【开发商官网已认证√√】
实景图,仅供参考
玄关也是非常具有仪式感,包括厨房拥有超长的操作台面,同样也是做了满级收纳。
主卧套房,不仅有豪华卫浴,女王卫生间+双台盆,大尺度衣帽间,甚至书房、工作室空间就在边上,业主能体验无上的尊崇与私密。
实景图,仅供参考
中平的价格在1100-1300万左右,大平层的居住体验,媲美奢华酒店的感觉,妥妥秒杀市区拥挤又高密度的小三房了。
3
建面约170㎡的上叠

上海华润华发·时代之城官方售楼处电话:400-877-8334(官方预约看房热线)✦嘉定华润华发·时代之城售楼处官方电话为 400-8778_334【开发商官网已认证√√】
户型图,仅供参考
上叠产品创新采用南北双露台+南向双阳台布局,270度全景采光面让室内外空间完美融合。边套户型的1楼客餐厅和2楼主卧,更增设侧飘窗,将社区美景尽收眼底。
日常在露台barbecue、在阳台养养花、晒晒太阳好不惬意!阁楼还能做到大面积玻璃采光!
毫不夸张地说,「时代之城·雲墅」的户型设计,算得上嘉定“遥遥领先的TOP”户型!在这里,每个价位段的客户都能匹配到满意的产品。
时代之城占位的南翔板块云翔片区,承担南翔3.0时代转型升级的历史使命。
周边就是印象城、山姆会员店,包括好的教育资源,11号线&嘉闵线双轨交配置,十分宜居。可以说,600-800万级别的新房中,拥有TOP级别的配套!
区域内的二手房很坚挺。房龄超10年的次新小区华润中央公园,依旧能有6万+/平的挂牌价。可见区域内客户对好地段、对高品质住宅的认可。华润之于南翔,是相互成就的关系。
教育上,2025年6月30日,南翔教育资源迎来重磅升级!嘉定区教育高质量发展推进大会举行。
会上,嘉定区教育局与复旦大学附属中学签订合作办学协议,将在南翔镇合作举办复旦附嘉定学校,标志着嘉定区在引入优质教育资源、推动合作办学上迈出了坚实一步。华润华发·时代之城售楼处电话:400-8778-334
上海华润华发·时代之城官方售楼处电话:400-877-8334(官方预约看房热线)✦嘉定华润华发·时代之城售楼处官方电话为 400-8778_334【开发商官网已认证√√】
图源复旦大学官微
其次,在云翔板块落地的教育资源一直都是非常重磅的,像之前的世界外国语学校、世外教育附属嘉定云翔小学等,这片区域的教育资源是非常受重视的存在。(免责声明:以上教育资源整理仅代表楼盘与学校的距离,该房屋所在项目暂未划分学区,开发商不对项目交房后所属学区、学校做任何承诺。教育资源分配或学校/学区划分以及学校的具体招生规则等请以政府相关主管部门、教育机构公开的最新信息为准。)

上海华润华发·时代之城官方售楼处电话:400-877-8334(官方预约看房热线)✦嘉定华润华发·时代之城售楼处官方电话为 400-8778_334【开发商官网已认证√√】
交通上,时代之城所拥有的11号线+嘉闵线双轨通勤,距离地铁11号线陈翔公路站约900米,半小时就能到达徐家汇等市区核心腹地。包括静安寺、徐家汇、徐汇滨江、漕河泾、陆家嘴、新天地都在业主的生活圈内。华润华发·时代之城营销中心热线400-8778-334(预约看房热线)

上海华润华发·时代之城官方售楼处电话:400-877-8334(官方预约看房热线)✦嘉定华润华发·时代之城售楼处官方电话为 400-8778_334【开发商官网已认证√√】
商业上,坐拥山姆会员店(与时代之城零距离)+印象城MEGA(34万方商业旗舰),形成“下楼即享山姆,步行直达印象城”的顶配体验。
这里的业主,未来吃完饭,家楼下就是大型的购物商超,散步消食购物轻轻松松。

上海华润华发·时代之城官方售楼处电话:400-877-8334(官方预约看房热线)✦嘉定华润华发·时代之城售楼处官方电话为 400-8778_334【开发商官网已认证√√】
最后展望一下未来图景:这个总规模约30万方的“微型城市”恰如区域发展的一个缩影——既有对品质生活的执着追求,又有对生态宜居的持续探索。将一切都浓缩到一个步行范围的闭环之中。
尤其是二期实景示范区的展现,更让众人惊艳了一把,美妙的大城生活跃然于眼前,值得憧憬!

上海华润华发·时代之城官方售楼处电话:400-877-8334(官方预约看房热线)✦嘉定华润华发·时代之城售楼处官方电话为 400-8778_334【开发商官网已认证√√】项目最新动态配套卖点:华润华发·时代之城位于嘉定南翔惠亚路299弄/嘉前路288弄,在售面积104-177㎡(高层+叠墅),均价约5.85万/㎡,总高5-26层。近11号线南翔站(1.2公里),30分钟直达徐家汇,配套南翔印象城MEGA、古猗园等,参观样板房请来电预约,了解更多项目信息!
⭐温馨提示:如有问题欢迎来电咨询24小时热线,可对接专属销售顾问一对一热情服务,让您用专业眼光去买房,提前来电预约【享】内部专属优惠折扣!
声明:本文由入驻焦点开放平台的作者撰写,除焦点官方账号外,观点仅代表作者本人,不代表焦点立场。
