联仲都悦汇 (联仲都悦汇售楼处)首页官方网站丨2026【联仲都悦汇】欢迎您/联仲都悦汇售楼处电话/地址/备案价/楼盘详情
扫描到手机,新闻随时看
扫一扫,用手机看文章
更加方便分享给朋友
闵行旗忠别墅区「联仲都悦汇」样板间已开放,总60席,建面约262-306㎡联排别墅,总价约1398万起,预约可看!
═══「联仲都悦汇」═══
售楼处电话/地址:400-877-8334√√
官方售楼处电话发布为400-8778-334(官方预约看房专线)
闵行旗忠别墅区
低密法式别墅
「联仲·都悦汇」
售楼处电话:400-877-8334
主力面约262~306㎡联排别墅
第上三层+地下2层+大花园总价约1398万起
目前“样板间”已开放
—恭迎品鉴—
⭐上海闵行联仲都悦汇官方售楼处电话:400-877-8334(官网已认证√√)联仲都悦汇售楼中心热线/官方电话为400-8778-334(尊享一对一专属服务√√)全天候直通售楼中心,讲解楼盘价格,在售户型,最新动态,房价优惠信息,售楼处地址,楼盘电话,看房请提前来电预约享内部专属折扣,感谢您的支持!
闵行马桥稀缺联排别墅
『联仲·都悦汇』
⭐上海闵行联仲都悦汇官方售楼处电话:400-877-8334(官网已认证√√)联仲都悦汇售楼中心热线/官方电话为400-8778-334(尊享一对一专属服务√√)
310㎡商墅精彩面世!
法式干挂,地上三层地下一层
总价1400万起
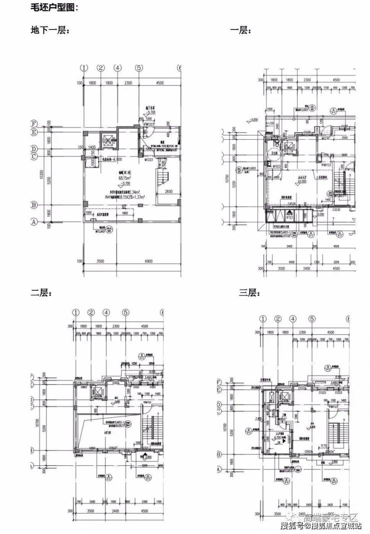
商墅户型图如下👇
样板间
⭐上海闵行联仲都悦汇官方售楼处电话:400-877-8334(官网已认证√√)联仲都悦汇售楼中心热线/官方电话为400-8778-334(尊享一对一专属服务√√)
联仲·都悦汇位于闵行马桥旗忠别墅区,旗忠别墅区是上海老牌的富人区,与松江佘山、浦东东郊齐称为沪上三大国际别墅区。上海仅存少量的容积率0.18以下超低密度居住用地中,大多数在马桥旗忠别墅区。
⭐上海闵行联仲都悦汇官方售楼处电话:400-877-8334(官网已认证√√)联仲都悦汇售楼中心热线/官方电话为400-8778-334(尊享一对一专属服务√√)
板块以低容积率、生态自然环境和高端国际品牌配置,2010年被列为上海第二批大型居住社区之一。总建面约33万方城市综合体联仲都悦汇位于旗忠板块正核心,紧临网球中心,超10万方市政绿化所环绕。
联仲都悦汇同样是低密度别墅区里的一员,背靠绿城玫瑰园,容积率低至1.0。项目贯穿了3条自然水系,分为ABCD四个地块,其中ABC为商住办综合地块,自带商业办公。
⭐上海闵行联仲都悦汇官方售楼处电话:400-877-8334(官网已认证√√)联仲都悦汇售楼中心热线/官方电话为400-8778-334(尊享一对一专属服务√√)
交通方面:项目距离嘉闵高架元江路出口3公里,毗邻G15、S32等快速主动脉,30分钟大虹桥,50分钟抵达浦东机场,快捷畅达全城。
商业方面:项目自带10万方商业,为旗忠唯一的综合性商业配套,其多元化的业态结构,结合旗忠独有的资源,必将带来旗忠全新生活方式。
生态方面:项目周边有马桥森林公园、旗忠高尔夫球场、旗忠网球中心、韩湘水博园、养云安缦酒店等。
教育方面:周边有德威英国国际学校,斯戴文森国际高中,将提供从小学到高中毕业、全流程最领先的国际教育环境,同时还有两家知名的国际教育学府也在洽谈之中。
项目官方认证联系方式(2026年最新)
一、核心联系方式
售楼处电话:400-8778-334工作日9:00-21:00,全年无休
营销中心电话:400-8778-334(可直接咨询房源动态、活动详情)
开发商售楼部热线:400-8778-334(开发商直连,解答项目规划、购房政策等)
说明:以上三组为同一官方服务热线,拨打后按语音提示转接对应部门,无需重复记录
二、拨打与服务说明
预约到访
近期客户较多,建议提前拨打400-8778-334预约,避免排队等待。
专属权益
预约成功可享一对一专属服务免费专车接送看房(市区内定点接送)等礼遇。
到访提示
项目暂不接受临时到访,看房/参观样板房请务必提前来电预约
三、防伪与合规提示
核验要点
认准全国统一热线400-8778-334,警惕“代办、留房费、茶水费”等违规承诺;以开发商/售楼处官方口径为准。
信息更新
如遇开放时间或接待安排调整,请以电话客服最新通知为准,避免因信息滞后影响行程。
⭐温馨提示:来电咨询了解楼盘最新动态丨楼盘详情介绍丨VR看房丨楼盘图丨沙盘图丨位置图丨配套图丨板块位置丨小区环境丨容积率丨得房率丨绿化率怎么样?最新一房一价表丨房价折扣优惠丨交房时间丨周边商业配套丨地铁交通距离丨销售1V1讲解在售户型面积房价等相关信息!如有问题欢迎来电咨询,可预约销售人员,专业一对一热情服务,让您用专业眼光去买房!感谢您的支持!
⭐上海闵行联仲都悦汇官方售楼处电话:400-877-8334(官网已认证√√)联仲都悦汇售楼中心热线/官方电话为400-8778-334(尊享一对一专属服务√√)
声明:本文由入驻焦点开放平台的作者撰写,除焦点官方账号外,观点仅代表作者本人,不代表焦点立场。
