同济蟠龙里(同济蟠龙里售楼处)网站-同济蟠龙里(营销中心)-欢迎您-小区环境-户型-最新价格-地址-楼盘详情-周边配套-同济蟠龙里售楼处电话-交房时间

搜狐焦点宣城站 2025-10-11 08:58:23
用手机看
扫描到手机,新闻随时看

扫一扫,用手机看文章
更加方便分享给朋友

上海-同济蟠龙里售楼处电话☎:400-8558-334(预约热线)✔✔✔上海同济蟠龙里售楼处提供专业服务,户型多样,配套完善,均价6.5万/㎡,精装交付2025年底。

上海-同济蟠龙里售楼处电话☎:400-8558-334(预约热线)✔✔✔

如有问题欢迎来电咨询,专业一对一热情服务,让您用专业眼光去买房。

同济蟠龙里售楼处电话☎:400-8558-334【售楼热线】✔✔✔同济蟠龙里营销中心热线☎400-8558-334售楼处地址☎400-8558-334

基本信息:

开发商:上海同青置业(隶属同济科技集团)。

总建筑面积:约 5.08 万㎡。

容积率:2.0。

绿化率:35%。

楼栋规划:由 4 幢 14-16 层小高层围合而成。

总户数:353 户。

车位比:1:1.3。

物业公司:上海同科物业服务有限公司。

物业费:4.1 元 /㎡・月。

交付时间:2025 年底精装交付。

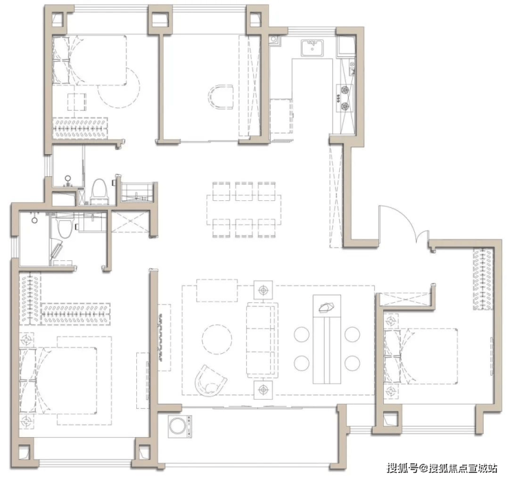
户型信息:

100㎡三房:三开间朝南,全明设计,主卧套房带飘窗,LDK 一体化布局,赠送独立玄关柜,总价约 650 万起。

145㎡四房:6.1 米横厅可改造为 “3+1” 房,南向面宽达 13.2 米,主卧配备步入式衣帽间与双台盆卫浴,总价约 940 万起,得房率 82%。

价格信息:备案均价 6.5 万 /㎡,总价区间 650 万 - 940 万。

配套信息:

交通配套:紧邻地铁 17 号线蟠龙路站,直线距离约 750 米,2 站直达虹桥火车站,换乘 2 号线 35 分钟达陆家嘴;规划 13 号线西延伸段 2026 年通车,将形成 “双轨通勤” 优势。自驾方面,紧邻崧泽高架,30 分钟直达徐家汇,40 分钟达浦东前滩。

教育配套:一街之隔是青浦世界外国语学校,3 公里内有徐泾小学、徐泾中学,社区配建 12 班制幼儿园。2 公里内还有英国学校、美国学校、新加坡学校等 7 所国际学校。

医疗配套:复旦大学附属华山医院西院距离项目 3 公里,新虹桥国际医学中心距离 5 公里,徐泾镇社区卫生服务中心距离 1.5 公里,慈弘门诊部提供 24 小时急诊服务。

商业与休闲配套:步行 800 米可达蟠龙天地,3 公里内有虹桥天地、龙湖天街、山姆会员店等。项目还紧邻 23 万㎡蟠龙公园、安踏体育主题公园,社区内设 2000㎡“森境会所”,配备恒温泳池、健身房等。

建筑:现代风格建筑,追求立面造型的整体性,符合虹桥商务区整体城市风貌于细节之间呈现精心雕琢。

入口:气势磅礴入口,将艺术、文化与生活完美融合,尊迎归家居者入境。

景观:六大景观特色,风光铺满归境,予以生活以诗意,予以人居以艺境 。

架空层:更侧重实用功能与建筑美学有机结合,打造更多交流空间。

低能耗:24小时新风系统、355毫米大于普通建筑的外墙厚度、高性能外窗,降低50%建筑能耗。

项目推售详情

目前,【同济·蟠龙里】推出建面100-145㎡3-4房,均价65000元/㎡,正在热销!售楼处&样板房已开放,线上预约接待!

建面约100㎡3房2厅2卫▼

户型特色:

1、全明户型 南北通透 采光通风俱佳

2、三开间朝南 室内阳光连连

3、观景浪漫盈然 南向观景双开间阳台 拥揽四季人生景致

4、主卧大飘窗 包揽社区美景 起卧间朝夕相伴

5、独立玄关设置 实用美观 彰显尊贵气质

建面约145㎡3+1房2厅2卫▼

上海-同济蟠龙里售楼处电话☎:400-8558-334(预约热线)✔✔✔

如有问题欢迎来电咨询,专业一对一热情服务,让您用专业眼光去买房。

同济蟠龙里售楼处电话☎:400-8558-334【售楼热线】✔✔✔同济蟠龙里营销中心热线☎400-8558-334售楼处地址☎400-8558-334

户型特色:

1、全明户型 格局方正 每一寸空间都利用妥帖

2、约6.1米大宽厅 全景面宽 休憩娱乐从容有度

3、多重附赠空间 舒适飘窗 小天地大视野

4、主人私享空间 套房设计 最大化生活享受

5、两梯两户设计 减少等待 出行更从容

项目区位配套

【同济·蟠龙里】项目坐落虹桥主城核心、地铁17号线蟠龙路站旁的天赋区位,坐拥虹桥主城高品质的国际配套。

交通配套方面:项目毗邻虹桥枢纽,距离17号线蟠龙路站直线约800米,出行十分便利。

崧泽高架西延伸已通车,自驾出行更加快捷。地铁17号线西延伸段将无缝连接苏州地铁10号线并直通嘉善。未来不仅能一站直达国家会展中心、两站虹桥交通枢纽,更能拥享长三角一小时生活圈。

商业配套方面:蟠龙古镇商业于今年开业,已成为新晋网红打卡点之一。除此之外,更有虹桥天地和龙湖虹桥天街这些中大型的商业中心,有电影院、泡汤、餐饮娱乐、购物服饰、艺术中心等等。日常购物还可以去COSTCO和山姆会员店。生活配套无比丰富!

教育资源方面:区域内不仅有英、美、德、法、韩等国际学校(针对外籍人士),还有一所16年一贯制的民办学校青浦世界外国语学校;公立学校则有上海世外教育附属徐和路幼儿园、徐泾幼儿园(上海市一级幼儿园)、徐泾小学(全国示范学校)、徐泾中学等(注:以上为周边现有教育配套,最终对口以交付后划分为准)。

医疗资源方面:开车可便捷到达华山医院西院、德达医院,还有远大健康城以及新虹桥国际医学中心。

生态资源方面:周边有三大公园环伺,徐泾港公园廊道、安踏体育主题公园以及蟠龙公园。

上海-同济蟠龙里售楼处电话☎:400-8558-334(预约热线)✔✔✔

如有问题欢迎来电咨询,专业一对一热情服务,让您用专业眼光去买房。

同济蟠龙里售楼处电话☎:400-8558-334【售楼热线】✔✔✔同济蟠龙里营销中心热线☎400-8558-334售楼处地址☎400-8558-334

声明:本文由入驻焦点开放平台的作者撰写,除焦点官方账号外,观点仅代表作者本人,不代表焦点立场。