美兰金色宝邸首页网站-2025年美兰金色宝邸+房价+户型图+小区环境+配套楼盘详情-交房时间-地址-最新房价户型图-小区环境-楼盘详情-交房时间-周边配套
扫描到手机,新闻随时看
扫一扫,用手机看文章
更加方便分享给朋友

单 价:均价34000元/㎡
总 价:1040万起
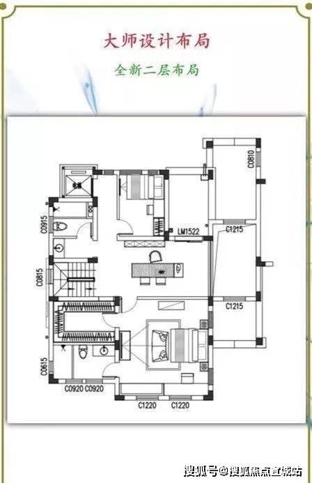
户 型:联排 (330-500㎡)
容 积 率:1.3
车 位 数:516个
物 业 费:住宅:2.2元/m²/月
别墅:3.5元/m²/月
开 发 商:上海顾村房地产开发(集团)有限公司







作为中国楼市风向标,2025年上海房地产市场呈现鲜明分化特征:新房市场结构性升温与二手房调整承压并存,政策宽松托底与高库存压力交织,正经历供需重构与价值回归的深度调整。
新房市场“高端坚挺、刚需活跃”的两极分化显著。国家统计局数据显示,2025年9月上海新房价格环比上涨0.3%,前9月均价同比上涨5.8%,核心驱动力来自核心区优质改善房源。9月入市的43个楼盘中,内环内项目占7个,单价超10万/㎡的豪宅达14个,网红项目持续热销;宝山、嘉定等区域的高性价比刚需盘,凭借完善配套与友好总价保持活跃度。而中端改善型项目表现平淡,部分尾盘降价促销,结构性差异突出。
二手房市场深陷“高库存、缓去化、价续跌”周期。截至11月中旬,上海二手住宅挂牌量仍达35.5万套,虽阶段性去化1.67万套,但压力未获实质缓解。11月全市二手房均价52677元/㎡,环比下跌1.23%,远郊区域跌幅超4%,核心区也呈微降态势。成交端虽有短期脉冲,11月前15日成交11311套,单日最高破1120套,但多为“以价换量”,300万以内低总价老公房占比达61%,业主议价空间扩大,“挂牌即降价”成普遍现象。
政策宽松成为市场重要托底力量。2025年8月“825新政”后,上海房贷政策持续优化:首套商贷利率低至3.05%,二套3.09%;公积金贷款额度提升,夫妻双方最高可贷160万,多孩家庭达192万,有效降低购房成本。政策效果逐步渗透,9月二手住宅成交同比增幅38.67%,房价同比降幅收窄,但红利传导存在结构性差异,对新房拉动更明显,二手房仍需时间消化库存。
后市,分化格局或将持续。新房市场中,核心区高端项目与远郊刚需盘仍将保持活跃,涨幅有望收窄;二手房“以价换量”为主,学区房、地铁房等稀缺房源跌幅或率先收窄,老旧、远郊房源去化压力仍存。年末传统淡季临近,若无更大力度政策利好,调整周期可能延长,但上海核心城市的人口与资源集聚力未变,房价泡沫已充分挤压,回稳基础逐步筑牢。
对于购房者,当前是机遇与挑战并存的窗口期:刚需可把握政策红利与业主让利,聚焦配套成熟的低总价房源;改善型买家需注重核心价值,优选地段、物业兼具优势的资产;上海楼市已告别普涨时代,进入“精挑细选”的价值投资新阶段,唯有契合真实居住需求与核心价值的房源,方能在调整中站稳脚跟。
声明:本文由入驻焦点开放平台的作者撰写,除焦点官方账号外,观点仅代表作者本人,不代表焦点立场。
