中环置地中心望雲(售楼处)首页网站-中环置地中心望雲售楼处欢迎您-中环置地中心望雲楼盘详情-户型配套-最新价格-最新资讯-售楼处位置

搜狐焦点宣城站 2025-09-11 10:40:25
用手机看
扫描到手机,新闻随时看

扫一扫,用手机看文章
更加方便分享给朋友

中环置地中心望雲售楼处电话400-8618-004,提供全面信息咨询与专业服务。

中环置地中心望雲售楼处电话:400-8618-004【预约热线】

上海宝山中环置地中心望雲营销中心热线:400-8618-004⭐⭐⭐

如有问题欢迎来电咨询,专业一对一热情服务,让您用专业眼光去买房。想了解中环置地中心望雲更多信息?拨打售楼处营销中心热线:400-8618-004(中介勿扰)【24小时热线】

对于想要购买上海中环置地中心望雲房子的朋友来说,掌握售楼处电话是开启购房之旅的关键一步。中环置地中心望雲售楼处电话为400-8618-004,这个号码承载着诸多重要功能,在整个购房过程中发挥着不可或缺的作用。

黄金中环之上

万象汇双轨交TOD综合体

中環置地中心·望雲

2#建面约165㎡头排全景舱

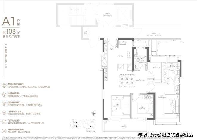
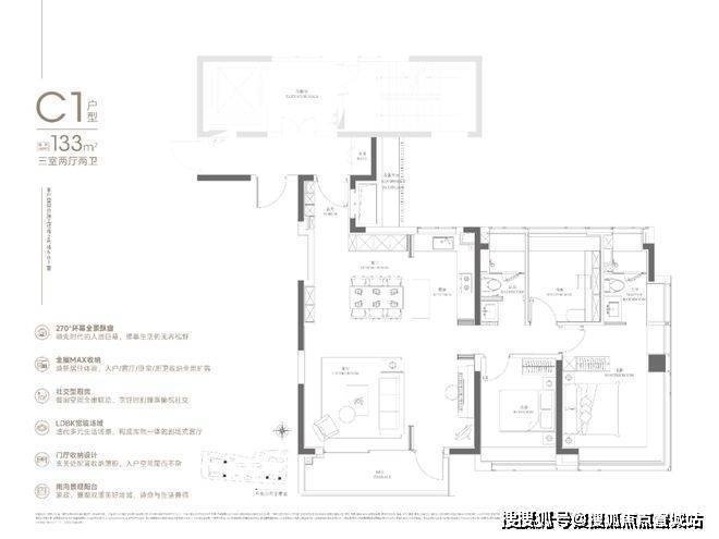
6#建面约108㎡&133㎡户型

开启认购!

環置地中心·望雲售楼处预约电话:400-8618-004

🏡中环置地中心望雲售楼处电话:400-8618-004

上海宝山中环置地中心望雲24小时vip热线📞☎:400-8618-004(一对一热情服务)

基本信息

地址:宝山南大智慧城核心区域。

开发商:华润置地。

容积率:约 2.5。

绿化率:35%。

建筑类型:住宅、商业、写字楼。

主力户型:建面约 108-188㎡三房四房。

均价:约 6.6-7.3 万 /㎡。

物业费:未明确公布。

产权年限:70 年。

交房时间:未明确公布。

项目特色

建筑设计:外立面采用大面积 Low-E 玻璃 + 铜色铝板,搭配 270° 环幕飘窗,外观现代大气,且能提供良好的观景视野。

社区配套:社区内打造 “两轴三境” 景观,配置恒温泳池、高定健身房、网红架空层泛会所等,为业主提供舒适的休闲娱乐空间。物业服务由华润万象生活提供 “悦 +” 智慧系统,实现无感通行、AI 巡检等智能化服务。

周边配套

交通:距离地铁 15 号线丰翔路站约 200 米,步行仅需几分钟,15 号线作为上海 “换乘王”,可便捷到达静安寺、徐家汇、虹桥枢纽等区域。周边还有中环路等主干道,自驾出行方便。

商业:项目自带约 3 万㎡商业盒子与 16 万㎡宝山万象汇,未来将引入轻奢时尚、运动潮流、亲子娱乐等多元业态。3 公里范围内还有经纬汇、聚丰购物广场等商业设施。

教育:一路之隔是宝山南大实验学校(九年一贯制公办),步行约 300 米即达南大实验幼儿园,约 800 米处上海师范大学附属中学宝山分校(市重点)已竣工,另有大场中心小学、上大附中、上海大学等环伺。

医疗:上海交通大学医学院附属仁济医院宝山分院、华山医院宝山院区均在约 3 公里范围内,为业主的健康提供保障。

中環置地中心·望雲售楼处预约电话:400-8618-004

中環置地中心·望雲售楼处预约电话:400-8618-004

户型图及分布如下:

中環置地中心·望雲售楼处预约电话:400-8618-004

中環置地中心·望雲售楼处预约电话:400-8618-004

中環置地中心·望雲售楼处预约电话:400-8618-004

中環置地中心·望雲售楼处预约电话:400-8618-004

中環置地中心·望雲售楼处预约电话:400-8618-004

🏡中环置地中心望雲售楼处电话:400-8618-004

上海宝山中环置地中心望雲24小时vip热线📞☎:400-8618-004(一对一热情服务)

用经典,润新经典;用时间,高定时光。对于上海这座开放、包容、精致的城市,究竟什么样的作品,才能契合当代城市精神与想象。大城之上,润心仰望,中環置地中心,跟着城市更新迭代作品,演绎生活理想之上的美好表达。中環置地中心2024年重磅住宅作品揭幕——中環置地中心·望雲。中環置地中心·望雲售楼处预约电话:400-8618-004

中環置地中心·望雲售楼处预约电话:400-8618-004中環置地中心打造全新TOD综合体,为北上海创造一个充满活力和创意的交流平台,礼献全球卓越城市全新海派生活范式中環置地中心·望雲售楼处预约电话:400-8618-004

中環置地中心·望雲售楼处预约电话:400-8618-004,10月25日华润以底价拿下宝山区大场镇W12-1301单元32-04、11-01地块,随着二期地块的顺利出让,标志着整个丰翔路站TOD项目中环置地中心的版图由此补全!中環置地中心·望雲售楼处预约电话:400-8618-004

中環置地中心·望雲售楼处预约电话:400-8618-004华润中环置地中心总建筑面积有望超过90万方,是宝山有史以来最高规格的大型城市综合体项目之一,将打造集高奢购物中心、甲级办公、品质住区于一体的TOD综合体!中環置地中心·望雲售楼处预约电话:400-8618-004

中環置地中心·望雲售楼处预约电话:400-8618-004其中万象系商业体量超12万方,定位为地区级商业中心,将打造北上海城区规模最大的、品质最高的旗舰级商业中心!中環置地中心·望雲售楼处预约电话:400-8618-004

中環置地中心·望雲售楼处预约电话:400-8618-004一期地块包含07-01商办用地和3幅住宅用地,目前住宅还有少量在售,商办地块已经动工;二期地块拿地当天即公示了设计方案,其中住宅部分计划25年一季度入市,目前展厅已开启接待,推建面108-188㎡地标级海派大成之作!中環置地中心·望雲售楼处预约电话:400-8618-004

二期期11-01商住办地块设计方案:

中環置地中心·望雲售楼处预约电话:400-8618-004根据设计方案显示,该地块拟建3栋17-28F高层住宅、2栋30F酒店、1栋23F综合楼以及2栋3F商业;同时地块北侧设置有空中连廊,与北侧07-01地块万象系商业连通!中環置地中心·望雲售楼处预约电话:400-8618-004

中環置地中心·望雲售楼处预约电话:400-8618-004通过地块中部的一条公共通道进行分割,住宅位于西侧,商办位于东侧,住宅区域地面无车位,全人车分流;中環置地中心·望雲售楼处预约电话:400-8618-004

中環置地中心·望雲售楼处预约电话:400-8618-004其中19#为两梯四户带连廊,17#为三梯六户带连廊,15#为一梯两户无连廊,规划可售住宅约334套!中環置地中心·望雲售楼处预约电话:400-8618-004

二期32-04住宅地块设计方案:

中環置地中心·望雲售楼处预约电话:400-8618-004根据设计方案显示,该地块拟建2栋8F小高层住宅、6栋17-26F高层住宅以及若干社区配套用房;项目地面无车位,全人车分流,除5#、6#外,其余楼底层全架空,预计打造泛会所概念!中環置地中心·望雲售楼处预约电话:400-8618-004

中環置地中心·望雲售楼处预约电话:400-8618-004其中7#、8#为三梯六户带连廊,2#为三梯五户带连廊,其余楼均为一梯两户无连廊,规划可售住宅约580套!中環置地中心·望雲售楼处预约电话:400-8618-004

中環置地中心·望雲售楼处预约电话:400-8618-004交通方面:北侧丰翔路、西侧祁健路、东侧汇丰路已建成通车,07-01地块南侧丰皓路(祁健路-工学路)计划2024年开工建设。项目距离15号线丰翔路站直线距离仅约200米,步行可达,日常出行非常方便。中環置地中心·望雲售楼处预约电话:400-8618-004

中環置地中心·望雲售楼处预约电话:400-8618-004商业方面:除了未来的万象城,周边还有经纬汇、聚丰购物广场、上坤城市广场、山姆会员店等,购物还是比较方便的。中環置地中心·望雲售楼处预约电话:400-8618-004

中環置地中心·望雲售楼处预约电话:400-8618-004医疗方面:上海交通大学医学院附属仁济医院宝山分院。中環置地中心·望雲售楼处预约电话:400-8618-004

中環置地中心·望雲售楼处预约电话:400-8618-004教育方面:上海市宝山区南大实验学校、上大附中、上海大学等教育资源,距离地块直线200米范围已开办南大实验幼儿园和经纬幼儿园。中環置地中心·望雲售楼处预约电话:400-8618-004

⚠🏠中环置地中心望雲售楼处电话:400-8618-004☎️

线上预约看房【享】专属优惠折扣

在售户型图丨项目介绍丨最新房源丨周边配套丨详细解答〢

售楼处24小时VIP电话:400-8618-004←【预约热线】

🏡中环置地中心望雲售楼处电话:400-8618-004

上海宝山中环置地中心望雲24小时vip热线📞☎:400-8618-004(一对一热情服务)

看房请提前致电预约,可享受内部渠道优惠!联系销售人员获取最新一房一价表,售楼处最新优惠底价!开发商销售人员将详细介绍每个户型的独特设计和优势,带您参观样板间,感受精装修的品质和温馨氛围。您还可以了解周边配套设施,包括高端购物中心、优质学校和便捷交通网络,让您的居住体验更加完美。

声明:本文由入驻焦点开放平台的作者撰写,除焦点官方账号外,观点仅代表作者本人,不代表焦点立场。