2025年嘉兴明阳水木槜园网站-水木槜园售楼处电话-水木槜园楼盘详情-交房时间-地址-最新房价户型图-小区环境-楼盘详情-交房时间-周边配套-售楼处电话

搜狐焦点宣城站 2025-09-11 10:13:54
用手机看
扫描到手机,新闻随时看

扫一扫,用手机看文章
更加方便分享给朋友

项目北侧是总投资约300亿元的嘉兴高架快速路科技城出口,快速路的通车大幅拉升嘉兴的城市骨架,待未来各条射线建成后将实现大嘉兴半小时交通圈;项目东南侧是规划中的沪嘉城际铁路曹庄站点,站点上车约30分钟即可到达上…

嘉兴明阳水木槜园

售楼处电话☎:400-8862-334【售楼处预约热线】(一对一热情服务)

楼盘项目全面介绍,本电话为开发商提供线上售楼电话400-8862-334,楼盘项目全面介绍(包含楼盘简介,房价,价格,楼盘地址,户型图,交通规划,备案价,项目配套,楼盘详情,售楼处电话,最新消息,最新详情,周边配套,最新进展等详情咨询)

看房请务必提前致电销售确认时间,只有预约客户才能享受开发商提供的内部优惠以及专属的老客户推荐奖励!

编辑

编辑

水木槜园,位于嘉兴科技城槜李湖中央公园北岸(清华附中西侧约400m)。周边有科技大道、三环东路等立体交通网,出行便捷。

项目北侧是总投资约300亿元的嘉兴高架快速路科技城出口,快速路的通车大幅拉升嘉兴的城市骨架,待未来各条射线建成后将实现大嘉兴半小时交通圈;

项目东南侧是规划中的沪嘉城际铁路曹庄站点,站点上车约30分钟即可到达上海;距离项目约4公里的嘉兴南站也迎来十倍扩建的利好。

编辑

NO.2| 项目简介

【 所属区位 】嘉兴市科技城

【总建筑面积】约77264㎡

【占地面积】约22573㎡

【规划楼栋及总户数】7幢高层(16-18F)共484户;1幢配套用房

【 产权年限 】住宅70年

【 容 积 率 】约2.2

【 绿 化 率 】约30%

【 车 位 数 】车位约594个

编辑

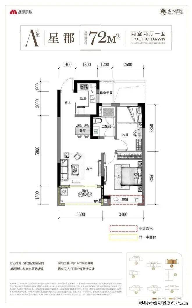
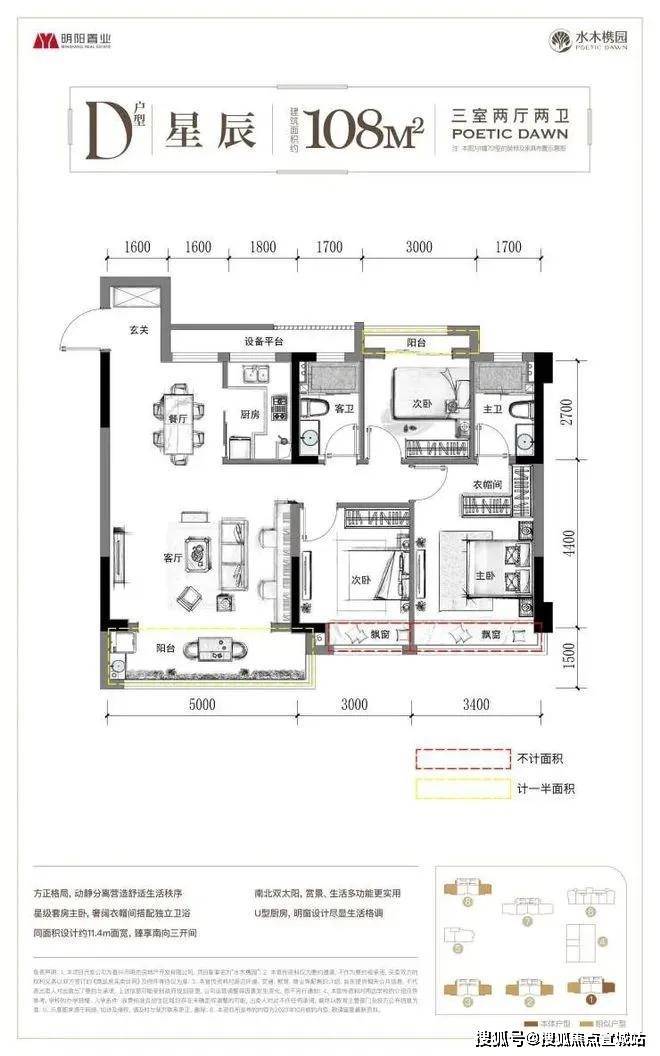
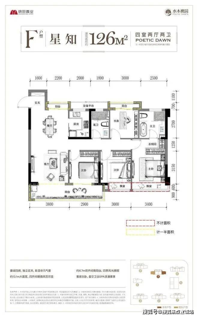
NO.3| 全能户型

水木槜园,建面约72-170㎡全生命周期空间,照顾到每个阶段家庭的生活需求。

方正布局:空间比例协调,可塑性强,空间利用率高

超大采光面:宽阔南向开间,采光优渥,尽享四季阳光款待

嘉兴明阳水木槜园

售楼处电话☎:400-8862-334【售楼处预约热线】

编辑

编辑

编辑

编辑

编辑

编辑

在建筑方面,明阳也很懂嘉兴人对高颜值的追求。

他的外立面流畅简约,大部分山墙都采用浅灰色的保温一体板搭配同色调铝板线条,打造出现代建筑应有的模样。

现在,保温一体板已经成为嘉兴主流豪宅的标配,它不仅耐寒隔热,更能有效防止内部水分累积,寿命更长久。

可以说,未来水木槜园也将成为槜李湖板块的又一颜值担当

编辑

嘉兴明阳水木槜园

售楼处电话☎:400-8862-334【售楼处预约热线】(一对一热情服务)

楼盘项目全面介绍,本电话为开发商提供线上售楼电话400-8862-334,楼盘项目全面介绍(包含楼盘简介,房价,价格,楼盘地址,户型图,交通规划,备案价,项目配套,楼盘详情,售楼处电话,最新消息,最新详情,周边配套,最新进展等详情咨询)

看房请务必提前致电销售确认时间,只有预约客户才能享受开发商提供的内部优惠以及专属的老客户推荐奖励!

声明:本文由入驻焦点开放平台的作者撰写,除焦点官方账号外,观点仅代表作者本人,不代表焦点立场。