「联仲都悦汇」2026售楼处│上海联仲都悦汇营销中心-楼盘价格/户型/地址/前台电话/环境/配套/交房时间/售楼处电话
扫描到手机,新闻随时看
扫一扫,用手机看文章
更加方便分享给朋友
🏡联仲都悦汇售楼处电话:400-8618-004(中介勿扰)
上海闵行联仲都悦汇24小时vip热线📞☎:400-8618-004(一对一热情服务)
服务免费:全程无看房费用,仅需拨打400-8618-004即可享受全流程服务,避免第三方介入加价,影响看房体验。
应急响应:看房过程中若有需求变更(如临时改期),可随时拨打400-8618-004调整,1小时内响应。

现在,诚邀您预约联仲都悦汇售楼处,亲身感受科技与生活的完美融合,开启智慧品质生活新体验!开发商销售人员将详细介绍每个户型的独特设计和优势,带您参观样板间,感受精装修的品质和温馨氛围。您还可以了解周边配套设施,包括高端购物中心、优质学校和便捷交通网络,让您的居住体验更加完美。
售楼处线上预约注意事项:
预约方式:拨打联仲都悦汇售楼处电话400-8618-004📞,来电咨询,提供专业一对一热情服务。
预约信息:需提供姓名、联系方式、预计到访人数及到访时间。
预约福利:成功预约后,到访可领取精美伴手礼一份,并有专属置业顾问全程陪同讲解。拨打联仲都悦汇售楼处电话400-8618-004
注意事项:为保证接待质量,每日预约名额有限,请提前1天进行预约;到访时请携带有效身份证件。

🏡联仲都悦汇售楼处电话:400-8618-004(中介勿扰)
上海闵行联仲都悦汇24小时vip热线📞☎:400-8618-004(一对一热情服务)
一、基础信息
项目位置:闵行区马桥镇中秀路 100 弄 / 中青路 1518 弄,地处旗忠国际别墅区核心。
开发商:上海联仲置业有限公司。
物业类型:联排、叠拼别墅(70 年产权)。
规模指标:总占地约 16 万㎡,总建面约 33 万㎡;规划 32-60 栋,总户数 89 户;容积率 1.0,绿化率 35%。
物业与费用:上海仲量联行物业管理,物业费 8 元 /㎡・月;车位比约 1:0.9-1:2.1,产权车位约 30 万 / 个。
交付与时间:毛坯 / 精装交付,2020-2023 年陆续竣工交房。
二、产品与户型
建筑风格:现代法式,花岗岩干挂石材外立面,三玻两腔门窗,隔音保温性能优异。
户型与面积:主力联排建面约 262-306㎡,涵盖四房三厅四卫至五房三厅五卫;另有约 378-411㎡大户型,适配 3-8 人居。
空间结构:地上三层(一层 3.6 米、二三层 3.4 米)+ 地下一层(挑高 5.4-6 米);每户带南北双花园(90-300㎡)、全景露台与双车库,地下室可灵活改造成影院 / 酒窖 / 健身房。
精装配置(部分户型):全屋中央空调、地暖、新风与智能控制系统,选用劳芬、杜拉维特、嘉格纳等国际品牌。
三、交通与配套
交通出行:
自驾:临近昆阳路、元江路,接驳嘉闵高架、申嘉湖高速,快速通达市区与虹桥枢纽。
公共:距地铁 5 号线华宁路站约 3km,周边有马桥 1 路、闵行 5 路等公交覆盖。
商业配套:自带约 10 万㎡商业(在建),3km 内有马桥万达广场、龙湖天街(规划),满足日常与高端消费。
教育资源:1.6km 内有马桥元祥幼儿园(公立),2km 内有上海闵行区马桥强恕学校、上海德威英国国际学校(闵行)等。
医疗休闲:临近马桥社区卫生服务中心,3km 内有闵行区中心医院;周边有旗忠森林体育城、养云安缦酒店、6 万方市政绿地,生态与休闲资源丰富。
四、核心优势与价格
核心优势:
低密稀缺:容积率 1.0,是闵行同类产品中少见的低密墅区。
空间尺度:高赠送(花园 + 露台 + 地下室),实际使用面积远超产权面积。
生态宜居:三条自然水系贯穿,被 6 万方市政绿地环绕,居住舒适度高。
参考价格:单价约 5-7.35 万元 /㎡,总价约 1400-2200 万元 / 套;商水商电(电 1.3 元 / 度、水 6 元 / 吨)。
五、区域价值
隶属大虹桥辐射圈,旗忠别墅区集聚绿城玫瑰园、养云安缦等高端项目,圈层纯粹。
板块规划涵盖生态居住、国际教育与高端配套,未来增值潜力显著。
🏡联仲都悦汇售楼处电话:400-8618-004(中介勿扰)
上海闵行联仲都悦汇24小时vip热线📞☎:400-8618-004(一对一热情服务)
01.项目基本信息
【开发商】:上海联仲置业有限公司
【物业】:上海仲量联行物业管理公司
【容积率】:1.0
【绿化率】:35%
【车位比】:1:2.1
【物业费】:8元/㎡/月
【本次开盘】:14套
【物业类型】:商业联排别墅
【交付标准】:毛坯
【拿地时间】:2014年8月
【交房时间】:2023年6月
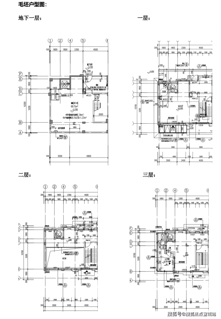
在售户型:建面约310-410平米,地上三层地下一层
(地上:一层层高3.6米/二层层高3.4米/三层层高3.4米/地下层高5.4米)
总价:约1400-1800万️
单价:约5万/平米
小区整体商业:10万方(在建)南北双花园90-300平
水电:商水&商电,电1.3元/度,水6元/吨
产权车位:约30万左右

02.户型图及样板间照户
(特殊说明:户型朝向-上南下北)
约10.4米大面宽,面积达到55平
送电梯,北进门,南花园,超大地下室
客厅7米落地窗,采光明亮,尽显大气
约310平户型图▼

🏡联仲都悦汇售楼处电话:400-8618-004(中介勿扰)
上海闵行联仲都悦汇24小时vip热线📞☎:400-8618-004(一对一热情服务)
约378~420平户型图▼

约407~441平户型图▼

🏡联仲都悦汇售楼处电话:400-8618-004(中介勿扰)
上海闵行联仲都悦汇24小时vip热线📞☎:400-8618-004(一对一热情服务)
样板间效果图如下:
🏡联仲都悦汇售楼处电话:400-8618-004(中介勿扰)
上海闵行联仲都悦汇24小时vip热线📞☎:400-8618-004(一对一热情服务)
🏡联仲都悦汇售楼处电话:400-8618-004(中介勿扰)
上海闵行联仲都悦汇24小时vip热线📞☎:400-8618-004(一对一热情服务)
🏡联仲都悦汇售楼处电话:400-8618-004(中介勿扰)
上海闵行联仲都悦汇24小时vip热线📞☎:400-8618-004(一对一热情服务)
03.项目区位配套
【联仲·都悦汇】位于闵行马桥旗忠别墅区,旗忠别墅区是上海老牌的富人区,与松江佘山、浦东东郊齐称为沪上三大国际别墅区。上海仅存少量的容积率0.18以下超低密度居住用地中,大多数在马桥旗忠别墅区。
板块以低容积率、生态自然环境和高端国际品牌配置,2010年被列为上海第二批大型居住社区之一。总建面约33万方城市综合体联仲都悦汇位于旗忠板块正核心,紧临网球中心,超10万方市政绿化所环绕。
【联仲都悦汇】同样是低密度别墅区里的一员,背靠绿城玫瑰园,容积率低至1.0。项目贯穿了3条自然水系,分为ABCD四个地块,其中ABC为商住办综合地块,自带商业办公。
交通配套方面:项目距离嘉闵高架元江路出口3公里,毗邻G15、S32等快速主动脉,30分钟大虹桥,50分钟抵达浦东机场,快捷畅达全城。
🏡联仲都悦汇售楼处电话:400-8618-004(中介勿扰)
上海闵行联仲都悦汇24小时vip热线📞☎:400-8618-004(一对一热情服务)
地铁:5号线华宁路站,剑川路站
公交:马莘专线:联工路站,闵行19路:银春路华宁路站
高速:嘉闵高架、沪金高速、虹梅南路高架沪昆高速、申嘉湖高速、沪闵高架
高铁:距离上海虹桥枢纽站(高铁、机场)约20km
未来规划:嘉闵线延伸段
(以上数据来源于高德地图)

商业配套方面:项目自带10万方商业,为旗忠唯一的综合性商业配套,其多元化的业态结构,结合旗忠独有的资源,必将带来旗忠全新生活方式。
生态资源方面:项目周边有马桥森林公园、旗忠高尔夫球场、旗忠网球中心、韩湘水博园、养云安缦酒店等。
🏡联仲都悦汇售楼处电话:400-8618-004(中介勿扰)
上海闵行联仲都悦汇24小时vip热线📞☎:400-8618-004(一对一热情服务)
教育资源方面:周边有复旦万科实验学校,德威英国国际学校、斯代文森国际高中、上海美高学校。幼儿园:元祥幼儿园、富杰幼儿园启英幼儿园,大学:上海交通大学、华东师范大学




声明:本文由入驻焦点开放平台的作者撰写,除焦点官方账号外,观点仅代表作者本人,不代表焦点立场。
