外滩源著复兴里 (售楼处) 官方 - 销售中心 - 环境 - 户型 - 价格 -外滩源著复兴里 地址 - 楼盘详情 - 配套 - 电话 - 交房时间 - 配套 - 电话 - 交房时间
扫描到手机,新闻随时看
扫一扫,用手机看文章
更加方便分享给朋友
外滩源著复兴里楼处电话:400-8123-224【预约看房热线】外滩源著复兴里官方售楼处电话:4008123224【售楼处电话/地址】外滩源著复兴里售楼处电话:400-812-3224【开发商认证】

复兴里售楼处电话:400-8123-224
复兴里营销中心热线400-8123-224(官方预约看房热线)
项目一房一价表
复兴里售楼处电话:400-8123-224
复兴里营销中心热线400-8123-224(官方预约看房热线)
复兴里售楼处电话:400-8123-224
复兴里营销中心热线400-8123-224(官方预约看房热线)
项目推售详情
最新消息:杨浦滨江【中建壹品·外滩源著】将加推150-350㎡滨江风貌别墅,地上两层+赠送阁楼+地下室+花园,预估均价约16万/㎡,总价2500万+;另外项目前期高层住宅尚有少许139-145㎡3房在售,总价1488万起!可直接认购!
【中建壹品·外滩源著】在整体项目包含高层/风貌别墅,其中别墅延续原生鱼骨巷弄肌理,打造东西两大风貌组团;拓宽里弄的尺度,梳理优化为东西2大组团,感受移步异景的文化意境。
而高层立面的设计中,以海派建筑的文化作为基底,结合现代的材料及工艺,打造属于外滩源著的独一无二的立面形态。
建筑的色彩以浅色做为主基调,采用石材与局部的涂料工艺,大量的落地玻璃之间,镶嵌了古铜色的金属板材,与风貌建筑的色彩形成呼应。
高颜值立面、高窗墙比、高拓展性,为业主带来更多采光的同时也带来更开阔的视野!
【中建壹品·外滩源著】将重现杨浦滨江工业发展辉煌时期的繁荣景象,以精致细腻的海派风貌别墅搭配典雅端庄的高层海派公寓,展现“中西合璧""鎏金荟萃“的繁华年代。
【中建壹品·外滩源著】项目打造“三轴两门三院三花园”的景观布局。
主入口礼序归家轴上,以海上东方+星池雅宴+鎏金茗院三重空间,重现海派隐奢归家之路,步步尊崇,仪式感拉满。
社区内设有上海风情的“三院”,海派精奢的三花园。精致,优雅的生活氛围随之铺展开来,行走其中人在观景,时光渐慢。
【中建壹品·外滩源著】项目推建面约99-122-143㎡高端住宅,另有150-350㎡臻稀风貌别墅,即将入市。项目户型布局更加方正大气,而且各个户型都有闪光点,为不同需求业主高定个性化生活!


建面约188㎡风貌别墅▼
建面约99㎡3房2厅2卫▼
建面约99㎡3房2厅2卫,非常标准的动静分离、三开间朝南户型。
"分户s墙"设计在分户墙处增设“凹型空间",“冰箱外移"增加厨房操作台面和收纳空间,创造更合理的餐厨桌台动线。
三开间朝南+南向双阳台设计+全卧室带飘窗,为整个户型带去非常出色的采光,同时室内视野的延展性很强。
动静分离则是把功能区与休息区分割,加上主卧套房的设计,让业主有更好的私密性和生活舒适度。
建面约122㎡3房2厅2卫,非常标准的动静分离、三开间朝南户型。
几乎保留了前一个户型所有的优势,但在尺度感、私密性和舒适度上又有突破,不管是采光、视野、通风、私密性,还是实用性都十分出色。
主卧拥有270度环幕观景飘窗,视野和采光都非常好。
建面约139㎡3房两厅两卫
建面约139㎡3房样板间实拍
建面约143㎡3房2厅2卫▼
建面约143㎡4房2厅2卫▼
建面约143㎡户型,分为A/B户型,功能侧重完全不同。
A户型是4房2厅2卫格局,三开间朝南+LDKB一体化+全卧室带飘窗+主卧套房设计+动静分离,居住功能性更强。
B户型是3房2厅2卫格局,三开间朝南+LDKB一体化+奢阔宽厅+全卧室带飘窗+主卧套房设计+动静分离+主卧270度飘窗,舒适度更高。
当今天大多数项目的内卷竞争还停留在石材、奢石和厨电卫浴品牌的选择上时,外滩源著已经卷出了新高度——
项目标准交付有超出同价位项目约100%的收纳空间柜体,更接近拎包入住的省心体验。
今天市面上99%的新房可能装修标准很高,但是实际柜体部分都不是交付标准,后续还得自己花钱加;
这次外滩源著在入户门,标配交付了这一整面的玄关柜空间——
通过示意图我们会看到,一般项目的玄关柜处于成本原因只会做到下图中间位置的冰箱位置就结束,而外滩源著在标配的双开门冰箱(小户型博世或同等品牌、大户型利勃海尔或同等品牌)左侧还额外交付有完整的储物空间:
(收纳空间示意图,交付标准材料和颜色请以官方公告为准)

进到实地约99平样板房,整个玄关柜几乎全部都是皮质缝线包裹,细节拉满;
(样板房实拍图)

打开柜门,内外都是皮革包裹,质感进一步提升:
(样板房实拍图)

进到主卧,L形衣柜同样是交付标准,抽屉部分和半开放水吧台位置全部都是交付标准;在全上海99%的同价位样板房里,卧室衣柜都是非交付的。
(收纳空间示意图,交付标准材料和颜色请以官方公告为准)

在今年上半年大家都在卷人字拼地板的基础上,外滩源著主卧地板升级为柳叶拼接,进一步做了升级:
(样板房实拍图)

看到约143平户型,厨房岛台和上柜都不稀奇,厨房外的半开放式餐边柜和利勃海尔内嵌式同样也作为交付标准附赠,柜体额外提供接近1立方面积的收纳空间:
(收纳空间示意图,交付标准材料和颜色请以官方公告为准)

在约143平户型中,入户玄关收纳区被分为2个部分——一个是进门正对的区域,一个是进门后的步入式区域,两侧都标配有充裕的收纳空间。
(约143平户型示意图)

和约99平户型不同,约143平户型在玄关柜末端还设置有半开放水吧台,丰富生活场景:
(建面约143平户型收纳空间示意图,交付标准材料和颜色请以官方公告为准)

(建面约143平户型收纳空间示意图,交付标准材料和颜色请以官方公告为准)

主卧和约99平户型一样,衣柜更大形成衣帽空间,还交付有半开放式、类似于酒店的迷你吧设计:
(建面约143平户型收纳空间示意图,交付标准材料和颜色请以官方公告为准)

现场样板房照片▼
(样板房实拍图)

收纳空间全部都是来自博洛尼专属定制(或同等品牌),真正做到拎包入住、省去后期定制比价的烦恼;而在收纳空间之外,外滩源著在用料上同样可以称得上卷王——项目厨房台面是全进口的西班牙DEKTON品牌:
(样板房实拍图)

厨房为美诺三件套交付,这和之前浦江之星保持一致;
(样板房实拍图)

冰箱小户型为博世、大户型为利勃海尔,都是双开门设计;
(样板房实拍图)

基础硬件都不差,项目在审美上还做了不少创新——卫生间大量采用奢石和石材,比如主卫柜体墙面就是香格里拉翡翠拼花,龙头是冷热分离式,成本更高:
(样板房实拍图)

次卫则是采用不同风格,墙面统一采用米洞岩板、地面为深咖色瓷砖,黑金配色风格区别于看多了的海派设计,眼前一亮:
(样板房实拍图)

卫生间下柜同样是皮革包裹交付,标配智能马桶盖板:
(样板房实拍图)

入户玄关处的开放格背板采用罕见的白冰玉石材利用人造光源,通过石材的反射和折射,纹理清晰分明;
白冰玉石材的产地众多,但主要集中在矿产资源丰富的地区。其中,新疆、云南和青海是中国境内的重要产地,这些地区的白冰玉石材以其高度透明、洁白无暇等特点而著名。
(样板房实拍图)

143平大户型不仅是270度飘窗,衔接部分更是弧形玻璃、成本更高:
(样板房实拍图)

在内卷的2024年,无论从用料还是审美上,外滩源著都在同级别项目中做出了差异化,能凑齐下面这些标准的产品可以说全上海都没有几家,在千万级可能是唯一一个:
1.投影面积超同价位项目100-200%的收纳柜体空间
2.厨电美诺三件套+博世/利勃海尔双开门冰箱
3.八种不同材质的奢石运用,卫生间地面全铺石材
4.柳叶拼接地板纹路
5.大户型电视背景+书房双背景墙
滨江段未来更具潜力
154街坊项目身处杨浦滨江段,地理位置得天独厚!比起其他滨江地段,杨浦滨江的未来上限或许更高。
根据规划,杨浦滨江沿江板块“一带两区”规划总建筑面积约796万方,独占黄浦江滨江线三分之一,规模2.6倍于前滩,5倍于陆家嘴,丰富的生态系统让人无比期待!

杨浦滨江拥有美团上海科技中心、bilibili全球总部等大型企业总部;区域内还拥有字节跳动上海滨江中心、中交集团上海总部、中国节能·上海首座等企业上海总部落址,预计产业规模达3000亿,导入至少20万人口。

杨浦滨江有公共绿地约48.46公顷,滨江跑道、步道、骑行道现已全线贯通,使此地成为集合品牌策展、网红打卡、运动休闲等功能于一体的文创休闲带。
对于中建壹品154街坊来说,其还有一个很独特的“世外桃源”——复兴岛,作为黄浦江上唯一的内陆岛屿,未来极具充满想象,而占地15.6平方公里的杨浦滨江区域也将以复兴岛为核心,构建起“一岛两翼”的空间格局。
无论是对于上海,还是杨浦来说,复兴岛的开发都是重中之重,从2004年开始,复兴岛国际征集方案吸引了例如美国RTKL、Sasaki、AS&P、ChapmanTaylor等世界知名公司参与。
上海现代城市更新研究院——复兴岛概念方案

项目还有更大的优势就是周边拥有便捷交通路网,12号线爱国路站距离地块仅约400米左右,5站直达北外滩,10站直达南京西路商圈,如此高效便捷的通勤圈也让项目增色不少。
无论是中环、内环亦或即将通车的北横通道东段等主干道都可以快速到达出入口位置,通过这些快速路去浦东张江、金桥也好,还是去大虹桥也好,都可以迅速抵达!
地块南侧即为平凉路第四小学,还有杨浦滨江实验小学、平凉路第三小学、东辽阳中学等教育资源环伺。
医疗配套有杨浦中心医院、定海社区卫生服务中心等;大型商业配套有上海国际时尚中心、宝龙·旭辉广场等。
沿西侧中环往南1公里,可直达黄浦江畔,波阳公园、杨浦公园、杨浦体育馆等均可以满足日常景观休闲需求

中建壹品第二宗地块
4月25日,中建壹品拿下上海新珑坊企业发展有限公司100%股权及其债权,间接获得上海杨浦滨江定海街道154街坊的风貌旧改地块。这也是继中建壹品·浦江之星项目后,中建壹品在杨浦滨江东外滩拿下的第二宗地块。
3月15日,上海联合产权交易所官网发布信息,上海新珑坊企业发展有限公司100%股权及转让方对标的公司375386.9545万元债权正式挂牌转让,其中转让方上海新珑坊企业发展有限公司由上海杨浦城市更新建设发展有限公司(下称“杨浦城更”)100%控股,杨浦成更所属集团为上海地产(集团)有限公司。
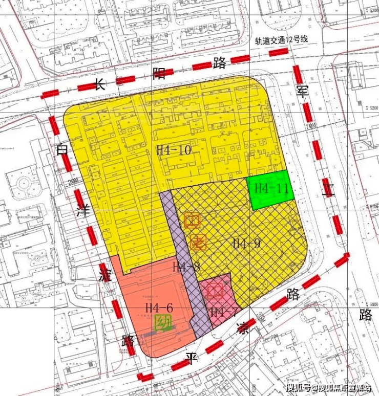
在此之前,2月20日,杨浦城更以375805万元摘得杨浦区定海社区H4-10地块(定海街道154街坊),该地块为风貌旧改地块,土地面积2.59万方,容积率2.0,建筑面积5.18万方,楼面地价为72549元/㎡。
出让信息显示,定海街道154街坊,地块东至军工路(中环)、西至规划白洋淀路、北至长阳路,紧邻地铁12号线爱国路站。

此前,中建壹品·浦江之星以其强大的品牌影响力和实力昭著的产品力,开盘当天为上海递交了一份满分答卷,以劲销49亿的实力佳绩,刷新城市想象!可见中建壹品对豪宅产品的打造深受市场青睐!

一、限购政策
区域差异化限购
外环外:符合条件的居民家庭(含沪籍、非沪籍连续缴纳社保 / 个税满 1 年)购房不限套数,成年单身人士按家庭政策执行
。例如,非沪籍单身人士只需 1 年社保即可在外环外购买多套住房。
外环内:沪籍家庭限购 2 套,非沪籍家庭需连续缴纳社保 / 个税满 3 年限购 1 套
。
特殊区域:临港新片区、嘉定、青浦等六大新城的非沪籍人才购房社保年限可进一步缩短至 1-2 年。
非沪籍购房条件
外环外:社保 / 个税满 1 年,不限套数;外环内:社保 / 个税满 3 年,限购 1 套
。
持上海居住证且积分达标(120 分)的非沪籍家庭,社保满 3 年可享受沪籍同等购房待遇。
单身人士政策成年单身人士(含离异、丧偶)按家庭限购政策执行,即外环外不限购、外环内限购 2 套(沪籍)或 1 套(非沪籍满 3 年社保)
。
二、贷款政策
商业贷款
利率:不再区分首套和二套,由银行根据市场情况定价,但实际执行中首套利率通常为 LPR 减 45 个基点(3.05%),二套为 LPR 减 41 个基点(3.09%)
。
首付比例:首套最低 15%,二套最低 25%;临港新片区等特殊区域二套首付可降至 20%。
贷款额度:银行根据还款能力、信用状况等综合评估,无固定上限。
公积金贷款
额度提升:首套最高可贷 184 万元(购买二星级及以上绿色建筑上浮 15% 至 211.6 万元),多子女家庭首套最高 216 万元;二套最高 149.5 万元
。
首付比例:首套 20%,二套 25%;特殊区域二套首付 20%。
灵活使用:可提取公积金支付首付,且不影响贷款额度计算(“又提又贷”)
。
三、房产税政策
非沪籍家庭优惠
新购首套住房暂免征收房产税;第二套及以上住房按人均 60 平方米免税面积扣除,超出部分按 0.4%-0.6% 税率征收
。
持有上海居住证不满 3 年的购房者,可先缴税,满 3 年后申请退税
。
沪籍家庭政策已有住房基础上新购住房,合并计算家庭全部住房面积,人均超 60 平方米部分征税,税率同上。
人才专项优惠高层次人才、重点产业紧缺人才及居住证满 3 年的非沪籍家庭,新购首套住房免征房产税,二套及以上按人均 60 平方米免税
。
四、普通住房认定标准
面积与价格限制
单套建筑面积≤140 平方米;
实际成交价≤同级别土地住房均价的 1.44 倍,具体为:内环内≤450 万元 / 套,内外环间≤310 万元 / 套,外环外≤230 万元 / 套。
普通住房可享受更低的首付比例(如商贷首套 15%)和税费优惠。
五、其他政策
多子女家庭支持
可增购 1 套住房,公积金贷款额度上浮 20%(首套最高 216 万元),并优先选房。
房产税计算时,多子女家庭可按实际人口增加免税面积
绿色建筑激励购买二星级及以上绿色建筑住房,公积金贷款额度上浮 15%,且可享受优先审批
。
以旧换新补贴符合条件的家庭置换住房可享受最高 500 万元补贴,具体细则由各区制定。
离婚购房政策
离婚后购房不再追溯离异前家庭房产套数,即离异后单身人士可按个人限购政策执行。
银行对离婚一年内购房的审核仍较严格,可能要求提供离婚协议、财产分割证明等。
声明:本文由入驻焦点开放平台的作者撰写,除焦点官方账号外,观点仅代表作者本人,不代表焦点立场。
