【新盘】誉港城(2025年杭州誉港城楼盘详情)新房价格户型/优惠折扣;备案价_交房时间_交付标准_周边商业_学区配套_小区环境_容积率_地铁口距离

搜狐焦点宣城站 2025-09-11 10:51:15
用手机看
扫描到手机,新闻随时看

扫一扫,用手机看文章
更加方便分享给朋友

誉港城售楼处电话:400-8778-334誉港城位于杭州萧山,是亚奥门户,拥有江景和高端住宅,发展潜力大。

誉港城:豪装1.3万对望IFC|真正的亚奥门户!沿江双子塔地标!奥体270-500㎡云端江景现房官邸大宅!

══杭州萧山「誉港城」══

誉港城售楼处电话:400-8778-334

售楼部官方电话|地址位置:400-8778-334【售楼中心官网已认证√√】

温馨提示:如有问题欢迎来电咨询➨提前预约开发商销售一对一热情讲解楼盘详情【享】内部专属房源限时优惠折扣!

杭州誉港城楼盘详情

誉港城售楼处电话:400-8778-334

项目基本信息

开发商:杭州明皓置业有限公司(明华集团旗下)1

位置:萧山区钱江世纪城奥体板块,亚运村门口(金鸡路与利一路交叉口)

物业类型:商业大平层(40年产权)

总户数:260套(1号楼36层,2号楼37层)

容积率:6.0 | 绿化率:30%

交付时间:2023年底(实景现房)

物业公司:高力国际物业 | 物业费:6元/㎡·月(含能耗)

誉港城售楼处电话:400-8778-334

产品设计

主力户型:

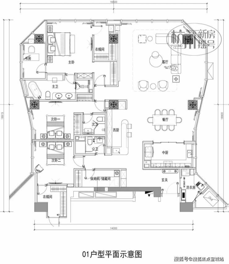
平层:240-270㎡(四房至五房,3.95米层高)

跃层:480-540㎡(顶层复式,赠送露台及空中泳池)

装修标准:约1.3万-1.5万元/㎡(含劳芬卫浴、嘉格纳厨电、大金中央空调等)

梯户比:6梯4户(含1部消防梯)

誉港城售楼处电话:400-8778-334

价格动态

参考均价:6.5万-7.5万元/㎡(总价1200万-2200万)

特惠房源:部分房源总价985万起(需验资预约)

售楼处信息

地址:

主售楼处:萧山区盈丰街道海清路(项目现场)

城市展厅:杭州中心商场北区B1层5

誉港城售楼处电话:400-8778-334

核心配套

交通:

地铁2/6/7号线(盈丰路站500米,奥体站800米)

庆春隧道、博奥隧道快速通达钱江新城

商业:SKP(在建)、奥体印象城、Costco(3公里内)

生态:钱江世纪公园(930亩)、樱花跑道

项目亮点

稀缺性:奥体板块一线江景大平层,通燃气(商业产权罕见)

设计团队:四叶草造型建筑,270°环幕视野9

会所配套:3000㎡云端会所(恒温泳池、私宴厅)

🚩🚩➨杭州萧山誉港城售楼处电话:400-877-8334【官方指定VIP热线】誉港城官方电话/地址☎:400-8778-334(官方看房专线)誉港城售楼中心官方电话:4008778334【开发商授权售楼电话√√】★如有问题欢迎致电「售楼部进行购房咨询」,专业一对一热情服务,让您用专业眼光去买房🏠;

纵观杭州,有两条发展轴,从西湖时代走向钱江时代的轴,以及以钱江为依托的拥江发展轴。亚奥城视界超高层就位于这两个轴线的焦点上,是拥江发展和走向钱塘江时代的制高点,也是璀璨光轴的亚奥门户,将为这座极具想象力的城市带来蓬勃的生命力。

▌杭州亚运村宣传视屏

誉港城售楼处电话:400-8778-334

这条恢弘的钱塘江不仅承载了历史的积淀与荣耀,更肩负未来发展的重责,它既是城市精神的象征,更是城市靓丽的面孔。

这里星垂平原阔,月涌大江流,它是杭州城市地标建筑的精神性源头。作为钱塘江畔亚奥板块前沿阵地,亚奥城与杭州共鉴时代进阶,启幕未来盛世华章。

一条机场高速,快速抵达萧山国际机场;新钱江二桥、钱江三桥,两座跨江大桥连接钱江两岸;庆春路隧道、博奥路隧道与地铁2号线、地铁6号线等地铁线路共同组成多维立体交通网,畅达全城连接世界,这一次,在亚奥板块,让时间追逐人的足迹。

誉港城售楼处电话:400-8778-334

萧山之眼、奥体之芯,在杭州大湾区、拥江发展战略、亚运会三大利好助力下,未来发展潜力无限。项目紧邻莲花碗体育馆、国际博览中心、亚运村商业:周边坐拥三大城市地标:奥体中心、国际博览城、大莲花碗4大综合体:SKP、奥体印象城、钱江印、钱江世纪城公园商业;市公园:钱江世纪城公园、樱花跑道;

誉港城售楼处电话:400-8778-334

亚奥时代,“奥体-世纪城”板块是未来的杭州“陆家嘴”。明华誉港城位于杭州钱江世纪城核心,占据了这个时代的城市至高点,精研大平层产品,以钱塘江星河畔,闪耀三叶恒星的灵感来源,勾勒出当代共鸣的地标生活,形成杭城轴心、时代的风云人物,献上更具国际感和潮流感的生活范本。

项目自带配套设施十分完善,包括会所、恒温泳池和健身房,业主可以在这些设施中享受高品质的健康生活。同时,三面全景落地玻璃设计可以让居民尽情欣赏城市的美景,感受城市的魅力。

誉港城售楼处电话:400-8778-334

明华誉港城大平层项目是杭州奥体板块的一座高端住宅项目,为业主提供高品质的生活和服务。项目火热销售中,届时将成为杭州房市的一大亮点。

誉港城售楼处电话:400-8778-334

园区采用“围合式”布局,融合“钱塘江”水韵灵感,映衬周围自然生态,配合全冠移植的特色名贵树种,营造出环景畅谈式“艺术公园”。精细规划生活配套,以“私家会所”标准打造。内置室内恒温泳池、私人健身会所等多功能奢华空间。

誉港城售楼处电话:400-8778-334

室内设计大师力作鼎配云端艺术生活SLD梁志天先生、I.I.D.L郑仕樑先生两大全球TOP级设计大师天团亲自执笔,融汇潮流审美与先进的居住理念,联袂匠作超越时代的美学作品,钜献与世界对语的艺术品味与生活方式。

誉港城售楼处电话:400-8778-334

全球前50位顶尖设计师之一,连续三次荣膺室内设计奥斯卡奖室内设计上,采用LDK一体化设计,带来极具阔正的空间尺度,并以大面米灰、暖灰为主基调,营造出高级优雅的氛围感,同时通过吊灯、艺术玻璃、酒柜等软装艺术作点缀,将艺术与生活融合,简奢中透出时尚前卫,营造出私密、温暖、现代化、国际化及独特的鼎级舒居体验。

白色的岩板与桃木背景墙让人联想到枫丹白露宫殿的动人秋天。打造生活中的高级感不需要繁琐复杂的浮夸装饰,而是要在空间之内做减法。深色与浅色的交叠呼应之间,让曲线与直线共同构建空间的秩序,匹配房间整体弧形外观,打造内部张弛有度、流畅自如的线条感。

誉港城售楼处电话:400-8778-334

开放的客餐厅打破桎梏,餐桌选择了金属与石材结合的独特设计。在完美的采光环境下,让每一次品尝美食的过程也充满仪式感。水纹座椅呼应房间临江主题,让浮动的波纹化为稳固的装饰,承托住和家人一起分享的美好回忆。

誉港城售楼处电话:400-8778-334

作为与房间主人最紧密链接的空间,主卧设计对于展现其品位、格调、审美等多样精致需求的标准更为具象。真皮包裹的墙面让房间内部的光线变得沉稳而内敛。便是其拥有的全套房设计,并且都带有独立的生活空间,包括主卫及个人衣帽间。保证了家庭成员适合的交流尺度,进可以全家交流,退可以互不干扰。

誉港城售楼处电话:400-8778-334

主卧衣帽间与书房通铺深色实木地板,为整个空间奠定了静谧的色感,营造一种回归纯粹与本真的氛围。次卧往往可以体现更广阔的生活理念,在与整体设计风格和谐一致的基础上跳出主卧的氛围,提供一个不一样的情感空间。时光在这里好像变得绵长,缓慢也表现出隐秘而深邃的价值。

所有的东西都是精装的,包括中央空调,户式中央空调等等。对于家庭来讲,这种生活品质将会大大提升他们的生活享受,实际上和独栋别墅是一致的生活享受。主卧衣帽间与书房通铺深色实木地板,为整个空间奠定了静谧的色感,营造一种回归纯粹与本真的氛围。

誉港城售楼处电话:400-8778-334

●寰幕视野:每户270°超大环幕视野,带来IMAX般观景效果,打造空间的光瀑体验;

●阔绰层高:约3.95米奢阔层高,厚载一城荣耀,匹配高净值人士的气度与胸襟。

户型图

ENTERTITLE

誉港城售楼处电话:400-8778-334

精装意向空间:

甄选GAGGENAU、Dornbracht、LAUFEN、kaldewei等全球尖端品牌,品质匠奢样板,荟聚鎏金艺术,领驭时代审美,重构杭州大平层的空间想象。

誉港城售楼处电话:400-8778-334

项目设施:一楼设有会所餐厅、二楼健身房、恒温泳池,面积:240-270平层,480-540方复式,层高:3.95米,得房率:83%-86%,装标:13000/平米,装修品牌:劳芬、当代、卡德维、嘉格纳等国际一线品牌),物业公司:高力国际物业,精装交付:2023年底前交房,

誉港城官方电话:400-877-8334【官方预约☎】誉港城营销中心热线:400-877-8334(官方预约看房热线)

★来电咨询了解楼盘最新动态、楼盘详情介绍,板块位置、小区环境、容积率,得房率,绿化率怎么样,最新一房一价表;房价折扣优惠、交房时间、周边商业配套;地铁交通距离、在售户型面积等相关信息!

📍★温馨提示:由开发商旗下销售团队全程营销策划,房源信息真实有效!部分图片素材来自网络,如有侵权请联系小编删除,感谢支持!

声明:本文由入驻焦点开放平台的作者撰写,除焦点官方账号外,观点仅代表作者本人,不代表焦点立场。