中建壹品·外滩源著售楼处电话:400-998-9694 中建壹品·外滩源著售楼处电话:400-998-9694中建壹品·外滩源著售楼处位于爱国路地铁站附近,项目包括高层、保障房和别墅,预计9月底开放样板间。项目位于杨浦滨江段,拥有美团上海科技中心、bilibili全球总部等大
杨浦内中环定海街道
12号线爱国路地铁站仅约200米
中建壹品·外滩源著
售楼处电话:400-998-9694
如有问题欢迎来电咨询,来电即可享受买房优惠!
预约来电尊享购房优惠,可预约案场内部销售人员,专业一对一热情服务,让您用专业眼光去买房。
楼盘项目全面介绍,本电话为开发商提供线上售楼处电话,楼盘项目全面介绍(包含楼盘简介,楼盘积分,房价,价格,楼盘地址,户型图,交通规划,备案价,项目配套,楼盘详情,售楼处电话,最新消息,最新详情,周边配套,最新进展等详情咨询)
中建壹品·外滩源著售楼处电话:400-998-9694
首期推建面约99-123-143㎡高层
预计9月底开放样板间

中建壹品·外滩源著售楼处电话:400-998-9694

中建壹品·外滩源著售楼处电话:400-998-9694
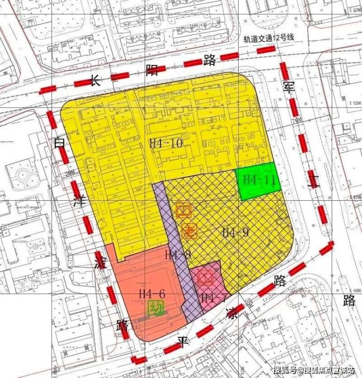
项目建设内容主要为3栋19-20F的高层,两栋为商品房,一栋为保障房或公租房。另外还有26栋2F的风貌别墅及配套设施组成。小区入口处设计了一座下沉庭院,可以说是一个规模合适的低密墅质社区。
中建壹品·外滩源著售楼处电话:400-998-9694
建面约143㎡4房2厅2卫

中建壹品杨浦滨江第二子!
杨浦滨江风貌旧改项目
中建壹品定海街道154街坊项目
「中建壹品·外滩源著」
将推建面约99-123-143㎡高层
预计9月底开放样板间!
风貌别墅产品预计明年入市!
中建壹品·外滩源著售楼处电话:400-998-9694
01
杨浦滨江段,更具潜力!
154街坊项目身处杨浦滨江段,地理位置得天独厚!比起其他滨江地段,杨浦滨江的未来上限或许更高。
根据规划,杨浦滨江沿江板块“一带两区”规划总建筑面积约796万方,独占黄浦江滨江线三分之一,规模2.6倍于前滩,5倍于陆家嘴,丰富的生态系统让人无比期待!

中建壹品·外滩源著售楼处电话:400-998-9694
杨浦滨江拥有美团上海科技中心、bilibili全球总部等大型企业总部;区域内还拥有字节跳动上海滨江中心、中交集团上海总部、中国节能·上海首座等企业上海总部落址,预计产业规模达3000亿,导入至少20万人口。

中建壹品·外滩源著售楼处电话:400-998-9694
杨浦滨江有公共绿地约48.46公顷,滨江跑道、步道、骑行道现已全线贯通,使此地成为集合品牌策展、网红打卡、运动休闲等功能于一体的文创休闲带。

中建壹品·外滩源著售楼处电话:400-998-9694
对于中建壹品154街坊来说,其还有一个很独特的“世外桃源”——复兴岛,作为黄浦江上唯一的内陆岛屿,未来极具充满想象,而占地15.6平方公里的杨浦滨江区域也将以复兴岛为核心,构建起“一岛两翼”的空间格局。

中建壹品·外滩源著售楼处电话:400-998-9694
无论是对于上海,还是杨浦来说,复兴岛的开发都是重中之重,从2004年开始,复兴岛国际征集方案吸引了例如美国RTKL、Sasaki、AS&P、Chapman Taylor等世界知名公司参与。

上海现代城市更新研究院——复兴岛概念方案
项目还有更大的优势就是周边拥有便捷交通路网,12号线爱国路站距离地块仅约400米左右,5站直达北外滩,10站直达南京西路商圈,如此高效便捷的通勤圈也让项目增色不少。

中建壹品·外滩源著售楼处电话:400-998-9694
无论是中环、内环亦或即将通车的北横通道东段等主干道都可以快速到达出入口位置,通过这些快速路去浦东张江、金桥也好,还是去大虹桥也好,都可以迅速抵达!

中建壹品·外滩源著售楼处电话:400-998-9694
地块南侧即为平凉路第四小学,还有杨浦滨江实验小学、平凉路第三小学、东辽阳中学等教育资源环伺。
医疗配套有杨浦中心医院、定海社区卫生服务中心等;大型商业配套有上海国际时尚中心、宝龙·旭辉广场等。
沿西侧中环往南1公里,可直达黄浦江畔,波阳公园、杨浦公园、杨浦体育馆等均可以满足日常景观休闲需求。
02
中建壹品第二宗杨浦滨江地块
4月25日,中建壹品拿下上海新珑坊企业发展有限公司100%股权及其债权,间接获得上海杨浦滨江定海街道154街坊的风貌旧改地块。这也是继中建壹品·浦江之星项目后,中建壹品在杨浦滨江东外滩拿下的第二宗地块。
3月15日,上海联合产权交易所官网发布信息,上海新珑坊企业发展有限公司100%股权及转让方对标的公司375386.9545万元债权正式挂牌转让,其中转让方上海新珑坊企业发展有限公司由上海杨浦城市更新建设发展有限公司(下称“杨浦城更”)100%控股,杨浦成更所属集团为上海地产(集团)有限公司。

中建壹品·外滩源著售楼处电话:400-998-9694
在此之前,2月20日,杨浦城更以375805万元摘得杨浦区定海社区H4-10地块(定海街道154街坊),该地块为风貌旧改地块,土地面积2.59万方,容积率2.0,建筑面积5.18万方,楼面地价为72549元/㎡。

中建壹品·外滩源著售楼处电话:400-998-9694
出让信息显示,定海街道154街坊,地块东至军工路(中环)、西至规划白洋淀路、北至长阳路,紧邻地铁12号线爱国路站。

中建壹品·外滩源著售楼处电话:400-998-9694
此前,中建壹品·浦江之星以其强大的品牌影响力和实力昭著的产品力,开盘当天为上海递交了一份满分答卷,以劲销49亿的实力佳绩,刷新城市想象!可见中建壹品对豪宅产品的打造深受市场青睐!

中建壹品对于浦江之星项目用心打造来看,这块154街坊项目也非常值得期待!
1、什么是房产:房屋产权的简称。
2、什么是地产:是指土地财产。
3、什么是房地产:是房产和地产的总称。
4、什么是房地产业:从事房地产开发、建设、经营、管理以及维修、装饰和服务的综合性产业。
5、什么是房地产开发:是指在依法取得土地使用权的土地上按照使用性质的要求进行基础设施、房屋建筑的活动。
6、什么是土地开发:是将“生地”开发成可供使用的土地。
7、集体土地是指:农村集体所有的土地。
8、征用土地是指:国家为了公共利益的需要,可依照法律规定对集体所有的土地实行征用。
9、什么是土地所有权:是指国家或集体经济组织对国家土地和集体土地依法享有的占有、使用、收益和处分的权能。
10、什么是土地使用权的出让:指国家以协议、招标、拍卖的方式将土地所有权在一定年限内出让给土地使用者,由使用者向国家支付土地使用权出让金的行为。
11、什么是土地使用权转让:是指土地使用者通过出售、交换、赠与和继承的方式将土地使用权再转移的行为。
12、什么是地籍、产籍:是对在房地产调查登记过程产生的各种图表、证件等登记资料,经过整理、加工、分类而形成的图、档、卡、册等资料的总称。
13、生地是指:不具备开发条件的土地。
14、熟地是指:已完成三通一平(水、电、道路,土地平整)或七通一平,具备开发条件的土地。
15、什么是宗地:是地籍的最小单元,是指以权属界线组成的封闭地块。
16、什么是宗地图:是土地使用合同书附图及房地产登记卡附图。它反映一宗地的基本情况。包括:宗地权属界线、界址点位置、宗地内建筑位置与性质、与相邻宗地的关系等。
17、证书附图是指:房地产后面的附图,主要反映房地产情况及房地产所在宗地情况。
18、什么是物业管理:泛指一切有关房地产开发、经营、商品房销售、租赁及售后服务。
19、什么是业主委员会:是在物业管理区域内代表全体业主实施自治管理的组织。是代表
物业全体业主合法权益的社会团体,其合法权益受国家法律保护。
20、业主委员会是如何产生的:由业主大会从全体业主中选举产生。
21、住房补贴是指:国家为职工解决住房问题而给予的补贴资助。
22、房屋的所有权是指:对房屋全面支配的权利。
23、房地产交易的两种主要形式是:地产交易形式与房产交易形式。
24、建筑物是指:人工建造而成的房屋和构筑物。
25、构筑物是指:建筑物中除房屋以外的东西。
26、什么是期房:是指消费者在购买时不具备即买即可入住的商品房。
27、期房是如何介定的:房地产开发商拿到商品房预售许可证开始至取得房地产权证大产证或竣工验收合格可以直接入住使用)为止。
28、什么是预售合同:消费者在购买期房时签定的销售合同。
29、什么是现房:是指消费者在购买时具备即买即可入住的商品房,即开发商已办妥所售的商品房的大产证(或已经竣工验收合格并交付使用)的商品房。
30、什么是毛坯房:房地产商交付屋内只有门框没有门,墙面地面仅做基础处理而未做表面处理的房叫毛坯房。
31、什么是成品房:是指对墙面、天花、门套、地板实行装修。
32、什么是商品房:是指以完全的市场价格向购房者出售的房子。
33、商品房预售是指:在房地产尚未建成以前,房地产的经销商在取得受买人一定数量的定金后,将期房出售给受买人。
34、商品房现售是指:指房地产开发企业将竣工验收合格的商品房出售给买受人。
35、二手房通常指的是:再次进行买卖交易的住房。
36、经济适用房指的是:面向中低收入家庭的普通住宅。
37、例出3种以上的安居房的种类:准成本房、全成本房、全成本微利房和社会微利房。
38、低层住宅的介定:1-3层的住宅。
39、多层住宅的介定:4-6层的住宅。
40、小高层住宅的介定:7-11层的住宅。
41、中高层住宅的介定:12-16层的住宅。
42、高层住宅的介定:16层以上为高层住宅。
43、超高层建筑的介定:总高度超过100米的建筑。
44、商品房的结构是指:房屋主体所使用的施工工艺和用材。
45、钢结构的意思是:承重的主要结构是用钢材料建造的,包括悬索结构。
46、钢混结构的意思是:承重的主要结构是用钢和混凝上建造的。
47、砖木结构的意思是:承重的主要结构是用砖、木材建造的。
48、砖混结构的意思是:主要是砖墙承重,部分是钢盘混凝土承重的结构。
49、框架结构的意思是:以钢筋混凝土浇捣成承重梁柱,再用预制的隔墙分户的结构。
50、开间指的是:一间房屋内一面墙的定位轴线到另一面墙的定位轴线之间的实际距离。
51、进深指的是:一间独立的房屋或一幢居住建筑内从前墙的定位轴线到后墙的定位轴线之间的实际长度。
52、层高指的是:下层地板面或楼板面到上层楼层面之间的距离。
53、净高指的是:下层楼板上表面到上层楼板下表面之间的距离。
54、占地面积指的是:地块的总面积。
55、1亩约等于多少平方米:666.66㎡
56、居住小区总用地指的是什么用地的总和:住宅总用地,公共建筑设施总用地,道路、广场用地、庭院、绿化用地的总和。
57、住宅总用地是指:住宅用地面积的总和。
58、公建总用地是指:小区内部公共建筑占地面积的总和。
59、建筑用地面积的介定:建设用地位置和界线所围合的用地之水平投影面积。
60、建筑基底面积是指:建筑物首层的建筑面积。
61、建筑高度是指:建筑物室外地平面至外墙面顶部的总高度。
62、房屋的基底面积是指:房屋的基底面积是指建筑物底层勒脚以上外围水平投影面积。
63、道路面积是指:小区内宽度大于1.5米道路的面积总和。
64、广场面积是指:停车、回车广场和有铺砌地面的场地面积之和。
65、庭院、绿化面积是指:小区内集中绿化带、小公园,以及公共活动场所等为小区所有居住人员共同使用权的绿化面积的总和。
66、假山、小池算不算庭院、绿化面积:算。
67、人均总占地面积(㎡/人)的计算公式:人均总占地面积=建筑红线内总用地÷本小区规划居住总人数。
68、人均住宅用地面积(㎡/人)的计算公式:人均住宅用地面积=小区内总住宅用地÷本小区规划居住总人数。
69、总建筑面积是指:小区内住宅、公共建筑、人防地下室面积总和。
70、人防地下室算不算在总建筑面积之内:算
71、住宅建筑面积是指:住宅建筑外墙外围线测定的各层平面面积之和。
72、套建筑面积是指:一套房屋的整体面积。
73、套建筑面积的构成是:套内建筑面积和套分摊的公用建筑面积
74、幢(栋)是指:一座独立的,包括不同结构和不同层次的房屋。
75、架空房屋是指:一般为底层架空,以柱子作为承重支撑物的房屋。
76、夹层是指:位于两自然层之间的楼层,指房屋内部空间的局部层次。
77、技术层的意思是:用作水、电、暖、卫生等设备安装的局部层次。
78、技术层层高在多少以上计算层数:2.20米以上的计算层数。
79、结构转换层是指:建筑物某楼层的上部与下部因平面使用功能不同,该楼层上部与下部采用不同结构类型,并通过该楼层进行结构转换,则该楼层称为结构转换层。
80、跃层式住宅是指:一套住宅占两个楼层,由户内楼梯联系上下层,上下两层完全分隔。
81、阁楼是指:利用房屋内的上部空间加建的楼层。
82、阁楼层高在多高以上计算面积:2.20米以上。
83、地上层数是指:即房屋的自然层数,指室内地坪±0.00以上的按楼板结构分层的层高在2.20米以上的楼层数。
84、地上层数用什么数表示:自然数。
85、地下层数是指:采光窗在室外地坪以下的,其室内层高在2.20米以上的地下室的层数。
86、地下层数用什么数表示:负数。
87、房屋总层数是指:房屋的地上层数与地下层数之和。
88、地下层数算不算在房屋总层数之内:算。
89、例出3个以上不算在房屋总层数内的建筑层:假层、夹层、阁楼、装饰性塔楼、楼梯间、水箱间。
90、柱廊是指:有顶盖和支柱,供人通行的建筑物,称为有柱走廊,简称柱廊。
91、骑楼是指:底层为有柱廊房,廊道上方建为楼房的一部分。
92、挑廊是指:指二层以上挑出房屋墙体外,有围护结构,无支柱有顶盖的外走廊。
93、门廊是指:建筑物门前有顶盖,有支柱或围护结构的进出通道。
94、门斗是指:支撑建筑物门前顶盖的是实体墙称为门斗。
95、檐廊是指:房屋檐下方两端有支撑墙体无柱的通道。
96、天棚是指:即天篷,有透明顶篷履盖的屋面。
97、晒台又称什么:露台。
98、露台是指:供人室外活动的上人屋面或底层地面伸出室外的有维护无顶盖的台面。
99、阳台是指:有永久性上盖、有围护结构、有台面、与房屋相连、可以供人活动或利用的房屋附属设施。
100、阳台的分类有:封闭式阳台和半封闭式阳台。
中建壹品·外滩源著
售楼处电话:400-998-9694
如有问题欢迎来电咨询,来电即可享受买房优惠!
预约来电尊享购房优惠,可预约案场内部销售人员,专业一对一热情服务,让您用专业眼光去买房。
楼盘项目全面介绍,本电话为开发商提供线上售楼处电话,楼盘项目全面介绍(包含楼盘简介,楼盘积分,房价,价格,楼盘地址,户型图,交通规划,备案价,项目配套,楼盘详情,售楼处电话,最新消息,最新详情,周边配套,最新进展等详情咨询)
中建壹品·外滩源著售楼处电话:400-998-9694