缦云上海(营销中心)首页网站-缦云上海销售中心(售楼处)-缦云上海楼盘欢迎您-地址-价格-户型-小区环境-楼盘详情-交房时间-周边配套-售楼处电话

搜狐焦点宣城站 2025-09-10 11:02:15
用手机看
扫描到手机,新闻随时看

扫一扫,用手机看文章
更加方便分享给朋友

缦云上海售楼处电话400-8618-004,位于杨浦滨江,主打大平层、会所、园林,总价约2200-4300万,是上海豪宅市场回暖的代表项目。

缦云上海售楼处电话:400-8618-004【预约热线】

上海杨浦缦云上海营销中心热线:400-8618-004⭐⭐⭐

如有问题欢迎来电咨询,专业一对一热情服务,让您用专业眼光去买房。想了解缦云上海更多信息?拨打售楼处营销中心热线:400-8618-004(中介勿扰)【24小时热线】

对于想要购买上海缦云上海房子的朋友来说,掌握售楼处电话是开启购房之旅的关键一步。缦云上海售楼处电话为400-8618-004,这个号码承载着诸多重要功能,在整个购房过程中发挥着不可或缺的作用。

「缦云上海」

杨浦东外滩滨江板块

建面约206-330㎡大平层

一线品牌豪装交付均价12万/㎡

总价约2200-4300万

层高3.3-3.5米

一梯一户大平层+折叠园林

+3000㎡私享会所

收官楼王位置可直接选

样板房提前线上预约

24年上海三批次土拍开拍,其中备受关注的杨浦区平凉社区02H1-01地块,经过60轮的举牌,最终由保利发展斩获!

总价220272万,楼面价88462元/㎡,溢价率约21.18%!

本次出让按价高者得原则确定竞得人,不限地价,不限房价,是上海取消土地限价后的第一个地王!

缦云上海售楼处营销中心:400-8618-004缦云上海售楼处电话/地址☎:400-861-8004(开发商热线)

这波还会利好一下保利琅誉和缦云上海,保利琅誉已开盘,缦云上海即将认购。可以说,杨浦豪宅市场价格的回暖是真实存在的!每卖出4套2000万以上的新房,就有1套来自缦云上海。买到就是赚到!

1合生地产高端缦系产品

该项目是合生在上海首个缦云作品,总建面约80万㎡,是杨浦滨江一线的超级综合体,更是杨浦滨江风貌带上的全新街区,项目集合多业态于一体,未来将建设合生汇商业广场、高端住宅、风貌别墅、五星级酒店、办公写字楼等诸多业态。

缦云上海售楼处营销中心:400-8618-004缦云上海售楼处电话/地址☎:400-861-8004(开发商热线)缦云上海售楼处营销中心:400-8618-004缦云上海售楼处电话/地址☎:400-861-8004(开发商热线)缦云上海售楼处营销中心:400-8618-004缦云上海售楼处电话/地址☎:400-861-8004(开发商热线)缦云上海售楼处营销中心:400-8618-004缦云上海售楼处电话/地址☎:400-861-8004(开发商热线)

入户玄关处的地面,大理石地面搭配金属线条勾勒出玄关地界,归家的氛围感从这个区域就开始了~这还不是重点,玄关座椅背后,是一面皮革包裹的墙面。鞋柜下方做了悬浮处理,同样也是内嵌灯带,这里灯光的角度还会再调整,因为灯光映射在大理石地面上,要显得尽量柔和不刺眼;同时,鞋柜下方可放拖鞋,还能放扫地机器人,便于日常清扫打理。鞋柜的饰面,纹路方向统一,呈现出极强的协调感。缦云上海售楼处营销中心:400-8618-004缦云上海售楼处电话/地址☎:400-861-8004(开发商热线)橱柜作为强功能性的收纳系统,自然少不了操作性能上的考究,吊柜做了升降式的拉篮,以后再也不用爬上高凳拿取了。下方的橱柜则做了转角拉篮,充分利用转角空间,使物品井然有序的同时,轻松方便取放。水槽也是一个大单槽,放得下炒锅汤锅这种大物件~抽拉式龙头,清洗大水槽的时候很方便,360度旋转伸展自如,这款弯管还是硅胶材质,柔软耐用有弹性,还可切换出水模式,出来的水柱也是很柔和细腻不飞溅。厨房玻璃门是上轨道移门,意味着地面部分没有任何轨道,不会有灰尘积攒,炒菜时关上,避免油烟散入室内;平时拉开,可以扩充室内视觉感受。卫浴缦云上海所有户型的所有卫生间里都用了悬浮式的洁具和柜体,确保了下方空间的打扫无死角,对未来的入住带来非常大的便利性!吉博力同层排水技术,静音是最大亮点;特制“水母”地漏,多重防臭防反溢。干净舒适的卫生间,是从空气到水流的全面把控~你们可以看下缦云上海是如何处理卫生间木门的防潮的——卫生间一侧用大理石做踢脚线,这是真正细致入微的巧思!主卧卫生间配备的电热毛巾架简直就是遇到潮冷节气的“福音”,让毛巾、内衣都能够提前加热干燥。缦云上海售楼处营销中心:400-8618-004缦云上海售楼处电话/地址☎:400-861-8004(开发商热线)层高对于缦云上海的纯大宅社区定位,能买这样产品的购房者会非常在意空间感。缦云上海全部户型层高约3.3米,室内所有空间的门都做了通顶设计,更阔绰的居室空间,将生活格局有效放大,通风、采光和观景体验的全方位提升!弧形元素缦云上海样板间里随处可见柔和的圆弧修饰,特别是柜体、墙体包边的圆弧转角,在进出各个空间时,减少磕碰的风险,对于有孩子和老人的家庭来说,是非常实用的友好设计。缦云上海售楼处营销中心:400-8618-004缦云上海售楼处电话/地址☎:400-861-8004(开发商热线)而且,门套做了弧形设计后,还叠加了金属线与墙纸做了分割,加强隔断界限感,提升室内家居精致度~比起中规中矩的直线,弧形施工工艺更复杂、造价更高,却多了几分灵动轻盈!这种弧形的元素不只是在样板间里,在售楼处也能经常看到,比如电梯厅。

区域内唯一纯粹大户型社区,代表更纯粹的业主圈层

建面约206-330㎡大平层收官发售均价约12万/㎡可直接选,都还是准一梯一户的设计。缦云上海售楼处营销中心:400-8618-004缦云上海售楼处电话/地址☎:400-861-8004(开发商热线)

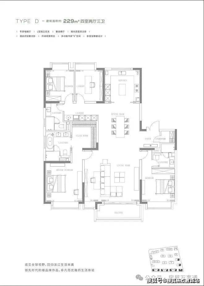
户型图如下

缦云上海售楼处营销中心:400-8618-004缦云上海售楼处电话/地址☎:400-861-8004(开发商热线)

缦云上海售楼处营销中心:400-8618-004缦云上海售楼处电话/地址☎:400-861-8004(开发商热线)

缦云上海的装修配置,也是远超当下市场平均水平:新风、地暖和中央空调标配三大件,瑞士顶级卫浴品牌Laufen劳芬、德国高端洁具巨头Dornbracht当代、德国知名品牌美诺、还有博世等等,部分大户型还有定制衣柜!

缦云上海售楼处营销中心:400-8618-004缦云上海售楼处电话/地址☎:400-861-8004(开发商热线)

样板间实景!

样板间实拍图

样板间实拍图

样板间实拍图

缦云上海售楼处营销中心:400-8618-004缦云上海售楼处电话/地址☎:400-861-8004(开发商热线)

样板间实拍图

顶级卫浴品牌Laufen劳芬(部分)、Geberit吉博力同层排水系统、德国高端洁具巨头Dornbracht当代、意大利制造VenetaCucine威乃达橱柜,还有新风、地暖、中央空调都是世界知名品牌......

高端的家居品牌,是每一个开发商愿意花钱就能做的。不过,光说用了多少大牌,完全不足以体现合生·缦系的诚意!细节才是真正体现产品力、区别于其他千万级项目的关键所在~

大门是约1.3米宽的复合子母门,厚重的材质给人以安全感和仪式感!

缦云上海售楼处营销中心:400-8618-004缦云上海售楼处电话/地址☎:400-861-8004(开发商热线)

惠房宝已经想象出业主未来的归家场景:坐在此处换鞋,往后随意倚靠,触碰到的不是冰冷的墙面,而是质感柔软的皮革,卸下一日疲惫与风尘再步入双厅......

缦云上海售楼处营销中心:400-8618-004缦云上海售楼处电话/地址☎:400-861-8004(开发商热线)

这种细节的打磨,才是最能体现出一个项目对于高端居住人群品味的把握、对于生活的理解......而品质感正是从如此细小的地方中流露出!

东外滩顶豪『缦云上海』约206-330㎡奢阔匠居!均价12.1万/㎡!准现房!

厨房厨房灶台并不像很多项目做了“三眼灶”、“四眼灶”,其实灶眼多反而放不下中式的大炒锅;缦云上海选用的这款BOSCH博世炉灶,液晶面板可定时,这样煲汤的时候就无需盯着;钢化玻璃材质,更易清理,油渍不容易渗入。缦云上海售楼处营销中心:400-8618-004缦云上海售楼处电话/地址☎:400-861-8004(开发商热线)

缦云上海售楼处营销中心:400-8618-004缦云上海售楼处电话/地址☎:400-861-8004(开发商热线)

缦云上海售楼处营销中心:400-8618-004缦云上海售楼处电话/地址☎:400-861-8004(开发商热线)

甚至于抬头所见,吊顶都做了多处圆弧形处理——只是为了不过份尖锐,柔化边缘,让视觉看上去多有变化。弧线的协调往往能带来一种独特的、百看不腻的美感。

缦云上海售楼处营销中心:400-8618-004缦云上海售楼处电话/地址☎:400-861-8004(开发商热线)

2国际大师联袂美学新作

建筑立面主要材质为铝板,一期层高约3.3米,超越市面主流尺度,放大居住舒适度。景观设计更向往自然纯粹的优雅和从容闲适的内心,营造七大主题景观带。

缦云上海售楼处营销中心:400-8618-004缦云上海售楼处电话/地址☎:400-861-8004(开发商热线)

室内设计,秉承摩登东方的理念,设计以人、生活为中心,从空间本体和情感层面都回归生活,270度环幕采光,开放式会客厅设计,兼具尺度感与功能性。

建筑设计:HZS滙张思,曾荣获2021年GoldNuggetAwards金块奖;

景观设计:水石景观,全国景观十强公司,曾荣获2019年美国ASLA综合类荣誉大奖,代表案例:三亚大东海湾JW万豪酒店

室内设计:无间设计,由著名设计师吴滨BenWu创立,坚持以中国传统文化为土壤,以现代主义手法,赋予东方以摩登,代表案例:上海翠湖五集、上海汤臣一品。缦云上海售楼处营销中心:400-8618-004缦云上海售楼处电话/地址☎:400-861-8004(开发商热线)

独创折叠理念同频全球建筑理念

YUNĒ缦云以超前眼界洞察时代趋势,开创性地提出“折叠理念”,与普利兹克奖获奖理念同步,以更便捷、更智慧、更简约的方式整合实现,再一次实现缦系产品升维。

折叠园林垂直自然秘境

科学布局多重体验空间,将自然季色折叠进生活,达到外部景观资源最优化的同时,平衡活动功能与视觉审美。

七大主题花园:针对全龄段,设置尊享归家入口、礼仪花园、林下花境、感官轻氧花园、康养花园、童趣乐园、流水花园等,以跌水水景、儿童滑梯、艺术跳泉、按摩步道、林荫树阵等组合,覆盖全龄人群的景观体验,让生活更有温度,打造自然宁静的生活方式。

缦云上海售楼处营销中心:400-8618-004缦云上海售楼处电话/地址☎:400-861-8004(开发商热线)

折叠N+1会所重构生活方式

创新设计“折叠N+1会所”包括一个约3000㎡的私享会所及每栋楼宇下面的泛会所。

私享会所包括健身中心、室内恒温泳池等

泛会所包括共享办公、茶室、自助水吧、儿童游乐区、四点半学堂等

缦云上海售楼处营销中心:400-8618-004缦云上海售楼处电话/地址☎:400-861-8004(开发商热线)

3“已经准现房即将交付

作为上海销冠红盘和杨浦滨江顶流品质盘,缦云上海从去年8月到现在,严控工程节点,按照缦系高标准要求施工,已播出7期工程进度。在主体建筑材质上,甄选顶级铝材立面,采用通过数控切割、精度弯弧、手工焊接、打磨抛光、七重清洁、烘干喷漆、高温定型等十余步精细工艺,具有良好的耐候性和维护性,确保建筑外观持久如新。在立面色调上,以中灰色和深灰色为主旋律,采用大面玻璃结合简洁的直线条,竖向线条突出立体感,让视觉上更具挺拔力量感;大面积无框开敞阳台玻璃的设计,搭配香槟色金属边框,在阳光下,白色温润质感和香槟金色光泽交相辉映,塑造轻盈而精致的高端现代住宅形象。缦云上海售楼处营销中心:400-8618-004缦云上海售楼处电话/地址☎:400-861-8004(开发商热线)

目前,缦云上海在售三期主结构完成约80%,这建造速度与隔壁bilibili总部、美团科技中心5天一层的施工速度,都体现着杨浦滨江的发展决心和潜力。在刚刚举办的杨浦滨江首届峰会上,滨江集团总经理朱总进一步表示,加快建设,26年头部企业落成,城市界面焕然一新!

杨浦滨江正在加速的兑现中,中交集团上海总部5月底已经完成竣工验收,中节能集团上海首座预计24年11月竣工交付,据悉美团上海科技中心已于今年1月分完成首吊,预计2025年12月31日竣工。总投资约198亿的哔哩哔哩上海总部已开建,预计2026年投入使用。

缦云上海售楼处营销中心:400-8618-004缦云上海售楼处电话/地址☎:400-861-8004(开发商热线)

这一座座超级巨无霸建筑的即将峻工与使用,意味着杨浦滨江不再是纸上谈兵的想象,而即将成为现实;政府着力推进杨浦滨江成为“世界级城市会客厅”的愿望也即将实现,未来的杨浦滨江将成为上海新的经济中心,也成功推动了上海滨江迈入杨浦滨江时代的步伐。上海滨江下一个五年,就看杨浦滨江!

⚠🏠缦云上海售楼处电话:400-8618-004☎️

线上预约看房【享】专属优惠折扣

在售户型图丨项目介绍丨最新房源丨周边配套丨详细解答〢

售楼处24小时VIP电话:400-8618-004←【预约热线】

🏡缦云上海售楼处电话:400-8618-004

上海杨浦缦云上海24小时vip热线📞☎:400-8618-004(一对一热情服务)

看房请提前致电预约,可享受内部渠道优惠!联系销售人员获取最新一房一价表,售楼处最新优惠底价!开发商销售人员将详细介绍每个户型的独特设计和优势,带您参观样板间,感受精装修的品质和温馨氛围。您还可以了解周边配套设施,包括高端购物中心、优质学校和便捷交通网络,让您的居住体验更加完美。

声明:本文由入驻焦点开放平台的作者撰写,除焦点官方账号外,观点仅代表作者本人,不代表焦点立场。