越秀·外滩樾项目简介-上海虹口(越秀·外滩樾)楼盘详情-房价-户型-容积率-小区环境
扫描到手机,新闻随时看
扫一扫,用手机看文章
更加方便分享给朋友
总价4300万起!虹口北外滩「越秀·外滩樾」直接认购!推出238-338㎡海派风貌院墅!2500㎡“樾”心会所!附线上预约通道!
══上海虹口北外滩「越秀·外滩樾」══
⭐营销中心官方售楼服务热线☎400 877 8334
越秀·外滩樾位于虹口区梧州路235弄,在售238-338㎡风貌别墅,总价4000万-8000万/套,容积率1.3低密社区。近新建路隧道(360米)、北横通道(150米),毗邻北外滩黄金三角商圈与陆家嘴金融中心;
📍📍上海虹口越秀·外滩樾售楼处电话400-877-8334「预约看房专线」越秀·外滩樾售楼处地址/官方电话400-8778-334√√(官网已认证)
⭐温馨提示:如有问题欢迎来电咨询24小时热线,可对接专属销售顾问一对一热情服务,让您用专业眼光去买房,提前来电预约【享】内部专属优惠折扣!
📍📍上海虹口越秀·外滩樾售楼处电话400-877-8334「预约看房专线」越秀·外滩樾售楼处地址/官方电话400-8778-334√√(官网已认证)
📍📍上海虹口越秀·外滩樾售楼处电话400-877-8334「预约看房专线」越秀·外滩樾售楼处地址/官方电话400-8778-334√√(官网已认证)
2023年10月,虹口区嘉兴路街道hk270B-04地块历史风貌保护项目实施主体遴选结果公示,最终确定由上海市漕河泾新兴技术开发区发展总公司(临港集团)及杭州燚乐实业投资有限公司(越秀)联合开发。

📍📍上海虹口越秀·外滩樾售楼处电话400-877-8334「预约看房专线」越秀·外滩樾售楼处地址/官方电话400-8778-334√√(官网已认证)
「越秀·外滩樾」地块四至范围,东至:梧州路,隔壁是中皇广场;西至:hk270B-02,隔壁就是1933老场坊;南至:周家嘴路北至:柘皋路。
📍📍上海虹口越秀·外滩樾售楼处电话400-877-8334「预约看房专线」越秀·外滩樾售楼处地址/官方电话400-8778-334√√(官网已认证)
日前,上海市规划和自然资源局对上海漕越经济发展有限公司虹口区嘉兴街道hk270b-04地块历史风貌保护项目进行了设计方案公示,从规划方案上看,项目未来将呈现49套低密风貌里弄住宅,面积约235-338㎡。
📍📍上海虹口越秀·外滩樾售楼处电话400-877-8334「预约看房专线」越秀·外滩樾售楼处地址/官方电话400-8778-334√√(官网已认证)
越秀外滩樾直线距离外滩源仅约1.2公里,直线距离北外滩商圈约500米,直线距离瑞虹商圈约900米,直线距离陆家嘴商圈约1500米!
📍📍上海虹口越秀·外滩樾售楼处电话400-877-8334「预约看房专线」越秀·外滩樾售楼处地址/官方电话400-8778-334√√(官网已认证)
巷弄新生:内环内难得双拼别墅,超越风貌建筑的尺度感;
建筑新生:创新风貌规制,致微而筑的建筑腔调赏新;
美学新生:转译远东第一豪宅立面美学,收藏名门望族生活;
材质新生:豪宅同款奢砖、大面积奢石运用,定制家族排场;
📍📍上海虹口越秀·外滩樾售楼处电话400-877-8334「预约看房专线」越秀·外滩樾售楼处地址/官方电话400-8778-334√√(官网已认证)
在上海,外滩从来不只是地标,更是一种身份。它是百年城市肌理的精神符号,是财富、文化品味的最终归宿。真正的顶级资产,从不属于个别人的价值认同,而属于一群人、一个阶层、甚至一座城市的共同价值共识。
2025年4月,在上海内环5000万+风貌别墅赛道上,越秀外滩樾首批房源推出仅半月便火速售罄,市场反响之热烈,堪称现象级。这不是偶然,而是顶层资源+创新产品力共振之下,一次必然的兑现!

📍📍上海虹口越秀·外滩樾售楼处电话400-877-8334「预约看房专线」越秀·外滩樾售楼处地址/官方电话400-8778-334√√(官网已认证)
上海豪宅圈的“孤品”资产!直线外滩约1.2公里+北外滩核心,越秀·外滩樾双拼、三拼别墅震撼登场!建面约238-338㎡海派院墅;总价在4300-9000w,超大附赠空间:花园露台及6.15挑空层空间,珍藏49席!约2500㎡“樾”心会所!
⬇️专业销售一对一咨询⬇️
售楼处实景曝光:

⬇️专业销售一对一咨询⬇️
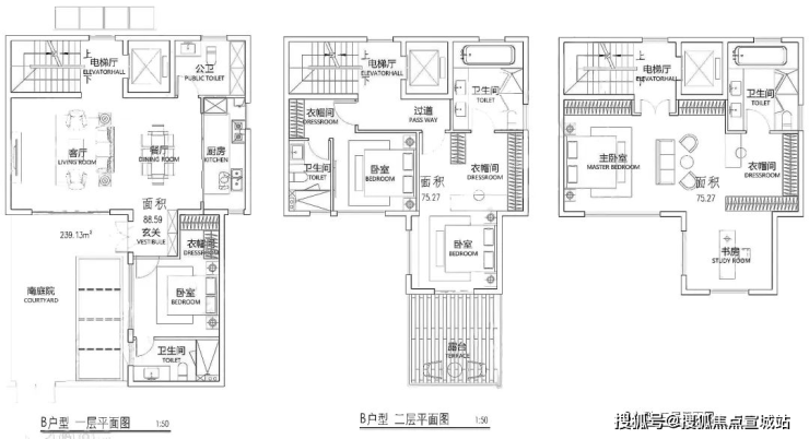
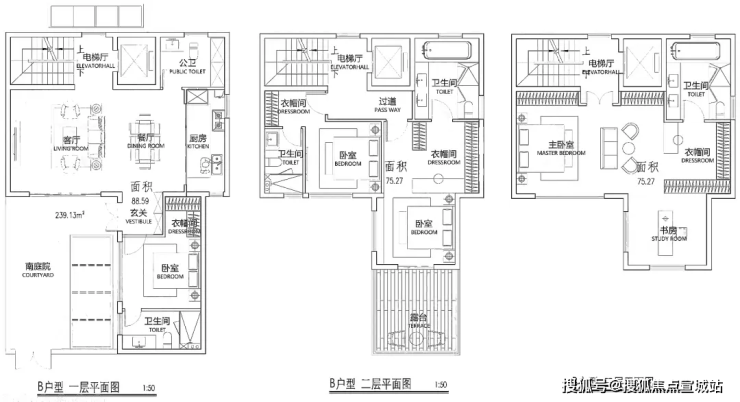
户型图如下:(过程稿仅供参考,最终以实际为准)
236.25㎡A户型:

239.13㎡B户型:

250.89㎡B-3户型:
C户型:
291.42㎡D户型

越秀外滩樾规划了部分双拼,三拼别墅产品,比市面常见的风貌别墅具有更为私密的居住体验。
📍📍上海虹口越秀·外滩樾售楼处电话400-877-8334「预约看房专线」越秀·外滩樾售楼处地址/官方电话400-8778-334√√(官网已认证)
项目地上3层,自带庭院。一楼的庭院,将是你栽花听雨的江南;三楼的露台,将是你仰望星空的避风港,在越秀外滩樾,自然将不是风景,而是生活本身。
项目最高约6.15米的地下挑高空间,可作私人艺廊、品茗禅室,或是一场永不散场的沙龙。另外,项目的弧形玻璃引天光入画,落地窗将四季裁成框景。一扇窗,一面墙,皆是与世界的温柔对话。此刻,上海不再是远方,而是你窗前的晨昏,院里的四季。
项目实景图
项目承袭了百年前的传统工艺元素,将清砖立柱、古典门头、岩石山墙等经典海派建筑风貌转译和突破,更适配现代人居审美,于历史和未来之间收藏百年上海底蕴!

项目实景图
📍📍上海虹口越秀·外滩樾售楼处电话400-877-8334「预约看房专线」越秀·外滩樾售楼处地址/官方电话400-8778-334√√(官网已认证)
保留历史肌理的老砖为基底,项目们以现代陶艺重译传统,研发陶砖。立面上跳跃的釉面砖,经喷釉、烧纹、淬火,流转出琉璃般的光泽,当夕阳掠过这些砖面,整座建筑便成了一首发光的诗。
📍📍上海虹口越秀·外滩樾售楼处电话400-877-8334「预约看房专线」越秀·外滩樾售楼处地址/官方电话400-8778-334√√(官网已认证)
项目实景图
公区:首开先河的山水庭院,私密尊贵的会所!越秀外滩樾,其精心打造的充满禅意的山水庭院瞬间抓住了小胖君的眼球。
项目实景图
项目实景图

📍📍上海虹口越秀·外滩樾售楼处电话400-877-8334「预约看房专线」越秀·外滩樾售楼处地址/官方电话400-8778-334√√(官网已认证)
突破风貌别墅公区狭小的限制,越秀外滩樾做了一个地上地下合计建面约2500㎡会所及泛会所空间,提供了会客、私宴、泳池、健身等多维休闲社交功能。
更通过堆坡造景和下沉庭院,以山水隐奢之境,塑造沉浸式大师美学体验。一石一木,一水一庭,尽是自然落笔。晨露未晞时,薄雾轻笼庭院;暮色四合处,斜阳漫染白墙。所谓大隐于市,不过如此!
项目实景图
项目实景图📍📍上海虹口越秀·外滩樾售楼处电话400-877-8334「预约看房专线」越秀·外滩樾售楼处地址/官方电话400-8778-334√√(官网已认证)
在越秀外滩樾,项目以大地为宣纸用15米高差,临摹了一幅立体的《溪山行旅图》。当晨光掠过整座山水庭院,便活成了会呼吸的宋代画卷,每一处转折都在诉说"外师造化,中得心源"的东方营造哲学!
项目实景图
📍📍上海虹口越秀·外滩樾售楼处电话400-877-8334「预约看房专线」越秀·外滩樾售楼处地址/官方电话400-8778-334√√(官网已认证)
项目实景图
在垂直的山水长卷中,一棵8米子母松凌空而立,虬枝如墨针叶含翠,将家族传承的意象写意成永恒的风景!
项目实景图
项目实景图
📍📍上海虹口越秀·外滩樾售楼处电话400-877-8334「预约看房专线」越秀·外滩樾售楼处地址/官方电话400-8778-334√√(官网已认证)
山水庭院之下就是会所,深入内部,则是一座设计灵感来自于罗马浴场的豪华泳池,天光破顶而下,一边是宏伟而精致的欧陆风情,一边是溪山行旅图的东方意韵,当你在池中游弋时身体划过的是一部浓缩的东西方文明史。
所谓禅意,不过是在快时代里为您留住慢的资格。据悉项目示范区已经实景呈现,如果你也想偷得浮生半日闲,欢迎到现场参观!

项目实景图
资料显示,该地块为Rr1类别的别墅用地,容积率1.3,限高15米,建筑面积14027平米,地块内需要保留的历史建筑规模约4400平方米,均为里弄建筑。📍📍上海虹口越秀·外滩樾售楼处电话400-877-8334「预约看房专线」越秀·外滩樾售楼处地址/官方电话400-8778-334√√(官网已认证)
📍📍上海虹口越秀·外滩樾售楼处电话400-877-8334「预约看房专线」越秀·外滩樾售楼处地址/官方电话400-8778-334√√(官网已认证)
虹口区嘉兴路街道hk270B-04地块历史风貌保护项目概况如下:
1、四至范围:东至梧州路、南至周家嘴路、西至hk270B-02地块、北至柘皋路
2、土地面积:10790平方米
3、出让年限:70年
4、规划用地性质:一类住宅组团用地
5、容积率:1.3
6、建筑面积:14027平方米
7、起始总价:17.3亿
8、楼板价:123333元/㎡
📍📍上海虹口越秀·外滩樾售楼处电话400-877-8334「预约看房专线」越秀·外滩樾售楼处地址/官方电话400-8778-334√√(官网已认证)
复刻百年前的高端工艺元素,让海派造诣世纪传承。清砖立柱、古典门头、封闭门窗、岩石山墙等经典海派建筑风貌转译,于历史和未来之间收藏百年上海。
(*本图片仅为方案过程讨论稿,并非交付标准。)
📍📍上海虹口越秀·外滩樾售楼处电话400-877-8334「预约看房专线」越秀·外滩樾售楼处地址/官方电话400-8778-334√√(官网已认证)
【41载越秀|万亿级开发商与上海共卓越】国内资产规模最大的地方驻港企业之一越秀地产,中国第一代商品房缔造者。41年越秀,30城300+项目,服务超100万业主;2023年销售额行业排名12,2023年TOP20销售业绩增长率最高房企。2024中国房企综合实力TOP9。入席北外滩世界会客厅,与上海共生长。(数据来源:克而瑞地产研究发布榜单《2023年1-12月.中国房地产企业销售榜top200》)
📍📍上海虹口越秀·外滩樾售楼处电话400-877-8334「预约看房专线」越秀·外滩樾售楼处地址/官方电话400-8778-334√√(官网已认证)
【一座码头启航外滩百年世界史】项目所在地北外滩,是百年前上海的“下海”地。作为上海开埠后第一座码头的诞生地,北外滩率先“开眼看世界”,海纳万国文化风潮,众多此后影响中国的创举在此诞生,是上海最早的“十里洋场”
(*示意图,图片来源于网络)
📍📍上海虹口越秀·外滩樾售楼处电话400-877-8334「预约看房专线」越秀·外滩樾售楼处地址/官方电话400-8778-334√√(官网已认证)
【一江一河再立世界上海新传】傲立“一江一河”交汇处(直线距离约1.1KM),未来将打造成为彰显上海城市核心竞争力的黄金水岸和具有国际影响力的世界级城市会客厅,出入之间,相逢城市高阶未来
(*示意图,图片来源于网络)
📍📍上海虹口越秀·外滩樾售楼处电话400-877-8334「预约看房专线」越秀·外滩樾售楼处地址/官方电话400-8778-334√√(官网已认证)
【北外滩面向世界的上海新封面】北外滩,与外滩、陆家嘴并称为上海的“黄金三角”。将以2座陆家嘴的商务体量规划,新天地2.0生活圈打造,成为上海跃升世界舞台的“中心发力”新引擎
(*示意图,图片来源于网络)
📍📍上海虹口越秀·外滩樾售楼处电话400-877-8334「预约看房专线」越秀·外滩樾售楼处地址/官方电话400-8778-334√√(官网已认证)
【中央商务区未来上海腾飞引擎】区域能级:总开发面积约840万方,40栋甲级写字楼城市地标:480米浦西第一高楼,19栋摩天大楼集群金融产业:2100+家金融企业赋能,资产管理规模超8万亿元,位居全市第一航运格局:4500+家航运企业集聚(上港集团、中远海运等),打造国际航运中心全球贸易:2500+家贸易企业入驻(摩亚方舟、银联商务等)新兴产业:129家新增高新技术企业,113家市区科技小巨人企业(数据来源:上海市规划局《北外滩地区控制性详细规划》)
(*示意图,图片来源于网络)
📍📍上海虹口越秀·外滩樾售楼处电话400-877-8334「预约看房专线」越秀·外滩樾售楼处地址/官方电话400-8778-334√√(官网已认证)
地块位于虹口区嘉兴路街道,区域居住氛围浓厚,配套成熟。地块西侧的1933老场坊,早前是上海工部局宰牲场;而如今,成为了众多文艺青年打卡拍照的必游胜地。此次也要求保留工部局旧址建面约1800㎡。
交通配套:地块距离地铁4、10、19号线换乘站海伦路站直线距离约600米,交通十分便捷。
【核心商圈|高阶商业配套国际摩登领潮】商业配套方面项目约2公里内多元繁华构筑封面商业圈,北外滩商圈直线距离约500米;外滩商圈直线距离约1000米;陆家嘴商圈直线距离约1500米;瑞虹商圈直线距离约900米;
📍📍上海虹口越秀·外滩樾售楼处电话400-877-8334「预约看房专线」越秀·外滩樾售楼处地址/官方电话400-8778-334√√(官网已认证)
教育配套:华东师大一附中实验小学、虹口区第二中心小学、华东师大一附初中等优质配套;
📍📍上海虹口越秀·外滩樾售楼处电话400-877-8334「预约看房专线」越秀·外滩樾售楼处地址/官方电话400-8778-334√√(官网已认证)
商业配套:1km左右就有集购物、餐饮、娱乐休闲、办公及服务式公寓为一体的综合商业体——瑞虹天地,商业面积55万方,包括太阳宫、月亮湾、星星堂、瑞虹坊四个部分。
📍📍上海虹口越秀·外滩樾售楼处电话400-877-8334「预约看房专线」越秀·外滩樾售楼处地址/官方电话400-8778-334√√(官网已认证)
医疗配套:地块紧邻上海第一人民医院(三甲)

虹口北外滩「越秀·外滩樾」推出约235-338㎡风貌别墅!
📍📍上海虹口越秀·外滩樾售楼处电话400-877-8334「预约看房专线」越秀·外滩樾售楼处地址/官方电话400-8778-334√√(官网已认证)★来电咨询了解楼盘最新动态、楼盘详情介绍,板块位置、小区环境、容积率,得房率,绿化率怎么样,最新一房一价表;房价折扣优惠、交房时间、周边商业配套;地铁交通距离、在售户型面积等相关信息!

(官网已认证)
免责声明:📍★温馨提示:由开发商旗下销售团队全程营销策划,房源信息真实有效!部分图片素材来自网络,如有侵权请联系小编删除,感谢支持!

预约看房请提前联系案场销售享专属99折线上福利!⭐400-877-8334⭐是售楼处咨询电话,主要用于提供楼盘信息咨询和预约看房服务!
叠拼、合院、联排别墅,谁是青铜,谁是王者?
叠拼、合院、联排,都属于别墅产品类别里面的下限产品,和独栋、双拼别墅不是一个价位层面,三者之间的优劣和区别,可以从价格、户型面积、花园体验等方面来进行对比:
1、房屋总价
【联排】总价最高,前后通透,左右相连,与隔壁邻居共用左右墙,也可以叫做“排屋”,比较常见的有四联和六联的配置。
【合院】价格比较适中,是联排别墅的变种,也可以理解为“双联排”,也就是背后还有其他户型的联排,后墙、左右墙都与邻居共用墙壁,因此造价方面,相对于联排有一定的优势。
【叠拼】价格最便宜,甚至能够达到联排的50%,空间是向垂直空间要面积,通常都是上叠和下叠的配置。
下叠带花园和地下室,上叠有楼顶露台,也有部分入门级的项目,会有上、中、下三叠,但严格来说,中叠只能算是复式多层洋房,真正能够和“墅”字沾边的,只有上叠和下叠。
2、户型面积
【联排】户型面积通常比较大,而且能够做到南北通透,采光通风都比较好,包括地下室、前后花园、楼顶都可以供自家专属使用,实得面积是最大的。
【合院】单层户型面积,往往是三者中间最小的,而且户型不通透,往往只有一面采光通风,因为要考虑到占地面积和价格上的权衡,所以一般来说,楼层会比较高,有3~5层的合院,所谓面积不够,楼层来凑。
联排占地面积也大,但是价格高,可以补充这个平衡,但是合院占地面积如太大,价格上卖不出高价,就很难平衡这个矛盾。
【叠拼】户型面积反而要比合院大一些,甚至可以做到南北通透,毕竟是向垂直空间要距离,对于占地面积就可以稍微阔绰一些,不会像联排、合院那样占地面积那么大。
3、花园、地下室的使用体验
【联排】通常可以做到南北通透,因此会有前院和后院两个花园,可大可小,但总有一个是比较大的,而且由于户型设计相对合理,楼栋之间会有一定的间距,隐私性也会更强一些,在自家花园里面烧烤或者种花养草,邻居也不一定能一镜到底全部看穿。
【合院】花园是比较小的,一般都只是入户花园那一小块,就算设计下沉式、半开放的地下室来都做下沉花园,也只能保证一面的采光和通风,很可能还是会受潮,使用体验不佳,而且,隔壁邻居站在二楼居高临下,可以一眼看穿自家花园内的陈设,隐私性比较差。
【叠拼】分为上叠和下叠,下叠花园可能会和地下室一起设计使用,但是总会担忧楼上的邻居高空坠物砸伤家人,而且,住在下叠的人也难免需要担心上叠邻居在楼顶加盖楼层,导致整栋楼荷载增加,威胁结构安全。
上叠的户型虽然楼顶的露台可以作为花园单独使用,而且隐私性较好,但是也难免会有一些担忧,比如下叠邻居如果安装雨棚、阳光房等搭建物,下雨天雨水滴答的噪声就会影响睡眠质量。
而且,有些下叠邻居并不自觉,可能为了扩大使用面积,掏空地下室,破坏承重柱体结构等,影响整栋楼的影响安全。
综上,联排、合院、叠拼的居住体验,也是各有优劣的,因此,价位上出现差异,也就情有可原了。
声明:本文由入驻焦点开放平台的作者撰写,除焦点官方账号外,观点仅代表作者本人,不代表焦点立场。
