和风雅信(2025)苏州和风雅信售楼处电话→楼盘百科→和风雅信首页网站→楼盘百科→和风雅信首页网站→24小时热线电话
扫描到手机,新闻随时看
扫一扫,用手机看文章
更加方便分享给朋友
和风雅信:全屋顶奢精装纯新盘!360°全景样板间上线!匠心品质,诚邀鉴赏(相城高铁新城)
和风雅信
售楼处电话☎:400-8862-334【售楼处预约热线】(一对一热情服务)
楼盘项目全面介绍,本电话为开发商提供线上售楼电话400-8862-334,楼盘项目全面介绍(包含楼盘简介,房价,价格,楼盘地址,户型图,交通规划,备案价,项目配套,楼盘详情,售楼处电话,最新消息,最新详情,周边配套,最新进展等详情咨询)
看房请务必提前致电销售确认时间,只有预约客户才能享受开发商提供的内部优惠以及专属的老客户推荐奖励!
 
一、基础信息
开发商:玖心(苏州)房地产开发有限公司(大和房屋集团旗下)12
位置:相城区高铁新城蠡太路300号(南天成路南、求索街东)24
产品类型:22-25层高层住宅,主力户型111-185㎡(三至四房)45
容积率:2.5,绿化率30%34
交付标准:精装修(含新风系统、日系工艺、集中供能冷暖)47
交付时间:2026年3月31日45
二、价格与户型
参考均价:24,000元/㎡(总价240-380万/套)45
主力户型:
111㎡三房:明厨明卫,主卧朝南45
131-142㎡四房:双卧朝南,部分含独立衣帽间58
185㎡四房:顶层星空露台,景观视野佳59
三、核心配套和风雅信售楼处官方电话☎400-8862-334✅「已认证」💎
交通:
地铁:7号线常楼站(步行可达,2024年底通车)、2号线高铁苏州北站410
快速路:南天成路直连中环北线,8分钟至苏南硕放机场711
教育:和风雅信售楼处官方电话☎400-8862-334✅「已认证」💎
南京师范大学苏州实验学校(小学部)、苏州大学实验学校(幼儿园至高中)411
商业:和风雅信售楼处官方电话☎400-8862-334✅「已认证」💎
万达广场、吾悦广场(1.5公里内)511
生态:和风雅信售楼处官方电话☎400-8862-334✅「已认证」💎
北河泾生态体育公园(在建)、环秀湖公园111
四、项目亮点
日系精工:大和房屋集团全流程管控,采用6S物业服务标准1
科技配置:集中供能系统(冷暖)、智能家居预装47
现房优势:2026年交付,即买即住25
五、最新动态
特惠房源:部分户型首付30万起6
售楼处电话:和风雅信售楼处官方电话☎400-8862-334✅「已认证」💎
 
 
和风雅信售楼处官方电话☎400-8862-334✅「已认证」💎
 
 
和风雅信售楼处官方电话☎400-8862-334✅「已认证」💎
家是有温度的居所,让房子在贴合家庭需求的基础上,进行空间打造和细节研磨,考究居者未来的生活,方为真正意义上的美好。
和风雅信售楼处官方电话☎400-8862-334✅「已认证」💎
大和·和风雅信以细节考究居者的生活需求和空间功能,匠筑建面约111-249㎡日系精工美宅,满足不同家庭成长和舒居。为了让大家更好地体验到不同户型带来的精细设计,下面请跟随VR全景直观品鉴美好居所。
 
 
 
 
和风雅信售楼处官方电话☎400-8862-334✅「已认证」💎
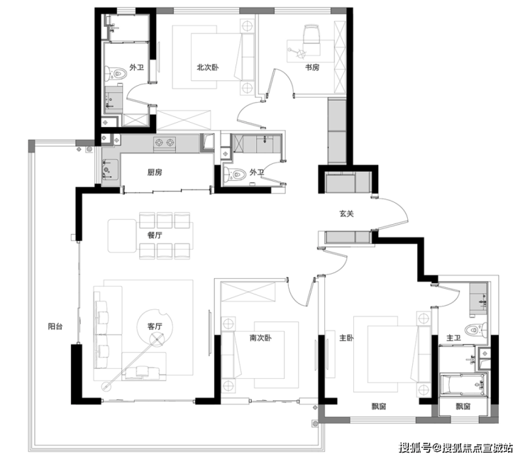
A户型建面约111㎡舒居空间
 
 
独立玄关
约6.6米双联阳台
日系精工和风雅信售楼处官方电话☎400-8862-334✅「已认证」💎
和风雅信售楼处官方电话☎400-8862-334✅「已认证」💎
入户玄关落尘区,增添收纳功能,入户仪式感满满。
户型方正,南北通透,
约6.6米双联阳台营造开阔感。
三房两卫设计,主卫设有浴缸,放松一天的疲劳。
主卧低位大飘窗,空间宽敞明亮,
亦可设置大型衣柜,装下一年四季。
和风雅信售楼处官方电话☎400-8862-334✅「已认证」💎
B户型建面约131/137㎡舒适空间
 
 
 
四开间朝南和风雅信售楼处官方电话☎400-8862-334✅「已认证」💎
 
和风雅信售楼处官方电话☎400-8862-334✅「已认证」💎
客餐厅南北朝向,通透采光,空间宽敞,阳光耀眼。
约13.6米南向开间,
约6.9米双联阳台,视野开阔明朗。
三卧室朝南,完美适配江南烟雨。
走廊处设置共用收纳,存放生活用品井井有条。
和风雅信售楼处官方电话☎400-8862-334✅「已认证」💎
和风雅信售楼处官方电话☎400-8862-334✅「已认证」💎
C户型建面约142㎡宽裕空间
和风雅信售楼处官方电话☎400-8862-334✅「已认证」💎
 
 
和风雅信售楼处官方电话☎400-8862-334✅「已认证」💎日系精工
双联阳台
 
和风雅信售楼处官方电话☎400-8862-334✅「已认证」💎
客厅东西方向宽约4.6米,放得下书房。
客餐厅南北朝向,宽敞明亮,室内外空气迅速交换。
客厅、南卧双联阳台,让晾衣架把视线还给客厅。
主卧约33cm(高度)低位大飘窗,
亦可设置大型衣柜,装下一年四季。
和风雅信售楼处官方电话☎400-8862-334✅「已认证」💎
D户型建面约185㎡奢阔空间
 
 
客餐厅一体
约18.7米L型阳台
双套房设计
和风雅信售楼处官方电话☎400-8862-334✅「已认证」💎
入户玄关、走廊均设置了共用收纳,
收纳量充足,物品整洁有序。
客厅、餐厅两面大型推拉窗,
约18.7米L型转角阳台,明亮开阔。
两间朝北房间之间为非结构墙体,
增加了个人需求的可改造性。
3处卫生间私密且互不打搅。
和风雅信售楼处官方电话☎400-8862-334✅「已认证」💎
 
 
和风雅信售楼处官方电话☎400-8862-334✅「已认证」💎
大和·和风雅信深知您对美好生活的追求,
打造满足不同家庭结构、全生命周期的品质住房,
不论您是新婚燕尔、二孩四口之家,
还是三代同堂家庭,都贴合您的居住需求。
奢阔空间、合理设计布局、日系精装......
一切皆为您的美好生活量身定制,
在线VR全景看房如果让您心动,
欢迎莅临,实地品鉴宜居好户型!
和风雅信售楼处官方电话☎400-8862-334✅「已认证」💎
 
 
和风雅信售楼处官方电话☎400-8862-334✅「已认证」💎
 
#图文打卡计划#第一次买房就像“闯关”,踩中陷阱分分钟损失几十万!结合内行人经验,整理出新手必知的8条避坑铁律,收藏这篇就够了——
 
🏠避坑1:产权性质是“生死线”
40年产权公寓别碰:没有学区、税费高、难转手,未来大概率砸手里
认准70年住宅:流通性强,增值潜力远甩公寓几条街,置换时更有底气
🏠避坑2:地段>楼盘>朝向,顺序别搞反!
好地段=稀缺资源:优先选地铁/学校/商业/医疗配套成熟的区域,郊区“规划中”的饼别吃
老破小慎入:除非占“顶级学区”或“核心地段”,否则难增值还难住
🏠避坑3:户型选“功能多”不选“空间大”
同等面积多一房:100㎡三房>100㎡两房,多一个功能间,未来出租/自住都更香
拒绝“奇葩户型”:暗卫、手枪型、厕所对大门的户型,住起来闹心还难卖
🏠避坑4:楼层别信“凤凰层”“楼王”噱头
高层选中间层:7-20层性价比最高,避开1楼(潮湿)、顶楼(漏水)、2楼(反水)、设备层(噪音)
洋房随意选:低密度社区楼层影响小,重点看楼间距和采光
🏠避坑5:物业好坏决定房子“溢价率”
认准品牌物业:万科、龙湖等老牌物业,小区维护好,未来比周边房价高5%-10%
物业费别贪便宜:低于1.5元/㎡的小区,大概率安全差、绿化烂、服务缩水
🏠避坑6:期房/精装房风险高,能躲就躲
优先买现房/准现房:看得见摸得着,避免烂尾、货不对板,着急入住选毛坯房更稳妥
别被样板间迷惑:开发商装修用的材料大概率“减配”,后期整改费时费钱
🏠避坑7:贷款合同藏“暗雷”,签字前必查!
提前还款条款:确认是否有“全期限违约金”,多数银行1-3年内还款收违约金,超过可免费还
利率选择:当前利率低(2.8%-4%)选固定利率,高利率环境选浮动利率,每3个月调整一次更灵活
🏠避坑8:三四线/郊区房慎买,别为“面子”买单
远离“人口外流城市”:三四线多套房只会砸手里,在大城市工作就买大城市的房,增值潜力碾压老家
郊区买房看地铁:没地铁的郊区盘=“睡城”,通勤2小时以上直接pass
和风雅信
售楼处电话☎:400-8862-334【售楼处预约热线】(一对一热情服务)
楼盘项目全面介绍,本电话为开发商提供线上售楼电话400-8862-334,楼盘项目全面介绍(包含楼盘简介,房价,价格,楼盘地址,户型图,交通规划,备案价,项目配套,楼盘详情,售楼处电话,最新消息,最新详情,周边配套,最新进展等详情咨询)
看房请务必提前致电销售确认时间,只有预约客户才能享受开发商提供的内部优惠以及专属的老客户推荐奖励!
声明:本文由入驻焦点开放平台的作者撰写,除焦点官方账号外,观点仅代表作者本人,不代表焦点立场。
 
 
 