杭州余杭东海·闲湖城·栖霞湾(东海·闲湖城·栖霞湾售楼处)首页网站-2025东海·闲湖城·栖霞湾售楼处欢迎您|楼盘评测_最新价格|配套户型
扫描到手机,新闻随时看
扫一扫,用手机看文章
更加方便分享给朋友
东海闲湖城·栖霞湾售楼处电话|官方发布:400-861-8004(线上预约热线)
杭州余杭东海闲湖城·栖霞湾官方售楼中心电话/售楼处地址☎400-8618-004【一对一热情服务】
项目及销售展示中心地址:杭州市天目山西路277号
一、基本信息
【组团】:栖霞湾
【户型面积】:约109㎡、约131㎡、约138㎡、约166㎡、约248㎡
东海闲湖城·栖霞湾售楼处电话|官方发布:400-861-8004(线上预约热线)
杭州余杭东海闲湖城·栖霞湾官方售楼中心电话/售楼处地址☎400-8618-004【一对一热情服务】
【销售价格】:整体均价约2万左右
109方总价约200万左右
131方总价约270万左右
138方总价约260万左右
169方总价约340万左右
248方总价约550万左右
【交付标准】:毛坯
【建筑层高】:10幢、12幢标准层层高3.15m;其他楼幢标准层层高3m;
【交付时间】:现房❗现房❗现房❗

东海闲湖城·栖霞湾售楼处电话|官方发布:400-861-8004(线上预约热线)
杭州余杭东海闲湖城·栖霞湾官方售楼中心电话/售楼处地址☎400-8618-004【一对一热情服务】
二、(部分)户型鉴赏:
B户型(约109㎡)
C户型(约131㎡)

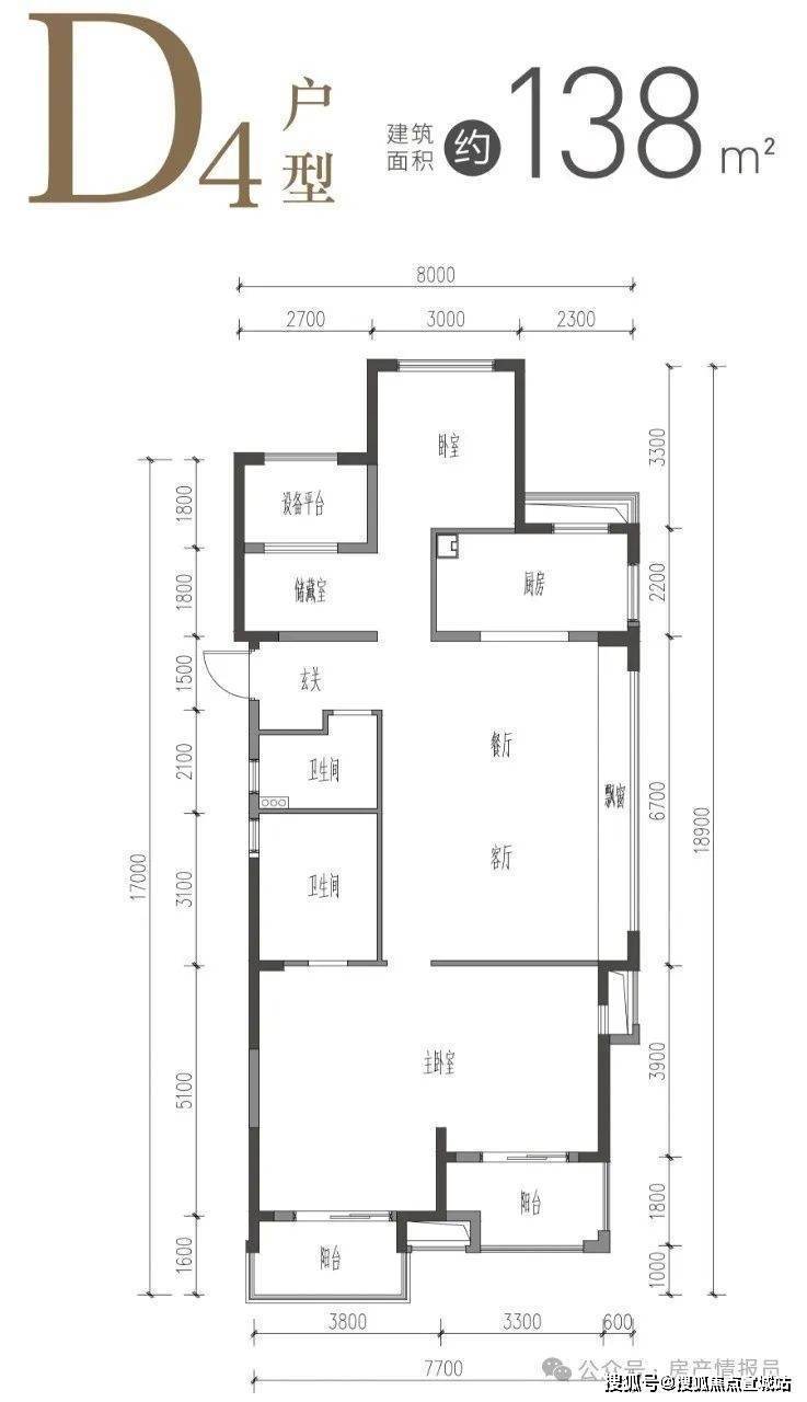
D4户型(约138㎡)
E户型(约166㎡)

F1户型(约248㎡)
东海闲湖城·栖霞湾售楼处电话|官方发布:400-861-8004(线上预约热线)
杭州余杭东海闲湖城·栖霞湾官方售楼中心电话/售楼处地址☎400-8618-004【一对一热情服务】
--------------------------------三、栖霞湾组团优势
■核心地段,未来可期:对望杭州第三中心,咫尺未来科技城国际体育中心(建设中)、华润万象城(建设中)等,链接杭州新中心世界级中轴线,版块优势迸发,红利不断。
■生活便利,配套齐全:纯熟大盘、配套齐全,育海外国语学校、三之三幼儿园、闲湖城黄龙饭店、商街等,生活所需应有尽有,举步即达。
■阳光湖岸,悦享生活❗(248方)未科大平层颜值巅峰❗南临约220亩一线湖景,北面超4000方稀有中心景观花园。静谧空间,只与自然低语,放松身心,舒享好眠。
东海闲湖城·栖霞湾售楼处电话|官方发布:400-861-8004(线上预约热线)
杭州余杭东海闲湖城·栖霞湾官方售楼中心电话/售楼处地址☎400-8618-004【一对一热情服务】
■高得房率:第三方平台测评,实际使用空间远超同面积段户型产品❗
■约8.7米湖景客餐厅(166㎡户型),约9.85米超大南向湖景面宽(部分131㎡户型),采光视野绝佳,静享四季阳光湖景。
东海闲湖城·栖霞湾售楼处电话|官方发布:400-861-8004(线上预约热线)
杭州余杭东海闲湖城·栖霞湾官方售楼中心电话/售楼处地址☎400-8618-004【一对一热情服务】
■3米层高,约6.2米阔景通宽阳台(166㎡户型),空间延展,阳光湖岸不可辜负。
东海闲湖城·栖霞湾售楼处电话|官方发布:400-861-8004(线上预约热线)
杭州余杭东海闲湖城·栖霞湾官方售楼中心电话/售楼处地址☎400-8618-004【一对一热情服务】
■更多不计入产权面积:设备平台、宽阳台、多阳台,放大室内空间,场景随意切换。
■2梯2户(除5-7幢外),相当于1梯1户的豪宅配置,尊贵、私密又安静。
■独立前室:更多1处实用空间,功能分开,井井有条,南阳台只做观景台。
■阔景空间plus(248㎡户型):约19.4米极致面宽,5开间朝南,层高3.15米,顶级产品力,顶级改善❗
■现房❗现房❗现房❗稳稳的❗
■加州风情,度假享受:经典加州建筑,风格独树一帜,耳目一新!
■首付约29万起,低利率,轻松入主未科芯❗
(栖霞湾实景图)
东海闲湖城·栖霞湾售楼处电话|官方发布:400-861-8004(线上预约热线)
杭州余杭东海闲湖城·栖霞湾官方售楼中心电话/售楼处地址☎400-8618-004【一对一热情服务】
四、项目配套及资源【闲湖城内配套及教育资源】
约20个标准足球场大小的闲湖及湖岸景观、约1500米环湖游步道、南北湖岸平台。
约5万㎡商业配套,其中闲湖城黄龙饭店,包含餐饮,健身、网球、SPA、全恒温泳池、70多间威尼斯人风格客房等;
小镇客厅,可日常简餐,也可宴请亲朋;
小镇内商业街,日常所需,应有尽有。
此外约3万方教育资源:包含九年一贯制杭州市育海外国语学校、三之三闲湖城幼儿园等优质教育资源也在闲湖城内。
(闲湖城黄龙饭店实景图)
(闲湖城实景图)
(育海外国语学校实景图)
东海闲湖城·栖霞湾售楼处电话|官方发布:400-861-8004(线上预约热线)
杭州余杭东海闲湖城·栖霞湾官方售楼中心电话/售楼处地址☎400-8618-004【一对一热情服务】
(三之三闲湖城幼儿园实景图)项目周边区域配套:【板块优势】
东海闲湖城·栖霞湾售楼处电话|官方发布:400-861-8004(线上预约热线)
杭州余杭东海闲湖城·栖霞湾官方售楼中心电话/售楼处地址☎400-8618-004【一对一热情服务】
闲湖城位于未来科技城古今文化发展轴的轴线上,也是闲林中央活力核心所在。作为杭州城市新中心上的明珠,闲湖城距离未来科技城核心区直线仅约3.5公里,未来市民中心、文化中心、全民体育中心、会展中心、总部科创湾、万象城等高能级城市配套资源触手可及
东海闲湖城·栖霞湾售楼处电话|官方发布:400-861-8004(线上预约热线)
杭州余杭东海闲湖城·栖霞湾官方售楼中心电话/售楼处地址☎400-8618-004【一对一热情服务】
【产业汇聚】
未来科技城被誉为中国经济引擎,规划杭州新中心,区域内注册企业涉及人工智能、芯片、数字经济、生物医药等高精尖科技产业。
代表性的有阿里巴巴全球总部、VIVO全球AI研发中心(在建)、OPPO全球终端总部(在建)、字节跳动总部(在建)、菜鸟总部(一期)、之江实验室(一期)、海康威视等等。
吸引顶尖人才集聚于此。
东海闲湖城·栖霞湾售楼处电话|官方发布:400-861-8004(线上预约热线)
杭州余杭东海闲湖城·栖霞湾官方售楼中心电话/售楼处地址☎400-8618-004【一对一热情服务】
【交通配套】
地铁:
地铁线环伺周边,最近的为地铁3号线“全丰站”,区域内3、5、16号线、19号线(机场快线)已通车。以及在建中的地铁12号线,5条地铁加持,交通出行更便捷。(最终以政府实施为准)自驾:
三横:文一西路、文二西路、天目山西路;三纵:高教路、良睦路、运溪路,六条城市主干,路网四通八达。高速、快速路:
杭瑞高速、天目山西路、钱塘快速路、运溪高架,自驾出行更便捷。火车西站:
直线距离约7公里,长三角一体化的重要交通节点,打造1小时省内交通圈。诗和远方,说走就走!
东海闲湖城·栖霞湾售楼处电话|官方发布:400-861-8004(线上预约热线)
杭州余杭东海闲湖城·栖霞湾官方售楼中心电话/售楼处地址☎400-8618-004【一对一热情服务】
【周边学校】
杭州市育海外国语学校、三之三闲湖城幼儿园、闲林幼儿园、闲林中心小学、闲林中学、闲林东路幼儿园、闲林和睦小学(贤和校区)、学军中学海创园校区等,教育氛围浓厚。【周边医疗配套】
浙一医院总部(余杭院区)、余杭二院、西溪医院等,时刻为健康保驾护航。【周边商业配套】
周边商业林立,包括西溪印象城、西溪欢乐城、西溪乐天城、西嘉广场、江南时代购物中心、万达广场、民丰城市综合生活广场(规划)、七彩小镇综合体、闲林埠老街等。逛吃看大片,精彩无限。【周边运动休闲配套】
临近闲林体艺馆、闲林埠老街、方家山公园、民丰体育馆和健身广场(规划)、和睦湿地等,生活更添乐趣。
1、什么是房产:房屋产权的简称。
2、什么是地产:是指土地财产。
3、什么是房地产:是房产和地产的总称。
4、什么是房地产业:从事房地产开发、建设、经营、管理以及维修、装饰和服务的综合性产业。
5、什么是房地产开发:是指在依法取得土地使用权的土地上按照使用性质的要求进行基础设施、房屋建筑的活动。
6、什么是土地开发:是将“生地”开发成可供使用的土地。
7、集体土地是指:农村集体所有的土地。
8、征用土地是指:国家为了公共利益的需要,可依照法律规定对集体所有的土地实行征用。
9、什么是土地所有权:是指国家或集体经济组织对国家土地和集体土地依法享有的占有、使用、收益和处分的权能。
10、什么是土地使用权的出让:指国家以协议、招标、拍卖的方式将土地所有权在一定年限内出让给土地使用者,由使用者向国家支付土地使用权出让金的行为。
11、什么是土地使用权转让:是指土地使用者通过出售、交换、赠与和继承的方式将土地使用权再转移的行为。
12、什么是地籍、产籍:是对在房地产调查登记过程产生的各种图表、证件等登记资料,经过整理、加工、分类而形成的图、档、卡、册等资料的总称。
13、生地是指:不具备开发条件的土地。
14、熟地是指:已完成三通一平(水、电、道路,土地平整)或七通一平,具备开发条件的土地。
15、什么是宗地:是地籍的最小单元,是指以权属界线组成的封闭地块。
16、什么是宗地图:是土地使用合同书附图及房地产登记卡附图。它反映一宗地的基本情况。包括:宗地权属界线、界址点位置、宗地内建筑位置与性质、与相邻宗地的关系等。
17、证书附图是指:房地产后面的附图,主要反映房地产情况及房地产所在宗地情况。
18、什么是物业管理:泛指一切有关房地产开发、经营、商品房销售、租赁及售后服务。
19、什么是业主委员会:是在物业管理区域内代表全体业主实施自治管理的组织。是代表
物业全体业主合法权益的社会团体,其合法权益受国家法律保护。
20、业主委员会是如何产生的:由业主大会从全体业主中选举产生。
21、住房补贴是指:国家为职工解决住房问题而给予的补贴资助。
22、房屋的所有权是指:对房屋全面支配的权利。
23、房地产交易的两种主要形式是:地产交易形式与房产交易形式。
24、建筑物是指:人工建造而成的房屋和构筑物。
25、构筑物是指:建筑物中除房屋以外的东西。
26、什么是期房:是指消费者在购买时不具备即买即可入住的商品房。
27、期房是如何介定的:房地产开发商拿到商品房预售许可证开始至取得房地产权证大产证或竣工验收合格可以直接入住使用)为止。
28、什么是预售合同:消费者在购买期房时签定的销售合同。
29、什么是现房:是指消费者在购买时具备即买即可入住的商品房,即开发商已办妥所售的商品房的大产证(或已经竣工验收合格并交付使用)的商品房。
30、什么是毛坯房:房地产商交付屋内只有门框没有门,墙面地面仅做基础处理而未做表面处理的房叫毛坯房。
31、什么是成品房:是指对墙面、天花、门套、地板实行装修。
32、什么是商品房:是指以完全的市场价格向购房者出售的房子。
33、商品房预售是指:在房地产尚未建成以前,房地产的经销商在取得受买人一定数量的定金后,将期房出售给受买人。
34、商品房现售是指:指房地产开发企业将竣工验收合格的商品房出售给买受人。
35、二手房通常指的是:再次进行买卖交易的住房。
36、经济适用房指的是:面向中低收入家庭的普通住宅。
37、例出3种以上的安居房的种类:准成本房、全成本房、全成本微利房和社会微利房。
38、低层住宅的介定:1-3层的住宅。
39、多层住宅的介定:4-6层的住宅。
40、小高层住宅的介定:7-11层的住宅。
41、中高层住宅的介定:12-16层的住宅。
42、高层住宅的介定:16层以上为高层住宅。
43、超高层建筑的介定:总高度超过100米的建筑。
44、商品房的结构是指:房屋主体所使用的施工工艺和用材。
45、钢结构的意思是:承重的主要结构是用钢材料建造的,包括悬索结构。
46、钢混结构的意思是:承重的主要结构是用钢和混凝上建造的。
47、砖木结构的意思是:承重的主要结构是用砖、木材建造的。
48、砖混结构的意思是:主要是砖墙承重,部分是钢盘混凝土承重的结构。
49、框架结构的意思是:以钢筋混凝土浇捣成承重梁柱,再用预制的隔墙分户的结构。
50、开间指的是:一间房屋内一面墙的定位轴线到另一面墙的定位轴线之间的实际距离。
51、进深指的是:一间独立的房屋或一幢居住建筑内从前墙的定位轴线到后墙的定位轴线之间的实际长度。
52、层高指的是:下层地板面或楼板面到上层楼层面之间的距离。
53、净高指的是:下层楼板上表面到上层楼板下表面之间的距离。
54、占地面积指的是:地块的总面积。
55、1亩约等于多少平方米:666.66㎡
56、居住小区总用地指的是什么用地的总和:住宅总用地,公共建筑设施总用地,道路、广场用地、庭院、绿化用地的总和。
57、住宅总用地是指:住宅用地面积的总和。
58、公建总用地是指:小区内部公共建筑占地面积的总和。
59、建筑用地面积的介定:建设用地位置和界线所围合的用地之水平投影面积。
60、建筑基底面积是指:建筑物首层的建筑面积。
61、建筑高度是指:建筑物室外地平面至外墙面顶部的总高度。
62、房屋的基底面积是指:房屋的基底面积是指建筑物底层勒脚以上外围水平投影面积。
63、道路面积是指:小区内宽度大于1.5米道路的面积总和。
64、广场面积是指:停车、回车广场和有铺砌地面的场地面积之和。
65、庭院、绿化面积是指:小区内集中绿化带、小公园,以及公共活动场所等为小区所有居住人员共同使用权的绿化面积的总和。
66、假山、小池算不算庭院、绿化面积:算。
67、人均总占地面积(㎡/人)的计算公式:人均总占地面积=建筑红线内总用地÷本小区规划居住总人数。
68、人均住宅用地面积(㎡/人)的计算公式:人均住宅用地面积=小区内总住宅用地÷本小区规划居住总人数。
69、总建筑面积是指:小区内住宅、公共建筑、人防地下室面积总和。
70、人防地下室算不算在总建筑面积之内:算
71、住宅建筑面积是指:住宅建筑外墙外围线测定的各层平面面积之和。
72、套建筑面积是指:一套房屋的整体面积。
73、套建筑面积的构成是:套内建筑面积和套分摊的公用建筑面积
74、幢(栋)是指:一座独立的,包括不同结构和不同层次的房屋。
75、架空房屋是指:一般为底层架空,以柱子作为承重支撑物的房屋。
76、夹层是指:位于两自然层之间的楼层,指房屋内部空间的局部层次。
77、技术层的意思是:用作水、电、暖、卫生等设备安装的局部层次。
78、技术层层高在多少以上计算层数:2.20米以上的计算层数。
79、结构转换层是指:建筑物某楼层的上部与下部因平面使用功能不同,该楼层上部与下部采用不同结构类型,并通过该楼层进行结构转换,则该楼层称为结构转换层。
80、跃层式住宅是指:一套住宅占两个楼层,由户内楼梯联系上下层,上下两层完全分隔。
81、阁楼是指:利用房屋内的上部空间加建的楼层。
82、阁楼层高在多高以上计算面积:2.20米以上。
83、地上层数是指:即房屋的自然层数,指室内地坪±0.00以上的按楼板结构分层的层高在2.20米以上的楼层数。
84、地上层数用什么数表示:自然数。
85、地下层数是指:采光窗在室外地坪以下的,其室内层高在2.20米以上的地下室的层数。
86、地下层数用什么数表示:负数。
87、房屋总层数是指:房屋的地上层数与地下层数之和。
88、地下层数算不算在房屋总层数之内:算。
89、例出3个以上不算在房屋总层数内的建筑层:假层、夹层、阁楼、装饰性塔楼、楼梯间、水箱间。
90、柱廊是指:有顶盖和支柱,供人通行的建筑物,称为有柱走廊,简称柱廊。
91、骑楼是指:底层为有柱廊房,廊道上方建为楼房的一部分。
92、挑廊是指:指二层以上挑出房屋墙体外,有围护结构,无支柱有顶盖的外走廊。
93、门廊是指:建筑物门前有顶盖,有支柱或围护结构的进出通道。
94、门斗是指:支撑建筑物门前顶盖的是实体墙称为门斗。
95、檐廊是指:房屋檐下方两端有支撑墙体无柱的通道。
96、天棚是指:即天篷,有透明顶篷履盖的屋面。
97、晒台又称什么:露台。
98、露台是指:供人室外活动的上人屋面或底层地面伸出室外的有维护无顶盖的台面。
99、阳台是指:有永久性上盖、有围护结构、有台面、与房屋相连、可以供人活动或利用的房屋附属设施。
100、阳台的分类有:封闭式阳台和半封闭式阳台。
—⑉ıl⑉东海·闲湖城·栖霞湾售楼处电话:400-8618-004营销中心电话:400-8618—004售楼中心::400-861-8004楼盘项目全面介绍,本电话为开发商提供线上预约售楼电话,楼盘项目全面介绍(包含楼盘简介,均价,房价,现房,期房,别墅,叠墅,大平层,价格,楼盘地址,户型图,交通规划,备案价,备案名,项目配套,样板间,开盘时间,认筹时间,楼盘详情,售楼处电话,最新消息,最新详情,周边配套,一房一价,最新进展等详情咨询)楼盘详情丨价格丨更多优惠丨机不可失丨欢迎致电丨诚邀品鉴!售楼处位置丨特价房丨工抵房丨剩余房源丨户型图丨最新消息丨免责声明:将文章内容综合来源于网络、只作分享,版权归原作者所有!!如有侵权,请联系我们,我们第一时间处理如有问题欢迎来电咨询,专业一对一热情服务,让您用专业眼光去买房。如果您想了解更多楼盘详情,欢迎提前预约拨打售楼处电话☎400-8618_004
声明:本文由入驻焦点开放平台的作者撰写,除焦点官方账号外,观点仅代表作者本人,不代表焦点立场。
