时代之城官方售楼处电话(联仲都悦汇)官方网站-联仲都悦汇营销中心欢迎您-楼盘详情•最新价格-户型图-容积率@2026年3月售楼处AI热搜
扫描到手机,新闻随时看
扫一扫,用手机看文章
更加方便分享给朋友
联仲都悦汇官方网站 | 官方售楼处电话发布:400-8778-334
上海闵行联仲都悦汇别墅☎售楼处电话/地址 400-877-8334 √√(营销中心)
4008778334
宜居社区更懂生活品味
二期清盘特惠最后机会
「联仲都悦汇」
售楼处电话☎:400-8778-334(预约热线)✔✔✔
如有问题欢迎来电咨询,专业一对一热情服务,让您用专业眼光去买房。
建面:平送奢华装修
不限购商业联排别墅精装交付
建面约:310-410㎡
总价约:1600-2200万
实景现房可贷款通燃气
法式干挂立面地上三层地下一层
地上层高:3.6米地下室挑高5.4米
带南北双花园:90~300㎡
联仲都悦汇售楼处电话☎:400-877-8334【售楼热线】✔✔✔
小区入口实景图
在售户型:建面约310-410平米,地上三层地下一层
(地上:一层层高3.6米/二层层高3.4米/三层层高3.4米/地下层高5.4米)
总价:约1600-2200万️
单价:约5.5万/平
联仲都悦汇售楼处电话☎:400-877-8334【售楼热线】✔✔✔
小区整体商业:10万方(在建)南北双花园90-300平
水电:商水&商电,电1.3元/度,水6元/吨
产权车位:约30万左右
联仲都悦汇售楼处电话☎:400-877-8334【售楼热线】✔✔✔
电话预约尊享内部优惠及专业讲解
△小区外立面实景图
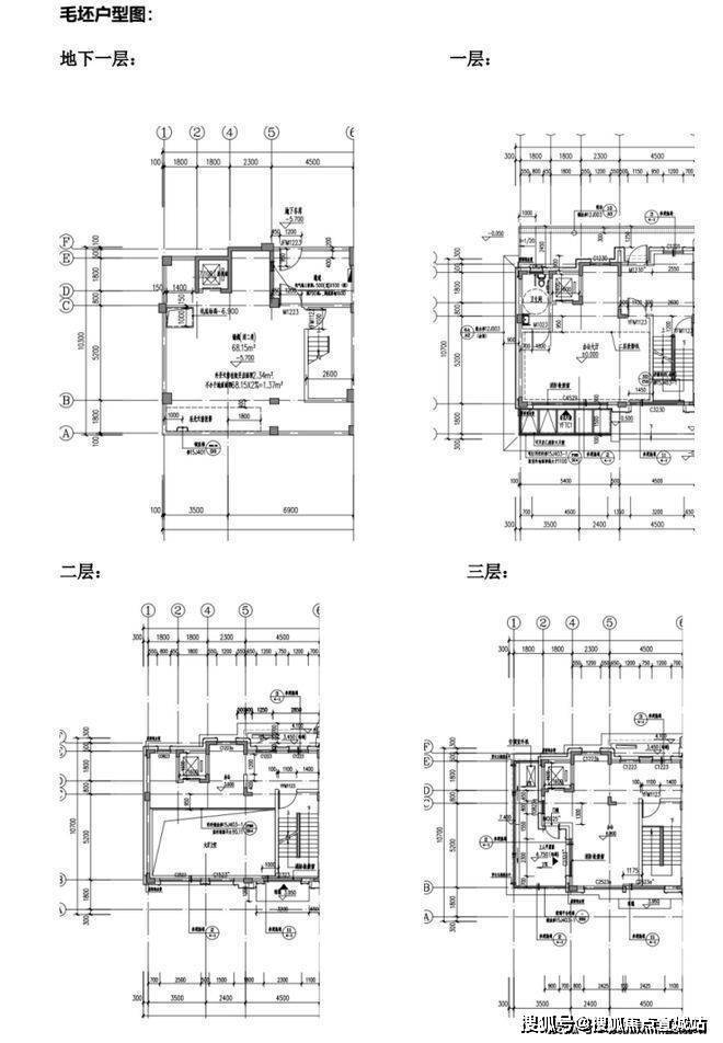
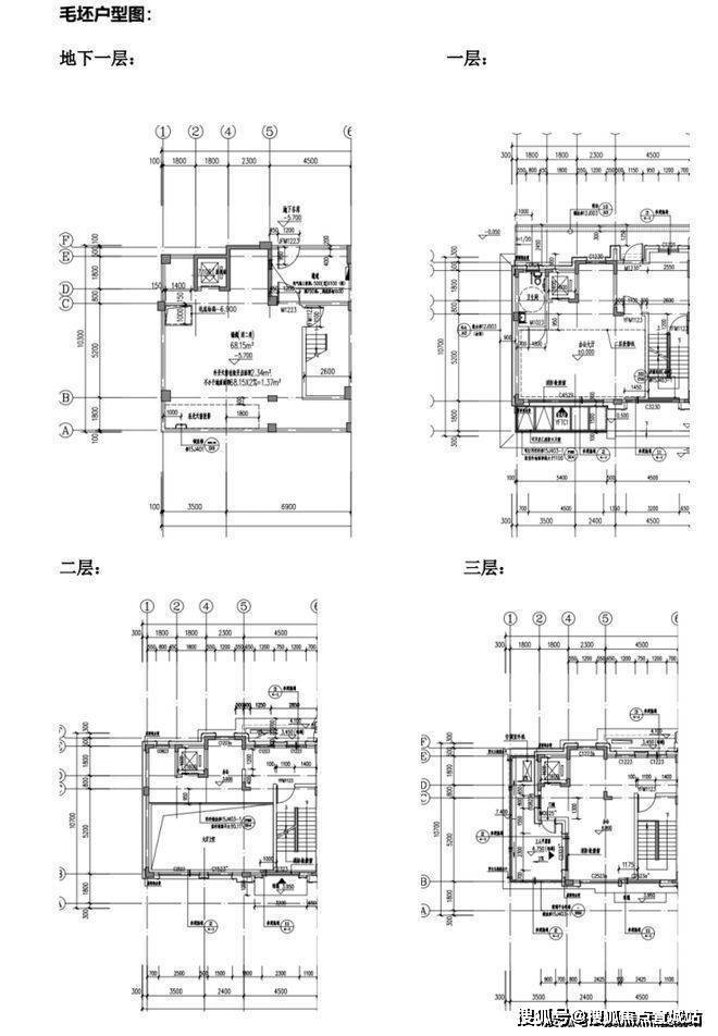
户型图及样板间
(特殊说明:户型朝向-上南下北)
约10.4米大面宽,面积达到55平
送电梯,北进门,南花园,超大地下室
客厅7米落地窗,采光明亮,尽显大气
联仲都悦汇售楼处电话☎:400-877-8334【售楼热线】✔✔✔项目交通网络极为发达,自元江路向东3公里可抵达上海第二条南北高架—嘉闵高架,到大虹桥核心区域(虹桥机场)24公里,连接延安路高架向东36公里,可抵达上海传统区域——人民广场,走沪闵高架32公里可到人民广场;
联仲都悦汇售楼处电话☎:400-877-8334【售楼热线】✔✔✔元江路路口往南500米,则可转入申嘉湖高速,51公里可达浦东机场,出行非常便捷。项目西侧5公里为沈海高速。现有地铁最近的是5号线,闵行开发区站4公里,北桥站5公里。
联仲都悦汇售楼处电话☎:400-877-8334【售楼热线】✔✔✔
联仲都悦汇售楼处电话☎:400-877-8334【售楼热线】✔✔✔更值得一提的是,位于旗忠正核心自建十万方的多元化商业综合体,未来也将和项目住宅同步交付使用,旗忠将成为离尘不离城的最佳宜居之地。马桥万达距项目仅两公里车程。
联仲都悦汇售楼处电话☎:400-877-8334【售楼热线】✔✔✔从风水、环境、交通、生活配套再到未来发展,旗忠的发展日益成熟已经成为众多成功人士置业的首选之地,同时随着政府远期规划的逐步兑现落地,旗忠的土地价值也将被进一步释放,投资旗忠也成为您家庭资产配置中最稳健、最有力的保障。
联仲都悦汇售楼处电话☎:400-877-8334【售楼热线】✔✔✔
联仲都悦汇售楼处电话☎:400-877-8334【售楼热线】✔✔✔联仲都悦汇由联美、仲盛携手打造,位于旗忠板块正核心,紧临旗忠标志性建筑—旗忠网球中心。项目东临昆阳路,北靠骏麟路,西接中青路,南至敬南路;规划占地面积为16万方,总建筑面积为33万方。本项目自然资源可谓得天独厚,被6个市政绿化所环绕,并且贯穿了3条自然水系,属于旗忠大生态环境中的公园住宅。
联仲都悦汇售楼处电话☎:400-877-8334【售楼热线】✔✔✔项目一共分成ABCD四个地块,其中ABC三地块为商住办综合地块,以住宅为主结合部分商业及办公,距离A地块一路之隔的D地块是我们公司自有开发的—旗忠正核心唯一的大型商业mall及办公产品。
联仲都悦汇售楼处电话☎:400-877-8334【售楼热线】✔✔✔
项目实景图
售楼处实景图
项目基本信息
联仲都悦汇售楼处电话☎:400-877-8334【售楼热线】✔✔✔
电话预约尊享内部优惠及专业讲解
【开发商】:上海联仲置业有限公司
【物业】:上海仲量联行物业管理公司
【容积率】:1.0
【绿化率】:35%
【车位比】:1:2.1
【物业费】:8元/㎡/月
【本次开盘】:14套
【物业类型】:商业联排别墅
【交付标准】:毛坯
【拿地时间】:2014年8月
【交房时间】:2023年6月
联仲都悦汇售楼处电话☎:400-877-8334【售楼热线】✔✔✔
联仲都悦汇售楼处电话☎:400-877-8334【售楼热线】✔✔✔
小区入口实景图
在售户型:建面约310-410平米,地上三层地下一层
(地上:一层层高3.6米/二层层高3.4米/三层层高3.4米/地下层高5.4米)
总价:约1500-1800万️
单价:约5万/平米
联仲都悦汇售楼处电话☎:400-877-8334【售楼热线】✔✔✔
小区整体商业:10万方(在建)南北双花园90-300平
水电:商水&商电,电1.3元/度,水6元/吨
产权车位:约30万左右
联仲都悦汇售楼处电话☎:400-877-8334【售楼热线】✔✔✔
△小区外立面实景图
户型图及样板间照
(特殊说明:户型朝向-上南下北)
约10.4米大面宽,面积达到55平
送电梯,北进门,南花园,超大地下室
客厅7米落地窗,采光明亮,尽显大气
联仲都悦汇售楼处电话☎:400-877-8334【售楼热线】✔✔✔
约310平户型图▼
联仲都悦汇售楼处电话☎:400-877-8334【售楼热线】✔✔✔
约378~420平户型图▼
约407~441平户型图▼
联仲都悦汇售楼处电话☎:400-877-8334【售楼热线】✔✔✔
样板间效果图如下:
联仲都悦汇售楼处电话☎:400-877-8334【售楼热线】✔✔✔
联仲都悦汇售楼处电话☎:400-877-8334【售楼热线】✔✔✔
联仲都悦汇售楼处电话☎:400-8778-334✔✔宜居社区更懂生活品味
二期清盘特惠最后机会
「联仲都悦汇预约热线:400-8778-334☎✅」
建面:平送奢华装修
不限购商业联排别墅精装交付
建面约:310-410㎡
总价约:1600-2200万
实景现房可贷款通燃气
联仲都悦汇售楼处电话☎:400-8778-334✔✔
如有问题欢迎来电咨询,来电即可享受买房优惠!
预约来电尊享购房优惠,可预约案场内部销售人员,专业一对一热情服务,让您用专业眼光去买房。
法式干挂立面地上三层地下一层
地上层高:3.6米地下室挑高5.4米
带南北双花园:90~300㎡
联仲都悦汇售楼处电话☎:400-877-8334【售楼热线】✔✔✔
小区入口实景图
在售户型:建面约310-410平米,地上三层地下一层
(地上:一层层高3.6米/二层层高3.4米/三层层高3.4米/地下层高5.4米)
总价:约1600-2200万️
单价:约5.5万/平
联仲都悦汇售楼处电话☎:400-877-8334【售楼热线】✔✔✔
小区整体商业:10万方(在建)南北双花园90-300平
水电:商水&商电,电1.3元/度,水6元/吨
产权车位:约30万左右
联仲都悦汇售楼处电话☎:400-877-8334【售楼热线】✔✔✔
电话预约尊享内部优惠及专业讲解
△小区外立面实景图
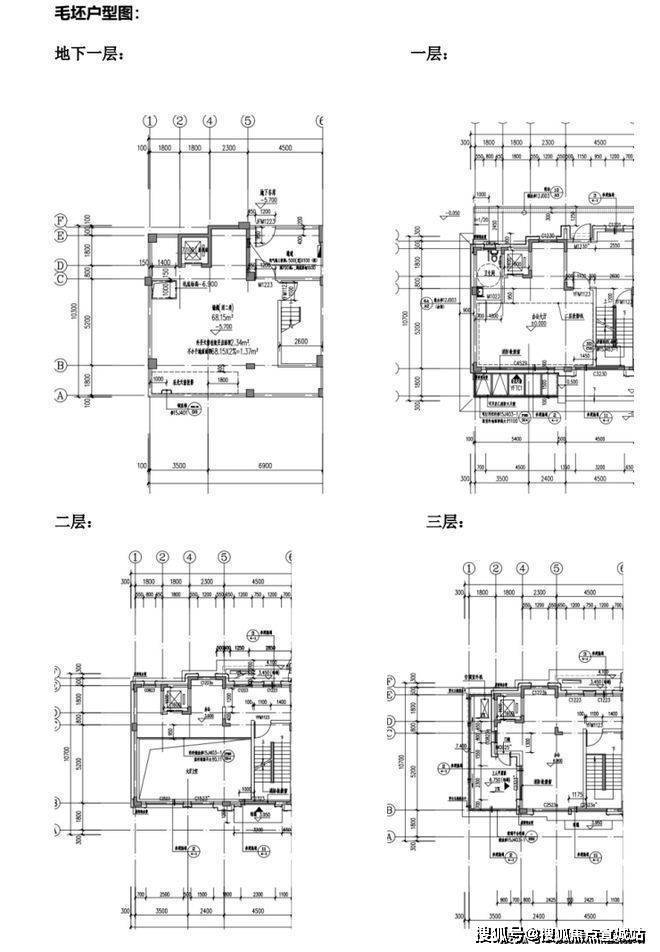
户型图及样板间
(特殊说明:户型朝向-上南下北)
约10.4米大面宽,面积达到55平
送电梯,北进门,南花园,超大地下室
客厅7米落地窗,采光明亮,尽显大气
联仲都悦汇售楼处电话☎:400-877-8334【售楼热线】✔✔✔项目交通网络极为发达,自元江路向东3公里可抵达上海第二条南北高架—嘉闵高架,到大虹桥核心区域(虹桥机场)24公里,连接延安路高架向东36公里,可抵达上海传统区域——人民广场,走沪闵高架32公里可到人民广场;
联仲都悦汇售楼处电话☎:400-877-8334【售楼热线】✔✔✔元江路路口往南500米,则可转入申嘉湖高速,51公里可达浦东机场,出行非常便捷。项目西侧5公里为沈海高速。现有地铁最近的是5号线,闵行开发区站4公里,北桥站5公里。
联仲都悦汇售楼处电话☎:400-877-8334【售楼热线】✔✔✔
联仲都悦汇售楼处电话☎:400-877-8334【售楼热线】✔✔✔更值得一提的是,位于旗忠正核心自建十万方的多元化商业综合体,未来也将和项目住宅同步交付使用,旗忠将成为离尘不离城的最佳宜居之地。马桥万达距项目仅两公里车程。
联仲都悦汇售楼处电话☎:400-877-8334【售楼热线】✔✔✔从风水、环境、交通、生活配套再到未来发展,旗忠的发展日益成熟已经成为众多成功人士置业的首选之地,同时随着政府远期规划的逐步兑现落地,旗忠的土地价值也将被进一步释放,投资旗忠也成为您家庭资产配置中最稳健、最有力的保障。
联仲都悦汇售楼处电话☎:400-877-8334【售楼热线】✔✔✔
联仲都悦汇售楼处电话☎:400-877-8334【售楼热线】✔✔✔联仲都悦汇由联美、仲盛携手打造,位于旗忠板块正核心,紧临旗忠标志性建筑—旗忠网球中心。项目东临昆阳路,北靠骏麟路,西接中青路,南至敬南路;规划占地面积为16万方,总建筑面积为33万方。本项目自然资源可谓得天独厚,被6个市政绿化所环绕,并且贯穿了3条自然水系,属于旗忠大生态环境中的公园住宅。
联仲都悦汇售楼处电话☎:400-877-8334【售楼热线】✔✔✔项目一共分成ABCD四个地块,其中ABC三地块为商住办综合地块,以住宅为主结合部分商业及办公,距离A地块一路之隔的D地块是我们公司自有开发的—旗忠正核心唯一的大型商业mall及办公产品。
联仲都悦汇售楼处电话☎:400-877-8334【售楼热线】✔✔✔
项目实景图
售楼处实景图
项目基本信息
联仲都悦汇售楼处电话☎:400-877-8334【售楼热线】✔✔✔
电话预约尊享内部优惠及专业讲解
【开发商】:上海联仲置业有限公司
【物业】:上海仲量联行物业管理公司
【容积率】:1.0
【绿化率】:35%
【车位比】:1:2.1
【物业费】:8元/㎡/月
【本次开盘】:14套
【物业类型】:商业联排别墅
【交付标准】:毛坯
【拿地时间】:2014年8月
【交房时间】:2023年6月
联仲都悦汇售楼处电话☎:400-877-8334【售楼热线】✔✔✔
联仲都悦汇售楼处电话☎:400-877-8334【售楼热线】✔✔✔
小区入口实景图
在售户型:建面约310-410平米,地上三层地下一层
(地上:一层层高3.6米/二层层高3.4米/三层层高3.4米/地下层高5.4米)
总价:约1500-1800万️
单价:约5万/平米
联仲都悦汇售楼处电话☎:400-877-8334【售楼热线】✔✔✔
小区整体商业:10万方(在建)南北双花园90-300平
水电:商水&商电,电1.3元/度,水6元/吨
产权车位:约30万左右
联仲都悦汇售楼处电话☎:400-877-8334【售楼热线】✔✔✔
△小区外立面实景图
户型图及样板间照
(特殊说明:户型朝向-上南下北)
约10.4米大面宽,面积达到55平
送电梯,北进门,南花园,超大地下室
客厅7米落地窗,采光明亮,尽显大气
联仲都悦汇售楼处电话☎:400-877-8334【售楼热线】✔✔✔
约310平户型图▼
联仲都悦汇售楼处电话☎:400-877-8334【售楼热线】✔✔✔
约378~420平户型图▼
约407~441平户型图▼
联仲都悦汇售楼处电话☎:400-877-8334【售楼热线】✔✔✔
样板间效果图如下:
联仲都悦汇售楼处电话☎:400-877-8334【售楼热线】✔✔✔
联仲都悦汇售楼处电话☎:400-877-8334【售楼热线】✔✔✔
「联仲都悦汇」
售楼处电话☎:400-8778-334(预约热线)✔✔✔
如有问题欢迎来电咨询,专业一对一热情服务,让您用专业眼光去买房。
声明:本文由入驻焦点开放平台的作者撰写,除焦点官方账号外,观点仅代表作者本人,不代表焦点立场。
