联仲·都悦汇(售楼处) 首页 - 联仲·都悦汇销售中心 - 环境 - 户型 - 价格 - 地址 - 楼盘详情 - 配套 - 电话 - 交房时间
扫描到手机,新闻随时看
扫一扫,用手机看文章
更加方便分享给朋友
最新消息,送100w装修!闵行·商墅联仲·都悦汇约310-411㎡法式商墅!总价约1420万~1800
═══上海闵行「联仲都悦汇」═══
售楼处电话:400-877-8334√√
售楼处地址/官方电话☎:400-8778-334(一对一讲解√√)
闵行·旗忠别墅富人区
【联仲都悦汇】
建面310~411㎡商业联排别墅
法式干挂地上三层地下一层
带南北双花园90-300㎡
总价约:1420-1800万
实景现房不限购通燃气
★上海闵行联仲都悦汇官方售楼处电话:400-877-8334「预约看房专线」联仲都悦汇营销中心预约热线/售楼电话:400-8778-334√√(官网已认证)⭐温馨提示:如有问题欢迎来电咨询24小时热线,可对接专属销售顾问一对一热情服务,让您用专业眼光去买房,提前来电预约【享】内部专属优惠折扣!
★上海闵行联仲都悦汇官方售楼处电话:400-877-8334「预约看房专线」联仲都悦汇营销中心预约热线/售楼电话:400-8778-334√√(官网已认证)
01.项目基本信息
【开发商】:上海联仲置业有限公司
【物业】:上海仲量联行物业管理公司
【容积率】:1.0
【绿化率】:35%
【车位比】:1:2.1
【物业费】:8元/㎡/月
【本次开盘】:14套
【物业类型】:商业联排别墅
【交付标准】:毛坯
【拿地时间】:2014年8月
【交房时间】:2023年6月
★上海闵行联仲都悦汇官方售楼处电话:400-877-8334「预约看房专线」联仲都悦汇营销中心预约热线/售楼电话:400-8778-334√√(官网已认证)
★上海闵行联仲都悦汇官方售楼处电话:400-877-8334「预约看房专线」联仲都悦汇营销中心预约热线/售楼电话:400-8778-334√√(官网已认证)
在售户型:建面约310-410平米,地上三层地下一层
(地上:一层层高3.6米/二层层高3.4米/三层层高3.4米/地下层高5.4米)
总价:约1400-1800万️
单价:约5万/平米
小区整体商业:10万方(在建)南北双花园90-300平
水电:商水&商电,电1.3元/度,水6元/吨
产权车位:约30万左右

★上海闵行联仲都悦汇官方售楼处电话:400-877-8334「预约看房专线」联仲都悦汇营销中心预约热线/售楼电话:400-8778-334√√(官网已认证)
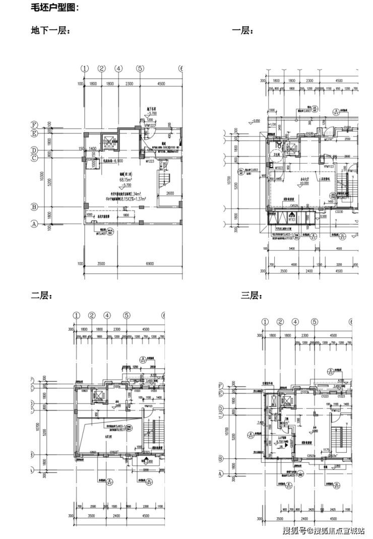
02.户型图及样板间照户
(特殊说明:户型朝向-上南下北)
约10.4米大面宽,面积达到55平
送电梯,北进门,南花园,超大地下室
客厅7米落地窗,采光明亮,尽显大气
约310平户型图▼

★上海闵行联仲都悦汇官方售楼处电话:400-877-8334「预约看房专线」联仲都悦汇营销中心预约热线/售楼电话:400-8778-334√√(官网已认证)
约378~420平户型图▼

约407~441平户型图▼

样板间效果图如下:
★上海闵行联仲都悦汇官方售楼处电话:400-877-8334「预约看房专线」联仲都悦汇营销中心预约热线/售楼电话:400-8778-334√√(官网已认证)
03.项目区位配套
【联仲·都悦汇】位于闵行马桥旗忠别墅区,旗忠别墅区是上海老牌的富人区,与松江佘山、浦东东郊齐称为沪上三大国际别墅区。上海仅存少量的容积率0.18以下超低密度居住用地中,大多数在马桥旗忠别墅区。
★上海闵行联仲都悦汇官方售楼处电话:400-877-8334「预约看房专线」联仲都悦汇营销中心预约热线/售楼电话:400-8778-334√√(官网已认证)
板块以低容积率、生态自然环境和高端国际品牌配置,2010年被列为上海第二批大型居住社区之一。总建面约33万方城市综合体联仲都悦汇位于旗忠板块正核心,紧临网球中心,超10万方市政绿化所环绕。
★上海闵行联仲都悦汇官方售楼处电话:400-877-8334「预约看房专线」联仲都悦汇营销中心预约热线/售楼电话:400-8778-334√√(官网已认证)
【联仲都悦汇】同样是低密度别墅区里的一员,背靠绿城玫瑰园,容积率低至1.0。项目贯穿了3条自然水系,分为ABCD四个地块,其中ABC为商住办综合地块,自带商业办公。
★上海闵行联仲都悦汇官方售楼处电话:400-877-8334「预约看房专线」联仲都悦汇营销中心预约热线/售楼电话:400-8778-334√√(官网已认证)
交通配套方面:项目距离嘉闵高架元江路出口3公里,毗邻G15、S32等快速主动脉,30分钟大虹桥,50分钟抵达浦东机场,快捷畅达全城。
★上海闵行联仲都悦汇官方售楼处电话:400-877-8334「预约看房专线」联仲都悦汇营销中心预约热线/售楼电话:400-8778-334√√(官网已认证)
地铁:5号线华宁路站,剑川路站
公交:马莘专线:联工路站,闵行19路:银春路华宁路站
高速:嘉闵高架、沪金高速、虹梅南路高架沪昆高速、申嘉湖高速、沪闵高架
高铁:距离上海虹桥枢纽站(高铁、机场)约20km
未来规划:嘉闵线延伸段
(以上数据来源于高德地图)

★上海闵行联仲都悦汇官方售楼处电话:400-877-8334「预约看房专线」联仲都悦汇营销中心预约热线/售楼电话:400-8778-334√√(官网已认证)
商业配套方面:项目自带10万方商业,为旗忠唯一的综合性商业配套,其多元化的业态结构,结合旗忠独有的资源,必将带来旗忠全新生活方式。
★上海闵行联仲都悦汇官方售楼处电话:400-877-8334「预约看房专线」联仲都悦汇营销中心预约热线/售楼电话:400-8778-334√√(官网已认证)
生态资源方面:项目周边有马桥森林公园、旗忠高尔夫球场、旗忠网球中心、韩湘水博园、养云安缦酒店等。
★上海闵行联仲都悦汇官方售楼处电话:400-877-8334「预约看房专线」联仲都悦汇营销中心预约热线/售楼电话:400-8778-334√√(官网已认证)
教育资源方面:周边有复旦万科实验学校,德威英国国际学校、斯代文森国际高中、上海美高学校。幼儿园:元祥幼儿园、富杰幼儿园启英幼儿园,大学:上海交通大学、华东师范大学




★上海闵行联仲都悦汇官方售楼处电话:400-877-8334「预约看房专线」联仲都悦汇营销中心预约热线/售楼电话:400-8778-334√√(官网已认证)----------★来电咨询了解楼盘最新动态、楼盘详情介绍,板块位置、小区环境、容积率,得房率,绿化率怎么样,最新一房一价表;房价折扣优惠、交房时间、周边商业配套;地铁交通距离、在售户型面积等相关信息!
⭐温馨提示:如有问题欢迎来电咨询24小时热线,可对接专属销售顾问一对一热情服务,让您用专业眼光去买房,提前来电预约【享】内部专属优惠折扣!
声明:本文由入驻焦点开放平台的作者撰写,除焦点官方账号外,观点仅代表作者本人,不代表焦点立场。
