象屿天宸雅颂售楼处电话(象屿天宸雅颂)首页网站丨象屿天宸雅颂营销中心欢迎您·楼盘最新详情-价格-户型图-容积率
扫描到手机,新闻随时看
扫一扫,用手机看文章
更加方便分享给朋友
——象屿天宸雅颂——
象屿天宸雅颂售楼处电话☎:400-8123-224【售楼处预约热线】(一对一热情服务)看房请务必提前致电销售确认时间,只有预约客户才能享受开发商提供的内部优惠以及专属的老客户推荐奖励!我们提供专业的一对一热情服务,助您以专业视角挑选理想的房产。
一脉前滩·8号线枢纽·全臻装公园墅区
「象屿天宸雅颂」
三批次加推96套建面约107-140㎡3/4房
均价60970元/㎡
6.19-6.23认购
文末一房一价
前期建面约89-139㎡3-4房热销中
总价约520-900万
低密叠墅&宋风联排后期待加推
象屿天宸雅颂售楼处电话:400-8123-224
象屿天宸雅颂营销中心热线400-8123-224(官方预约看房热线)
2024年10月25日,象屿地产以410639万元竞得闵行区浦江镇MHPO-1316单元01-03、01-02、03-02地块,成交楼面价29200元/㎡,住宅部分装修标准不低于3000元/㎡!
象屿天宸雅颂售楼处电话:400-8123-224
象屿天宸雅颂营销中心热线400-8123-224(官方预约看房热线)
项目共计由3幅地块组成,目前设计方案均已公示:
01-02地块:拟建8栋17-18F高层住宅以及若干社区配套用房,规划可售住宅约524套,将推出建面约89-128㎡3-4房;
01-03地块:拟建9栋17-18F高层住宅、1栋20F保障房以及若干社区配套用房,规划可售住宅约472套,将推出建面约89-140㎡3-4房;
同时01-03地块规划有下沉式庭院,地下会所,该地块距离地铁站也更近一些!
高层除140㎡户型为两梯两户以外,其余全部为两梯四户,中间套带连廊!
03-02地块:拟建8栋4-7F多层住宅、5栋3F低层住宅以及若干社区配套用房,将推出叠墅以及联排产品,共计约182套!
象屿天宸雅颂售楼处电话:400-8123-224
象屿天宸雅颂营销中心热线400-8123-224(官方预约看房热线)
首开房源↓
二批次加推17#↓
(三批次加推21#、22#)
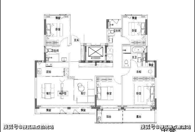
高层户型鉴赏↓
叠墅户型鉴赏↓
(过程稿,仅供参考)
板块配套
交通配套
项目距离8号线沈杜公路站步行约350-600米左右,可快速直达前滩、陆家嘴等核心区域,也算是项目一大卖点;通过浦星公路可直接上南北高架,自驾出行也十分便捷!
上海象屿天宸雅颂·繁华芯上低密住区·恭迎品鉴售楼处24小时VIP电话:400-8123-224√√售楼中心热线400-8123-224★
商业配套
项目高层东侧规划约15万方的商业,该商业地块应与住宅一并打包出让,共同组成真正的TOD项目,但目前做了拆分!
另外距离项目约3.3公里有浦江城市生活广场、绿地乐和城,约3.9公里有万达广场、4.4公里有浦江欢乐颂等商业!
教育资源
医疗资源
距离项目约4公里有仁济医院南院以及复旦大学附属眼耳鼻喉科医院!
生态环境
项目周边被浦江郊野公园环绕,低密宜居!
上海象屿天宸雅颂·繁华芯上低密住区·恭迎品鉴售楼处24小时VIP电话:400-8123-224√√售楼中心热线400-8123-224★
1、什么是房产:房屋产权的简称。
2、什么是地产:是指土地财产。
3、什么是房地产:是房产和地产的总称。
4、什么是房地产业:从事房地产开发、建设、经营、管理以及维修、装饰和服务的综合性产业。
5、什么是房地产开发:是指在依法取得土地使用权的土地上按照使用性质的要求进行基础设施、房屋建筑的活动。
6、什么是土地开发:是将“生地”开发成可供使用的土地。
7、集体土地是指:农村集体所有的土地。
8、征用土地是指:国家为了公共利益的需要,可依照法律规定对集体所有的土地实行征用。
9、什么是土地所有权:是指国家或集体经济组织对国家土地和集体土地依法享有的占有、使用、收益和处分的权能。
10、什么是土地使用权的出让:指国家以协议、招标、拍卖的方式将土地所有权在一定年限内出让给土地使用者,由使用者向国家支付土地使用权出让金的行为。
11、什么是土地使用权转让:是指土地使用者通过出售、交换、赠与和继承的方式将土地使用权再转移的行为。
12、什么是地籍、产籍:是对在房地产调查登记过程产生的各种图表、证件等登记资料,经过整理、加工、分类而形成的图、档、卡、册等资料的总称。
13、生地是指:不具备开发条件的土地。
14、熟地是指:已完成三通一平(水、电、道路,土地平整)或七通一平,具备开发条件的土地。
15、什么是宗地:是地籍的最小单元,是指以权属界线组成的封闭地块。
16、什么是宗地图:是土地使用合同书附图及房地产登记卡附图。它反映一宗地的基本情况。包括:宗地权属界线、界址点位置、宗地内建筑位置与性质、与相邻宗地的关系等。
17、证书附图是指:房地产后面的附图,主要反映房地产情况及房地产所在宗地情况。
18、什么是物业管理:泛指一切有关房地产开发、经营、商品房销售、租赁及售后服务。
19、什么是业主委员会:是在物业管理区域内代表全体业主实施自治管理的组织。是代表
物业全体业主合法权益的社会团体,其合法权益受国家法律保护。
20、业主委员会是如何产生的:由业主大会从全体业主中选举产生。
21、住房补贴是指:国家为职工解决住房问题而给予的补贴资助。
22、房屋的所有权是指:对房屋全面支配的权利。
23、房地产交易的两种主要形式是:地产交易形式与房产交易形式。
24、建筑物是指:人工建造而成的房屋和构筑物。
25、构筑物是指:建筑物中除房屋以外的东西。
26、什么是期房:是指消费者在购买时不具备即买即可入住的商品房。
27、期房是如何介定的:房地产开发商拿到商品房预售许可证开始至取得房地产权证大产证或竣工验收合格可以直接入住使用)为止。
28、什么是预售合同:消费者在购买期房时签定的销售合同。
29、什么是现房:是指消费者在购买时具备即买即可入住的商品房,即开发商已办妥所售的商品房的大产证(或已经竣工验收合格并交付使用)的商品房。
30、什么是毛坯房:房地产商交付屋内只有门框没有门,墙面地面仅做基础处理而未做表面处理的房叫毛坯房。
31、什么是成品房:是指对墙面、天花、门套、地板实行装修。
32、什么是商品房:是指以完全的市场价格向购房者出售的房子。
33、商品房预售是指:在房地产尚未建成以前,房地产的经销商在取得受买人一定数量的定金后,将期房出售给受买人。
34、商品房现售是指:指房地产开发企业将竣工验收合格的商品房出售给买受人。
35、二手房通常指的是:再次进行买卖交易的住房。
36、经济适用房指的是:面向中低收入家庭的普通住宅。
37、例出3种以上的安居房的种类:准成本房、全成本房、全成本微利房和社会微利房。
38、低层住宅的介定:1-3层的住宅。
39、多层住宅的介定:4-6层的住宅。
40、小高层住宅的介定:7-11层的住宅。
41、中高层住宅的介定:12-16层的住宅。
42、高层住宅的介定:16层以上为高层住宅。
43、超高层建筑的介定:总高度超过100米的建筑。
44、商品房的结构是指:房屋主体所使用的施工工艺和用材。
45、钢结构的意思是:承重的主要结构是用钢材料建造的,包括悬索结构。
46、钢混结构的意思是:承重的主要结构是用钢和混凝上建造的。
47、砖木结构的意思是:承重的主要结构是用砖、木材建造的。
48、砖混结构的意思是:主要是砖墙承重,部分是钢盘混凝土承重的结构。
49、框架结构的意思是:以钢筋混凝土浇捣成承重梁柱,再用预制的隔墙分户的结构。
50、开间指的是:一间房屋内一面墙的定位轴线到另一面墙的定位轴线之间的实际距离。
声明:本文由入驻焦点开放平台的作者撰写,除焦点官方账号外,观点仅代表作者本人,不代表焦点立场。
