鸿湖上(售楼处)官方网站-2026鸿湖上营销中心(售楼处中心)鸿湖上欢迎您-周边环境-户型-价格-地址-楼盘详情-户型配套-鸿湖上售楼电话-交房时间
扫描到手机,新闻随时看
扫一扫,用手机看文章
更加方便分享给朋友
鸿湖上
售楼处电话☎:400-8862-334【售楼处预约热线】(一对一热情服务)
楼盘项目全面介绍,本电话为开发商提供线上售楼电话400-8862-334,楼盘项目全面介绍(包含楼盘简介,房价,价格,楼盘地址,户型图,交通规划,备案价,项目配套,楼盘详情,售楼处电话,最新消息,最新详情,周边配套,最新进展等详情咨询)
看房请务必提前致电销售确认时间,只有预约客户才能享受开发商提供的内部优惠以及专属的老客户推荐奖励!

该地块(苏地2024-WG-Z17号)是南通市鸿远置业(南通海门国资背景)以总价11.01亿竞得,楼面价:21698.49元/平,溢价率0.46%。鸿湖上售楼处线上预约看房热线电话:400-8862-334(24小时热线)
2025年5月,地块开发主体更名为苏州鸿謇置业有限公司,强化本土化运作。

外立面强制采用铝板、石材、真石漆等高端建材;




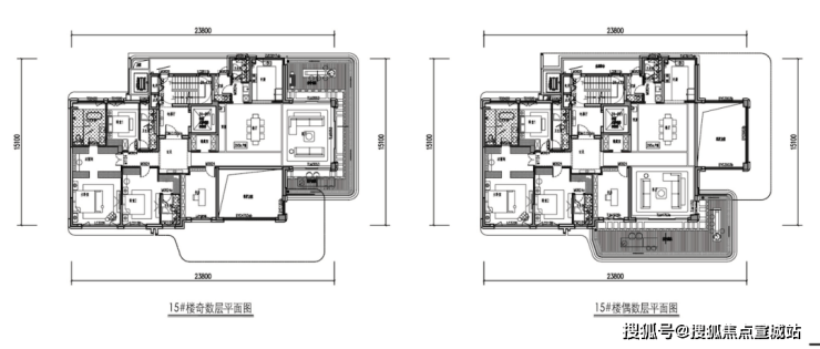
面积段约240-360:3层设计,层高3.1-3.5米,户户配备独立庭院,深灰铝板+金色金属板立面,融合宋式建筑风骨与现代质感。鸿湖上售楼处线上预约看房热线电话:400-8862-334(24小时热线)


文化基因植入:紧邻宝带桥(苏州第一古桥)与吴文化博物馆,建筑风格需“与大运河、澹台湖界面协调”,呼应苏州水乡文脉。鸿湖上售楼处线上预约看房热线电话:400-8862-334(24小时热线)

创新错层露台鸿湖上售楼处线上预约看房热线电话:400-8862-334(24小时热线)
9层洋房采用奇偶层错位布局,每户配置约40-60㎡空中花园,实现“垂直森林”居住理念。


一线澹台湖+京杭运河:地块三面环水,与宝带桥-澹台湖文化公鸿湖上售楼处线上预约看房热线电话:400-8862-334(24小时热线)园(国家文化公园)无缝衔接,堪称“苏州文旅封面”。
博物馆级人文氛围:步行5分钟可达吴文化博物馆,居住与文化体验深度融合。
轨交动脉:700米直达地铁2号线宝带桥南站,1站换乘4号线(石湖东路站),2站换乘7号线(郭巷站)。
商业能级跃升:1公里内覆盖龙湖东吴天街、海星生活广场、万达广场,形成城南顶级商圈。
教育医疗:碧波实验小学(省重点)、苏州外国语学校吴中校区、苏大附一院总院等环伺。
鸿湖上
售楼处电话☎:400-8862-334【售楼处预约热线】(一对一热情服务)
楼盘项目全面介绍,本电话为开发商提供线上售楼电话400-8862-334,楼盘项目全面介绍(包含楼盘简介,房价,价格,楼盘地址,户型图,交通规划,备案价,项目配套,楼盘详情,售楼处电话,最新消息,最新详情,周边配套,最新进展等详情咨询)
看房请务必提前致电销售确认时间,只有预约客户才能享受开发商提供的内部优惠以及专属的老客户推荐奖励!
声明:本文由入驻焦点开放平台的作者撰写,除焦点官方账号外,观点仅代表作者本人,不代表焦点立场。
