滨江鸣澜里售楼处电话→滨江鸣澜里→滨江鸣澜里楼盘详情-房价户型→配套楼盘详情→首页网站→热搜焦点
扫描到手机,新闻随时看
扫一扫,用手机看文章
更加方便分享给朋友
杭州-滨江鸣澜里售楼处电话:400-8558-334
滨江鸣澜里官方售楼处——请拨打(官方400热线):400-8558-334
杭州-滨江鸣澜里售楼处电话:400-8558-334
滨江鸣澜里官方售楼处——请拨打(官方400热线):400-8558-334
小区主入口设计为现代化酒店式门楼,跨度约66米,采用金属材质与玻璃结合。两侧石材景墙如屏风般展开,对植名贵罗汉松,整体十分气派,归家仪式感满满。鸣澜里整盘规划6栋17-24层高层,容积率2.7、绿地率约35%,构筑建面约103-139方覆盖首置、改善人群,包括5大户型,其中建面约103方大三房、约120方-126方-139方为大四房
杭州-滨江鸣澜里售楼处电话:400-8558-334
滨江鸣澜里官方售楼处——请拨打(官方400热线):400-8558-334
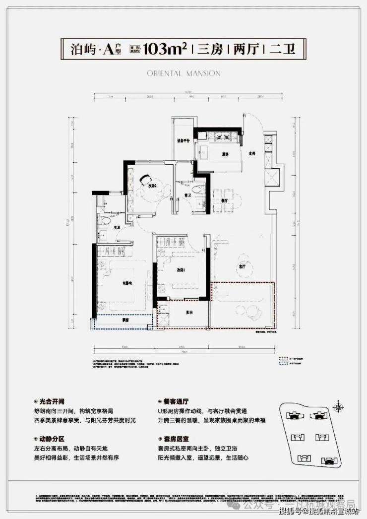
🔻103㎡户型:
🔻120㎡户型:
建面约126方4房2卫,270°稀缺边套四房
杭州-滨江鸣澜里售楼处电话:400-8558-334
滨江鸣澜里官方售楼处——请拨打(官方400热线):400-8558-334
🔻139㎡南向横厅户型:
🔻139㎡东西向横厅户型:
杭州-滨江鸣澜里售楼处电话:400-8558-334
滨江鸣澜里官方售楼处——请拨打(官方400热线):400-8558-334
声明:本文由入驻焦点开放平台的作者撰写,除焦点官方账号外,观点仅代表作者本人,不代表焦点立场。
