(保利·海上印售楼处)首页网站丨2025【保利·海上印】欢迎您/保利·海上印售楼处电话/地址/备案价/楼盘详情
扫描到手机,新闻随时看
扫一扫,用手机看文章
更加方便分享给朋友
上海闵行【保利·海上印】
售楼处电话最新发布:400-8778-334...
售楼处电话/地址:400-877-8334√√【营销中心预约☎】
◆郑重承诺:由开发商旗下销售团队全程营销策划,房源信息真实有效!(已认证)
15号线地铁站旁,保利置业梅陇项目
保利·海上印
将推建面约108-148㎡3-4房
全部一梯两户无连廊
所有户型层高均为3.1米
闵行梅陇板块全新供应来了!去年11下旬完成出让的七批次土拍中,保利置业拿下的梅陇项目,案名为【保利·海上印】,目前巡展已开始,3月底有望开放样板间,首批次预计将于今年5月入市,项目位置就在安高申陇院东侧一路之隔!(保利海上印售楼处电话为400-8778-334售楼处电话)
保利·海上印开发商售楼处电话:400-8778-334...(预约热线)➨保利·海上印售楼处电话地址☎:400_8778-334√√【官方最新发布:房价优惠折扣,楼盘测评,交房时间,交付标准,周边配套,学区配套,一房一价表,认筹时间,户型图,平面图,高层洋房大平层合院别墅,样板间,房型多样,地铁口距离,区域板块.......】
保利·海上印售楼处电话:400-8778-334
上海闵行保利·海上印售楼处电话☎:400-8778-334(官方售楼处预约看房热线)
(保利海上印售楼处电话为400-8778-334售楼处电话))
从效果图也可以看到项目自带下沉式会所,包含健身房、瑜伽室、会所泳池等,自然光廊设计打破室内、建筑、景观原有的分界线,可以做到边运动边欣赏景观。(保利海上印售楼处电话为400-8778-334售楼处电话)
(保利海上印售楼处电话为400-8778-334售楼处电话))
(保利海上印售楼处电话为400-8778-334售楼处电话)
目前项目户型过程稿已经出炉,预计推出建面约建面约108㎡、128㎡以及建面约148㎡3-4房,其中建面约108㎡3房2厅2卫,共计约136套,一梯两户无连廊;建面约128㎡4房2厅2卫,共计约188套,一梯两户无连廊;建面约148㎡4房2厅2卫,共计约80套,一梯两户,电梯门双开!
建面约108㎡3房2厅2卫,该户型为经典的动静分离户型,三开间朝南,预留分户S墙设计,客厅面宽约4.85米,边套户型主卧为270°转角飘窗!
保利·海上印售楼处电话:400-8778-334
上海闵行保利·海上印售楼处电话☎:400-8778-334售楼处电话(官方预约看房热线)
保利·海上印售楼处电话:400-8778-334
上海闵行保利·海上印售楼处电话☎:400-8778-334售楼处电话(官方预约看房热线)
建面约128㎡4房2厅2卫,独立入户玄关,四开间朝南,客厅面宽约4.05米,南北直通,厨房附赠飘窗,可增加实用面积,边套户型主卧为270转角飘窗!
(保利海上印售楼处电话为400-8778-334售楼处电话)
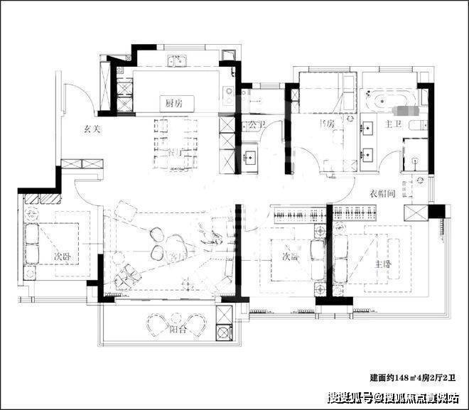
建面约148㎡4房2厅2卫,该户型也可以说是128户型的进阶版本,各个空间会稍微大一些,客厅面宽约5米,厨房同样附带飘窗,边套户型主卧为270转角飘窗!
保利·海上印售楼处电话:400-8778-334
上海闵行保利·海上印售楼处电话☎:400-8778-334售楼处电话(官方预约看房热线)
项目地块总占地面积29622㎡,容积率1.8,总建筑面积87365㎡,地上计容建筑面积53321㎡,地上不计容面积6272㎡,地下建筑面积27771㎡。中小套户型不低于30%,装修标准不低于3000元/㎡。
一起来看下设计方案。
(保利海上印售楼处电话为400-8778-334售楼处电话)
项目拟建8栋13-14层小高层房源,保障房位于西北角。
北侧的4栋楼均做了一层架空;8#和9#分别为社区配套用房(快递、新时代文明实践站、生活服务点、老年活动室)以及居委会;
3#和12#中间打造了一大片的集中绿地;14#物业和业委会用房,连着景观架构和下沉式庭院;
小区车行主入口设在了北侧兴梅路和西侧梅富路上,转个弯就进入了车库坡道,小区地面无车位,人车分流。
2024年11月27日,上海第七批次土拍首日,保利置业以约25.95亿元竞得闵行区MHP0-0303单元01-28-01a地块,溢价率约18.5%,折合楼板价48665元/㎡。
梅陇这块宅地的热度不低,6家房企参与拿地,竞价44轮后才由保利置业夺得。经过测算,该地成交楼板价较此前的安高申陇院略微提升,从定价的角度而言,保利置业梅陇项目未来售价也大概率维持在不到8万/㎡的状态。
(保利海上印售楼处电话为400-8778-334售楼处电话)
保利·海上印售楼处电话:400-8778-334
上海闵行保利·海上印售楼处电话☎:400-8778-334售楼处电话(官方预约看房热线)
保利置业梅陇项目和15号线隔着一条春申塘,目前项目西侧的梅富路还没有通往对面的桥梁,因此暂时步行到地铁站会比较远,但梅富路桥已经初步设计已完成,未来梅富路将会跨春申塘打通,新建跨春申塘桥。
附近公交车站点众多;周边高架有S20外环高速、S4沪金高速、虹梅高架路等,主干路纵有莲花南路,横有春申路;相对来说更适宜自驾和公交出行。
保利·海上印售楼处电话:400-8778-334
上海闵行保利·海上印售楼处电话☎:400-8778-334售楼处电话(官方预约看房热线)
商业配套方面,附近有大润发超市,畹町小市集,能满足居民基本生活需求,各大银行网点可步行到达,春申景城系列有配套商业街,也可自驾前往周边的大型购物场所。
(保利海上印售楼处电话为400-8778-334售楼处电话)
医疗配套:周边有华东急诊医院、复旦附属医院,上海市老年医学中心等;
教育配套:周边学校有上海市第二中学(梅陇校区)、闵行区春申景城幼儿园等,另外在项目东侧有新建的莘松中学兴梅校区。(免责:以上教育资源整理仅代表楼盘与学校的距离,该房屋所在项目暂未划分学区,开发商不对项目交房后所属学区、学校做任何承诺。教育资源分配或学校/学区划分以及学校的具体招生规则等请以政府相关主管部门、教育机构公开的最新信息为准。)
梅陇一直都是闵行非常热门的板块,此前的天樾园和和绿城沁兰园都是次次开盘次次触发积分的新盘,均已售罄。
保利·海上印开发商售楼处电话:400-8778-334...(预约热线)➨保利·海上印售楼处电话地址☎:400_8778-334√√
保利·海上印售楼处电话:4008778334【开发商售楼中心热线】保利·海上印营销中心热线400-8778-334...保利·海上印售楼处地址400-877-8334...☎楼盘项目全面介绍,本电话为开发商提供线上预约售楼电话,楼盘项目全面介绍(包含楼盘简介,均价,房价,现房,期房,别墅,叠墅,大平层,价格,楼盘地址,户型图,交通规划,备案价,备案名,项目配套,样板间,开盘时间,认筹时间,楼盘详情,售楼处电话,最新消息,最新详情,周边配套,一房一价,最新进展等详情咨询)楼盘详情丨价格丨更多优惠丨机不可失丨欢迎致电丨诚邀品鉴!售楼处位置丨特价房丨工抵房丨剩余房源丨户型图丨最新消息丨免责声明:将文章内容综合来源于网络、只作分享,版权归原作者所有!!如有侵权,请联系我们,我们第一时间处理如有问题欢迎来电咨询,专业一对一热情服务,让您用专业眼光去买房。如果您想了解更多楼盘详情,欢迎提前预约拨打保利·海上印官方售楼处电话☎400-877-8334...√√
school. The project where the house is located has not yet been divided into school districts. The developer will not make any promises to the school districts and schools after the project is delivered. Please refer to the latest information disclosed by relevant government departments and educational institutions.) Meilong has always been a very popular sector in Minhang. Previously, Tianyueyuan and Greentown Qinlanyuan were new projects that triggered points every time and were sold out. Poly·Haishang Printing Developer Sales Office Tel: 400-8778-334...(Appointment Hotline)➨Poly·Haishang Printing Sales Office Tel: 400_8778-334√√ Poly·Haishang Printing Sales Office Phone: 4008778334 [Developer Sales Center Hotline] Poly·Haishang Printing Sales Center Hotline 400-8778-334...Poly·Haishang Printing Sales Office Address 400-877-8334...☎All-wide introduction to real estate projects, this phone provides developers with online reservation sales telephone number, comprehensive introduction to real estate projects (including property profile, average price, house price, existing house, pre-sale house, villa, stacked villa, large floor, price, property address, floor plan, transportation planning, filing price, filing name, project supporting, model room, opening time, reservation time, property details, sales office phone number, latest news, latest details, surrounding facilities, one price per room, latest progress, etc. Consultation on details) Property details丨Price丨More discounts丨Unforgettable丨Welcome to call丨Invite tasting! Sales office location丨Special price house丨working house丨Remaining houses丨Floor type picture丨Newest news丨Disclaimer: The content of the article is comprehensively sourced from the Internet and is for sharing only, and the copyright belongs to the original author! ! If there is any infringement, please contact us. We will deal with it as soon as possible. If you have any questions, please call us for consultation. Professional one-to-one enthusiastic service will allow you to buy a house with a professional perspective. If you want to know more about the property, please make an appointment in advance to call the official sales office of Poly Haishangyin ☎400-877-8334...√√√
声明:本文由入驻焦点开放平台的作者撰写,除焦点官方账号外,观点仅代表作者本人,不代表焦点立场。
