美兰天地售楼中心-(美兰天地售楼处)2025楼盘详情-最新房价-首页网站-户型配套

搜狐焦点宣城站 2025-09-11 10:55:29
用手机看
扫描到手机,新闻随时看

扫一扫,用手机看文章
更加方便分享给朋友

美兰天地售楼处电话400-8618-004,提供专业服务,周边配套齐全,区域发展潜力大。

美兰天地售楼处电话:400-8618-004【预约热线】

上海宝山美兰天地营销中心热线:400-8618-004⭐⭐⭐

如有问题欢迎来电咨询,专业一对一热情服务,让您用专业眼光去买房。想了解美兰天地更多信息?拨打售楼处营销中心热线:400-8618-004(中介勿扰)【24小时热线】

对于想要购买上海美兰天地房子的朋友来说,掌握售楼处电话是开启购房之旅的关键一步。美兰天地售楼处电话为400-8618-004,这个号码承载着诸多重要功能,在整个购房过程中发挥着不可或缺的作用。

美兰天地

上海·美兰湖高尔夫

36洞高尔夫球场里独栋商墅

双强联袂|共鸣城市新篇

天赋热土|势启城市新篇

产城融合|赋能区域进阶

多维配套|荟萃沪上精彩

美兰天地售楼处营销中心:400-8618-004

🏡美兰天地售楼处电话:400-8618-004

上海宝山美兰天地24小时vip热线📞☎:400-8618-004(一对一热情服务)

基本信息

地址:宝山区美兰湖路 16 弄

总用地面积:约 15.3 万㎡

总建筑面积:约 9.3 万㎡

容积率:0.4

绿化率:50%

建筑密度:约 10.72%

楼栋数:97 栋

车位总数:682 个

车位配比:1:1.8

物业类型:商业办公

产权:40 年

物业费:8 元 /㎡

建筑设计

采用现代极简风格,大面积的玻璃墙体设计,形成约 270° 的景观视野,打破传统建筑的视觉隔离感,营造无界空间的视觉效果,让居住者能充分欣赏室外美景。

户型与价格

独栋:面积约 550-620-830㎡,总价 2200-3100 万。

叠加:面积 288-388㎡,总价 950-1200 万。

平层:面积 155-162-175㎡,总价 550-650 万。

周边配套

交通:距离地铁 7 号线美兰湖站直线距离约 2.8 公里,周边有 963 路、1600 路、宝山 21 路等公交线路,还有 S20 外环高速、G1501 绕城高速等多条高速公路,通过沪太路等主干道可快速直达市区。

商业:有宝龙城市广场、龙湖北城天街、世纪联华、大润发等大型商业综合体,以及美兰湖小镇 9 万余方风情商业街、国际会议中心及待进驻的高端酒店。

教育:3 公里范围内有中福会幼儿园、美兰湖小学、美兰湖中学、上师大附属罗店中学等学校,还有宋庆龄(中福会)、世界外国语学校美兰湖校区等国际学校。

医疗:有上海美兰湖妇产科医院、华山医院北院(三甲)、罗店医院、罗店镇社区卫生服务中心等医疗机构。

项目特色

项目位于美兰湖高尔夫球场内,可 360° 环看高尔夫球场,绿地、森林、流水、瀑布环绕四周,环境优美,且不限购不限贷,通燃气。

🏡美兰天地售楼处电话:400-8618-004

上海宝山美兰天地24小时vip热线📞☎:400-8618-004(一对一热情服务)

【上置美兰天地-36洞高尔夫球场里的独栋商墅】

产品地址:宝山区美兰湖

商业产权:40年

不限购,分层办理产证,付款灵活

面积:平层152-170;叠加300左右,独栋550-820平

总价:约500-3150万!

用地面积:约15万方

主力产品:

①约550㎡

1F:约164㎡、2F:约190㎡、3F:约190㎡

②约620㎡

1F:约155㎡、2F:约155㎡、3F:约155㎡、4F:约155㎡

③约830㎡

1-2F:约300㎡、3F:约167㎡、4F:约167㎡、5F:约167㎡

容积率:约0.4

绿化率:约50%

产品系:都市系

装修情况:毛坯

总栋数:97栋(385套)

车位总数:682

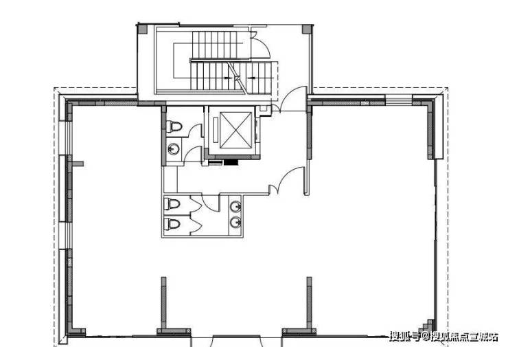
A产品一层平面图|建筑面积约168㎡

(户型平面图)

🏡美兰天地售楼处电话:400-8618-004

上海宝山美兰天地24小时vip热线📞☎:400-8618-004(一对一热情服务)

此户型对应编号为137幢56号1F,具体户型会因装修、楼栋、楼层、单元、朝向等差别,使局部结构、面积、部分窗扇位置及大小、墙壁大小及电器安装位置等略有不同。

上海宝山美兰天地别墅官方售楼中心电话/售楼处地址☎400-8618-004【一对一热情服务】

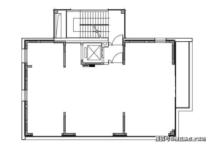
A产品二层平面图|建筑面积约194㎡

(户型平面图)

美兰天地别墅售楼处电话|官方发布:400-8618-004(销售预约热线)

上海宝山美兰天地别墅官方售楼中心电话/售楼处地址☎400-8618-004【一对一热情服务】

此户型对应编号为137幢56号2F,具体户型会因装修、楼栋、楼层、单元、朝向等差别,使局部结构、面积、部分窗扇位置及大小、墙壁大小及电器安装位置等略有不同。

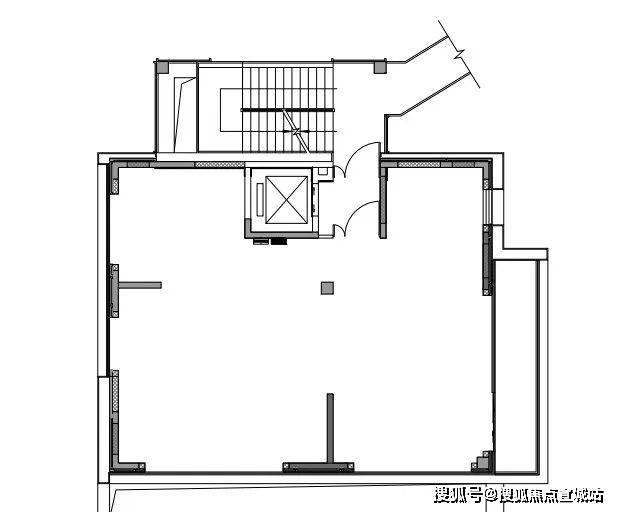
A产品三层平面图|建筑面积约194㎡

(户型平面图)

美兰天地别墅售楼处电话|官方发布:400-8618-004(销售预约热线)

上海宝山美兰天地别墅官方售楼中心电话/售楼处地址☎400-8618-004【一对一热情服务】

此户型对应编号为137幢56号3F,具体户型会因装修、楼栋、楼层、单元、朝向等差别,使局部结构、面积、部分窗扇位置及大小、墙壁大小及电器安装位置等略有不同。

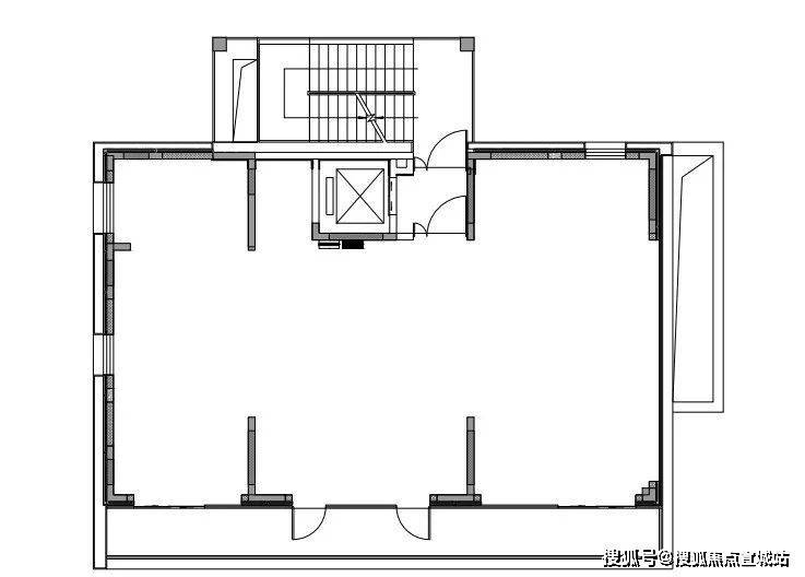
C产品五层平面图|建筑面积约173㎡

(效果图)

(户型平面图)

美兰天地别墅售楼处电话|官方发布:400-8618-004(销售预约热线)

上海宝山美兰天地别墅官方售楼中心电话/售楼处地址☎400-8618-004【一对一热情服务】

此户型对应编号为150幢86号5F,具体户型会因装修、楼栋、楼层、单元、朝向等差别,使局部结构、面积、部分窗扇位置及大小、墙壁大小及电器安装位置等略有不同。

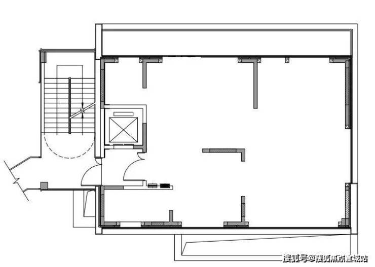
D产品四层平面图|建筑面积约161㎡

(效果图)

样板间欣赏

🏡美兰天地售楼处电话:400-8618-004

上海宝山美兰天地24小时vip热线📞☎:400-8618-004(一对一热情服务)

🏡美兰天地售楼处电话:400-8618-004

上海宝山美兰天地24小时vip热线📞☎:400-8618-004(一对一热情服务)

产业区内的生态绿洲

罗店的综合服务中心

🏡美兰天地售楼处电话:400-8618-004

上海宝山美兰天地24小时vip热线📞☎:400-8618-004(一对一热情服务)

秉持“人民城市人民建,人民城市为人民”的重要理念,如何在有限范围内构筑功能性的增长,同时不影响整个美兰湖的原有生态、环境、功能、结构等要素,补充美兰湖当前缺乏商务型集群的问题,以美兰湖为中心所构建的美兰湖综合服务中心恰好承担了这一项职能,依托美兰湖原有的绿色生态环境,打造为周边产业赋能的生态化的、绿色化的、人文化的核心功能区。

美兰天地售楼处营销中心:400-8618-004

🏡美兰天地售楼处电话:400-8618-004

上海宝山美兰天地24小时vip热线📞☎:400-8618-004(一对一热情服务)

曾经开发美兰湖的先锋——上置集团也提出了全新的思路:打造山水之间的商务群落,为周边集中入驻的产业提供一个与园区办公截然不同的高端商务配套服务中心——美兰天地。

🏡美兰天地售楼处电话:400-8618-004

上海宝山美兰天地24小时vip热线📞☎:400-8618-004(一对一热情服务)

高新产业集群下的生态商务中心

传统的园区型发展主要解决了企业办公和技术研发等需求,那么美兰天地项目则是在这些功能上做了差异化的定位补充。针对园区内普遍缺乏商务服务型的优质配套状况,将产品可定制化、功能可多样化的商业独栋引入,这就很大程度解决了企业主会客难、交流难的硬件限制。

同时因为其与美兰湖高尔夫俱乐部,属于同一家集团公司,因此也更容易实现资源上的互通,能够为企业的后续发展提供较多商业机会。这是作为整个美兰湖乃至罗店开发升级的一次全新尝试,以期望做到商务与产业交互、发展和生态协同、企业与城市共成长的良性互动措施,也是为后续发展中如何兼顾生态和产业的全新模板。

⚠🏠美兰天地售楼处电话:400-8618-004☎️

线上预约看房【享】专属优惠折扣

在售户型图丨项目介绍丨最新房源丨周边配套丨详细解答〢

售楼处24小时VIP电话:400-8618-004←【预约热线】

🏡美兰天地售楼处电话:400-8618-004

上海宝山美兰天地24小时vip热线📞☎:400-8618-004(一对一热情服务)

看房请提前致电预约,可享受内部渠道优惠!联系销售人员获取最新一房一价表,售楼处最新优惠底价!开发商销售人员将详细介绍每个户型的独特设计和优势,带您参观样板间,感受精装修的品质和温馨氛围。您还可以了解周边配套设施,包括高端购物中心、优质学校和便捷交通网络,让您的居住体验更加完美。

声明:本文由入驻焦点开放平台的作者撰写,除焦点官方账号外,观点仅代表作者本人,不代表焦点立场。