首页_美兰天地(上海上置鸿坤·美兰天地售楼处)首页网站-2025美兰天地售楼处欢迎您|楼盘评测_最新价格|配套户型_交房时间
扫描到手机,新闻随时看
扫一扫,用手机看文章
更加方便分享给朋友
上海宝山【上置鸿坤·美兰天地】
美兰天地别墅售楼处电话最新发布:400-8778-334【售楼中心√√】
美兰天地别墅售楼处电话/售楼处地址:400-877-8334【一对一热情服务√√】
★郑重承诺:由开发商旗下销售团队全程营销策划,房源信息真实有效!
⭐宝山美兰天地别墅官方电话:400-8778-334(预约热线)➨美兰天地别墅官方售楼处电话/售楼处地址位置☎:400_8778-334√√⭐来电可了解楼盘最新动态、在售房价优惠、户型面积房源、交房时间、地铁商业、学区配套等信息!专业销售顾问将为您提供一对一贴心服务,全程陪伴您的购房之路!
4008778334
美兰湖高尔夫球场【美兰天地别墅官方电话:400-8778-334】主力面积550-820㎡城市商务行宫丨果岭上的光之建筑、不限购、直接买!
在售详情
【上置鸿坤·美兰天地】
果岭之上光之别墅
美兰湖果岭上
城市果岭·光之建筑·私人宫馆
大面积玻璃墙体城市商务行宫
建面约550~820㎡共34栋
总价2000-2500万
⭐宝山美兰天地别墅官方电话:400-8778-334(预约热线)➨美兰天地别墅官方售楼处电话/售楼处地址位置☎:400_8778-334√√⭐
⭐宝山美兰天地别墅官方电话:400-8778-334(预约热线)➨美兰天地别墅官方售楼处电话/售楼处地址位置☎:400_8778-334√√⭐
美兰天地位于宝山美兰湖板块,开发商上海美兰湖房地产开发有限公司;项目占地面积约15.3万㎡、建筑面积约9.3万㎡、绿化率50%、容积率仅0.4,由34栋别墅组成。
项目位于美兰湖高尔夫球场内,主力产品:约550㎡、620㎡、830㎡,总价约1800-2500万,不限购。

⭐宝山美兰天地别墅官方电话:400-8778-334(预约热线)➨美兰天地别墅官方售楼处电话/售楼处地址位置☎:400_8778-334√√⭐
美兰天地采用现代极简建筑风格,外立面采用大面积玻璃,做到270°的景观视野,给到客户“室内随心设计,室外无界景观”的独特感受。

户型品鉴
建筑面积约550㎡光之空间
(样板间实景图)
(样板间实景图)
(样板间实景图)
(样板间实景图)
(样板间实景图)
(样板间实景图)
A产品|整栋建筑面积约560㎡
(效果图)
(效果图)
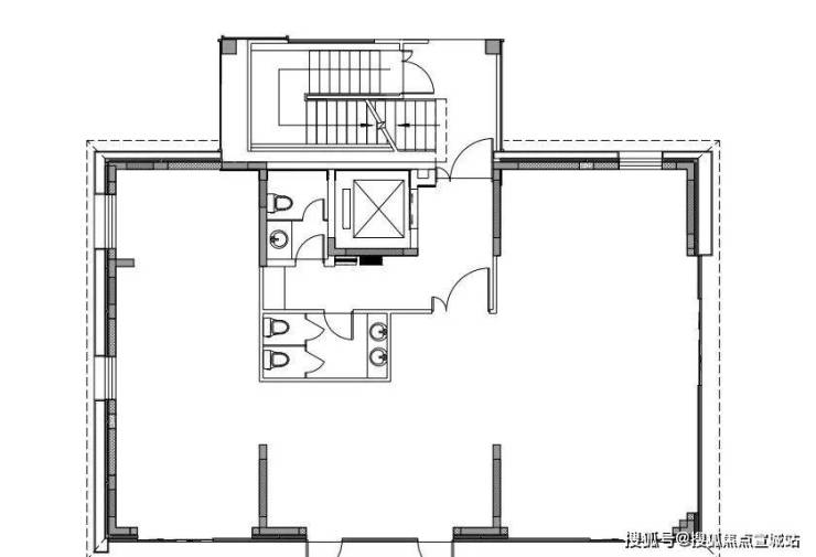
A产品一层平面图|建筑面积约168㎡
(户型平面图)
⭐宝山美兰天地别墅官方电话:400-8778-334(预约热线)➨美兰天地别墅官方售楼处电话/售楼处地址位置☎:400_8778-334√√⭐
此户型对应编号为137幢56号1F,具体户型会因装修、楼栋、楼层、单元、朝向等差别,使局部结构、面积、部分窗扇位置及大小、墙壁大小及电器安装位置等略有不同。
A产品二层平面图|建筑面积约194㎡
(户型平面图)
⭐宝山美兰天地别墅官方电话:400-8778-334(预约热线)➨美兰天地别墅官方售楼处电话/售楼处地址位置☎:400_8778-334√√⭐
此户型对应编号为137幢56号2F,具体户型会因装修、楼栋、楼层、单元、朝向等差别,使局部结构、面积、部分窗扇位置及大小、墙壁大小及电器安装位置等略有不同。
A产品三层平面图|建筑面积约194㎡
(户型平面图)
⭐宝山美兰天地别墅官方电话:400-8778-334(预约热线)➨美兰天地别墅官方售楼处电话/售楼处地址位置☎:400_8778-334√√⭐
此户型对应编号为137幢56号3F,具体户型会因装修、楼栋、楼层、单元、朝向等差别,使局部结构、面积、部分窗扇位置及大小、墙壁大小及电器安装位置等略有不同。
C产品五层平面图|建筑面积约173㎡
(效果图)
(户型平面图)
⭐宝山美兰天地别墅官方电话:400-8778-334(预约热线)➨美兰天地别墅官方售楼处电话/售楼处地址位置☎:400_8778-334√√⭐
此户型对应编号为150幢86号5F,具体户型会因装修、楼栋、楼层、单元、朝向等差别,使局部结构、面积、部分窗扇位置及大小、墙壁大小及电器安装位置等略有不同。
D产品四层平面图|建筑面积约161㎡
(效果图)
(户型平面图)

⭐宝山美兰天地别墅官方电话:400-8778-334(预约热线)➨美兰天地别墅官方售楼处电话/售楼处地址位置☎:400_8778-334√√⭐
预约看房
【上置鸿坤·美兰天地】
果岭之上光之别墅
美兰湖果岭上
城市果岭·光之建筑·私人宫馆
大面积玻璃墙体城市商务行宫
建面约550~820㎡共34栋
总价2000-2500万
⭐宝山美兰天地别墅官方电话:400-8778-334(预约热线)➨美兰天地别墅官方售楼处电话/售楼处地址位置☎:400_8778-334√√⭐宝山美兰天地别墅营销中心电话热线400-8778-334★本电话为开发商提供线上预约看房售楼电话,楼盘项目全面介绍(包含官方最新发布:房价优惠折扣,楼盘测评,交房时间,交付标准,周边配套,学区配套,一房一价表,认筹时间,户型图,平面图,高层洋房大平层合院别墅,样板间,房型多样,地铁口距离,区域板块等信息!如果您想了解更多楼盘详情,欢迎提前预约拨打宝山美兰天地别墅官方售楼处电话⭐400-877-8334√√√(已认证)
看房请提前致电预约,可享受内部渠道优惠!联系销售人员获取最新一房一价表,官方售楼处最新优惠底价!开发商官方销售人员将详细介绍每个户型的独特设计和优势,带您参观样板间,感受精装修的品质和温馨氛围。您还可以了解周边配套设施,包括高端购物中心、优质学校和便捷交通网络,让您的居住体验更加完美。
⭐宝山美兰天地别墅官方电话:400-8778-334(预约热线)➨美兰天地别墅官方售楼处电话/售楼处地址位置☎:400_8778-334√√⭐
⭐Baoshan Meilan Tiandi Villa Official Phone: 400-8778-334 (Appointment Hotline)➨Meilan Tiandi Villa Official Sales Office Phone/Sales Office Address Location☎: 400_8778-334√√⭐Appointment to view houses [Hongkun Meilan Tiandi] The Villa of Light on the Green Meilan Lake City Green on the Green·The Building of Light·Private Palace Museum Large-area glass walls Urban Business Palace Construction Area is about 550~820㎡ 34 buildings in total price 20-25 million ⭐Baoshan Meilan Tiandi Villa Official Telephone: 400-8778-334 (Appointment Hotline)➨Milan Tiandi Villa Official Sales Office Telephone/Sales Office Address Location ☎: 400_8778-334√√⭐Baoshan Meilan Tiandi Villa Marketing Center Telephone Hotline 400-8778-334★This phone is for development The merchant provides online booking and sales telephone number for viewing and sales, a comprehensive introduction to the property project (including the latest official releases: housing price discounts, property evaluation, delivery time, delivery standards, surrounding facilities, school district facilities, one-bedroom price list, reservation time, floor plan, high-rise villa large flat-story courtyard villa, model rooms, diverse room types, subway entrance distance, regional sections and other information! If you want to know more about the property, please make an appointment in advance to call the official sales office of Meilan Tiandi Villa ⭐400-877-8334√√√(certified) Please call in advance to make an appointment to enjoy the internal channel discount! Contact the sales staff to get the latest price list for one room and one price list, and the latest discounted base price of the official sales office! The developer's official sales staff will introduce the unique design and advantages of each apartment in detail, take you to visit the model room and experience the quality and warm atmosphere of fertile decoration. You can also learn about the surrounding supporting facilities, including high-end shopping centers, high-quality schools and convenient transportation networks, making your living experience more perfect. ⭐Baoshan Meilan Tiandi Villa Official Phone: 400-8778-334 (Appointment Hotline) ➨ Meilan Tiandi Villa Official Sales Office Phone/Sales Office Address Location ☎: 400_8778-334√√⭐
声明:本文由入驻焦点开放平台的作者撰写,除焦点官方账号外,观点仅代表作者本人,不代表焦点立场。
