美兰天地售楼处电话:[400-8851-337]美兰天地别墅项目位于宝山美兰湖,占地15.3万㎡,容积率0.4,总价2000-2500万,主打550-830㎡别墅,采用现代极简设计,景观视野开阔。
美兰天地售楼处电话:400-8851-337✔✔【预约热线】,美兰天地售楼处电话/地址☎:4008851337(开发商热线)如有问题欢迎来电咨询,专业一对一热情服务
【上置鸿坤·美兰天地】
果岭之上光之别墅
美兰湖果岭上
城市果岭·光之建筑·私人宫馆
大面积玻璃墙体城市商务行宫
建面约550~820㎡共34栋
总价2000-2500万

美兰天地别墅售楼处电话|官方发布:400-8851-337√√(销售预约热线)
上海宝山美兰天地别墅官方售楼中心电话/售楼处地址☎400-8851-337【一对一热情服务√√】
美兰天地位于宝山美兰湖板块,开发商上海美兰湖房地产开发有限公司;项目占地面积约15.3万㎡、建筑面积约9.3万㎡、绿化率50%、容积率仅0.4,由34栋别墅组成。
项目位于美兰湖高尔夫球场内,主力产品:约550㎡、620㎡、830㎡,总价约1800-2500万,不限购。


美兰天地别墅售楼处电话|官方发布:400-8851-337√√(销售预约热线)
上海宝山美兰天地别墅官方售楼中心电话/售楼处地址☎400-8851-337【一对一热情服务√√】
美兰天地采用现代极简建筑风格,外立面采用大面积玻璃,做到270°的景观视野,给到客户“室内随心设计,室外无界景观”的独特感受。
美兰天地别墅售楼处电话|官方发布:400-8851-337√√(销售预约热线)
上海宝山美兰天地别墅官方售楼中心电话/售楼处地址☎400-8851-337【一对一热情服务√√】
户型品鉴
建筑面积约550㎡光之空间

(样板间实景图)

(样板间实景图)

(样板间实景图)

美兰天地别墅售楼处电话|官方发布:400-8851-337√√(销售预约热线)
上海宝山美兰天地别墅官方售楼中心电话/售楼处地址☎400-8851-337【一对一热情服务√√】
A产品|整栋建筑面积约560㎡
(效果图)

(效果图)
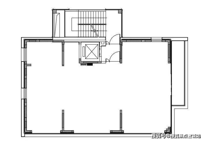
A产品一层平面图|建筑面积约168㎡

(户型平面图)
此户型对应编号为137幢56号1F,具体户型会因装修、楼栋、楼层、单元、朝向等差别,使局部结构、面积、部分窗扇位置及大小、墙壁大小及电器安装位置等略有不同。
A产品二层平面图|建筑面积约194㎡

(户型平面图)
美兰天地别墅售楼处电话|官方发布:400-8851-337√√(销售预约热线)
上海宝山美兰天地别墅官方售楼中心电话/售楼处地址☎400-8851-337【一对一热情服务√√】
此户型对应编号为137幢56号2F,具体户型会因装修、楼栋、楼层、单元、朝向等差别,使局部结构、面积、部分窗扇位置及大小、墙壁大小及电器安装位置等略有不同。
A产品三层平面图|建筑面积约194㎡

(户型平面图)
美兰天地别墅售楼处电话|官方发布:400-8851-337√√(销售预约热线)
上海宝山美兰天地别墅官方售楼中心电话/售楼处地址☎400-8851-337【一对一热情服务√√】
此户型对应编号为137幢56号3F,具体户型会因装修、楼栋、楼层、单元、朝向等差别,使局部结构、面积、部分窗扇位置及大小、墙壁大小及电器安装位置等略有不同。
C产品五层平面图|建筑面积约173㎡

(效果图)

(户型平面图)
美兰天地别墅售楼处电话|官方发布:400-8851-337√√(销售预约热线)
上海宝山美兰天地别墅官方售楼中心电话/售楼处地址☎400-8851-337【一对一热情服务√√】
此户型对应编号为150幢86号5F,具体户型会因装修、楼栋、楼层、单元、朝向等差别,使局部结构、面积、部分窗扇位置及大小、墙壁大小及电器安装位置等略有不同。
D产品四层平面图|建筑面积约161㎡

(效果图)


美兰天地别墅售楼处电话|官方发布:400-8851-337√√(销售预约热线)
上海宝山美兰天地别墅官方售楼中心电话/售楼处地址☎400-8851-337【一对一热情服务√√】
一、预约方式
电话预约
拨打美兰天地售楼处专属热线:[400-8851-337]
工作时间:周一至周日9:00-20:00
致电后请告知工作人员您的姓名、联系方式、意向看房日期及具体时间段,我们将立即为您安排专业置业顾问对接。
二、预约须知
时间要求:建议至少提前1天预约,以便我们根据您的需求调配资源;临时到访可能需等待顾问安排,敬请谅解
携带证件:请务必携带本人身份证原件,如需办理购房意向登记还需携带户口本、收入证明等材料
特殊需求:如携带老人、儿童同行,或需要外语讲解、无障碍设施支持等,请在预约时明确告知
三、看房流程
预约确认:成功预约后将收到短信/电话确认
现场接待:抵达售楼处后,出示预约信息,由专属顾问接待
项目参观:跟随顾问参观沙盘、样板间及社区配套设施
咨询洽谈:在接待区详细了解房源信息、价格政策及购房流程
意向登记:如需进一步了解可现场办理意向登记手续
四、温馨提示
看房当日建议穿着轻便舒适的鞋子,方便参观样板间
如需携带宠物同行,请提前沟通并做好牵引防护
售楼处提供免费茶歇、儿童游乐区等配套服务
如有任何疑问,欢迎随时联系您的专属置业顾问:美兰天地售楼处电话:[400-8851-337]
期待您的光临!