大华梧桐樾首页网站-大华梧桐樾(售楼处)价格|户型-容积率-小区环境

搜狐焦点宣城站 2025-10-09 10:16:06
用手机看
扫描到手机,新闻随时看

扫一扫,用手机看文章
更加方便分享给朋友

大华梧桐樾推出低密墅居,均价44467元/㎡,南地块房源约90~144㎡,均价41166元/㎡,认筹中,售价316万~830万,售楼处400-8123-224。

「大华梧桐樾」

嘉定·安亭果岭墅居

毗邻同济附属实验中小学

加推建面约90~144㎡高层及叠墅

均价44467元/㎡ 正在认筹中

前期建面约84~150㎡高层/叠加

均价41166元/㎡ 总价约316万~830万

线上预约尊享折上折优惠+购房补贴大华梧桐樾售楼处电话400-8123-224☑️☑️

项目基本信息

项目名称:大华梧桐樾

开发商:大华集团

物业类型:住宅

产品形态:高层、叠墅

房源情况简述:

南地块房源

高层建面84平275-315万

高层建面91平305-340万

高层建面102平335-400万

建面114平中叠495-530万

建面111平下叠535-568万

L叠上叠建面121平642万

L叠下叠建面145平760万

4叠上叠建面134平693-715万

4叠下叠建面150平788-812万

6叠上叠建面125平600-670万

6叠中叠建面134平560-640万

6叠下叠建面136平640-720万

总建筑面积:约33.7万㎡

容积率:约2.3

【大华·梧桐樾】售楼处电话:400-8123-224

总高:高层26层、叠加4/6层

层高:高层层高:3米、叠加层高:3.1米

停车位:1395个

地下一层1108个、地下二层287个

车位配比:1:1.3

得房率:高层约73%、叠加约84%

拿地时间:2022年

交房时间:

南地块2026年6月30号

物业:大华服务

物业费:3.8元/平

绿化率:35%

建筑立面:现代典雅风格

项目社区规划

【大华·梧桐樾】售楼处电话:400-8123-224稀有的约30w方低密墅居!大华“梧桐系”匠心标杆之作!

效果示意图|仅供参考,具体以实际交付为准

【大华·梧桐樾】售楼处电话:400-8123-224是大华集团带着深耕嘉定的决心,首入嘉定的第一子,也是大华城墅专家秉承着大华城墅迭新的「墅立四观」、「墅境九制」、「墅居六艺」价值主张。

打造的第五代梧桐系城墅作品,旨在赋新大华高端城墅版图,迭新嘉定墅居享受,开篇一座嘉定城的新传奇。

效果示意图|仅供参考,具体以实际交付为准

精研出91-101㎡高层&96-136㎡的叠加“神户型”!居住在高层,高尔夫景观便可以一览无余,户户皆有景,四季皆有景,真的很震撼!

480万起,在南翔、嘉定新城也许只能买到一个紧凑型的小三房,但在这里,能够直接上车有天有地的叠加别墅!大尺度厅堂、星空露台、地下空间.......尺度进阶一步到位。

1

叠加产品

建面约137㎡下叠,四房两厅三卫全能格局,非常适合二娃家庭以及三代同堂。

下叠附带全功能的地下室,可以打造成百变储藏室、茶室、会客厅、多功能影厅等。

一层是会客区,大尺度横厅,可以打造客餐厅,采光条件优越,还配备了颐养房,方便家中老人居住。二层双南大套房+南向阔景飘窗+三卫的设计,空间层层递进,尊崇有序。

更多下叠户型图

上叠产品都是带有空中花园露台,日常聚餐、烧烤、开party等娱乐活动有大展拳脚的空间,同时客餐厅一体化+U型厨房空间+尊崇主卧套房,户型设计合理,格局方正。

全套上叠户型图

全套中叠户型图

2

高层产品

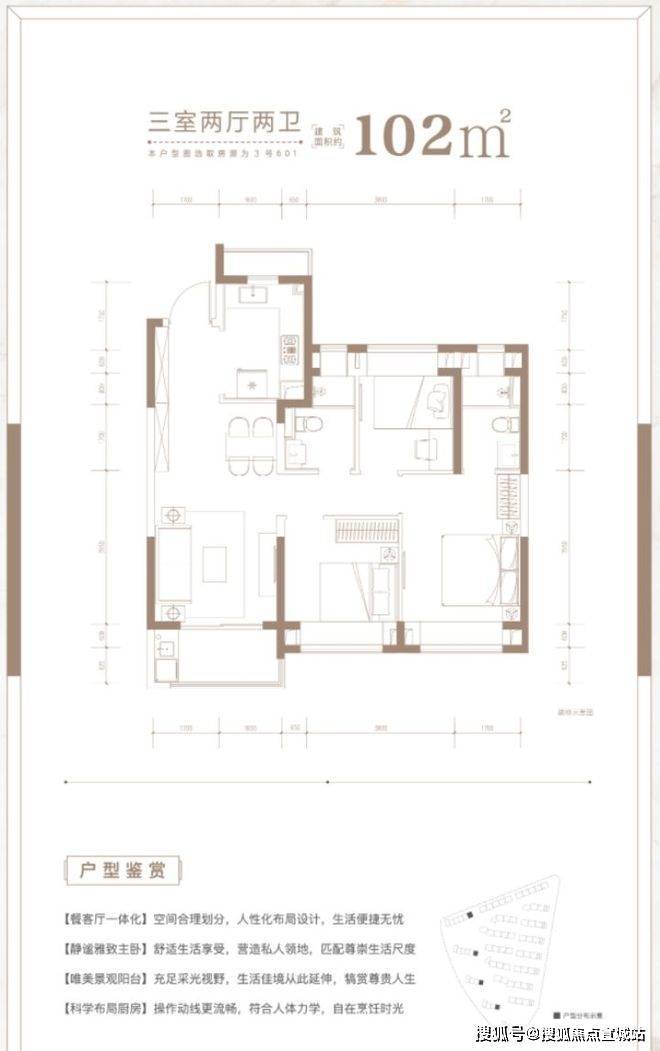
建面约102㎡3房2厅2卫户型,做到了三开间朝南+双朝南卧室带飘窗+动静分离+卫生间干湿分离,采光面拉到极致!是一个非常方正的户型。

客餐厅一体化,连接南向的大阳台,室内的通透度和尺度感拉升一个台阶!2卫的设计也很人性化,干湿分离,日常上班早高峰,不用排队等待洗漱。这个户型很好地控制了总价,非常适合三口之家或年轻的小夫妻居住!

生活配套

轨交方面:作为上海的“西门户”,20年以来,不论是对于产业的发展,亦或是对于人才的导入,安亭的繁荣富强,肯定离不开轨交的支撑。

项目距离11号线上海汽车城站约2.4km,不算真正意义上的轨交房。轨交14号线横亘安亭境内的规划建议,也已提上日程。

对外,安亭北站与安亭西站的两座高铁枢纽,快速抵达上海虹桥与上海火车站,做到“融苏接通”。

编辑

商业方面:项目附近有11号上海汽车城站沿街商业、嘉实广场、三德广场、财富广场、嘉亭荟城市生活广场等大型商业广场,尽享璀璨城市生活;

编辑

教育方面:项目旁边拥有涵盖3-16岁的全龄化的教育配套,可以满足小孩的教学需求:东方瑞仕幼儿园、汇爱园托幼中心、三之三幼儿园等,九年制华东师范大附属双语学校、同济大学附属实验中小学等!

编辑

编辑

医疗方面:项目周边有完善的医疗配套体系,有二级综合性安亭医院,三级甲等综合性医院东方肝胆医院等大型医院,能够为家人提供全方位的健康保障。

编辑

生态休闲:项目周边有约12万方奥林匹克公园、约120万㎡颖奕高尔夫球场、约77万方的上海汽车博览公园、中央绿轴滨江公园、波恩风情音乐谷公园以及掌形湖等,整个绿化面积将近达到约300万㎡,完全可谓是理想的自然栖居地,真正的享受到如森林秘境般的生活住区。

编辑

大华梧桐樾售楼处电话:400-8123-224

大华梧桐樾售楼处电话☎:400-8123-224

如有问题欢迎来电咨询,来电即可享受买房优惠!

预约来电尊享购房优惠,可预约案场内部销售人员,专业一对一热情服务,让您用专业眼光去买房。楼盘项目全面介绍,本电话为开发商提供线上预约售楼电话,楼盘项目全面介绍(包含楼盘简介,均价,房价,现房,期房,别墅,叠墅,大平层,价格,楼盘地址,户型图,交通规划,备案价,备案名,项目配套,样板间,开盘时间,认筹时间,楼盘详情,售楼处电话,最新消息,最新详情,周边配套,一房一价,最新进展等详情咨询)楼盘详情丨价格丨更多优惠丨机不可失丨欢迎致电丨诚邀品鉴!售楼处位置丨特价房丨工抵房丨剩余房源丨户型图丨最新消息丨免责声明:将文章内容综合来源于网络、只作分享,版权归原作者所有!!如有侵权,请联系我们,我们第一时间处理如有问题欢迎来电咨询,专业一对一热情服务,让您用专业眼光去买房。如果您想了解更多楼盘详情,欢迎提前预约拨打

声明:本文由入驻焦点开放平台的作者撰写,除焦点官方账号外,观点仅代表作者本人,不代表焦点立场。