象屿·天宸雅颂(售楼处)首页网站丨2025【象屿·天宸雅颂营销中心】项目欢迎您丨象屿·天宸雅颂售楼处电话/地址/备案价/楼盘详情
扫描到手机,新闻随时看
扫一扫,用手机看文章
更加方便分享给朋友
象屿·天宸雅颂售楼处电话:400-8862-334
上海闵行象屿·天宸雅颂
售楼处电话☎:400-8862-334【售楼处预约热线】(一对一热情服务)
看房请务必提前致电销售确认时间,只有预约客户才能享受开发商提供的内部优惠以及专属的老客户推荐奖励!我们提供专业的一对一热情服务,助您以专业视角挑选理想的房产。
楼盘项目全面介绍,本电话为开发商提供线上售楼电话,楼盘项目全面介绍(包含楼盘简介,房价,价格,楼盘地址,户型图,交通规划,备案价,项目配套,楼盘详情,售楼处电话,最新消息,最新详情,周边配套,最新进展等详情咨询)
6站前滩·8号线TOD枢纽·全臻装公园墅区
象屿·天宸雅颂
联排叠墅新品,入市在即!
另有1幢建面约89/108㎡高层同步加推
其中别墅是独立地块私密性很强,加上整盘TOD属性
离尘不离城的低密产品全市稍有!



象屿·天宸雅颂售楼处电话:400-8862-334
上海闵行象屿·天宸雅颂售楼处电话☎:400--8862-334(预约看房热线)
小高层预计为89/102/107/128/139平(89-107为3房,128-139为4房);
叠加预计145-156平,联排预计190-230平,(具体户型和面积以实际为准)。
户型图如下:(过程稿仅供参考,最终以实际为准)
「约89㎡ 3房2厅1卫」

象屿•天宸雅颂售楼处预约热线☎:400--8862-334√√
「约107㎡ 3房2厅2卫」

象屿•天宸雅颂售楼处预约热线☎:400--8862-334√√
「约107㎡ 3房2厅2卫」

象屿•天宸雅颂售楼处预约热线☎:400--8862-334√√
「约128㎡ 3房2厅2卫」

象屿·天宸雅颂售楼处电话:400-8862-334
上海闵行象屿·天宸雅颂售楼处电话☎:400--8862-334(预约看房热线)
「约140㎡ 4房2厅2卫」

象屿•天宸雅颂售楼处预约热线☎:400--8862-334√√
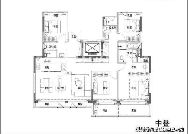
叠墅户型图如下:(过程稿,以开发商发布为准)


象屿•天宸雅颂售楼处预约热线☎:400--8862-334√√

象屿•天宸雅颂售楼处预约热线☎:400--8862-334√√项目优势如下:
1)象屿•天宸雅颂售楼处预约热线☎:400--8862-334√√地段站位优:该盘位于8号线沈杜公路地铁站旁,算是地铁上盖项目,距离该站点只有约300米。8号线是上海城市中轴线,可达浦东前滩、世博、浦西老西门、人民广场等上海地标。

象屿·天宸雅颂售楼处电话:400-8862-334
上海闵行象屿·天宸雅颂售楼处电话☎:400--8862-334(预约看房热线)项目乘坐8号线到往人民广场用时只需约40分钟,地铁出行非常快捷!
同时,该站点也可同站换乘浦江线,所以该盘地铁出行优势很大。
2)象屿•天宸雅颂售楼处预约热线☎:400--8862-334√√附近或有越江隧道:近期东川路越江隧道又有新动态,这也是闵行第三条越江隧道。大概方案或有两种走向:东川路-先新路&东川路-鲁南路!

无论如何走向,这条隧道都在象屿浦江项目南侧不远处,未来到往浦西,出行上将更有更多选择,对于象屿浦江项目来说也是一大利好。
3)象屿•天宸雅颂售楼处预约热线☎:400--8862-334√√房价占优:象屿•天宸雅颂项目高层住宅预计均价5.5-6万左右,相比江月路近7万联动价新房,低出不少;地铁仅相差3站路,但价格却便宜1万多/平,具备很高性价比。
同时,象屿•天宸雅颂项目也是8号线沿线最便宜的项目,没有之一!
同时项目还有低密度的叠加&联排产品,价格相对也较为实惠。
4)象屿•天宸雅颂售楼处预约热线☎:400--8862-334√√配套未来可期:8号线沈杜公路站目前暂无优质配套,但在该项目东侧,规划一处约15万方的商业用地,未来落成也将成为8号线沈杜公路站附近的商业中心。
同时浦锦街道经过多年发展,已积蓄了众多配套商业设施,如浦江城市生活广场、绿地乐和城以及浦江镇南部片区的万达广场等,距离该盘都在约4公里范围内。
5)象屿•天宸雅颂售楼处预约热线☎:400--8862-334√√社区设计较好:项目地面无车位,全人车分流,高层地块内还规划有风雨连廊以及大量的架空层,同时还打有会所,品质高端!
6)象屿•天宸雅颂售楼处预约热线☎:400--8862-334√√有小户型,总价可控:项目有89平小3房产品,预计总价400多万就能上车,相对宝山顾村价格大抵相当,但笔者更认为闵行浦锦街道预期更加充足。
8号线地铁盘
「象屿•天宸雅颂」
预计2025年4月首批房源入市
高层面积段预计89-139㎡3-4房
叠加预计145-156平,联排预计190-230平
高层预计均价5.5-6万/平
别墅预计均价6-7万/平
基本信息:
【开发商】象屿地产
【项目区位】一脉前滩·8号线枢纽
【占地面积】约69493㎡
【地上建筑面积】约14.9万㎡
【产品类别】高层、叠加、联排
【设计风格】海派+宋式美学
【总户数】约1254套(可售约1140套)
【容积率】01-02、01-03地块:2.4 | 03-02地块:1.2
【绿地率】约35%
【装修标准】集采价格不低于3000元/㎡
【车位比】01-02、01-03地块约1:13 | 03-02地块约1:2
01
大体量供应
高层&别墅产品均有
闵行浦江镇地铁8号线沈杜公路西侧——【象屿•天宸雅颂售楼处预约热线☎:400--8862-334√√】3幅宅地正式公示设计方案,总建筑面积约14.9万方,未来预计将有约1254套住宅供应。

象屿•天宸雅颂售楼处预约热线☎:400--8862-334√√项目作为新浦江中心首发项目,将主动嵌入到新浦江中心的规划与建设中,打造灵感与森态共栖、快链与漫步一体、烟火与精致并蓄、艺术与人文浸润的PARK TOD样板。
外立面采用精致铝板装饰+通透大窗的美学立面设计,打造弧面窄框艺术之境。

象屿·天宸雅颂售楼处电话:400-8862-334
上海闵行象屿·天宸雅颂售楼处电话☎:400--8862-334(预约看房热线)项目还打造约2500平会所,涵盖泳池、健身房、童玩区、瑜伽室、水吧区、私宴厅等高端设施。
社区还有约3000平架空层,打造全龄共享的生活志趣。

具体规划指标如下:
象屿•天宸雅颂售楼处预约热线☎:400--8862-334√√位于闵行浦江镇锦浦街道,8号线与浦江线沈杜公路站的西边。地块西侧就是浦江郊野公园,东侧则是保留的商办用地,未来或将围绕地铁站打造TOD综合体。

象屿•天宸雅颂售楼处预约热线☎:400--8862-334√√

象屿·天宸雅颂售楼处电话:400-8862-334
上海闵行象屿·天宸雅颂售楼处电话☎:400--8862-334(预约看房热线)
地块信息
01-03:出让面积25684.46m²,容积率2.4
01-02:出让面积22014.96m²,容积率2.4
03-02:出让面积21793.14m²,容积率1.2
总建筑面积:140630.376m²
地块四至
01-03:东至南官路,南至沈杜公路,西至大寨河,北至昌林路
01-02:东至南官路,南至悦亭路,西至大寨河,北至昌林路
03-02:东至浦星公路,南至姚家浜,西至大寨河,北至沈杜公路

象屿•天宸雅颂售楼处预约热线☎:400--8862-334√√
01-02(最北面)规划8幢楼,总高17-18层,除了南面靠马路的二幢楼外,其余一楼采用架空层,南北楼间距30米。地块内全部为商品房。
规划可售住宅约524套,将推出建面约89-128㎡3-4房。


象屿·天宸雅颂售楼处电话:400-8862-334
上海闵行象屿·天宸雅颂售楼处电话☎:400--8862-334(预约看房热线)01-03(中间),规划10幢楼,其中一幢为保障房,总高17-18-20层,小区中心位置的商品一楼为架空层,南北楼间距30米。
规划可售住宅约472套,将推出建面约89-139㎡3-4房。
01-03地块规划有下沉式庭院,地下会所,该地块距离地铁站也更近一些!


象屿·天宸雅颂售楼处电话:400-8862-334
上海闵行象屿·天宸雅颂售楼处电话☎:400--8862-334(预约看房热线)03-02(最南面),规划13幢总高3-4-7层低密度住宅,3层(联排别墅)总高10米,4层(上下叠加)总高13米,7层(平层洋房)总高24米,南北楼间距12-15米。
该地块将推出叠墅以及联排产品,共计约182套!
02
地处浦江新中心
象屿•天宸雅颂售楼处预约热线☎:400--8862-334√√交通&配套基本成熟
作为上海中心城辐射区,闵行六大地区中心之一,前滩南门户,浦东四大城镇圈之一,浦江地区中心占据特有的平台区位优势。

象屿·天宸雅颂售楼处电话:400-8862-334
上海闵行象屿·天宸雅颂售楼处电话☎:400--8862-334(预约看房热线)新浦江中心沿袭闵东文创中心定位,以蓝绿环绕为基底,历史人文为内涵,产业更新为驱动,新浦江中心将街接闵行与浦东新区,打造黄浦江沿岸崭新的生态交织、文化自信、产城融合能量聚集地。

象屿·天宸雅颂售楼处电话:400-8862-334
上海闵行象屿·天宸雅颂售楼处电话☎:400--8862-334(预约看房热线)
信息来源:上海市闵行区总体规划暨土地利用总体规划(2017-2035)
新浦江新中心将围绕沈杜公路TOD打造创智总部湾、大型商业、艺术街区、文化展览、滨水码头、高端住宅等,以世界前沿Live-Work-PlayShop模式,为上海打造高度复合等职住平衡10分钟生活圈。
象屿•天宸雅颂售楼处预约热线☎:400--8862-334√√项目高层的东侧规划约15万方商业,按照正常逻辑来讲,该商业地块应于住宅一并打包出让,共同组成真正的TOD项目,但目前做了拆分,可能是因为连带商业一并出让,无开发商愿意接盘,因此住宅地块进行了单独出让!

象屿·天宸雅颂售楼处电话:400-8862-334
上海闵行象屿·天宸雅颂售楼处电话☎:400--8862-334(预约看房热线)
这种情况造成的局面就是商业规划落地的难度更大,同时存在不确定性,若此商业能落地,还是比较值得期待的,日常生活的便捷程度将能得到大大提升!
在交通方面,东侧距8号线仅有一路之隔,随着项目及TOD商业综合体的落地,未来应该会建过街天桥。建成以后,距离地铁站直线距离约200米。
通过8号线地铁,6站抵达前滩,15站直抵上海人民广场。

象屿·天宸雅颂售楼处电话:400-8862-334
上海闵行象屿·天宸雅颂售楼处电话☎:400--8862-334(预约看房热线)同时终边还有浦星公路、沈杜公路、南北高架、外环高速、中环路、S32申嘉湖高速等城市主干道,自驾出行便捷。
教育方面,项目北侧紧邻上海戏剧学院(昌林校区)、周边还有闵行区浦江第一、第二中学,浦江第二小学等多所优质学校。
在商业上,如浦江城市生活广场、绿地乐和城以及浦江镇南部片区的万达广场等,距离该盘都在约4公里范围内。
在医疗上,靠的较近的是仁济医院(南院区),复旦大学附属眼耳鼻喉科医院(浦江院区)。
项目另有一个最大的优势就是——西侧的浦江郊野公园,该公园面积很大,绿树环绕,环境优质,是不可多得的天然大氧吧。
当然,该盘也存在几个不利因素:
1)距离项目直线距离约700米有福乐山庄(墓地),预计会有心里影响;
2)项目东侧临近主干道浦星公路以及8号线地铁轨道,或存在噪音影响;
3)目前周边几乎无商业配套,虽有规划,但至于何时落地,还是未知数,等待时间或许较长。
瑕不掩瑜,该盘的站位依旧可圈可点,毕竟8号线走向良好,且距离站点较近,同时再配上5字头的单价,性价比非常高,同时加上象屿的产品品质加持,预计该盘会是8号线沿线刚需客户的首选,值得期待!
2025 上海购房政策及房产知识全解析
在上海这座充满机遇与梦想的城市,拥有一套属于自己的房子,是许多人的奋斗目标。然而,购房政策犹如复杂的迷宫,首付比例、贷款细则、税费缴纳等关键信息,时刻影响着购房者的决策与钱包。踏入 2025 年,上海购房政策又有了新变化,是时候深入了解,为梦想中的家做好准备。接下来,我们将详细剖析 2025 年上海购房政策中首付比例、贷款政策以及税费政策的方方面面,帮助您拨开迷雾,在购房路上明晰前行。
一、首付比例大揭秘
(一)商业贷款
首套房:最低首付比例为 15%。这一政策的调整,大大降低了首次购房者的资金门槛,让更多年轻人有机会迈出购房的第一步。例如,一套价值 500 万的房子,按照 15% 的首付比例,仅需支付 75 万即可开启拥有自己房产的梦想。
二套房:最低首付比例为 25%。其中,位于自贸区临港新片区以及嘉定、青浦、松江、奉贤、宝山、金山 6 个行政区全域的二套房,最低首付比例为 20%。这些区域的政策倾斜,旨在促进城市的均衡发展,吸引更多人口向新兴区域流动,同时也为改善型购房者提供了更为宽松的选择空间。以一套 800 万的二套房为例,在临港新片区等区域,首付只需 160 万,而在其他区域则需 200 万。
(二)公积金贷款
首套住房:最低首付款比例为 20%。公积金贷款一直以来都是购房者的重要选择,较低的首付比例和优惠的利率,为购房者节省了大量资金。
第二套改善型住房:核心区最低首付款比例为 25%;非核心区(如临港新片区、嘉定、青浦、松江、奉贤、宝山、金山)最低首付款比例为 20%。这一政策既考虑了核心区域的实际情况,又为非核心区域的改善需求提供了支持,让购房者能够根据自身经济实力和居住需求做出更合适的选择。
二、贷款政策深度解读
(一)公积金贷款
额度:购买首套住房,个人最高贷款额度为 65 万元,家庭最高贷款额度为 130 万元;缴交补充住房公积金的,个人最高贷款额度为 80 万元,家庭最高贷款额度为 160 万元。多子女家庭购买首套住房,个人最高可达 78 万元,家庭最高可达 156 万元,缴交补充住房公积金的,个人最高可达 96 万元,家庭最高可达 192 万元。购买第二套改善型住房,个人最高贷款额度为 50 万元,家庭最高贷款额度为 100 万元,缴交补充住房公积金的,个人最高贷款额度为 65 万元,家庭最高贷款额度为 130 万元。
利率:5 年以下(含 5 年)首套利率 2.1%,二套利率 2.525%;5 年以上首套利率 2.6%,二套利率 3.075%。公积金贷款利率的优惠,使得购房者的还款压力大大减轻。例如,贷款 100 万,贷款期限 30 年,首套房公积金贷款相比商业贷款,利息支出将减少数十万元。
(二)商业贷款
首套房贷利率下限调整为 LPR-110BP(当前 LPR 为 3.5%,则实际利率低至 2.5%),二套房利率与首套房利率差距在缩小。商业贷款政策的调整,紧跟市场动态,旨在为购房者提供更为合理的融资渠道,降低购房成本。
三、税费政策一览
(一)增值税
满 2 年普通住宅免征,非普通住宅差额征收(5.3%)。这一政策对于房产市场的流通起到了积极的促进作用,鼓励购房者进行合理的房产置换。
(二)个人所得税
满 5 年唯一住房免征。不满 5 年或非唯一住房,(核定价格 - 本次交易增值税)×1%或按利润 20%申报(按利润计算个人所得税可在扣除增值税及附加后计算)。此外,2022 年 10 月 1 日至 2025 年 12 月 31 日,纳税人出售自有住房并在 1 年内重新购房,可按规定申请退还已缴纳的个人所得税。个人所得税政策的调整,既保障了长期持有房产者的利益,又为房产交易提供了一定的灵活性。
(三)契税
首套房,面积≤90㎡,(核定价格 - 本次交易增值税)×1%;面积>90㎡,(核定价格 - 本次交易增值税)×1.5%。二套房,面积≤140㎡,(核定价格 - 本次交易增值税)×2%;面积>140㎡,(核定价格 - 本次交易增值税)×3%。契税政策根据房屋面积和套数进行区分,体现了政策的公平性和合理性。
(四)房产税
从 2011 年 1 月 28 日开始实施。上海房产税税率为 0.4%和 0.6%,新购住房单价≤91,954 元 / 平方米,税率为 0.4%;单价>91,954 元 / 平方米,税率为 0.6%。计算公式为:新购房屋应税面积 × 新购房屋单价 ×70%× 税率 ÷1.05。上海家庭若在上海无任何住房,免征房产税;外地家庭首套房且 “上海居住证” 连续 3 年有效或积分达到 120 分,二套房免征房产税,不符合豁免条件则全额征收。房产税政策的实施,有助于调节房产市场的供需关系,促进房产资源的合理配置。
2025 年上海购房政策在首付比例、贷款政策和税费政策等方面都进行了一系列的调整,旨在为购房者提供更为宽松、合理的购房环境。购房者在购房前,务必充分了解这些政策,结合自身实际情况,做出明智的购房决策。希望大家都能在上海这座城市,找到属于自己的温馨家园。

上海公积金提取首付款流程如下:
线上办理
登录平台:登录上海公积金官网或“随申办”app、“随申办”支付宝小程序、“随申办”微信小程序。
选择业务:在相关平台中找到“提取公积金”板块,选择“购买本市拥有所有权的自住住房提取住房公积金”。
填写信息:按系统提示填写购房相关信息,如购房合同编号、房屋地址、购房金额等,同时填写提取金额、本人名下的中资银行一类账户借记卡信息和手机号码等。
上传材料:上传购房合同、购房全额发票(购买二手房无法提供发票的,需提供契税完税证明)、所购住房的不动产权证(含原房地产权证)(发证之日起5年内)、提取人与购房人的关系证明等材料。
提交申请:确认信息无误后,提交提取申请。
审核与到账:公积金管理中心进行审核,审核通过后,提取资金将转入申请人指定的银行账户。
线下办理
准备材料:携带本人身份证件、购房合同、购房全额发票(购买二手房无法提供发票的,需提供契税完税证明)、所购住房的不动产权证(含原房地产权证)(发证之日起5年内)、提取人与购房人的关系证明、本人名下的中资银行借记卡。
前往网点:根据自身情况,选择建设银行住房公积金业务网点或者上海市公积金管理中心业务网点。
提交申请:向工作人员提交准备好的材料,填写提取申请表。
审核与到账:工作人员审核材料,审核通过后,公积金管理中心将提取资金转入申请人指定的银行账户。
苏州公积金提取首付款流程如下:
购买新建商品住房
准备材料:购房职工需线上或线下查询打印公积金缴存证明,作为自有资金证明。同时准备好身份证件原件、婚姻关系证明或户口簿原件及《委托书》。
签订合同:与开发企业签订《商品房买卖合同》。
提交申请:携带上述材料到住房公积金服务窗口申请提取住房公积金用于支付购房款。
审核与划转:住房公积金服务窗口工作人员对提交的材料进行审核,对于符合提取条件的,预售商品住房即时将提取资金转入开发企业预售资金监管专用账户,现售商品住房即时将提取资金转入开发企业收款账户。
购买存量商品住房
准备材料:购房职工线上或线下查询打印公积金缴存证明,作为自有资金证明。同时准备好身份证件原件、婚姻关系证明或户口簿原件及《委托书》。
签订协议:与卖房人签订《存量房交易信息确认书》或《存量房买卖合同》,同时买卖双方须与房地产市场和交易管理中心签订《存量房交易资金托管协议》。为保证交易资金安全,《存量房交易资金托管协议》载明的购房职工支取账户应设置为公积金中心的指定退款账户。
提交申请:携带《存量房交易信息确认书》或《存量房买卖合同》《存量房交易资金托管协议》等材料,到住房公积金服务窗口申请提取住房公积金。
审核与划转:住房公积金服务窗口工作人员对提交的材料进行审核,符合提取条件的,即时办结相关业务手续,并按资金托管业务流程将提取资金转入存量房资金托管账户。
杭州公积金提取首付款流程如下:
线上办理流程
职工确认可用公积金余额并提出申请:缴存职工先查询公积金账户内可用余额,在签订购房网签合同前,向商品房开发商提出使用住房公积金直付购房首付款的需求。
开发商录入与选择:开发商录入网签合同信息,确定采用公积金首付支付首付款方式。
职工线上提交申请:缴存职工登录“浙里办”app或浙江政务服务网(hz.zjzwfw.gov.cn/)“公积金提取——购买自住住房提取”办事界面,选择“办理公积金直付购房首付款业务”,按提示填报公积金申请提取金额,确认购房合同和公积金直付的资金监管账户等信息后,提交业务申请。
开发商备案网签合同:开发商提交确认购房网签合同备案。
中心审核与划转资金:中心接到购房网签合同信息后,联网审核缴存职工提取申请,3个工作日内将申请提取的住房公积金,直接划转至指定资金监管账户。
线下办理流程
准备材料:职工本人有效身份证件;购买商品房或经济适用住房的,提供商品房买卖合同、购房发票或统一收款收据;职工本人名下Ⅰ类银联储蓄卡;配偶、父母、子女提取的需提供有效关系证明(结婚证、同一住址的户口簿、出生证或独生子女证等)。
前往网点办理:携带上述材料原件至省直住房公积金中心各服务网点办理。
嘉兴公积金提取首付款流程如下:
适用范围
符合以下条件的购房人及其直系亲属(指配偶、父母、子女)可申请提取个人住房公积金账户内的住房公积金用于支付购房首付款:
在嘉兴市行政区域内购买二手自住住房。
申请人家庭名下无未结清的住房公积金贷款。
提取额度
申请人合计提取住房公积金的总额不得超过《浙江省存量房买卖合同》或《资金监管协议书》中约定的首付款金额,且不超过当日个人住房公积金账户余额。
拟申请住房公积金贷款的,个人住房公积金账户内应留出符合贷款规定的留存金额(符合存贷不挂钩政策的除外),提取总额与住房公积金贷款额合计不得超过房屋总价。
申请材料
申请人身份证明。
属于直系亲属关系申请提取的,提供直系亲属关系证明(或签署关系承诺书)。
《职工提取住房公积金支付二手房首付款承诺书》。
房屋出售方身份证明、本人在受托银行范围内开立的实名制一类借记卡。
拟购房屋不动产权证书。
《浙江省存量房买卖合同》或《资金监管协议书》。
办理程序
查询:申请人线上或线下查询打印个人住房公积金账户余额作为首付款参考。
申请:申请人及房屋出售方携带上述申请材料原件到购房地公积金管理部门或公积金业务受托银行网点提出申请并填写《承诺书》,确定提取金额。申请不能委托他人代办。
审核、资金划转
通过资金监管账户的:公积金管理部门对申请人提交的材料进行审核,审核通过后,将提取的住房公积金转入《承诺书》约定的资金监管账户,房屋过户手续完成后,资金监管单位将资金划转至出售方收款账户,同时向公积金管理部门反馈交易结果。
尚未建立或不通过资金监管账户的:公积金管理部门对申请人提交的材料进行审核,审核通过后,办理购房提取住房公积金登记,同时对申请人住房公积金账户暂时锁定,不再办理其它提取业务。公积金管理部门确认房屋过户手续完成后,将申请资金划转至出售方收款账户,同时解除对申请人公积金账户的锁定。
上海闵行象屿·天宸雅颂
售楼处电话☎:400-8862-334【售楼处预约热线】(一对一热情服务)
看房请务必提前致电销售确认时间,只有预约客户才能享受开发商提供的内部优惠以及专属的老客户推荐奖励!我们提供专业的一对一热情服务,助您以专业视角挑选理想的房产。
楼盘项目全面介绍,本电话为开发商提供线上售楼电话,楼盘项目全面介绍(包含楼盘简介,房价,价格,楼盘地址,户型图,交通规划,备案价,项目配套,楼盘详情,售楼处电话,最新消息,最新详情,周边配套,最新进展等详情咨询)
声明:本文由入驻焦点开放平台的作者撰写,除焦点官方账号外,观点仅代表作者本人,不代表焦点立场。
