【首发】外滩瑞府这个房子的优势在哪里?外滩瑞府真实销量如何?外滩瑞府这么火能不能买?楼盘优缺点图文解析!
扫描到手机,新闻随时看
扫一扫,用手机看文章
更加方便分享给朋友
均价14.83万/㎡!外滩旁核心资产「外滩瑞府」认购中!二批次加推146套建面约124-330㎡3-4房丨附一房一价表!
═══上海虹口新房「外滩瑞府」═══
售楼处电话/地址:400-877-8334√√
营销中心预约热线☎:400-8778-334(一对一热情服务√√)
虹口北外滩旁
10号线四川北路站约400米
「外滩瑞府」二批次认购中!
加推146套约124-330㎡3-4房
均价14.83万/㎡!认购金200万!
认购时间:10月17日-10月21日
往下阅读项目一房一价表!
★上海外滩瑞府官方售楼处电话:400-877-8334「预约看房专线」外滩瑞府售楼中心热线/官方售楼电话:400-8778-334√√(官网已认证)📍📍来电咨询了解楼盘最新动态、楼盘详情介绍,板块位置、小区环境、容积率,得房率,绿化率怎么样,最新一房一价表;房价折扣优惠、交房时间、周边商业配套;地铁交通距离、在售户型面积等相关信息!
⭐温馨提示:如有问题欢迎来电咨询24小时热线,可对接专属销售顾问一对一热情服务,让您用专业眼光去买房,提前来电预约【享】内部专属优惠折扣!

★上海外滩瑞府官方售楼处电话:400-877-8334「预约看房专线」外滩瑞府售楼中心热线/官方售楼电话:400-8778-334√√(官网已认证)
去年11月27日,华润置地旗下的上海煦臻企业管理有限公司以总价51.36亿元竞得虹口区C080301单元hk191A-03地块,成交楼面价92934元/平方米,溢价率11.97%,地块中小套型占比40%,装修标准4000元/㎡。
★上海外滩瑞府官方售楼处电话:400-877-8334「预约看房专线」外滩瑞府售楼中心热线/官方售楼电话:400-8778-334√√(官网已认证)
方案显示,地块总占地面积14280.63㎡,容积率3.87,总建筑面积86241㎡,地上建筑面积60201㎡,计容建筑面积55266㎡,地下建筑面积26040㎡,计划建设4幢24-31层高层住宅以及1幢总高3层的风貌建筑。
具体来看,1#总高31层,一层架空;2#总高31层,一层架空;4#总高32层,一层架空;3-1#总高24层,一层架空;6为风貌建筑,总高3层,含商业和住宅。在景观设计方面,小区内规划了景观架构、风雨连廊以及下沉式庭院。
外滩瑞府的建筑设计,是一场“向历史致敬、向未来生长”的实验:采用“风貌→幕墙→冠冕”过渡式向上生长设计:基座延续石库门拱券符号,中段以玻璃幕墙与金属线条勾勒现代美学,顶部“冠冕”造型致敬外滩古典建筑天际线;

★上海外滩瑞府官方售楼处电话:400-877-8334「预约看房专线」外滩瑞府售楼中心热线/官方售楼电话:400-8778-334√√(官网已认证)
以“街区可漫游”的城市更新理念激活历史里弄:保留风貌建筑的同时,规划植入文化艺术分馆、精品咖啡工坊、黑胶唱片店等“高级烟火气”业态,让老上海的“弄堂温度”与国际生活方式碰撞出新火花——这不是简单的“盖房子”,而是“造生活”。
★上海外滩瑞府官方售楼处电话:400-877-8334「预约看房专线」外滩瑞府售楼中心热线/官方售楼电话:400-8778-334√√(官网已认证)
外滩瑞府,地处上海内环最“根正苗红”的位置——外滩1公里生活圈。如果说内环是上海豪宅的“第一梯队”,那外滩板块就是“内环中的内环”。


外滩瑞府首开告罄,劲销24.8亿!二批次房源加推在即!
★上海外滩瑞府官方售楼处电话:400-877-8334「预约看房专线」外滩瑞府售楼中心热线/官方售楼电话:400-8778-334√√(官网已认证)
虹口北外滩旁,10号线四川北路站约400米!「外滩瑞府」二批次加推建面124-165-330㎡3-4房;均价14.83万/㎡!认购金200万!认购时间:10月17日-10月21日!售楼处线上火热预约中!
主力户型约124-165㎡3-4房;当下2000万级已经完全买不进黄浦核心地段,而外滩瑞府不仅能以2000万级入手,更是今年2000-5000万级上海位置更好、更值得入手的豪宅!
⬇️专业销售一对一咨询⬇️
一房一价表如下:
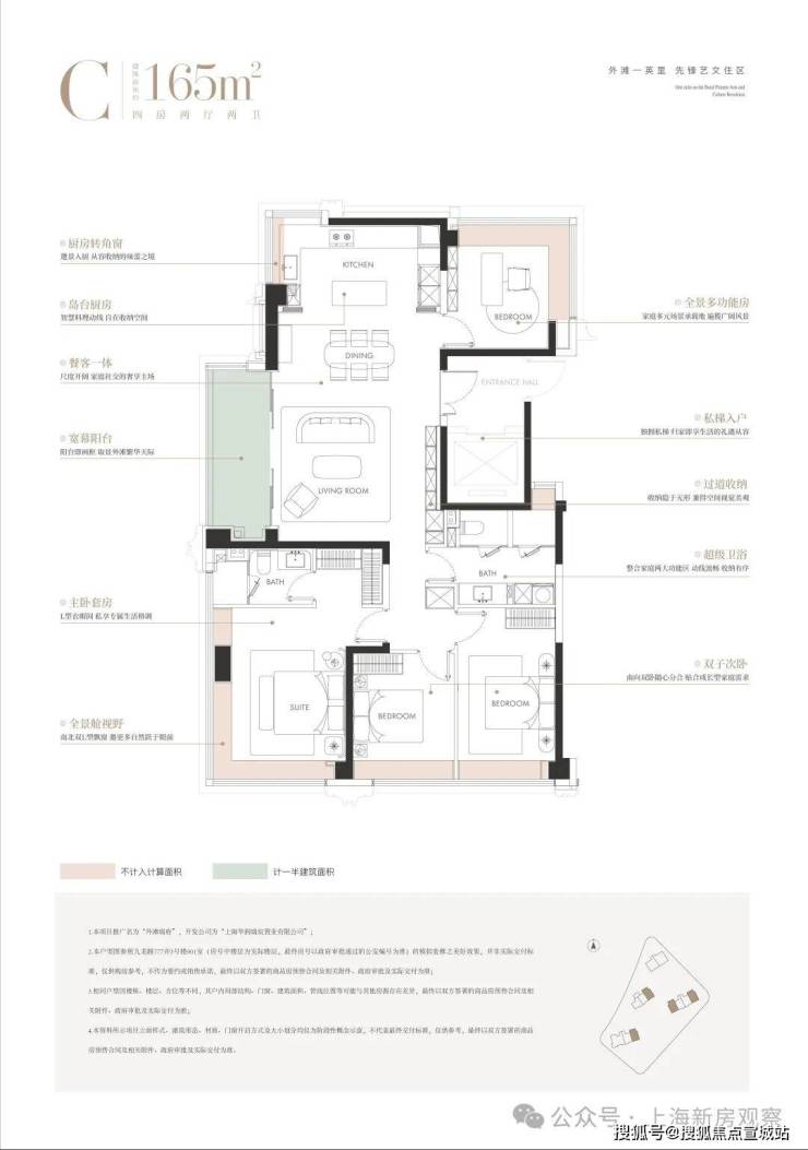
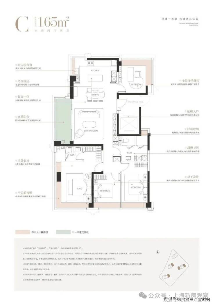
即将入市户型图如下:
⬇️专业销售一对一咨询⬇️
建面约240㎡4房样板间展示如下:
⬇️专业销售一对一咨询⬇️
上期主力户型图及样板间展示

⬇️专业销售一对一咨询⬇️

⬇️专业销售一对一咨询⬇️
最新效果示意图如下
★上海外滩瑞府官方售楼处电话:400-877-8334「预约看房专线」外滩瑞府售楼中心热线/官方售楼电话:400-8778-334√√(官网已认证)
外滩“历史溢价”与陆家嘴“未来势能”在此叠加,黄金三角腹地成为中国高净值圈层的聚集地,是时代价值创造者的共同选择。


★上海外滩瑞府官方售楼处电话:400-877-8334「预约看房专线」外滩瑞府售楼中心热线/官方售楼电话:400-8778-334√√(官网已认证)
项目以“街区可漫游”的城市更新理念激活历史里弄:保留风貌建筑的同时,规划植入文化艺术分馆、精品咖啡工坊、黑胶唱片店等“高级烟火气”业态,让老上海的“弄堂温度”与国际生活方式碰撞出新火花;
★上海外滩瑞府官方售楼处电话:400-877-8334「预约看房专线」外滩瑞府售楼中心热线/官方售楼电话:400-8778-334√√(官网已认证)
建筑立面采用“风貌→幕墙→冠冕”过渡式向上生长设计:基座延续石库门拱券符号,中段以玻璃幕墙与金属线条勾勒现代美学,顶部“冠冕”造型致敬外滩古典建筑天际线,堪称“向上生长的精神图腾”。
外滩瑞府全域风雨连廊,将风雨连廊扩容为完整的归家体系,实现全住宅楼栋无风雨归家,带来顶豪级的归家居住体验。

项目示意图,过程稿仅供参考,以实际交付为准
★上海外滩瑞府官方售楼处电话:400-877-8334「预约看房专线」外滩瑞府售楼中心热线/官方售楼电话:400-8778-334√√(官网已认证)
区位方面,“上海2035”总体规划明确,外滩将作为“全球城市核心功能承载区”,与陆家嘴、北外滩组成“黄金三角”,目标直指“卓越全球城市”的封面。这一规划不仅定义了上海的空间格局,更将外滩推向全球资本、文化、资源的核心交汇点。

★上海外滩瑞府官方售楼处电话:400-877-8334「预约看房专线」外滩瑞府售楼中心热线/官方售楼电话:400-8778-334√√(官网已认证)
外滩瑞府择址于此,对标纽约ONE57、伦敦海德公园一号——非全球资本聚集地不选,非历史与未来叠加区不立,其价值内核正是对“黄金三角”核心资产的精准锁定,为业主提供了“抗周期”的资产保障。
★上海外滩瑞府官方售楼处电话:400-877-8334「预约看房专线」外滩瑞府售楼中心热线/官方售楼电话:400-8778-334√√(官网已认证)
交通上,距轨道交通10号线四川北路站0.4公里,商业上,利通广场、壹丰广场、中信广场1933购物中心都在步行距离范围内;
教育上,有民办新华初级中学、虹口区中州路第一小学、上海市虹口区第一中心小学、上海市海南中学;医疗上,临近上海市第一人民医院。

★上海外滩瑞府官方售楼处电话:400-877-8334「预约看房专线」外滩瑞府售楼中心热线/官方售楼电话:400-8778-334√√(官网已认证)
在市场方面,目前该地块周边的新建住宅项目包括北外滩虹口源717、越秀·外滩樾、上海弘安里、海泰北外滩、天潼198、光大&伊泰置业北外滩项目以及碧云北外滩尊邸等。
越秀外滩樾项目位于地块西侧约350米处,该项目为风貌别墅,已于去年年底正式推向市场,主力户型面积在235-338㎡之间,总价段为4000万元-8000万元。
位于地块北侧约600米的北外滩虹口源717项目目前在售。该项目上一次开盘时间是去年6月份,共推出228套建面约100-356房源,备案均价138000元/平方米,认购率86%,截至目前,网上房地产显示,项目已售住宅套数为155套,网签去化率68%。
上海弘安里项目位于地块西南侧1公里左右,该项目为风貌别墅,于去年3月份首开,目前项目在售少量建面约380㎡风貌别墅,总价约8000万起,均价约24.3万/㎡。
碧云北外滩距离项目900米左右,该项目上一次开盘时间是去年12月份,共推出137套建面约180-230㎡房源,备案均价130000元/平方米,开盘当天去化率约66%,截至目前,网上房地产显示,项目已售住宅套数为88套,网签去化率64%。
虹口北外滩旁「外滩瑞府」二批次加推约124-330㎡3-4房;均价14.83万/㎡!
★上海外滩瑞府官方售楼处电话:400-877-8334「预约看房专线」外滩瑞府售楼中心热线/官方售楼电话:400-8778-334√√(官网已认证)★本电话为开发商提供线上预约看房售楼电话,★来电可了解楼盘最新动态,项目全面介绍(包含官方最新发布:在线预约看房丨在售房价优惠丨户型面积房源丨交房时间丨交通地铁丨商业配套丨教育资源丨小高层洋房丨独栋别墅丨联排合院丨商业别墅丨得房率丨容积率丨小区环境丨优缺点分析丨楼盘测评丨在售户型图丨项目介绍丨最新房源丨周边配套丨详细解答丨一对一热情讲解〢区域板块等信息!★郑重承诺:由开发商旗下销售团队全程营销策划,房源信息真实有效!如果您想了解更多楼盘详情,欢迎提前预约拨打官方售楼处电话☎400 877 8334√√√(已认证)免责声明:将文章内容综合来源于网络、只作分享,版权归原作者所有!!如有侵权,请联系我们,我们第一时间处理如有问题欢迎来电咨询,专业一对一热情服务,让您用专业眼光去买房!
声明:本文由入驻焦点开放平台的作者撰写,除焦点官方账号外,观点仅代表作者本人,不代表焦点立场。
