融创外滩壹号院售楼处电话-融创外滩壹号院(上海)首页网站-融创外滩壹号院最新房价-户型-容积率-小区配套-楼盘详情/价格/户型
扫描到手机,新闻随时看
扫一扫,用手机看文章
更加方便分享给朋友
黄浦南外滩顶豪「融创外滩壹号院」1000㎡摘星复式入市,270°天际视野俯瞰黄浦江、总价约2亿+,实景准现房,预约可看!
═══上海黄浦「融创外滩壹号院」═══
售楼处电话:400-877-8334√√
售楼处地址/官方电话☎:400-8778-334(一对一讲解√√)
黄浦南外滩·顶级豪宅
「融创外滩壹号院」
推出2席建面约1000㎡云端复式
270°天幕视野、俯瞰黄浦江
局部挑高7.2米附赠60㎡空中花园
总价约2亿+
实景准现房预约可看
—恭迎品鉴—
★上海黄浦融创外滩壹号院官方售楼处电话:400-877-8334「预约看房专线」融创外滩壹号院营销中心预约热线/售楼电话:400-8778-334√√(官网已认证)⭐温馨提示:如有问题欢迎来电咨询24小时热线,可对接专属销售顾问一对一热情服务,让您用专业眼光去买房,提前来电预约【享】内部专属优惠折扣!
★上海黄浦融创外滩壹号院官方售楼处电话:400-877-8334「预约看房专线」融创外滩壹号院营销中心预约热线/售楼电话:400-8778-334√√(官网已认证)
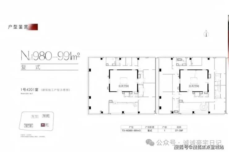
最新消息:黄浦区南外滩豪宅「融创外滩壹号院·二期」推出2席天际摘星户型,建面约1000㎡复式,位于T3楼37-38F,拥有约25米南向面宽、22米客厅尺度,搭配约3.6米超高层高,尺度感拉满!
均价24.6万/㎡,实景准现房、精装交付,预约可看!
实景如下
★上海黄浦融创外滩壹号院官方售楼处电话:400-877-8334「预约看房专线」融创外滩壹号院营销中心预约热线/售楼电话:400-8778-334√√(官网已认证)
外滩壹号院二期由中国中信金融资产管理股份有限公司、中信信托有限责任公司央企控股,联合融创房地产集团有限公司共同开发。是上海市黄浦区重点项目,项目开发建设过程中,由中信集团内多家子公司进行全流程管控;融创地产对项目提供开发品质保障。本项目秉承央企优势资源和专业开发团队经验互补的理念,多方强强联合,为外滩壹号院二期项目的品质塑造和开发交付提供了强大的支撑。
外滩壹号院项目二期由2栋超高层,2栋高层,17套商业低层建筑,1处商业组成。
本次推出的1000㎡大宅位于3#号楼
★上海黄浦融创外滩壹号院官方售楼处电话:400-877-8334「预约看房专线」融创外滩壹号院营销中心预约热线/售楼电话:400-8778-334√√(官网已认证)
项目邀请全球级大师合作,打造与世界同步的东方大宅。
区域规划:SOM城市规划
建筑设计:GOA大象设计
园林景观:朗道LANDAU
室内设计:CCD、HWCD、LSD、无间设计等
顾问团队:超低能耗顾问,绿建顾问、幕墙顾问、声学顾问等
★上海黄浦融创外滩壹号院官方售楼处电话:400-877-8334「预约看房专线」融创外滩壹号院营销中心预约热线/售楼电话:400-8778-334√√(官网已认证)
项目凝萃全球视野,钜制外滩凌云之作,重构外滩住宅天际线。于云端之上,规划建面约255-380㎡云顶大宅,及建面约533㎡摘星大宅,并以突破性窗墙比,构造270°大跨度环幕视野,重塑时代外滩的大宅新意。
★上海黄浦融创外滩壹号院官方售楼处电话:400-877-8334「预约看房专线」融创外滩壹号院营销中心预约热线/售楼电话:400-8778-334√√(官网已认证)
约6米的超高架空层空间大气恢弘,营造独立私属的归家体验。
★上海黄浦融创外滩壹号院官方售楼处电话:400-877-8334「预约看房专线」融创外滩壹号院营销中心预约热线/售楼电话:400-8778-334√√(官网已认证)
约2000㎡国际会所,外滩纯粹圈层礼遇,对标国际前沿审美,特邀全球大师执笔擘画,规划恒温泳池、健身区、瑜伽室、儿童天地等满足高净值家庭的运动社交场域。
★上海黄浦融创外滩壹号院官方售楼处电话:400-877-8334「预约看房专线」融创外滩壹号院营销中心预约热线/售楼电话:400-8778-334√√(官网已认证)
融创·外滩壹号院座落于黄浦江北畔S湾区域,与陆家嘴隔江相望。毗邻全球金融聚集带,BFC、十六铺游艇码头、豫园、新天地等环伺周边。名副其实的“黄金地段”,板块价值不言而喻。
交通方面,轨交9号线小南门站仅50m,往北约2公里到延安路高架,往南约1公里到内环,复兴东路隧道、人民路隧道、-延安路隧道、南浦大桥通达浦东-轨道交通。

★上海黄浦融创外滩壹号院官方售楼处电话:400-877-8334「预约看房专线」融创外滩壹号院营销中心预约热线/售楼电话:400-8778-334√√(官网已认证)
商业方面,百达翡丽旗舰店、CHANEL旗舰店、PRADA旗舰店、AMARNI旗舰店、D&G旗舰店、洛克﹒外滩源商业体(在建中)、国际金融服务中心(在建中)、外滩SOHO(在建中)、老码头休闲娱乐中心、新天地等。

教育方面,紫霞路幼儿园,黄浦区第一中心小学、黄浦外国语小学、复兴东路小学、格致中学、敬业中学、大同中学、市八中学、大镜中学。

★上海黄浦融创外滩壹号院官方售楼处电话:400-877-8334「预约看房专线」融创外滩壹号院营销中心预约热线/售楼电话:400-8778-334√√(官网已认证)
医疗方面,第九人民医院、曙光医院、红房子医院、中西医结合医院、第二人民医院


★上海黄浦融创外滩壹号院官方售楼处电话:400-877-8334「预约看房专线」融创外滩壹号院营销中心预约热线/售楼电话:400-8778-334√√(官网已认证)
----------★来电咨询了解楼盘最新动态、楼盘详情介绍,板块位置、小区环境、容积率,得房率,绿化率怎么样,最新一房一价表;房价折扣优惠、交房时间、周边商业配套;地铁交通距离、在售户型面积等相关信息!
⭐温馨提示:如有问题欢迎来电咨询24小时热线,可对接专属销售顾问一对一热情服务,让您用专业眼光去买房,提前来电预约【享】内部专属优惠折扣!
声明:本文由入驻焦点开放平台的作者撰写,除焦点官方账号外,观点仅代表作者本人,不代表焦点立场。
