越秀外滩樾(售楼处)首页网站-越秀外滩樾销售中心(营销中心)-越秀外滩樾楼盘欢迎您-小区环境-户型-价格-地址-楼盘详情-周边配套-售楼处电话-交房时间
扫描到手机,新闻随时看
扫一扫,用手机看文章
更加方便分享给朋友
上海虹口越秀外滩樾售楼处电话:400-8618-004【预约热线】越秀外滩樾售楼处营销中心:400-8618-004越秀外滩樾售楼处电话/地址☎:400-8618-004(开发商热线)如有问题欢迎来电咨询,专业一对一热情服务,让您用专业眼光去买房。

越秀外滩樾售楼处电话400-8618-004
“拨打下方电话预约看房“
最新消息:虹口北外滩低密风貌别墅临港越秀北外滩项目定名「越秀·外滩樾」样板间2025年3月29日正式开放!
实景图&效果图



越秀外滩樾售楼处电话400-8618-004


「越秀·外滩樾」项目地块四至范围,东至:梧州路,隔壁是中皇广场;西至:hk270B-02,隔壁就是1933老场坊;南至:周家嘴路北至:柘皋路。
越秀外滩樾售楼处电话400-8618-004
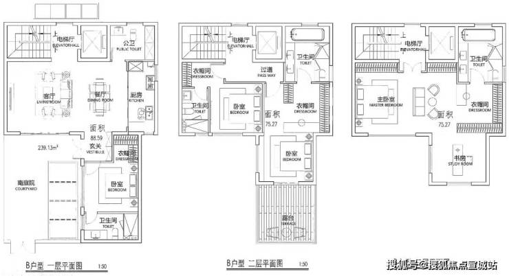
项目将呈现49套低密风貌里弄住宅,面积约238-338㎡。

户型图如下:(过程稿仅供参考,最终以实际为准)
越秀外滩樾售楼处电话400-8618-004
越秀外滩樾售楼处电话400-8618-004
基础信息
【项目名称】越秀·外滩樾
【开发商】上海漕越经济发展有限公司
【项目位置】上海市·虹口区·梧州路235弄
【项目类别】70年产权住宅
【项目类型】风貌别墅
【可售户数】48套(风貌)
【容积率】约1.3
近两年虹口、虹口、静安核心区风貌别墅相继面世,是对上海整个住宅或者说整个豪宅市场的命运改写和价值颠覆!
一方面,风貌别墅的珍贵,真谛不在于仿古,而是将特定时期的特殊历史基因通过建筑形式留存,转化成当代生活的诗意载体。
另一方面,目前我们能看到做的比较好的风貌别墅,地段非富即贵,在上海,这种级别的豪宅本身具备传承意义,拥有比普通豪宅更高的价值属性。
01
「越秀·外滩樾」
上海风貌别墅翘楚
风貌别墅在上海,即便同样选址最核心的地段,同样打造顶级产品,内里也有着非常具象的等级之分。
一是来源于紧俏供应与“尖货”稀缺的双重重压。越秀外滩樾售楼处电话400-8618-004
“物以稀为贵”在上海豪宅市场已经成为了几十年不变的法则,风貌别墅更是如此。
其初始地块来源的成片二集以下旧里,经历了百年时间更迭,才有了这几年的集中城市更新,按计划今年年底前会全部完成。

换句话说,在今年结束这一轮城市更新之后,上海可能未来几十年都不会再有风貌别墅的土地出让。
而且,已知的市面上部分风貌地块,也并非都是别墅,还有相当一部分是商业、保留建筑、还有高层/洋房类产品。
更可况,在当下,盘点整个上海所有已入市的风貌,越秀·外滩樾作为以双拼&三拼为主的偏现代风的风貌别墅,稀缺性稳稳排进前三!越秀外滩樾售楼处电话400-8618-004
二是来源于历史传承和现代精神的极致对冲。
追溯上海石库门发展历史,早期传统的石库门住宅蕴含了许多时代特征,多样化的门头设计、老虎窗、山墙等建筑元素,都是建筑美学的典范。
但随着时代发展,进阶版的风貌在传承的基础上革故鼎新,动态衍生出了许多新的居住要求和审美需求,而越秀·外滩樾对当下的这个变化其实是很敏锐的。
这个如果大家到了现场就会很清晰的感知到:
例如,在社区入户,目前已经完美呈现出来的,有强烈视觉冲击的立面大量的红砖、红洞石及大面积的落地弧形玻璃搭配的相得益彰,整个门头既有厚重的历史感,又不失极简主义的现代美。
又例如,在“砖”这种材料的运用上,越秀·外滩樾更是做到了极致!用了老砖、陶砖、釉面砖和御窑金砖四种砖。
老砖是百年历史传承、陶砖是技艺上的推陈出新、釉面砖是现代美感与实用的碰撞、御窑金砖是定制的家族印记!
在这样量级的项目上,单个的用材或许算不上特殊,但这样的历史厚重感再加上事无巨细的细节打磨,意味着上海市中心终于出现真正具有传承意义的风貌别墅!
这是本质上填补了豪宅市场一种特殊供应的空白
也是越秀·外滩樾真正在为上海创造出现风貌尖货作品的可能!
三是来源于核心地段继往开来的城市光环。
关于越秀·外滩樾所在的虹口北外滩,目前已经成为上海能级最高的规划之一。
根据规划细则,这里将建设约480米高的上海北外滩中心,未来将与其他17栋180米以上的超高层建筑群,共同构筑起浦西最美天际线,业态更为丰富,产业结构也更为稳健。
越秀外滩樾售楼处电话400-8618-004
北外滩与陆家嘴超高层建筑群、外滩万国建筑群,共同构成“黄金三角”。
而且,与陆家嘴、外滩相比,北外滩的建造速度更快,部分地标建筑已经屹立江边,成为上海新的天际线,世界级会客厅已然初显峥嵘!
当然,很多人不知道的是,上海的开源也是从北外滩开始。
从早期的万国领事馆、到国内文豪学者的聚居地、北外滩承担了经济、文化、甚至军事交流职能,这里曾是世界了解中国的窗口,也是中国走向世界的开端。
最早的船厂、路灯、电话、电影院、证券交易所其实都在这里。
可以毫不夸张的讲,上海从开埠至今,虹口北外滩始终是上海真正的中心!

要说内环目前现有的历史风貌区,虹口北外滩一定是正统所在。
这就注定了,越秀·外滩樾这种产品,不止在上海特定核心区才有,在全国更是不会、也不可能复制出来。
所以它不止承接上一个百年,更是引领下一个百年的居住领袖。
02
越秀·外滩樾
或引领居住的下一个百年
当然,众所周知,风貌别墅这类产品,必须要完成一定程度的财富积累之后才可以实现,这样的群体不止上海非常少,放在全国也凤毛麟角。
而住宅对他们来说并非是一个简单的居所,不是一个简单的房子,更是精神的栖息地。
仔细看越秀·外滩樾,任何角度,都在将这个思路执行的彻彻底底。
市面上目前的大多风貌别墅,都有的通病,越在核心位置,地块越不规整,窗墙比受限越多,造出来的别墅普遍逼仄。
越秀·外滩樾从拿地到建筑的设计建造,从公共区域到内部空间,都积极解决了传统风貌别墅存在的弊端!
1、原始地块规整,带来“类独栋”居住体验越秀外滩樾售楼处电话400-8618-004
作为精心调研后选址的地块,越秀·外滩樾本身地块就非常规整,可塑造性极强。
再加上在精密计算土地、套数、面积占比之后,呈现出了工字排布的效果:
这样一来,让更多的客户实际感受就是双拼/三拼的效果,非常接近接近类独栋感觉。
2、提升窗墙比,最大尺度增加室内采光
以往风貌别墅中,出于保护建筑外立面规则,窗墙比带来的采光面小是一个很大的硬伤。
但在越秀·外滩樾,展现给我们的是则是大窗墙比、大开间、大尺度!
从定制的转角曲面玻璃墙,到全落地玻璃窗,每一个细节都在把自然光线无限拉进室内!
3、空间有限,那就创造更多可能
上海市中心寸土寸金这个概念不用笔者强调,所以,现在即便是几千万的豪宅项目,只要位置好,容易忽视会所或公共空间的营造。越秀外滩樾售楼处电话400-8618-004
但越秀·外滩樾想为未来业主做的,只有更多。
为了使我们在稀缺的地段营造稀缺的资源,把生活的想象现实化,越秀·外滩樾还在会所引“山水入园”。在空间有限的情况下,进行垂直空间的挖掘,营造了坡道景观、山水庭院和会所。
不仅设计感十足,也颇费心力的将生态和自然带入了城市居所之中:
这里的山石墙选自深山的原石,是具有丰富经验的匠人手工钻凿;
这里选用的子母松也是从松林中精心选取,符合山水中庭尺度且姿态优美的树株;
这里还遍布了与“山”景呼应、自地面叠层的垂瀑和水景······
再用不同的标高引自然光线入园,不止提升了采光效果,同时也让整个庭院景观更加垂直立体,更好的放大了观赏效果。
像这样能在市中心打造出大面积有山有水的山野自然景观,又遇上了地块肌理的天赋异禀。
已经赢在了起跑线,和市面上普通风貌项目对比,越秀·外滩樾明显已经进入了下一个Level!
03
仪式感会所只是基础色
“顶奢化”生活演绎才是绝学
当然,提到风貌别墅,逃不脱的一个话题就是脱离大众产品、拒绝平庸感。
越秀·外滩樾更不例外。越秀外滩樾售楼处电话400-8618-004
从笔者前面提到的第一重会客空间、到第二重的艺术空间,再到面积更大,更加私密,功能性更复合的第三重会所空间,越秀·外滩樾的取材和对未来生活体验的思量都极为考究。
第一重-堂前会客,这里首先营造了满满的社区入户的仪式感,通过红色陶砖与红洞石以及大面落地玻璃营造出了层次丰富的艺术立面。营造业主在家庭空间以外进行接待交往的处所。
不仅视觉美感突出,每一步的取材、工艺细节也与环境相融的恰到好处,尽显格调!
第二重-樾下会友
这个空间位于整个地下的b1层,未来,北区会作为艺术展览区,南区专业健身房,兼具实用性和审美需求。
特别是豪宅类社区,一定会需要一个邻里交互和会友空间,那艺术就会是比较好的一个载体,可以更好的建立起链接。
第三重:言上会己越秀外滩樾售楼处电话400-8618-004
这一层的会所空间,场景更为丰富、适用场景更多,也更加家庭化。
在约1000㎡的会所内,包含泳池、私宴、休闲吧等功能区,是打造给业主取悦自己的空间,在这里可以享受足够的放松,各个空间的穿透也保证了不同空间的一家人可以互动交流。
即便是豪宅中经常会做的泳池,越秀·外滩樾也要做到极致。
造型别致的罗马浴场风格和我国宋代名画《溪山行旅图》在这里完美碰撞,再加上项目很巧思的在泳池上方做了天窗,引进了自然光线,呈现出非常独特的美感。越秀外滩樾售楼处电话400-8618-004
而且,这三重空间,从接待应酬到家庭空间的延展,都有物理区隔,未来业主可以随心把控社交尺度,仪式感和对生活的掌控都可以握在自己手里!
风貌或许大家都在做,也都可以做,但越秀·外滩樾的考量,远远超出了一个高端住宅本身。
能把未来业主生活前置化、细节化,呈现的这么理想的,目前可能也就越秀·外滩樾能做到。
本质上它更像是一件传家宝。
记录了一个大家族的过往和历史,又给未来提供了诸多新的可能,回顾生活却又高于生活。
【项目简介】
项目傲立“一江一河”交汇处(直线距离约1.1KM),未来将打造成为彰显上海城市核心竞争力的黄金水岸和具有国际影响力的世界级城市会客厅,出入之间,相逢城市高阶未来。越秀外滩樾售楼处电话400-8618-004
(*示意图,图片来源于网络)
【北外滩面向世界的上海新封面】
北外滩,与外滩、陆家嘴并称为上海的“黄金三角”。将以2座陆家嘴的商务体量规划,新天地2.0生活圈打造,成为上海跃升世界舞台的“中心发力”新引擎。
(*示意图,图片来源于网络)
【中央商务区未来上海腾飞引擎】
区域能级:总开发面积约840万方,40栋甲级写字楼城市地标:480米浦西第一高楼,19栋摩天大楼集群金融产业:2100+家金融企业赋能,资产管理规模超8万亿元,位居全市第一航运格局:4500+家航运企业集聚(上港集团、中远海运等),打造国际航运中心全球贸易:2500+家贸易企业入驻(摩亚方舟、银联商务等)新兴产业:129家新增高新技术企业,113家市区科技小巨人企业(数据来源:上海市规划局《北外滩地区控制性详细规划》)
(*示意图,图片来源于网络)
【立体交通|无界畅达世界擎动城市脉搏】
全城畅达:
约360米新建路隧道(直线距离),快速直达陆家嘴CBD;
约670米外滩隧道(直线距离),直达外滩金融商业街以及老码头;
约150米北横通道(直线距离)贯通全城,快速通达虹桥机场/虹桥火车站;
约2.4公里大连路隧道(直线距离),直达浦东东方路、世纪大道、八百伴商业圈
四轨交汇:越秀外滩樾售楼处电话400-8618-004越秀外滩樾售楼处电话400-8618-004
轨交4/10号线海伦路站约850m(直线距离),3站南京东路,6站新天地。
(*交通路网示意图,仅供参考。本区位图仅用于本小区地理方位示意,非实际地图,相关信息并非按比例缩放。)
【核心商圈|高阶商业配套国际摩登领潮】
商业配套方面项目约2公里内,多元繁华构筑封面商业圈
北外滩商圈直线距离约500米;
外滩商圈直线距离约1000米;
陆家嘴商圈直线距离约1500米;
瑞虹商圈直线距离约900米;
(*商圈距离示意图,仅供参考。本区位图仅用于本小区地理方位示意,非实际地图,相关信息并非按比例缩放。)
【高端医疗|优质三甲医院护航健康生活】
三公里内四所三甲医院,全生命周期护航
新华医院(儿科专长);
复旦大学附属妇产医院;
上海市第一人民医院;
上海东方医院(血管外科专长);
【学府荟萃|全龄教育培优一脉书香传承】
幼儿园:约1公里内6所幼儿园(直线距离),涵盖东余杭路幼儿园等3所示范级学校;
小学:约1.5公里内5所小学(直线距离),涵盖区重点四川北路第一小学;
中学:约1.6公里内6所中学(直线距离),1所市重点、2所区重点。一路之隔上海虹口二中心小学(在建中),约2.3公里市重点上海外国语大学附属外国语学校(直线距离)*施教区及就学政策以教育部门规划为准
越秀外滩樾售楼处电话400-8618-004越秀外滩樾售楼处电话400-8618-004
(*示意图,图片来源于网络)
【滨江低密|丰盈自然绿地城市诗意回归】
2.5公里北外滩滨江绿地(约800m直达),四川北路公园、和平公园、鲁迅公园3大公园环伺,于滨江和城市低密绿芯之间,肇启当代诗意生活传序。
(*示意图,图片来源于网络)
程绍正韬,建筑室内设计之东方主义集大成者,致力于东方文化的坚守与创新。他打破惯常的职业思维,将生活方式化作一种哲学态度,融入空间设计,让设计不止于作品。
李玮珉,撑起中国豪宅设计半壁江山,擅长为城市塑造文化符号建筑作品。他的作品更多用极简的方式来表明态度,崇尚简而高效的现代生活方式。庄重的建筑语汇,适时注入艺术、自然与美学,让空间充满想象力。
复刻百年前的高端工艺元素,让海派造诣世纪传承。清砖立柱、古典门头、封闭门窗、岩石山墙等经典海派建筑风貌转译,于历史和未来之间收藏百年上海。
(*本图片仅为方案过程讨论稿,并非交付标准。)
【41载越秀|万亿级开发商与上海共卓越】
国内资产规模最大的地方驻港企业之一越秀地产,中国第一代商品房缔造者。41年越秀,30城300+项目,服务超100万业主;2023年销售额行业排名12,2023年TOP20销售业绩增长率最高房企。2024中国房企综合实力TOP9。入席北外滩世界会客厅,与上海共生长。(数据来源:克而瑞地产研究发布榜单《2023年1-12月.中国房地产企业销售榜top200》)
上海虹口越秀外滩樾售楼处电话:400-8618-004【预约热线】越秀外滩樾售楼处营销中心:400-8618-004越秀外滩樾售楼处电话/地址☎:400-8618-004(开发商热线)如有问题欢迎来电咨询,专业一对一热情服务,让您用专业眼光去买房。
看房十八小技巧:
1、查看五证:购买期房的话,则一定要确定开发商五证两书一表齐全,这是关于买房的基本知识中最重要的一项,所谓五证就是指《国有土地使用证》、《建筑用地规划许可证》、《建筑工程规划许可证》、《建筑工程施工许可证》和《商品房预售许可证》,有了五证两书才能办房产证,这是个先决条件,而且这个过程中开发商拿地的出让金都结清,楼盘本身没抵押才行。两书为质量保证书和使用说明书。这两书是房屋竣工并且通过验收后获得的。房子盖完了没有通过验收不行。一表为竣工备案表。这个是由当地质检站在所有验收工作完成以后加盖公章交给开发商的。
2、选择开发商:新手第一次买房注意事项中慎重选择开发商也很重要,因为一个好的开发公司它必然有一个好的理念和好的团队、好的物管服务,它已经开发和服务的小区是经得起时间的检验,可以得到业主的口碑传颂的。好口碑的开发商是房屋质量的保障,一般好的开发商资质高、资金充足。
3、挑选户型新手购房须知,户型的挑选不能马虎,不同朝向、不同通风采光的户型会直接影响业主的居住舒适度,
4、挑选楼层挑选楼层也像挑选户型一样重要,初次买房须知中的关键一项,不同的楼层,房子的通风采光、视野景观以及业主的私密性、居住舒适度,甚至噪音污染、出行便利性等都或多或少有所不同,一般来说,低楼层出行更方便,如遇意外也更容易逃生,但是通风、采光、视野等相对高楼层较差,私密性较差,噪音污染也严重;高楼层视野好、空气清新,通风采光都更佳,但是如果电梯故障,可能会影响出行,总的来说,一栋楼的1/3至2/3之间的楼层是较好的楼层,属于不高不低的“黄金楼”。
5、买房时,一般会在同等区域、同等地段选择价位便宜的楼盘,或者买房时看到区位好而不管户型、内部环境、物管服务、生活成本等,这就像买一件衣服,你只管款式而不管布料、价格等,正确的做法是多学习选房知识,关注户型好坏,房屋质量等干货。
6、评估购房能力即使掌握了很多关于买房的基本知识,但很多人却对自己的经济能力认识不清,这也是很不明智的,买房之前一定要评估自己的购房能力,量力而行,对于刚需族来说,由于经济能力有限,所以都会采取贷款的方式买房。而贷款每个月需要交一定数额的月供,为了保证生活质量不受影响,避免断供的风险,
7、看优惠等待时机抓住又会也是买房须知的重要常识,买房子原本要花比较多的钱,买房子的时候能省一些算一些,所以购房者要懂得一些买房子的优惠政策。对于初次购买房屋的朋友来说,一般情况下都能享受首套房优惠政策,也就是说只要没买过房或没有贷款记录就可享受,开发商经常找“托”这样让购房者觉得“一房难求”在买房的时候职业顾问也会说再考虑一天就会被别人抢走房源,这样一来就会冲动消费,大家一定要耐住性子。
8、多看多比较年轻人买房时,最好不要好大喜贵,而且还想着一步到位,一定要像买东西一样货比三家,经过比较能获得有些经验,而房产综合性太强,它包含的面太宽,主要看你在比较过程中关心的内容全不全面,而且根据自己能承受的范围做出合理的决定,因为没有十全十美的房子,买房也不可能考虑到各方面的细节。
9、看规划买房当然要挑楼盘,挑小区,挑户型,但是也不能只看房子,还要看房子的位置,这也是买房须知和注意事项中很重要的一点,内行人买房首先看的是地段,华人首富李嘉诚也说过:“决定房地产价值的因素,第一是地段,第二是地段,第三还是地段。”好地段的房产保值或升值的空间更大,购房风险相对城市偏远郊区较小,就算未来房价暴跌,首先下跌的也是地段较偏的房产,地段好的房产房价一般都是最后下降的。建议大家在购置房产时,要切记紧跟城市发展的方向。
10、楼间隔什么是楼间隔?就好似两相邻楼的外墙面距离,同一个小区两栋相邻的楼与楼之间的距离,建筑间距的控制是为了保障人们工作、生活的质量与安全,大楼间隔宽的住宅区不一定能建造好的住宅区,大楼间隔特别宽也能建造好的住宅区,间隔宽是业主生活安静、隐私、视野广阔,也是景观建设的平台,但是利用平台建造景观安静、隐私、舒适的环境相反,大楼的间隔并不特别宽,但是这样的理念和团队创造了美丽、舒适、健康的环境,也被称为好的住宅区。
11、小区环境重点看小区环境是买房须知的重要常识,小区景观、绿化、配套等与生活密切相关,更是楼盘质量的体现,大超市、医院、学校,关乎生活便捷度;是否是学区房,关乎小孩上学;附近的公交线路、地铁线路,交通是否便捷;好小区内部和周边的配套设施也相对完善一些,不仅水、电、燃气、煤气、宽带、停车场、公共厕所、多功能儿童活动空间、园区休闲场所、物业公司等内部配套设施能满足业主的日常居住需求,周边还有便利店、菜市场、食品店、药店、小型超市、学校、公交站点或者地铁站点等多功能服务配套满足业主以及孩子的衣食住行的更高需求。
12、避免楼层选择楼层的时候经常是不随人愿,既然选不到“黄金楼层”,至少不要选到一些太糟糕的,比如极端层,顶层和底层不建议买,高层住宅如果选择低楼层的房子的话,采光可能就不是很好,而且容易潮湿,发霉,滋生蚊子。顶层容易出现漏水现象,虽然能修理但耗时耗力,修理时间极可能被无限延长。设备层则是专门供水,供电的中间楼层,要是常年居住在设备层的附近的话,不仅机器设备的噪音把人折磨得无法休息,连机器的辐射也会影响人的身体健康。
13、价格挑选很多购房者认为房价才是买房最关键的因素,其实不然,适不适合自己才是最关键的。在自己能力范围内,如果房价偏高你也能接受,这样你就会觉得地段好、配套好、户型好、楼层好的房子才是最好的,就算房价贵点也愿意买。但是,如果你能力有限、购房资金有限,那么估计买哪里都会觉得贵,甚至觉得房价越便宜越好,价格挑选要比较个人承受范围、交通状况、社区环境、户型结构等条件衡量楼盘价格。
14、不要贪大买房一定不要贪大是买房时的重要事项,面积以适用为原则,不要为大而大,现在年轻人都喜欢独自出来居住,所以一般买个80、90平的大两室或者小三室就完全足够居住,非要买大房子,不仅不实用,而且还会涉及到一定的税费,国家区分豪宅和普通住宅的分界线就是144平米,所以在购买房子的时候,不要超过140平,除了税费要多交不少,对于一些物业费取暖费等等各个方面都会高出很多,长时间算下来,多出的这些没准在日后还能多出一套首付钱。
15、考虑孩子问题考虑孩子是买房时非常必要的,既然婚恋是买房子的重要原因,那么孩子就是一个不得不考虑的因素,首先在购房的户型上必须考虑孩子的房间,购房的户型最好要两居室以上;其次那就是注意考察周边的教育设施配套,孩子要上学,从幼儿园到小学到中学,同时还要考虑孩子路上的安全问题,尽量选择距离近的房子。这样可以给孩子节约大量的时间,让孩子有充裕的时间学习和休息。
16、了解物业物管的好坏要看有没有专业的团队,有无完善的设施、健全的内部管理。不同的物业公司所做的服务千差万别,物业公司能否尽善尽美地完成自己的任务牵扯到小区的整体质量。保障安全、常规服务是物管的基本职责,好的物管主要看能否与业主达到共建和谐的社区环境,改变邻里关系为业主提供交流平台。活动的目的,不止热闹高兴,而是使业主与业主间、业主与物管间更加融洽,物管的用心和细心能不能坚持下去是最重要的,最后的评比结果是业主的口碑效益。
17、购房定金“订金”与“定金”是不同的法律概念,这是开发商欲规避法律责任的惯用做法,《中华人民共和国担保法》规定:定金的数额由当事人约定,但不得超过主合同标的额的20%。商品房交易中,买家履行合同后,定金应当抵作价款或者收回;若买家不履行合同,无权要求返还定金,开发商不履行合同的,应双倍返还定金。而订金并非一个规范的法律概念,实际上它具有预付款的性质,并不具备担保性质。很多开发商会打出多少抵多少的优惠活动,但是需要缴纳一定的定金,要知道这里交了的定金是不能退的。辨别“订金”与“定金”是买房必知的重中之重。
18、签认购书购房者应慎签认购书,认购书是商品房买卖的预约合同,是独立合同。签认购书时常会引发一系列纠纷,具体表现在购房者要收回定金,而发展商却不一定会退还。因此,为避免过多的麻烦,购房者在决定买房,可以向发展商提出看正式合同样本,房屋买卖合同一般只会对房子本身做出承诺,但是售房者很可能为了签单而给你很多的口头承诺,在觉得正式合同可以接受的情况下,再签署认购书,以免被套牢。
声明:本文由入驻焦点开放平台的作者撰写,除焦点官方账号外,观点仅代表作者本人,不代表焦点立场。
