绿城宸庐售楼处首页→绿城宸庐售楼处电话→绿城宸庐楼盘详情→首页网站→楼盘百科→绿城宸庐售楼处电话→24小时热线电话

搜狐焦点宣城站 2025-10-09 10:07:31
用手机看
扫描到手机,新闻随时看

扫一扫,用手机看文章
更加方便分享给朋友

建面约156㎡洋房户型图(奇数层)绿城宸庐售楼处线上预约看房热线电话:400/8862/334(24小时热线)建面约2绿城宸庐售楼处线上预约看房热线电话:400/8862/334(24小时热线)0㎡中叠平层户…

绿城宸庐

售楼处电话☎:400-8862-334【售楼处预约热线】(一对一热情服务)

楼盘项目全面介绍,本电话为开发商提供线上售楼电话400-8862-334,楼盘项目全面介绍(包含楼盘简介,房价,价格,楼盘地址,户型图,交通规划,备案价,项目配套,楼盘详情,售楼处电话,最新消息,最新详情,周边配套,最新进展等详情咨询)

看房请务必提前致电销售确认时间,只有预约客户才能享受开发商提供的内部优惠以及专属的老客户推荐奖励!

编辑

高铁新城低密项目——绿城·宸庐!

拟建联排+叠墅+四代宅洋房!

最新户型图曝光!

绿城宸庐售楼处线上预约看房热线电话:400/8862/334(24小时热线)

绿城·宸庐,即苏地2025-WG-Z04号地块,位于相城区高铁新城民乐路东、陶村街北,2025年3月12日由苏州宏腾&江苏汇欣鑫以总价约5.35亿成交,成交楼面价15828元/㎡,溢价率约5.52%。

绿城“庐系”,起源于2017年杭州西溪云庐,以“现代形,东方意”为内涵,每一座庐,皆是绿城产品革新的里程碑,更是隐贵生活的当代诠释。绿城宸庐售楼处线上预约看房热线电话:400/8862/334(24小时热线)

编辑

绿城宸庐售楼处线上预约看房热线电话:400/8862/334(24小时热线)

编辑

绿城宸庐售楼处线上预约看房热线电话:400/8862/334(24小时热线)

编辑

绿城宸庐售楼处线上预约看房热线电话:400/8862/334(24小时热线)

项目占地面积约24159㎡,建筑面积约57637.87㎡,容积率约1.4

根据规划,项目拟建12幢3-11F住宅,共计158户,其中7幢3F联排、3幢5F叠加、2幢11F洋房。

编辑

绿城宸庐售楼处线上预约看房热线电话:400/8862/334(24小时热线)

项目汲取苏州在地文化灵感,以留园为庭园母本,复刻《西园雅集》文人风雅,打造“双轴七境五芳”园林。从雅集七境,到五芳花巷,递进式序列空间,再现东方雅集生活。

编辑

绿城宸庐售楼处线上预约看房热线电话:400/8862/334(24小时热线)

叠墅的外立面采用大面积玻璃作为主体,不仅以通透质感打破传统建筑的沉闷感,还能最大化引入自然光。

同时顶部特别设计了延伸式露台,搭配超大面宽的格局优势,无论是日常居住的舒适感,还是观景视野的通透性都得到极大提升。

编辑

绿城宸庐售楼处线上预约看房热线电话:400/8862/334(24小时热线)

洋房为四代宅设计,采用奇偶错层露台布局,既避免了传统露台的视野遮挡,又能让每一户都拥有专属花园,不管是种植花草、午后品茶、赏月观星都能在自家天地里实现。

绿城宸庐售楼处线上预约看房热线电话:400/8862/334(24小时热线)

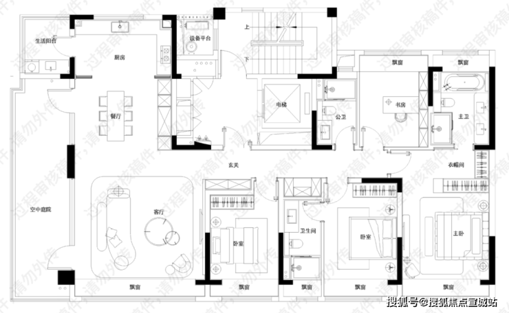
产品方面,项目拟建建面约156-190㎡四代宅洋房、建面约220-260㎡瞰景叠墅、建面约286-316㎡隐逸联排。

建面约156㎡洋房户型图(奇数层)绿城宸庐售楼处线上预约看房热线电话:400/8862/334(24小时热线)

编辑

绿城宸庐售楼处线上预约看房热线电话:400/8862/334(24小时热线)

建面约156㎡洋房户型图(偶数层)

编辑

绿城宸庐售楼处线上预约看房热线电话:400/8862/334(24小时热线)

建面约190㎡洋房户型图(奇数层)

编辑

绿城宸庐售楼处线上预约看房热线电话:400/8862/334(24小时热线)

建面约190㎡洋房户型图(偶数层)

编辑

绿城宸庐售楼处线上预约看房热线电话:400/8862/334(24小时热线)

建面约220㎡下叠户型图

编辑

绿城宸庐售楼处线上预约看房热线电话:400/8862/334(24小时热线)

编辑

绿城宸庐售楼处线上预约看房热线电话:400/8862/334(24小时热线)

建面约258㎡上叠户型图

编辑

绿城宸庐售楼处线上预约看房热线电话:400/8862/334(24小时热线)

编辑

绿城宸庐售楼处线上预约看房热线电话:400/8862/334(24小时热线)

编辑

建面约2绿城宸庐售楼处线上预约看房热线电话:400/8862/334(24小时热线)0㎡中叠平层户型图

绿城宸庐售楼处线上预约看房热线电话:40/8862/334(24小时热线)

联排户型图可私戳态度君,获取最新资料 ~

绿城·宸庐位于高铁新城板块,周边配套比较成熟。

交通方面,项目紧邻地铁2号线大湾站,西面靠近相城大道,可直接连通相城区,公共交通和自驾出行都很便利,更有苏州北站近在咫尺,实现1小时内长三角城市群互通。绿城宸庐售楼处线上预约看房热线电话:400/8862/334(24小时热线)

教育方面,项目周边集聚苏州大学实验学校、南京师范大学苏州实验学校、南京师范大学相城实验小学等优质教育资源,满足各学龄教育需求。绿城宸庐售楼处线上预约看房热线电话:400/8862/334(24小时热线)

商业方面,高铁新城吾悦广场、圆融广场等大型商业体环绕项目周围,南面铂悦春和万象也带有社区商业,可满足日常购物休闲所需。绿城宸庐售楼处线上预约看房热线电话:400/8862/334(24小时热线)

绿城宸庐

售楼处电话☎:400-8862-334【售楼处预约热线】(一对一热情服务)

楼盘项目全面介绍,本电话为开发商提供线上售楼电话400-8862-334,楼盘项目全面介绍(包含楼盘简介,房价,价格,楼盘地址,户型图,交通规划,备案价,项目配套,楼盘详情,售楼处电话,最新消息,最新详情,周边配套,最新进展等详情咨询)

看房请务必提前致电销售确认时间,只有预约客户才能享受开发商提供的内部优惠以及专属的老客户推荐奖励!

声明:本文由入驻焦点开放平台的作者撰写,除焦点官方账号外,观点仅代表作者本人,不代表焦点立场。