格力·公园海德(售楼处)首页网站-格力·公园海德售楼处欢迎您-格力·公园海德楼盘详情-户型配套-最新价格-最新资讯-售楼处位置

搜狐焦点宣城站 2025-10-08 08:59:34
用手机看
扫描到手机,新闻随时看

扫一扫,用手机看文章
更加方便分享给朋友

上海-格力·公园海德售楼处电话☎:400-8558-334(预约热线)✔✔✔格力·公园海德售楼处电话400-8558-334,位于上海松江,推出54-197㎡高层及复式户型,均价5.48万/㎡,配套齐全,绿化率35%,交房2023年12月。

上海-格力·公园海德售楼处电话☎:400-8558-334(预约热线)✔✔✔

如有问题欢迎来电咨询,专业一对一热情服务,让您用专业眼光去买房。

格力·公园海德售楼处电话☎:400-8558-334【售楼热线】✔✔✔格力·公园海德营销中心热线☎400-8558-334售楼处地址☎400-8558-334

基本信息:

开发商:格力地产。

项目位置:上海市松江区泗泾镇祥严路 88 弄。

总占地面积:约 3.25 万平方米。

容积率:1.6。

绿化率:35%。

总户数:686 户。

车位配比:1:1.3。

物业公司:格力地产物业。

物业费:4.8 元 / 月 / 平方米。

交房时间:2023 年 12 月 31 日。

户型信息:

主力户型:建面约 54-197㎡的高层及复式户型,其中主力户型为建面约 113-197㎡复式产品。

户型特点:复式结构采用动静分区,一层为公共活动区,二层为私密休息区,搭配 270° 环幕阳台。得房率高达 78%-85%,空间可塑性极强。

价格信息:

均价:约 5.48 万元 /㎡。

总价区间:280 万 - 1235 万。

配套信息:

交通配套:距地铁 9 号线泗泾站仅 700 米,未来地铁 12 号线西延伸段(在建)洞泾站建成后,将实现双轨交汇。紧邻沪松公路、嘉闵高架及 G60 沪昆高速,20 分钟可达虹桥商务区,30 分钟畅达市中心。

商业配套:自建社区商业中心,引入品牌超市、特色餐饮,5 公里范围内覆盖山姆会员店、奥特莱斯等高端商业体。

教育配套:周边 3 公里范围内有松江区第五幼儿园、华师大附属泗泾学校、松江四中等优质学府,社区自建幼儿园预计近期投入使用。

医疗配套:600 米可达泗泾医院,20 分钟车程覆盖上海市第一人民医院,社区规划社区卫生服务中心提供基础医疗服务。

景观配套:特邀英国 Gustafson Porter + Bowman 团队打造沉浸式园林,以 “一轴多园” 布局串联中央景观轴与 12 个主题口袋庭院,约 8000㎡中央景观轴贯穿南北。

项目基础信息

项目名称:【格力·公园海德】

央企开发:由全球著名建筑大师罗杰斯勋爵及其RSHP建筑事务所倾心打l造。

在售面积:90--183平(洋房和小高层顶复)

整体楼盘均价:54876元/平

车位比:1:1.3

产权: 70产权住宅

交付标准:精装修交付(2023年6月份)

上海-格力·公园海德售楼处电话☎:400-8558-334(预约热线)✔✔✔

如有问题欢迎来电咨询,专业一对一热情服务,让您用专业眼光去买房。

格力·公园海德售楼处电话☎:400-8558-334【售楼热线】✔✔✔格力·公园海德营销中心热线☎400-8558-334售楼处地址☎400-8558-334

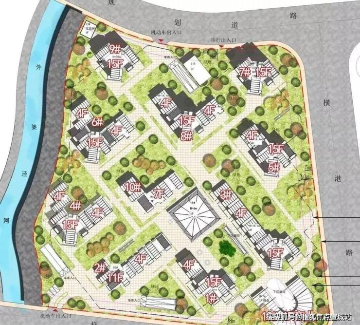
格力&罗杰斯携手打造 准现房

2016年5月11日,格力地产以总价19.65亿元竞得松江泗泾镇SJSB0003单元10-05号地块,楼板价37675元/㎡,溢价率109%。

格力地块规划图

项目位于松江区泗泾镇祥严路88弄,项目总占地32598.1㎡,容积率1.6,建筑面积约10.6万㎡,配建5%保障房。目前项目已是准现房。

项目是由格力地产与罗杰斯事务所携手打造,塔楼外立面用大面积采用玻璃、铝板、及纤维水泥板,阳台采用钢结构吊台承重,三面均为玻璃面。裙楼以及会所采用明黄色钢结构楼梯,强调工艺技术与时代感。

景观规划方面,格力泗泾项目将打造12个“口袋庭院”,包含 2 个教育花园、4 个游乐中心、6 个静享花园。

上海-格力·公园海德售楼处电话☎:400-8558-334(预约热线)✔✔✔

如有问题欢迎来电咨询,专业一对一热情服务,让您用专业眼光去买房。

格力·公园海德售楼处电话☎:400-8558-334【售楼热线】✔✔✔格力·公园海德营销中心热线☎400-8558-334售楼处地址☎400-8558-334

在主楼与裙楼环抱形成的小型空间中,规划特色主题的“口袋庭院”,设计出教育花园、游玩庭院、花艺园等特色主题花园,营造丰富的生活趣味。

作为英国著名建筑大师罗杰斯的设计大作,项目将建造成一个高层、少量洋房的混合小区,另有带一幢商业楼。共10幢住宅,其中有8幢15层、1幢11层、1幢7层,另外1-6号楼附带一些4层建筑,合计约527户。

效果图

产品户型图及样板效果图

六大亮点实现星空顶复向往

为了更好的圆满都市人居理想,公园海德为城市精英家庭、年轻家庭,倾心打造建筑面积约91-197㎡理想星空复式,每一处空间细节都竭力还原纯粹生活本真。

【公园海德】星空顶复,N+1处天空露台,观星、阅读、派对、下午茶等,演绎多重生活场景;

超高层高设计(约3.2m-3.5m),远高于传统层高,采光自然,视野明亮,自享从容天地;

无承重墙设计,大师前卫巧思,内部格局随心打通,定制专属格调;

多室空间布局,多一种生活想象,尽兴墅享品质生活;

双层格局,上下轩敞有序,每位家人互不干扰,各享其乐;

高附赠空中平台、多重阳台、露台,拓展户外空间利用率,延伸生活意趣。

在售房源户型图▼

上海-格力·公园海德售楼处电话☎:400-8558-334(预约热线)✔✔✔

如有问题欢迎来电咨询,专业一对一热情服务,让您用专业眼光去买房。

格力·公园海德售楼处电话☎:400-8558-334【售楼热线】✔✔✔格力·公园海德营销中心热线☎400-8558-334售楼处地址☎400-8558-334

项目区位配套

【格力·公园海德】位于松江泗泾核心位置,周边配套齐全。

上海-格力·公园海德售楼处电话☎:400-8558-334(预约热线)✔✔✔

如有问题欢迎来电咨询,专业一对一热情服务,让您用专业眼光去买房。

格力·公园海德售楼处电话☎:400-8558-334【售楼热线】✔✔✔格力·公园海德营销中心热线☎400-8558-334售楼处地址☎400-8558-334

声明:本文由入驻焦点开放平台的作者撰写,除焦点官方账号外,观点仅代表作者本人,不代表焦点立场。