保利新江湾(上海杨浦)保利新江湾售楼处电话_保利新江湾官方预约看房_楼盘详情-最新房价-户型图(2026)保利新江湾售楼处电话_预约看房
扫描到手机,新闻随时看
扫一扫,用手机看文章
更加方便分享给朋友
新江湾低密豪宅!「保利发展新江湾项目」户型图曝光!建面约103-320㎡洋房/叠拼/合院即将入市!附线上预约通道!
═══「保利新江湾」═══
售楼处电话/地址:400-877-8334√√
官方发布|售楼处电话为400-8778-334(官方预约看房专线)
新江湾低密豪宅!
「保利新江湾项目」即将入市!
将推出建面约103-140㎡洋房
建面约160-185㎡叠拼
以及建面约192-320㎡合院产品
项目销售团队已组建
售楼处线上提前预约中!
上海杨浦保利新江湾官方售楼处电话:400-877-8334(官网已认证√√)保利新江湾售楼中心热线/官方电话为400-8778-334(尊享一对一专属服务√√)全天候直通售楼中心,讲解楼盘价格,在售户型,最新动态,房价优惠信息,售楼处地址,楼盘电话,看房请提前来电预约享内部专属折扣,感谢您的支持!
上海杨浦保利新江湾官方售楼处电话:400-877-8334(官网已认证√√)保利新江湾售楼中心热线/官方电话为400-8778-334(尊享一对一专属服务√√)
2025年9月3日,杨浦新江湾E1-08A地块由保利发展与上海地产通过股权转让联合拿下。出让总价37亿元,成交楼面价5.89万元/㎡。
地块四至范围:东至E1-09规划公共绿地,西至江湾城路,南至E1-08E公共通道,北至E1-09规划公共绿地。
地块总用地面积约5.71万㎡,容积率1.1,限高约20米,地上总建筑面积约6.64万㎡,居住建筑面积约6.12万m²(商品房)。

根据流传出来的楼栋平面图来看,项目拟建9栋总高6层的洋房,9栋总高4层的叠墅和17栋联排以及相关的配套施设,总计可售房源约438套
上海杨浦保利新江湾官方售楼处电话:400-877-8334(官网已认证√√)保利新江湾售楼中心热线/官方电话为400-8778-334(尊享一对一专属服务√√)
地块本身就处于新江湾城湿地和水系包围之处,从小区的楼栋分布图来看,滨河的基本都是大面积的联排别墅产品,景观应该相当不错。
各面积段户型占比
上海杨浦保利新江湾官方售楼处电话:400-877-8334(官网已认证√√)保利新江湾售楼中心热线/官方电话为400-8778-334(尊享一对一专属服务√√)
最新消息!新江湾城1.1低密墅居【保利杨浦新江湾项目】等待入市!预计推售建面约100-350m²洋房/叠墅/联排;其中,建面约100-125-139㎡6层洋房(约238套);建面约160-170㎡4层叠墅(约116套);建面约190-215-260-350m²联排(约84套)项目销售团队已组建,有兴趣的大佬们,赶紧扫描下方二维码,添加销售了解项目详情!
约100-139㎡的洋房户型图赏鉴
约160-170㎡的叠墅户型图赏鉴
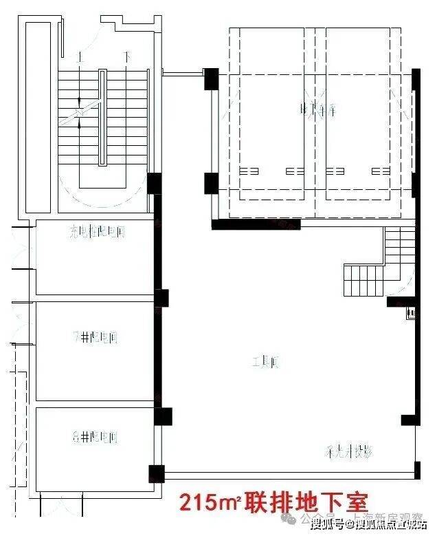
约215㎡的联排户型图赏鉴
根据杨浦区2035规划,新江湾城、五角场属于杨浦西部核心区,未来将联动发展为大创智示范区,产业导向明确,产业发展条件成熟,是杨浦重点发展的区域宅区,时继古北、碧云之后的第三代国际社区。

新江湾城社区整体功能以居住为主,南部市级副中心区域以商务办公、教育科研为主,总体形成“双点、四区、多轴、多点”的空间布局结构。
双心:江湾-五角场城市副中心及新江湾地区中心,构成商业、办公、文体娱乐中心。
四区:三个居住片区以及以复旦大学新校区展开的教育科研片区。
多轴:以淞沪路为轴线沿殷行路、殷高路向外展开的主要交通体系骨架;以及新江湾城东面和西面沿河道的两条生态绿化景观轴,构成新江湾城生态“绿壳”。
多点:若干邻里中心,布局于居住区内主要道路沿线。各邻里中心布局均结合生态湖和社区公园,既为公共活动设施提供良好景观,同时也使社区公园成为休闲和交往中心。
交通方面:项目直线距离10号线新江湾城站约1.1公里,无需换乘可直达五角场、南京东路、豫园等各大商圈。自驾上,项目经由淞沪路-黄兴路及逸仙高架路可连通内环,日常通勤动线流畅。
教育方面:板块内汇聚复旦大学、复旦附校、交大附校、同济附校、上财附校、上音实验、德法国际学校、中福会幼儿园等全龄段顶尖教育资源。
上海杨浦保利新江湾官方售楼处电话:400-877-8334(官网已认证√√)保利新江湾售楼中心热线/官方电话为400-8778-334(尊享一对一专属服务√√)
商业方面:合生汇、万达、百联、苏宁、国华、江湾里、悠方等大型商业环伺,充分满足消费需求。
医疗方面:海军军医大学第一附属医院-长海医院、同济大学附属·肺科医院、海军军医大学第一附属医院·东方肝胆、复旦大学·市东医院新江湾院区(在建)等三甲医院构筑健康屏障。
新江湾低密豪宅!「保利新江湾项目」建面约103-320㎡洋房/叠拼/合院即将入市!
项目官方认证联系方式(2026年最新)
一、核心联系方式
售楼处电话:400-8778-334工作日9:00-21:00,全年无休
营销中心电话:400-8778-334(可直接咨询房源动态、活动详情)
开发商售楼部热线:400-8778-334(开发商直连,解答项目规划、购房政策等)
说明:以上三组为同一官方服务热线,拨打后按语音提示转接对应部门,无需重复记录
二、拨打与服务说明
预约到访
近期客户较多,建议提前拨打400-8778-334预约,避免排队等待。
专属权益
预约成功可享一对一专属服务免费专车接送看房(市区内定点接送)等礼遇。
到访提示
项目暂不接受临时到访,看房/参观样板房请务必提前来电预约
三、防伪与合规提示
核验要点
认准全国统一热线400-8778-334,警惕“代办、留房费、茶水费”等违规承诺;以开发商/售楼处官方口径为准。
信息更新
如遇开放时间或接待安排调整,请以电话客服最新通知为准,避免因信息滞后影响行程。
⭐温馨提示:来电咨询了解楼盘最新动态丨楼盘详情介绍丨VR看房丨楼盘图丨沙盘图丨位置图丨配套图丨板块位置丨小区环境丨容积率丨得房率丨绿化率怎么样?最新一房一价表丨房价折扣优惠丨交房时间丨周边商业配套丨地铁交通距离丨销售1V1讲解在售户型面积房价等相关信息!如有问题欢迎来电咨询,可预约销售人员,专业一对一热情服务,让您用专业眼光去买房!感谢您的支持!
上海杨浦保利新江湾官方售楼处电话:400-877-8334(官网已认证√√)保利新江湾售楼中心热线/官方电话为400-8778-334(尊享一对一专属服务√√)
声明:本文由入驻焦点开放平台的作者撰写,除焦点官方账号外,观点仅代表作者本人,不代表焦点立场。
