苏州中铁·咏月台(售楼处)官方网站-2026中铁·咏月台营销中心(售楼处中心)中铁·咏月台欢迎您-周边环境-户型-价格-地址-楼盘详情-户型配套-售楼电话-交房时间
扫描到手机,新闻随时看
扫一扫,用手机看文章
更加方便分享给朋友
苏州中铁·咏月台售楼处电话:400-8862-334【预约看房热线】中铁·咏月台售楼处电话:400/8862/334【售楼处电话/地址】中铁·咏月台售楼处电话:400-8862--334【开发商认证】
中铁·咏月台!
近日,苏州首个首层全架空社区正式亮相!
该项目由中国中铁、苏州天鸿伟业置地合作开发
也是中国中铁年度战略作品!
四代宅162-164㎡双花园户型、叠墅176-192㎡空中院落,搭配132㎡低总价洋房,以1.5容积率打造墅级体验.
央企品质,叠墅仅36套,年底红利窗口期不容错过.
苏州中铁·咏月台
售楼处电话☎:400-8862-334【售楼处预约热线】(一对一热情服务)
楼盘项目全面介绍,本电话为开发商提供线上售楼电话400-8862-334,楼盘项目全面介绍(包含楼盘简介,房价,价格,楼盘地址,户型图,交通规划,备案价,项目配套,楼盘详情,售楼处电话,最新消息,最新详情,周边配套,最新进展等详情咨询)
看房请务必提前致电销售确认时间,只有预约客户才能享受开发商提供的内部优惠以及专属的老客户推荐奖励!


苏州中铁·咏月台售楼处电话:400-8862-334【预约看房热线】中铁·咏月台售楼处电话:400/8862/334【售楼处电话/地址】中铁·咏月台售楼处电话:400-8862--334【开发商认证】
中铁·咏月台坐落于吴中城南板块,为全市率先落实住宅新规的住宅项目,拟建3栋4层叠加别墅与5栋10-11层洋房,主打低密改善型产品.

俯瞰效果图
外立面以大面积玻璃和金属线条为主,现代简洁风,整体营造出通透轻盈的视觉感受.

苏州中铁·咏月台售楼处电话:400-8862-334【预约看房热线】中铁·咏月台售楼处电话:400/8862/334【售楼处电话/地址】中铁·咏月台售楼处电话:400-8862--334【开发商认证】
洋房立面效果图

四代洋房立面效果图

叠拼立面效果图
首层全架空车库这一创新设计,大大提升了居住体验感.
1、全天候无雨归家:业主车辆经架空层车库,通过垂直电梯直达入户大堂,全程规避风雨,践行人车分流.

2、零坡道平层入户:车库平进平出设计,消除陡坡隐患,归家动线视野开阔,安全性与体验感同步提升.

苏州中铁·咏月台售楼处电话:400-8862-334【预约看房热线】中铁·咏月台售楼处电话:400/8862/334【售楼处
苏州中铁·咏月台售楼处电话:400-8862-334【预约看房热线】中铁·咏月台售楼处电话:400/8862/334【售楼处电话/地址】中铁·咏月台售楼处电话:400-8862--334【开发商认证】
3、阳光景观车库:革新性将车库地面化、景观化,使其成为社区景观的一部分.

4、低楼层视野提升:二层住宅与地面距离提升约5米,不仅可以让低楼层住户获得更开阔的视野,还能大大提升社区沿街界面整体形象.

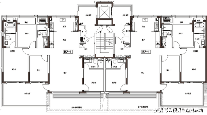
产品方面,全系四房起步.叠加别墅建面约176-192㎡、四代宅洋房建面约162-164㎡、洋房建面约132㎡.(具体面积段以开发商公示为准)
四代宅洋房产品:户户标配约25-35㎡空中庭院.奇数层庭院与客厅、次卧相连,偶数层庭院衔接主卧与次卧.
5#四代宅洋房户型图:

苏州中铁·咏月台售楼处电话:400-8862-334【预约看房热线】中铁·咏月台售楼处电话:400/8862/334【售楼处电话/地址】中铁·咏月台售楼处电话:400-8862--334【开发商认证】
(奇数层)

苏州中铁·咏月台
售楼处电话☎:400-8862-334【售楼处预约热线】(一对一热情服务)
楼盘项目全面介绍,本电话为开发商提供线上售楼电话400-8862-334,楼盘项目全面介绍(包含楼盘简介,房价,价格,楼盘地址,户型图,交通规划,备案价,项目配套,楼盘详情,售楼处电话,最新消息,最新详情,周边配套,最新进展等详情咨询)
看房请务必提前致电销售确认时间,只有预约客户才能享受开发商提供的内部优惠以及专属的老客户推荐奖励!
声明:本文由入驻焦点开放平台的作者撰写,除焦点官方账号外,观点仅代表作者本人,不代表焦点立场。
