融创外滩壹号院售楼处官网电话→(2026楼盘测评)融创外滩壹号院售楼中心地址→楼盘百科→融创外滩壹号院最新首页网站→交房时间→24小时热线电话
扫描到手机,新闻随时看
扫一扫,用手机看文章
更加方便分享给朋友
融创外滩壹号院
售楼处电话☎:400-8862-334【售楼处预约热线】(一对一热情服务)
楼盘项目全面介绍,本电话为开发商提供线上售楼电话400-8862-334,楼盘项目全面介绍(包含楼盘简介,房价,价格,楼盘地址,户型图,交通规划,备案价,项目配套,楼盘详情,售楼处电话,最新消息,最新详情,周边配套,最新进展等详情咨询)
看房请务必提前致电销售确认时间,只有预约客户才能享受开发商提供的内部优惠以及专属的老客户推荐奖励!

🔻🔻✪融创外滩壹号院✪售楼处电话:4001524009📍📍黄浦外滩董家渡「融创外滩壹号院」三期启动,预计最快下半年入市!
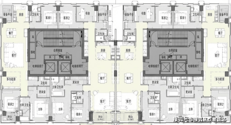
外滩融创壹号院三期即14号地块,位于二期南侧,拟建4栋超高层住宅,预计主推建面约190-385m²房源。

融创外滩壹号院售楼处电话:400-8862-334【开发商已认证】融创外滩壹号院官方售楼处电话:400-8862-334【售楼处电话/地址】融创外滩壹号院售楼处电话:400-8862-334【官方认证】








14#地块T1、T2、T3的顶层做了“摘星户型”——约500-600㎡左右的大平层、超1000㎡的复式!
融创·外滩壹号院座落于黄浦江北畔S湾区域,与陆家嘴隔江相望。毗邻全球金融聚集带,BFC、十六铺游艇码头、豫园、新天地等环伺周边。名副其实的“黄金地段”,板块价值不言而喻。

交通方面,轨交9号线小南门站仅50m,往北约2公里到延安路高架,往南约1公里到内环,复兴东路隧道、人民路隧道、-延安路隧道、南浦大桥通达浦东-轨道交通。

商业方面,百达翡丽旗舰店、CHANEL旗舰店、PRADA旗舰店、AMARNI旗舰店、D&G旗舰店、洛克﹒外滩源商业体、国际金融服务中心、外滩SOHO、老码头休闲娱乐中心、新天地等。

教育方面,紫霞路幼儿园,黄浦区第一中心小学、黄浦外国语小学、复兴东路小学、格致中学、敬业中学、大同中学、市八中学、大镜中学。

医疗方面,第九人民医院、曙光医院、红房子医院、中西医结合医院、第二人民医院

融创外滩壹号院
售楼处电话☎:400-8862-334【售楼处预约热线】(一对一热情服务)
楼盘项目全面介绍,本电话为开发商提供线上售楼电话400-8862-334,楼盘项目全面介绍(包含楼盘简介,房价,价格,楼盘地址,户型图,交通规划,备案价,项目配套,楼盘详情,售楼处电话,最新消息,最新详情,周边配套,最新进展等详情咨询)
看房请务必提前致电销售确认时间,只有预约客户才能享受开发商提供的内部优惠以及专属的老客户推荐奖励!
声明:本文由入驻焦点开放平台的作者撰写,除焦点官方账号外,观点仅代表作者本人,不代表焦点立场。
