上海外滩瑞府一房一价表发布(2025年外滩瑞府楼盘介绍)新首页网站-项目配套详情/户型细节/楼盘价格/售楼处位置

搜狐焦点宣城站 2025-09-02 10:42:36
用手机看
扫描到手机,新闻随时看

扫一扫,用手机看文章
更加方便分享给朋友

外滩瑞府售楼处电话400-877-8334高层均价14.78万/㎡,121-161㎡户型总价1553万起,样板间开放,。

「外滩瑞府」一房一价表发布!外滩直线距离2公里,建面约121-161㎡高层,总价1553万起,样板间开放中,预约可看!

外滩瑞府官方售楼处电话☎:400-877-8334【售楼中心已认证√√】

上海虹口外滩瑞府售楼部电话/营销中心地址位置:400-8778-334(线上预约购房热线√√)

温馨提示:来电提前预约、尊享开发商销售一对一热情讲解楼盘详情【享】专属内部房源限时优惠折扣!

虹口北外滩旁

10号线四川北路站约400米

华润置地「外滩瑞府」

推出建面约121-161㎡高层

均价14.78万/㎡

目前“样板间”已开放

—恭迎品鉴—

🚩🚩➨上海虹口外滩瑞府售楼处电话☎:400-877-8334√√【官方热线】上海虹口外滩瑞府售楼处营销中心电话:400-8778-334(开发商销售热线)上海虹口外滩瑞府官方售楼中心电话/地址☎:4008778334【开发商官方已认证√√√】★如有问题欢迎致电售楼部「🏠进行购房咨询」,专业一对一热情服务,让您用专业眼光去买房🏠;★📍来电咨询了解楼盘最新动态、楼盘详情介绍,板块位置、小区环境、容积率,得房率,绿化率怎么样,最新一房一价表;房价折扣优惠、交房时间、周边商业配套;地铁交通距离、在售户型面积等相关信息!

编辑

编辑

外滩瑞府官方售楼处电话☎:400-877-8334【售楼中心已认证√√】

上海虹口外滩瑞府售楼部电话/营销中心地址位置:400-8778-334(线上预约购房热线√√)

最新消息:华润置地虹口项目「外滩瑞府」正式取证,均价14.78万/㎡!首推2号楼,建面约121-161㎡户型,总价1553万起,明日开启认购!

编辑

编辑

外滩瑞府官方售楼处电话☎:400-877-8334【售楼中心已认证√√】

上海虹口外滩瑞府售楼部电话/营销中心地址位置:400-8778-334(线上预约购房热线√√)

124㎡三房是南北通透的全明户型,客厅面宽达到4.5米!!!三开间朝南设计;“S”墙收纳、卧室全飘窗延伸空间,每个卧室开间尺度均超过3米,完全满足改善居住的收纳需求!室内空间尺度优秀!

编辑

外滩瑞府官方售楼处电话☎:400-877-8334【售楼中心已认证√√】

上海虹口外滩瑞府售楼部电话/营销中心地址位置:400-8778-334(线上预约购房热线√√)

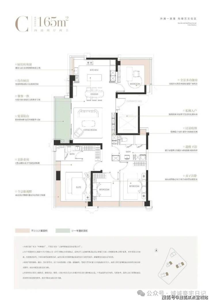
165㎡4房是大横厅改善尺度户型,尊享私梯入户,隐私性满分!三间卧室朝南设计,老人、小孩均可享受南向采光;厨房转角窗、主卧套房、北向书房均配置270度转角飘窗,景观视野相当不错!次卫三分离设计,相当人性化~

样板间实景

编辑

编辑

编辑

编辑

编辑

外滩瑞府官方售楼处电话☎:400-877-8334【售楼中心已认证√√】

上海虹口外滩瑞府售楼部电话/营销中心地址位置:400-8778-334(线上预约购房热线√√)

项目实景图如下

编辑

编辑

编辑

土拍信息

编辑

地块去年11月27日,华润置地以总价51.36亿元获取,成交楼面价92934元/平方米,溢价率11.97%,地块中小套型占比40%,装修标准4000元/㎡!

编辑

项目位于四平路吴淞路,占地约1.43公顷,容积率3.87,周边拥有九龙路、武进路、四平路、吴淞路等快速路。

编辑

外滩瑞府官方售楼处电话☎:400-877-8334【售楼中心已认证√√】

上海虹口外滩瑞府售楼部电话/营销中心地址位置:400-8778-334(线上预约购房热线√√)

地块属于虹口内环内的嘉兴社区,就在第一人民医院北侧,南侧约200米就是北外滩,北侧即为瑞虹新城,项目直线距10号线四川北路站约400米,是今年虹口区非常重要的一个新房供应。

值得一提的是,相较其北侧约1.5公里的金茂&庆隆新拍地块,华润虹口项目的成交楼板价低了足足约2.5万元/㎡!要知道金茂&庆隆新拍地块的未来预期售价可是要达到18万+/㎡的。

编辑

外滩瑞府官方售楼处电话☎:400-877-8334【售楼中心已认证√√】

上海虹口外滩瑞府售楼部电话/营销中心地址位置:400-8778-334(线上预约购房热线√√)

规划设计方案:

项目拟建4栋24-32层高层住宅,另有少量风貌住宅和商业。住宅建面约124-240㎡。

4栋住宅一层全部为架空,入口至楼栋间设置有风雨连廊。

小区车行主入口设在了南侧哈尔滨路和东侧九龙路上,可以直接下地库,小区地面无车位,人车分流;人行出入口则位于地块东侧九龙路上,

编辑

外滩瑞府官方售楼处电话☎:400-877-8334【售楼中心已认证√√】

上海虹口外滩瑞府售楼部电话/营销中心地址位置:400-8778-334(线上预约购房热线√√)

华润TOP级瑞系,作为华润置地产品线的皇冠明珠,自诞生便以钻石级选址标准划定豪宅基因。

从深圳湾的“春笋”旁到北京长安街畔,每一座瑞府都占据着核心城市最核心的地段。

此次外滩瑞府落子外滩1公里核心圈,正是华润对「战略稀缺性」的极致践行:非核心不选,非未来不立。

这也是华润置地那么多年来在上海的首座“瑞系”。

编辑

编辑

外滩瑞府官方售楼处电话☎:400-877-8334【售楼中心已认证√√】

上海虹口外滩瑞府售楼部电话/营销中心地址位置:400-8778-334(线上预约购房热线√√)

有别于大多数的市区项目以兵列树阵式的景观设计,外滩瑞府通过建筑楼体的偏转形成了围合式的景观布局,秉持三个最大化,两个最小化(景观最大化,采光最大化,朝向视线最大化;遮挡最小化,影响最小化)。

通过这种创新布局,项目不仅形成连续的中心花园,更因楼栋布局与边界有夹角,自然形成一系列边角院落空间。

尤为难得的是,部分东南高区可看到陆家嘴三件套和北外滩浦西第一高楼的遥相呼应。

全域风雨连廊,外滩瑞府将风雨连廊扩容为完整的归家体系,实现全住宅楼栋无风雨归家,带来顶豪级的归家居住体验。

编辑

外滩瑞府官方售楼处电话☎:400-877-8334【售楼中心已认证√√】

上海虹口外滩瑞府售楼部电话/营销中心地址位置:400-8778-334(线上预约购房热线√√)

值得一提,你还将拥有翠湖天地、汤臣一品同款大师设计。

项目力邀大师天团操刀,从建筑到生活全维度高定。

GOA大象设计担纲建筑设计;渡边智昭负责会所和架空层设计,他是2023AD100中国最具影响力建筑和室内设计师,代表作翠湖天地、汤臣一品;TROP操刀艺文景观设计;室内由W.DESIGN无间设计、李益中精琢...

这支曾塑造多个城市封面的大师团队,聚集在外滩瑞府,共筑外滩新一代标杆住宅。

编辑

外滩瑞府官方售楼处电话☎:400-877-8334【售楼中心已认证√√】

上海虹口外滩瑞府售楼部电话/营销中心地址位置:400-8778-334(线上预约购房热线√√)

高层基座溯源石库门建筑精髓,复刻经典拱券符号;中段以通透玻璃幕墙搭配流线型金属线条,营造国际前沿的现代质感;顶部“冠冕”造型,进一步升华昭示性。

编辑

编辑

项目配套

编辑

外滩瑞府官方售楼处电话☎:400-877-8334【售楼中心已认证√√】

上海虹口外滩瑞府售楼部电话/营销中心地址位置:400-8778-334(线上预约购房热线√√)

交通配套:距轨道交通10号线四川北路站0.4公里,商业上,利通广场、壹丰广场、中信广场1933购物中心都在步行距离范围内;

教育配套:有民办新华初级中学、虹口区中州路第一小学、上海市虹口区第一中心小学、上海市海南中学;

医疗配套:临近上海市第一人民医院。

商业配套:利通广场、壹丰广场、中信广场、1933购物中心等在步行距离内,直线距离北侧瑞虹新城三件套约1.5公里。

编辑

编辑

编辑

编辑

编辑

编辑

编辑

编辑

编辑

虹口北外滩旁

10号线四川北路站约400米

华润置地「外滩瑞府」

推出建面约121-161㎡高层

均价14.78万/㎡

目前“样板间”已开放

—恭迎品鉴—

外滩瑞府官方售楼处电话☎:400-877-8334【售楼中心已认证√√】

上海虹口外滩瑞府售楼部电话/营销中心地址位置:400-8778-334(线上预约购房热线√√)

编辑

上海虹口外滩瑞府售楼处电话:400-877-8334【预约☎】√√楼盘项目全面介绍,本电话为开发商提供线上预约售楼电话,楼盘项目全面介绍(包含楼盘简介,均价,房价,现房,期房,别墅,叠墅,大平层,价格,楼盘地址,户型图,交通规划,备案价,备案名,项目配套,样板间,开盘时间,认筹时间,楼盘详情,售楼处电话,最新消息,最新详情,周边配套,一房一价,最新进展等详情咨询)楼盘详情丨价格丨更多优惠丨机不可失丨欢迎致电丨诚邀品鉴!售楼处位置丨特价房丨工抵房丨剩余房源丨户型图丨最新消息丨免责声明:将文章内容综合来源于网络、只作分享,版权归原作者所有!!如有侵权,请联系我们,我们第一时间处理如有问题欢迎来电咨询,专业一对一热情服务,📍★温馨提示:由开发商旗下销售团队全程营销策划,房源信息真实有效!如果您想了解更多楼盘详情,欢迎提前预约拨打上海虹口外滩瑞府官方售楼处电话400-8778-334√√√(已认证)

免责声明:本篇分享文案非广告!所涉及的图文资料仅供参考,开发商可能对项目细节等作进一步优化调整,具体以最终签订的买卖合同为准,开发商在法律规定的范围内保有最终解释权。部分图片素材来自网络,如有侵权请联系小编删除,感谢支持!

声明:本文由入驻焦点开放平台的作者撰写,除焦点官方账号外,观点仅代表作者本人,不代表焦点立场。