2025大华·梧桐樾售楼处(大华·梧桐樾)大华·梧桐樾售楼处电话—大华·梧桐樾最新房价-楼盘详情-户型配套-容积率
扫描到手机,新闻随时看
扫一扫,用手机看文章
更加方便分享给朋友
「大华·梧桐樾」售楼处电话:400-8618-004(欢迎致电)
海派大华 时代仰望
大华集团:源起上海 34载初心如磐
大华集团成立于1988年,中国最早起步、最大规模的城市更新运营商之一
全球规划建设8大平方公里新城、17个百万方超大型社区并进行持续运维
34年稳健发展,于近30多个城市,为约70万业主构建美好生活「大华·梧桐樾」售楼处电话:400-8618-004(欢迎致电)
品牌实力:耀誉时代 城市别墅专家
多年荣膺“中国房地产综合实力50强”“发展潜力top5”
连续8年保持“三道红线”全绿档,财务安全领先行业
匠心雕琢超30城精粹墅区经典,被业内称为“城市别墅专家”
「大华·梧桐樾」售楼处电话:400-8618-004(欢迎致电)
「大华·梧桐樾」售楼处电话:400-8618-004(欢迎致电)
基础信息
规划产品:墅质高层、低密叠墅(复式住宅)
容积率:2.3「大华·梧桐樾」售楼处电话:400-8618-004(欢迎致电)
绿化率:35%
产品面积:建面约91/101㎡高层,约122/135/145㎡叠墅
迭代墅品 阔景舒居「大华·梧桐樾」售楼处电话:400-8618-004(欢迎致电)
大华·梧桐樾约30万方静谧墅区,主打墅质高层、低密叠墅(复式住宅)产品。
『建筑立面』:现代美学立面,窗棱格构
『归家礼制』:门、街、坊、巷、院五重归家礼制
『六艺墅居』:复刻宋式生活艺境,演绎礼、乐、艺、诗、茶、御贵族生活场景
『园林规划』:多重绿化体系,打造沉浸式“园林式栖居”生活场景
南地块首开房源位置↓
「大华·梧桐樾」售楼处电话:400-8618-004(欢迎致电)
「大华·梧桐樾」售楼处电话:400-8618-004(欢迎致电)
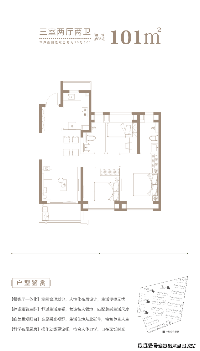
户型鉴赏↓

「大华·梧桐樾」售楼处电话:400-8618-004(欢迎致电)

「大华·梧桐樾」售楼处电话:400-8618-004(欢迎致电)
「大华·梧桐樾」售楼处电话:400-8618-004(欢迎致电)



「大华·梧桐樾」售楼处电话:400-8618-004(欢迎致电)

「大华·梧桐樾」售楼处电话:400-8618-004(欢迎致电)
板块配套
虹桥北向 置业高地
虹桥是“2035战略规划”明确的主城片区,「大华·梧桐樾」售楼处电话:400-8618-004(欢迎致电)嘉定占位虹桥国际开放枢纽“北向拓展带”,定位为上海大都市圈的现代化新型城市,拥享商务区发展辐射利好,「大华·梧桐樾」售楼处电话:400-8618-004(欢迎致电)全面承接大交通、大商务、大会展等溢出效应。
上海国际汽车城产城融合示范区,以产赋能,将带动整个板块的能级提升、「大华·梧桐樾」售楼处电话:400-8618-004(欢迎致电)经济提升及人口结构优化,成为高精尖人才炙手可热的置业新高地。
「大华·梧桐樾」售楼处电话:400-8618-004(欢迎致电)
天赋贵脉 立序未来
大华·梧桐樾占位虹桥北上海国际汽车城核心区,占位板块内难得一见的大规模开发地块,「大华·梧桐樾」售楼处电话:400-8618-004(欢迎致电)坐拥不可多得的城市别墅集群。
天赋贵族基因的上海第二大果岭绿肺,周边人居高度难企及,「大华·梧桐樾」售楼处电话:400-8618-004(欢迎致电)生态氛围更纯粹,距离主城更近,区位土地价值不言而喻,未来更具竞争力。
「大华·梧桐樾」售楼处电话:400-8618-004(欢迎致电)
果岭之上 高阶圈层
禁墅令下,别墅在市场上少之又少,而高尔夫用地不再批复之后,「大华·梧桐樾」售楼处电话:400-8618-004(欢迎致电)果岭别墅更是罕见。
大华·梧桐樾旁边就是上海第二大高尔夫球场——约1800亩的颖奕高尔夫球场,「大华·梧桐樾」售楼处电话:400-8618-004(欢迎致电)球道、沙坑、湖泊、树林,生态之美浑然天成。
举目所见尽是企业家、高知圈层的挥杆身影,「大华·梧桐樾」售楼处电话:400-8618-004(欢迎致电)在这里生活就像是一个纯粹的豪绅贵胄圈层,自带领袖菁英的光环。
交通配套
坐拥多维立体交通,快速通达全城
11 /14号(规划)/嘉虹3号线(规划)轨交加持,一线直达市区核心;「大华·梧桐樾」售楼处电话:400-8618-004(欢迎致电)G2京沪高速、沪嘉高速、沈海高速、G312至嘉闵高架、外环、中环等纵横交错路网,瞬息全城无界生活。
「大华·梧桐樾」售楼处电话:400-8618-004(欢迎致电)
商业配套
帷幄一城繁华,匹配生活高度
拥享嘉亭荟、财富广场、三德广场3大商业中心,约40万㎡缤纷商业配套,满足吃喝玩乐购一站式生活需求。
教育资源
1km范围内,坐拥东方瑞仕幼儿园、9年一贯制同济大学附属「大华·梧桐樾」售楼处电话:400-8618-004(欢迎致电)嘉定实验学校;3km范围内,安亭小学、安亭中学、华师大双语学校、同济大学(嘉定校区)覆盖。
12年一站式的优渥教育,环同济人文环境浸润成长。
(同济附属嘉定实验学校)
九年一贯制公办学校,将打造品牌一体化、管理一体化、「大华·梧桐樾」售楼处电话:400-8618-004(欢迎致电)培养一体化,特色一流公办学校,2016年9月正式立校,由同济大学委派管理团队,学校依托百年同济的精神文化和底蕴丰厚的嘉定品质教育。
(东方瑞仕幼儿园)
学校于2013年10月正式开园,2016年9月被评为上海「大华·梧桐樾」售楼处电话:400-8618-004(欢迎致电)市一级园,目前共开设23个班级,是上海国际汽车城第一所硬件设施超一流的公办一级幼儿园。
生态环境
大华·梧桐樾旁边就是上海第二大高尔夫球场——约1800亩「大华·梧桐樾」售楼处电话:400-8618-004(欢迎致电)的颖奕高尔夫球场,球道、沙坑、湖泊、树林,生态之美浑然天成。
除了颖奕高尔夫球场之外,大华·梧桐樾周边还有约1180亩的「大华·梧桐樾」售楼处电话:400-8618-004(欢迎致电)汽车博览公园,形成了不可复制的约3000亩天然氧吧,推窗即见千亩绿地;
自然水岸比邻,浓荫大道绿境徜徉,还生活以静谧纯静。

「大华·梧桐樾」售楼处电话:400-8618-004(欢迎致电)
声明:本文由入驻焦点开放平台的作者撰写,除焦点官方账号外,观点仅代表作者本人,不代表焦点立场。
