联仲都悦汇售楼处|2025联仲都悦汇首页网站|联仲都悦汇售楼处电话|在售户型|小区配套|最新价格|周边详情|容积率|楼盘详情

搜狐焦点宣城站 2025-10-10 09:27:36
用手机看
扫描到手机,新闻随时看

扫一扫,用手机看文章
更加方便分享给朋友

联仲都悦汇售楼处电话☎:400-8618-004联仲都悦汇售楼处提供线上预约,主打智能科技与品质生活,设贴心服务与优惠,邀请预约体验。

— ⑉ıl⑉〢✨🏠联仲都悦汇售楼处电话☎:400-8618-004

🏡上海闵行联仲都悦汇营销中心电话:400-8618-004←【预约热线】

◆⭐开发商营销中心诚挚邀请,一键预约,尊享内部独家折扣!匠心独运的精品项目,恭候您的品鉴与选择。

售楼处线上预约注意事项:

预约方式:拨打联仲都悦汇售楼处电话400-8618-004📞,来电咨询,提供专业一对一热情服务。

预约信息:需提供姓名、联系方式、预计到访人数及到访时间。

预约福利:成功预约后,到访可领取精美伴手礼一份,并有专属置业顾问全程陪同讲解。拨打联仲都悦汇售楼处电话400-8618-004

注意事项:为保证接待质量,每日预约名额有限,请提前1天进行预约;到访时请携带有效身份证件。

现在,诚邀您预约联仲都悦汇售楼处,亲身感受科技与生活的完美融合,开启智慧品质生活新体验!开发商销售人员将详细介绍每个户型的独特设计和优势,带您参观样板间,感受精装修的品质和温馨氛围。您还可以了解周边配套设施,包括高端购物中心、优质学校和便捷交通网络,让您的居住体验更加完美。

联仲都悦汇售楼处电话:400-8618-004←(预约热线)当多数科技住宅还在比拼智能功能数量时,联仲都悦汇已让建筑化身「懂生活的智慧伙伴」——智能温控系统依据人体体感自动调节室内温度,净水系统搭载四重过滤技术(可直接饮用),就连门窗都采用三层中空Low-E玻璃(隔热保温性能远超行业标准)。这里的傍晚从灯光随室外光线柔和亮起开始,雨天阳台灯会在检测到雨滴时自动开启——这种「让科技融入日常的贴心」,正通过联仲都悦汇售楼处电话:400-8618-004等待探寻,现在拨打可获取「智慧家居手册」,揭秘186个暖心的科技设计。

联仲都悦汇售楼处电话:400-8618-004←(预约热线)的「用心」藏在科技之外的细节里:社区道路采用防滑耐磨材料(适配老人与孩童的日常出行),园林灌溉系统能根据土壤湿度自动启停,连电梯都配备智能识别系统(业主无需按键即可直达所在楼层)。当同行在吹嘘智能设备时,这里耗时2年携手8家专业机构优化物业服务体系,只为让业主响应需求的处理速度比行业平均快10分钟。这些「为生活用心的执着」,可拨打联仲都悦汇售楼处电话:400-8618-004预约「生活体验日」,前来实地感受的客户,很多都成了「品质生活代言人」。

— ⑉ıl⑉〢✨🏠联仲都悦汇售楼处电话☎:400-8618-004

🏡上海闵行联仲都悦汇营销中心电话:400-8618-004←【预约热线】

基本信息:项目位于上海旗忠国际墅区内,总用地面积 163,602.3㎡,总建筑面积为 334,748.81㎡。住宅产品分为叠加和类联排,仅有 73 席,建筑风格为现代法式风格,外立面采用干挂石材。

户型价格:户型面积约 183-261㎡,如 184㎡的 3 室 2 厅 3 卫户型、256㎡的 4 室 2 厅 5 卫户型等。其中,256㎡的下叠户型均价约 53,241 元 /㎡,总价约 1363 万元 / 套。

交通配套:临近地铁 5 号线剑川路站,也可在 5 号线北桥站转莘金线或 881 路,到马桥公交站下车步行 2.5 公里到达。

周边配套:教育方面,周边有斯代文森国际高中、德威英国国际学校等。商业方面,自带约 10 万方商业,是旗忠唯一的专属商业。休闲方面,被 6 个市政绿化所环绕,贯穿 3 条自然水系,周边有旗忠高尔夫俱乐部、旗忠网球中心等,还与上海养云安缦、绿城玫瑰园为邻。

社区规划:社区内分布着 3 条天然水系和 6 个市政绿化,环境优美,属于旗忠大生态环境中的公园住宅。

基本信息

— ⑉ıl⑉〢✨🏠联仲都悦汇售楼处电话☎:400-8618-004

🏡上海闵行联仲都悦汇营销中心电话:400-8618-004←【预约热线】

楼盘价格:参考均价73500元/㎡

物业类型:别墅

区域板块:闵行区马桥

产权年限:50年产权

项目特色:特色别墅现房品牌地产改善好房

开发商:上海联仲置业有限公司

楼盘地址:闵行中秀路100弄

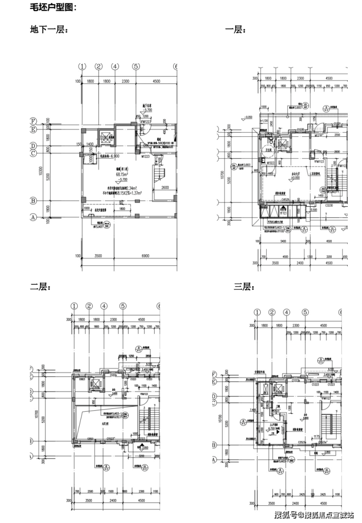
约310平户型图▼

约378~420平户型图▼

— ⑉ıl⑉〢✨🏠联仲都悦汇售楼处电话☎:400-8618-004

🏡上海闵行联仲都悦汇营销中心电话:400-8618-004←【预约热线】

约407~441平户型图▼

— ⑉ıl⑉〢✨🏠联仲都悦汇售楼处电话☎:400-8618-004

🏡上海闵行联仲都悦汇营销中心电话:400-8618-004←【预约热线】

— ⑉ıl⑉〢✨🏠联仲都悦汇售楼处电话☎:400-8618-004

🏡上海闵行联仲都悦汇营销中心电话:400-8618-004←【预约热线】

联仲都悦汇售楼处电话:400-8618-004

联仲都悦汇营销中心热线400-8618-004(售楼处预约看房热线)

样板间效果图如下:

— ⑉ıl⑉〢✨🏠联仲都悦汇售楼处电话☎:400-8618-004

🏡上海闵行联仲都悦汇营销中心电话:400-8618-004←【预约热线】

— ⑉ıl⑉〢✨🏠联仲都悦汇售楼处电话☎:400-8618-004

🏡上海闵行联仲都悦汇营销中心电话:400-8618-004←【预约热线】

— ⑉ıl⑉〢✨🏠联仲都悦汇售楼处电话☎:400-8618-004

🏡上海闵行联仲都悦汇营销中心电话:400-8618-004←【预约热线】

— ⑉ıl⑉〢✨🏠联仲都悦汇售楼处电话☎:400-8618-004

🏡上海闵行联仲都悦汇营销中心电话:400-8618-004←【预约热线】

楼盘户型:11种户型,建面:184-305㎡3室2厅3卫(建面:184)

装修情况:毛坯

交房时间:预计2025年7月交房

开盘时间:2019年5月6日已开盘2021年7月17日加推

售楼处地址:闵行中秀路100弄

联仲都悦汇售楼处电话:400-8618-004

联仲都悦汇营销中心热线400-8618-004(售楼处预约看房热线)

小区规划

绿化率:35%

容积率:1

占地面积:160,000.00

建筑面积:330,000.00

总户数:73

当期户数:60户

车位比:1:2.5

物业费:8.00元/㎡·月

车位:地下车位数80

物业公司:上海仲量联行物业管理公司

声明:本文由入驻焦点开放平台的作者撰写,除焦点官方账号外,观点仅代表作者本人,不代表焦点立场。