【宝业凤樾上筑】 宝业凤樾上筑(2025最新发布)_户型图_容积率_小区配套_楼盘地址
扫描到手机,新闻随时看
扫一扫,用手机看文章
更加方便分享给朋友
杭州萧山【宝业凤樾上筑】
售楼处电话最新发布:400-8386-958
售楼处电话:400-838-6958【售楼处预约热线】
欢迎致电售楼处电话,专业一对一热情服务,让您用专业眼光去买房。
项目信息
用地面积:16235方
总建筑面积:32529方
绿地率达:31%
容积率:2.0
楼栋规划:项目规划7幢住宅,共292户。其中 1# 4#为自持 2#为公租房,3#、5#、6#、7#均为14层精装高层住宅,共246户。
面积约89-128㎡,层高2.9米,阳台不封闭,底层架空层高度3.4米
得房率约:82%,
车位配置:1:1.1/1:1.2。
价格信息:项目整体限价20350元/平方(含精装标准3000元/平方)
交房时间:约2024年7月左右
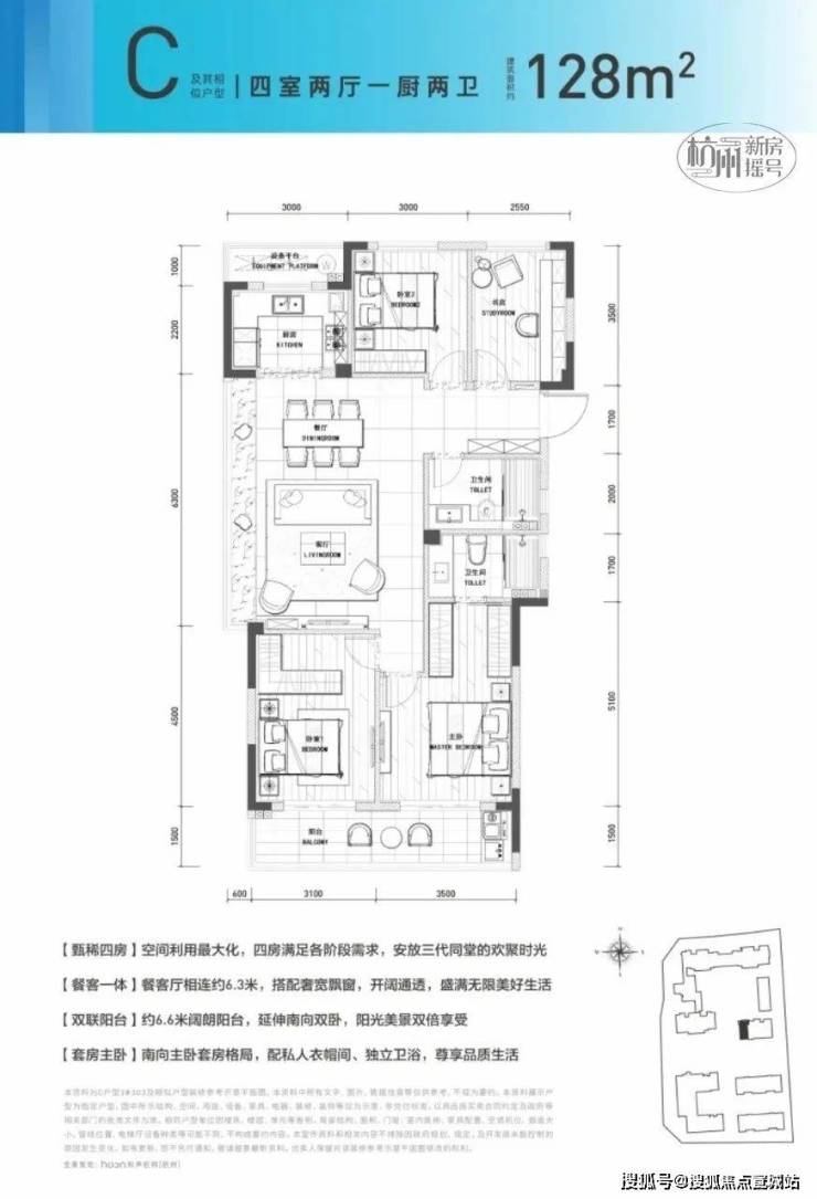
户型
△ 图为宝业凤樾上筑户型图
【U型厨房】与餐厅相连,空间面积利用,人性化设计日常生活动线

售楼处电话最新发布:400-8386-958
售楼处电话:400-838-6958【售楼处预约热线】
看房请务必致电与销售确认时间,仅预约客户可享受开发商内部优惠,专属老带新推荐奖!如有问题欢迎来电咨询,专业一对一热情服务,让您用专业眼光去买房。如果您想了解更多楼盘详情,欢迎提前预约拨打售楼处电400-838-6958
朋友圈频频出现低价工抵房,工抵房与商品房到底有什么区别呢?
1. 两者的定义不同
工抵房
开发商因资金不足,将未售出的房产抵押给工程方(如施工方、材料供应商等)用于抵偿债务(工程款、材料款等)。这类房产本质是开发商的“抵账资产”,产权可能已转移至债权方名下。
商品房
开发商合法建造并通过正常市场渠道销售的住宅或商业房产,
购房者直接从开发商或其代理商处购买,产权明确归属于购房者。
2. 购买渠道不同
工抵房
需通过债权方(如施工方、材料商)购买,可能涉及三方协议(开发商、债权方、购房者)。部分工抵房可能由开发商代售,但需明确产权归属。
商品房
直接通过开发商或正规代理商购买,签订标准《商品房买卖合同》,流程规范。
3. 价格差异
工抵房
通常价格低于市场价(约5%~20%),因债权方急于变现回款。但需注意是否存在隐藏成本(如税费、解押费用)。
商品房
按市场价销售,价格透明,但可能受开发商促销活动影响(如折扣、赠品)。
4. 产权风险
工抵房
若开发商未将房产解押或未完成产权转移,可能无法正常办理网签和房产证。若债权方存在纠纷(如多次抵押),可能导致交易失败或产权争议。需确认房屋是否已被备案至债权方名下。
商品房
产权清晰,开发商需具备“五证”(《预售许可证》等),交易完成后可正常办理产权登记。
5. 交易流程风险
工抵房
需与债权方签订协议,可能绕过开发商,导致后续维权困难。
若开发商资金链断裂,可能影响房产解押或交房。
需额外核实债权债务关系是否结清。
商品房
按政府监管流程操作,资金通常进入监管账户,风险较低。
6. 房屋质量与楼层选择
工抵房
可能为开发商未售出的尾盘,存在户型、楼层、朝向等缺陷,但并非绝对。
商品房
购房者可自由选择房源,开发商通常优先出售优质户型。
7. 合同签订方
工抵房可能与债权方或开发商签订合同,需明确责任划分(如交房、维修等)。
商品房直接与开发商签订合同,权责清晰。
购买建议:核实产权状态,要求查看《不动产登记证明》,确认房屋无抵押、无查封,且可正常备案。
选择正规渠道优先通过开发商购买工抵房,确保合同与开发商签订,避免“三方协议”纠纷。明确资金流向
购房款应直接支付给开发商,并由开发商向债权方清偿债务,避免资金被挪用。
审查合同条款明确交房时间、违约责任、产权办理等细节,必要时咨询律师。
总结:工抵房价格优势明显,但涉及复杂的债权债务关系,风险较高,适合对房产交易流程熟悉、能承担一定风险的购房者;商品房流程规范、风险低,适合追求稳妥的普通购房者。无论选择哪种,均需严格审查房屋资质与合同条款。能承担一定风险的购房者;商品房流程规范、风险低,适合追求稳妥的普通购房者。无论选择哪种,均需严格审查房屋资质与合同条款。
声明:本文由入驻焦点开放平台的作者撰写,除焦点官方账号外,观点仅代表作者本人,不代表焦点立场。
