曹路涌潮府(浦东金桥)涌潮府欢迎您_涌潮府售楼处_涌潮府楼盘详情
扫描到手机,新闻随时看
扫一扫,用手机看文章
更加方便分享给朋友

示意图规划中明确 ,唐镇-曹路-合庆城镇圈是浦东东部近郊被主城区大产业环绕的、且处于沿江通道上的重要功能板块。
板块将依托金桥城市副中心、张江科学城的产业联动契机和沪通铁路开通、轨道交通连通带来的交通区位提升契机,联动周边城市功能板块,整合城镇圈内部各功能板块,打造地区经济发展新亮点。

示意图
其次是地理位置:
从地图来看,曹路整体地理位置与唐镇、外高桥、周康等板块非常相似,全都位于外环旁,且紧邻金桥、张江等产业高地。
曹路向西,依次可至金桥副中心、花木-龙阳路副中心、张江副中心、陆家嘴中央活动区,各大商圈均在非常便捷的通勤范围内。
尤其是从曹路新市镇中心实际驾车到到金桥副中心核心区,距离仅约4.4公里!
如果乘坐轨道交通,3站地铁即可抵达金桥!
这样近的距离,完全可以住在曹路,享受城市副中心的配套服务。

示意图
2
性价比才是硬道理
外环旁 500万级优选
众所周知,楼市热度与板块新房供应量息息相关。
目前曹路由于新盘供应较少,所以很多朋友对于曹路的热度并不是很了解,曹路上一个全新盘供应还要追溯到一年以前,并且认购率连续2次超过150%!
当然,由于板块楼市处于较为初始的阶段,所以洼地属性非常明显:
同总价板块,地段一枝独秀!
从纬度地段,性价比无出其右!
从同总价板块来看:
11批次过会均价约5.15万/㎡,总价约500万级。
而目前整个浦东500万级的板块,「涌潮府」无论是在地理位置方面,还是交通便捷方面,全部堪称遥遥领先。

示意图
从同环线板块来看:
直线距离外环仅约3公里,通过北侧的五洲大道可直抵中环。
整个浦东外环旁区域的新房价格如下,三林约10万+、周浦约6万+、康桥约6万+、唐镇约7万+,也就是说「涌潮府」足以匹配约600-1000万级才有的地段价值。

示意图
3
配套价值是资源的占有
双轨交外环旁 3站直达金桥
除了优质地段和过人的性价比之外,「涌潮府」还占据着高能级全维度的城市资源。
根据规划, 所在的曹路板块将依托交通区位优势和区域产业、高校、院所资源,打造融合城市商贸服务、文化、休闲娱乐、生活居住等多种功能的复合型地区中心。
双轨交汇
项目周边坐拥地铁9号线和崇明线(在建)双轨交,步行仅约600米即可到达崇明线(在建)凌空北路站!

示意图
崇明线是上海轨道交通“十四五”开局之年的先行线路,建成后将大大提升曹路板块交通服务功能和城市空间组织效能。
通过崇明线(在建)凌空北路站进站,2站即可到达申江路站换乘12号线,3站即可到达金桥核心区换乘9号线。

示意图
值得注意的是,申江路站与凌空北路站仅仅相隔2站,但是房价却相差很多。
据网上房地产数据显示,申江路站最新一期的新房均价已经达到7.95万/㎡,与「涌潮府」仅约5.15万/㎡的均价相差约2.8万/㎡!
另外据贝壳数据显示,申江路站沿线的次新房挂牌价基本已经站稳10万+/㎡,与「涌潮府」仅约5.15万/㎡的均价相差超过5万/㎡!

示意图
紧邻外环
直线距离外环高速仅约3公里,可以快速通勤金桥城市副中心、张江城市副中心和陆家嘴中央活动区等热门商圈,便捷交通处处快人一步。
另外,「涌潮府」转至杨高中路直线距离约18公里即可直接到达世纪大道、陆家嘴中心。

示意图
教育高地
周边教育氛围非常浓厚,包括浦东模范中学东校、浦东复旦附中分校等优质教育资源,据统计项目周边直线1公里内共计拥有/规划了9块教育用地。
更重要的是,「涌潮府」南侧规划的教育用地,目前也正在施工。
(新房不承诺学区,具体以实际交付为准)

示意图
优质医疗
「涌潮府」直线2公里以内可以到达三级甲等医院海军军医大学第二附属医院(上海长征医院)浦东新院(在建)。
另外,「涌潮府」西侧规划了占地面积约3.5万方的医疗卫生用地。
根据配套设施规划,该地块还将建设约1800㎡的健身馆及建面约800㎡的游泳池等社区服务配套。

示意图

示意图
3
建面约88-129㎡3-4房
杭派精工 示范区已开放
杭州城建(大家房产) ,秉承“杭派精工,大美为家”,续承至高府系基因,于杭州和上海先后打造了包括武林府、金麟府、传宸府、上海文澜府等经典著作。
其中的钱江大家·文澜府,不仅取得了三开三罄的优异成绩,入围积分甚至达到了74分,创造了上海入围分以来同总价段新房的记录!

示意图
而本次, 仅为焕新浦东人居高度而来,项目不仅将“前进式建筑+围合式花园”两大看家本领带到了「涌潮府」,更是为曹路带来了史无前例的高得房率产品。
据了解,「涌潮府」得房率最高可以达到约80%!

效果示意图
南向立面加入大量玻璃,建筑配色经过层层臻选,最终采用大面积米白色,大地色系点缀其间。
「涌潮府」景观方面以“围合式中央公园”为核心,通过时光草坪、园林小径、运动聚场等多维度景观组团序列,深度串联社区多场域景观节点,让业主在生活中深切感受人与自然、建筑亲密共生的场景力。

示意图
本次将一次性推出253套全部可售房源,主力户型为建面约88㎡3房2厅1卫,建面约95/97㎡3房2厅2卫以及129㎡4房2厅2卫。
全套户型图如下:
建面约88㎡3房产品,3开间朝南+3飘窗+宽阳台的3房设计,在保证实用性的同时,也让室内的通风以及视野都做到了更好。
更重要的是 ,该户型总价预计仅约400万级,价格非常亲民,特别适合刚需客户上车!
建面约95-97㎡3房2卫 ,户型3开间朝南+T字动线+动静分离,主卧也设计了套房,让室内采光、通风、私密性都做了进一步升级。
另外,双卫的设计,完全可以轻松应对常住人员数量大于1的家庭,家中“关键时刻”对卫生间的“拥挤需求”,让家庭生活更从容、更方便。

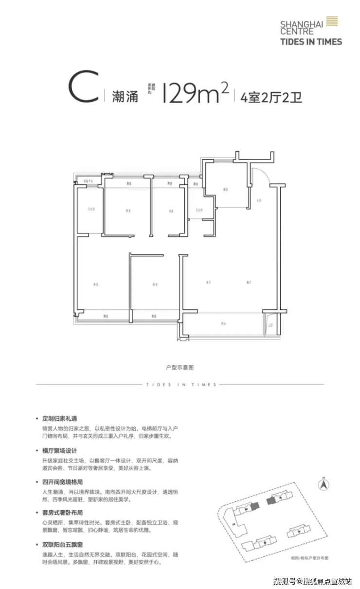
建面约129㎡的4房户型,在浦东非常少见,另外这也是曹路今年唯一一个4房户型,对于居住尺度有一定要求的改善朋友千万不要错过。
大尺度宽厅+双卧朝南 ,采光真的很不错,值得注意的是,该户型的宽厅还可以随时根据自身需求进行功能空间的加减,也可以设计成为一个开放式的书房,让生活多了一种可能。
除了户型设计之外,「涌潮府」在装修标准方面也甄选国内外一线家装品牌。
声明:本文由入驻焦点开放平台的作者撰写,除焦点官方账号外,观点仅代表作者本人,不代表焦点立场。
