奉发云邸(售楼处)首页网站-奉发云邸销售中心(营销中心)-奉发云邸楼盘欢迎您-小区环境-户型-价格-地址-楼盘详情-周边配套-售楼处电话
扫描到手机,新闻随时看
扫一扫,用手机看文章
更加方便分享给朋友
上海奉贤奉发云邸售楼处电话:400-8618-004【预约热线】奉发云邸售楼处营销中心:400-8618-004奉发云邸售楼处电话/地址☎:400-8618-004(开发商热线)如有问题欢迎来电咨询,专业一对一热情服务,让您用专业眼光去买房。
项目在售情况
【在售情况】:一期
高层均价约2.5万/㎡
F户型99㎡三房:220~280万
E户型127㎡三房:290~380万
叠墅均价约3.4万/㎡
A户型138㎡:上叠420~470万
中叠四房两厅两卫468万左右
下叠470~500万(地下室约113㎡)
C户型176㎡:下叠650~690万(地下室约160㎡)
D户型252㎡:上叠900万左右(地下室约200㎡)
注:地下室层高约5.6米,隔层做好交付

项目基本信息
【开发商】上海浦东星火开发区联合发展有限公司
【所属板块】自贸新区生态宜居区
【总建筑面积】约8.3万㎡,
【容积率】1.5,
【绿地率】35%,
【总户数】409户。
【产品类型】高层:99㎡、127㎡;叠加:138-252㎡。
【交付标准】高层精装,叠加毛坯
【交房时间】2024年年底左右
【产权年限】70年
【占地面积】3.4万平方
【建筑面积】8.5万平方
【物业公司】奉信
【总户数】409
【物业费】3元/㎡/月
【车位配比】1:1.2
【容积率】1.5
【绿化率】35%
奉发云邸售楼处营销中心:400-8618-004奉发云邸售楼处电话/地址☎:400-8618-004(开发商热线)
【奉发·云邸售楼部电话:400-8618-004欢迎来电咨询】以上海“闲仕生活”为精神内核,秉承奉发集团精工匠心与品质,敬呈全周期宽景轻平层与会生长的轻别墅两大主力产品。空间灵动,超宽尺度,打造全龄段家庭的舒适生活空间,尽享公园湖海之间的闲适生活意境。

以浦江烟雨为主线,设计中轴对称多维景观,匠造诗意栖居。规划长者、幼儿、青年全龄化游览、运动、互动空间,臻造酒店式美学住区。奉发云邸售楼处营销中心:400-8618-004奉发云邸售楼处电话/地址☎:400-8618-004(开发商热线)

项目在立面设计和装修上采用仿古铜金属铝板、LOW-E钢化中空玻璃、干挂石材等豪宅常用的高端建材。高层选用博洛尼、TOTO、摩恩等知名品牌,精工臻装,配备户外、全屋、楼宇、照明四大智能系统,完全是按照当代精英家庭的生活需求专属定制。

综合高潜力的区位发展、公园密布的生态优势,醇熟便利的生活,以及自身国企匠心的实力和极具前瞻性的产品规划和精工品质,【奉发·云邸售楼部电话:400-8618-004欢迎来电咨询】或将成为上海南部市场的一匹“红盘黑马”
【奉发·云邸售楼部电话:400-8618-004欢迎来电咨询】主推会生长的轻别墅和宽尺度全周期轻平层两种产品。
叠加别墅配有双层地下室,前后环绕式花园绿化,三代同堂的三孩家庭居住都游刃有余。叠加产品最大的亮点还在于它的超大面宽,最大可做到五开间朝南,把宽景生活演绎到极致。

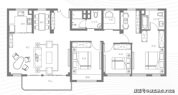
A1下叠约138㎡户型▼
3房2厅3卫+双层地下室

A1上叠约138㎡户型▼
3房2厅3卫+双层地下室

下叠约176㎡户型▼
奉发云邸售楼处营销中心:400-8618-004奉发云邸售楼处电话/地址☎:400-8618-004(开发商热线)
叠墅样板间▼




高层产品为南北通透的板式住宅,配有大面宽横厅和阳台,即便宅在家里,也有散心和观景的空间。户型还设计可变空间,对于新婚或者多孩家庭非常实用。奉发云邸售楼处营销中心:400-8618-004奉发云邸售楼处电话/地址☎:400-8618-004(开发商热线)
建面约99㎡3房2厅2卫▼

建面约126㎡3+1房2厅2卫▼

B户型约138㎡户型▼

高层样板间▼
项目区位配套
【奉发·云邸售楼部电话:400-8618-004欢迎来电咨询】择址奉贤新城东南板块,坐享自贸新区产城融合和奉贤“三区两镇”双重发展红利。区域将围绕新能源汽车、精准医疗、生物医药和世界级大健康产业发展,打造“宜居、宜业、宜游、宜学”的湾区。

交通配套方面:纵横立体路网闲适与繁华随意切换林海公路/浦星公路/沪金高速/沪奉高速(建设中)/金海公路多条纵线与绕城高速、申嘉湖高速双横向干道组成立体路网,辐射大浦东黄金生活圈。规划中的市域奉贤线直抵海湾大学城,项目门口即有公交站点布局,便捷路网,畅享上海主场生活。

生态资源方面:一湖三公园推门即享诗意悠然项目周边布局海湾国际森林公园、碧海金沙、都市菜园等3大国家级4A级景区,以及15公顷星火体育公园约2.7万㎡湖域,形成“一湖三公园”多维生态系统,打造滨海生态宜居宜养住区。奉发云邸售楼处营销中心:400-8618-004奉发云邸售楼处电话/地址☎:400-8618-004(开发商热线)

教育资源方面:星火学校、海湾小学、上海师大第四附中、上海师范大学奉贤校区、华南理工大学奉贤校区等政务、医疗、教育机构,全维成熟配套触手可及。

上海奉贤奉发云邸售楼处电话:400-8618-004【预约热线】奉发云邸售楼处营销中心:400-8618-004奉发云邸售楼处电话/地址☎:400-8618-004(开发商热线)如有问题欢迎来电咨询,专业一对一热情服务,让您用专业眼光去买房。
看房十八小技巧:
1、查看五证:购买期房的话,则一定要确定开发商五证两书一表齐全,这是关于买房的基本知识中最重要的一项,所谓五证就是指《国有土地使用证》、《建筑用地规划许可证》、《建筑工程规划许可证》、《建筑工程施工许可证》和《商品房预售许可证》,有了五证两书才能办房产证,这是个先决条件,而且这个过程中开发商拿地的出让金都结清,楼盘本身没抵押才行。两书为质量保证书和使用说明书。这两书是房屋竣工并且通过验收后获得的。房子盖完了没有通过验收不行。一表为竣工备案表。这个是由当地质检站在所有验收工作完成以后加盖公章交给开发商的。
2、选择开发商:新手第一次买房注意事项中慎重选择开发商也很重要,因为一个好的开发公司它必然有一个好的理念和好的团队、好的物管服务,它以经开发和服务的小区是经得起时间的检验,可以得到业主的口碑传颂的。好口碑的开发商是房屋质量的保障,一般好的开发商资质高、资金充足。
3、挑选户型新手购房须知,户型的挑选不能马虎,不同朝向、不同通风采光的户型会直接影响业主的居住舒适度,
4、挑选楼层挑选楼层也像挑选户型一样重要,初次买房须知中的关键一项,不同的楼层,房子的通风采光、视野景观以及业主的私密性、居住舒适度,甚至噪音污染、出行便利性等都或多或少有所不同,一般来说,低楼层出行更方便,如遇意外也更容易逃生,但是通风、采光、视野等相对高楼层较差,私密性较差,噪音污染也严重;高楼层视野好、空气清新,通风采光都更佳,但是如果电梯故障,可能会影响出行,总的来说,一栋楼的1/3至2/3之间的楼层是较好的楼层,属于不高不低的“黄金楼”。
5、买房时,一般会在同等区域、同等地段选择价位便宜的楼盘,或者买房时看到区位好而不管户型、内部环境、物管服务、生活成本等,这就像买一件衣服,你只管款式而不管布料、价格等,正确的做法是多学习选房知识,关注户型好坏,房屋质量等干货。
6、评估购房能力即使掌握了很多关于买房的基本知识,但很多人却对自己的经济能力认识不清,这也是很不明智的,买房之前一定要评估自己的购房能力,量力而行,对于刚需族来说,由于经济能力有限,所以都会采取贷款的方式买房。而贷款每个月需要交一定数额的月供,为了保证生活质量不受影响,避免断供的风险,
7、看优惠等待时机抓住机会也是买房须知的重要常识,买房子原本要花比较多的钱,买房子的时候能省一些算一些,所以购房者要懂得一些买房子的优惠政策。对于初次购买房屋的朋友来说,一般情况下都能享受首套房优惠政策,也就是说只要没买过房或没有贷款记录就可享受,开发商经常找“托”这样让购房者觉得“一房难求”在买房的时候职业顾问也会说再考虑一天就会被别人抢走房源,这样一来就会冲动消费,大家一定要耐住性子。
8、多看多比较年轻人买房时,最好不要好大喜贵,而且还想着一步到位,一定要像买东西一样货比三家,经过比较能获得有些经验,而房产综合性太强,它包含的面太宽,主要看你在比较过程中关心的内容全不全面,而且根据自己能承受的范围做出合理的决定,因为没有十全十美的房子,买房也不可能考虑到各方面的细节。
9、看规划买房当然要挑楼盘,挑小区,挑户型,但是也不能只看房子,还要看房子的位置,这也是买房须知和注意事项中很重要的一点,内行人买房首先看的是地段,华人首富李嘉诚也说过:“决定房地产价值的因素,第一是地段,第二是地段,第三还是地段。”好地段的房产保值或升值的空间更大,购房风险相对城市偏远郊区较小,就算未来房价暴跌,首先下跌的也是地段较偏的房产,地段好的房产房价一般都是最后下降的。建议大家在购置房产时,要切记紧跟城市发展的方向。
10、楼间隔什么是楼间隔?就好似两相邻楼的外墙面距离,同一个小区两栋相邻的楼与楼之间的距离,建筑间距的控制是为了保障人们工作、生活的质量与安全,大楼间隔宽的住宅区不一定能建造好的住宅区,大楼间隔特别宽也能建造好的住宅区,间隔宽是业主生活安静、隐私、视野广阔,也是景观建设的平台,但是利用平台建造景观安静、隐私、舒适的环境相反,大楼的间隔并不特别宽,但是这样的理念和团队创造了美丽、舒适、健康的环境,也被称为好的住宅区。
11、小区环境重点看小区环境是买房须知的重要常识,小区景观、绿化、配套等与生活密切相关,更是楼盘质量的体现,大超市、医院、学校,关乎生活便捷度;是否是学区房,关乎小孩上学;附近的公交线路、地铁线路,交通是否便捷;好小区内部和周边的配套设施也相对完善一些,不仅水、电、燃气、煤气、宽带、停车场、公共厕所、多功能儿童活动空间、园区休闲场所、物业公司等内部配套设施能满足业主的日常居住需求,周边还有便利店、菜市场、食品店、药店、小型超市、学校、公交站点或者地铁站点等多功能服务配套满足业主以及孩子的衣食住行的更高需求。
12、避免楼层选择楼层的时候经常是不遂人愿,既然选不到“黄金楼层”,至少不要选到一些太糟糕的,比如极端层,顶层和底层不建议买,高层住宅如果选择低楼层的房子的话,采光可能就不是很好,而且容易潮湿,发霉,滋生蚊子。顶层容易出现漏水现象,虽然能修理但耗时耗力,修理时间极可能被无限延长。设备层则是专门供水,供电的中间楼层,要是常年居住在设备层的附近的话,不仅机器设备的噪音把人折磨得无法休息,连机器的辐射也会影响人的身体健康。
13、价格挑选很多购房者认为房价才是买房最关键的因素,其实不然,适不适合自己才是最关键的。在自己能力范围内,如果房价偏高你也能接受,这样你就会觉得地段好、配套好、户型好、楼层好的房子才是最好的,就算房价贵点也愿意买。但是,如果你能力有限、购房资金有限,那么估计买哪里都会觉得贵,甚至觉得房价越便宜越好,价格挑选要比较个人承受范围、交通状况、社区环境、户型结构等条件衡量楼盘价格。
14、不要贪大买房一定不要贪大是买房时的重要事项,面积以实用为原则,不要为大而大,现在年轻人都喜欢独自出来居住,所以一般买个80、90平的大两室或者小三室就完全足够居住,非要买大房子,不仅不实用,而且还会涉及到一定的税费,国家区分豪宅和普通住宅的分界线就是144平米,所以在购买房子的时候,不要超过140平,除了税费要多交不少,对于一些物业费取暖费等等各个方面都会高出很多,长时间算下来,多出的这些没准在日后还能多出一套首付钱。
15、考虑孩子问题考虑孩子是买房时非常必要的,既然婚恋是买房子的重要原因,那么孩子就是一个不得不考虑的因素,首先在购房的户型上必须考虑孩子的房间,购房的户型最好要两居室以上;其次那就是注意考察周边的教育设施配套,孩子要上学,从幼儿园到小学到中学,同时还要考虑孩子路上的安全问题,尽量选择距离近的房子。这样可以给孩子节约大量的时间,让孩子有充裕的时间学习和休息。
16、了解物业物管的好坏要看有没有专业的团队,有无完善的设施、健全的内部管理。不同的物业公司所做的服务千差万别,物业公司能否尽善尽美地完成自己的任务牵扯到小区的整体质量。保障安全、常规服务是物管的基本职责,好的物管主要看能否与业主达到共建和谐的社区环境,改变邻里关系为业主提供交流平台。活动的目的,不止热闹高兴,而是使业主与业主间、业主与物管间更加融洽,物管的用心和细心能不能坚持下去是最重要的,最后的评比结果是业主的口碑效益。
17、购房定金“订金”与“定金”是不同的法律概念,这是开发商欲规避法律责任的惯用做法,《中华人民共和国担保法》规定:定金的数额由当事人约定,但不得超过主合同标的额的20%。商品房交易中,买家履行合同后,定金应当抵作价款或者收回;若买家不履行合同,无权要求返还定金,开发商不履行合同的,应双倍返还定金。而定金并非一个规范的法律概念,实际上它具有预付款的性质,并不具备担保性质。很多开发商会打出多少抵多少的优惠活动,但是需要缴纳一定的定金,要知道这里交了的定金是不能退的。辨别“订金”与“定金”是买房必知的重中之重。
18、签认购书购房者应慎签认购书,认购书是商品房买卖的预约合同,是独立合同。签认购书时常会引发一系列纠纷,具体表现在购房者要收回定金,而发展商却不一定会退还。因此,为避免过多的麻烦,购房者在决定买房,可以向发展商提出看正式合同样本,房屋买卖合同一般只会对房子本身做出承诺,但是售房者很可能为了签单而给你很多的口头承诺,在觉得正式合同可以接受的情况下,再签署认购书,以免被套牢。
声明:本文由入驻焦点开放平台的作者撰写,除焦点官方账号外,观点仅代表作者本人,不代表焦点立场。
