雅乐云庭售楼处电话 | 苏州高新雅乐云庭(房价+户型图)雅乐云庭售楼处欢迎您
扫描到手机,新闻随时看
扫一扫,用手机看文章
更加方便分享给朋友
苏州高新区雅乐云庭
售楼处电话:400-886-2334(预约热线)
如有问题欢迎来电咨询,专业一对一热情服务,让您用专业眼光去买房。
雅乐云庭售楼处电话:400-886-2334【售楼热线】营销中心热线400-886-2334售楼处地址400-886-2334,楼盘项目全面介绍,本电话为开发商提供线上售楼电话,楼盘项目全面介绍(包含楼盘简介,房价,价格,楼盘地址,户型图,交通规划,备案价,项目配套,楼盘详情,售楼处电话,最新消息,最新详情,周边配套,最新进展等详情咨询)
免责声明:将文章内容综合来源于网络、只作分享,版权归原作者所有!!如有侵权,请联系我们,我们第一时间处理!
项目名称:乐云庭(备案名:雅乐云庭)
地块信息:苏地2021-WG-74、75号地块
开发品牌:苏高新产城 X 朗诗地产
项目地址:苏州高新区浒墅关大道与榆荫路交汇处
地块指标:商住用地,占地面积36.6万方,总建筑面积113万方
产品信息:拟建59栋17-26F高层住宅,共计3939户
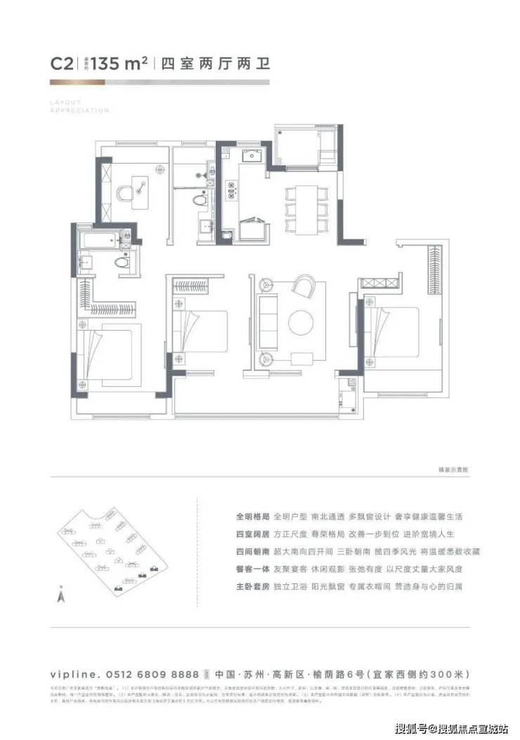
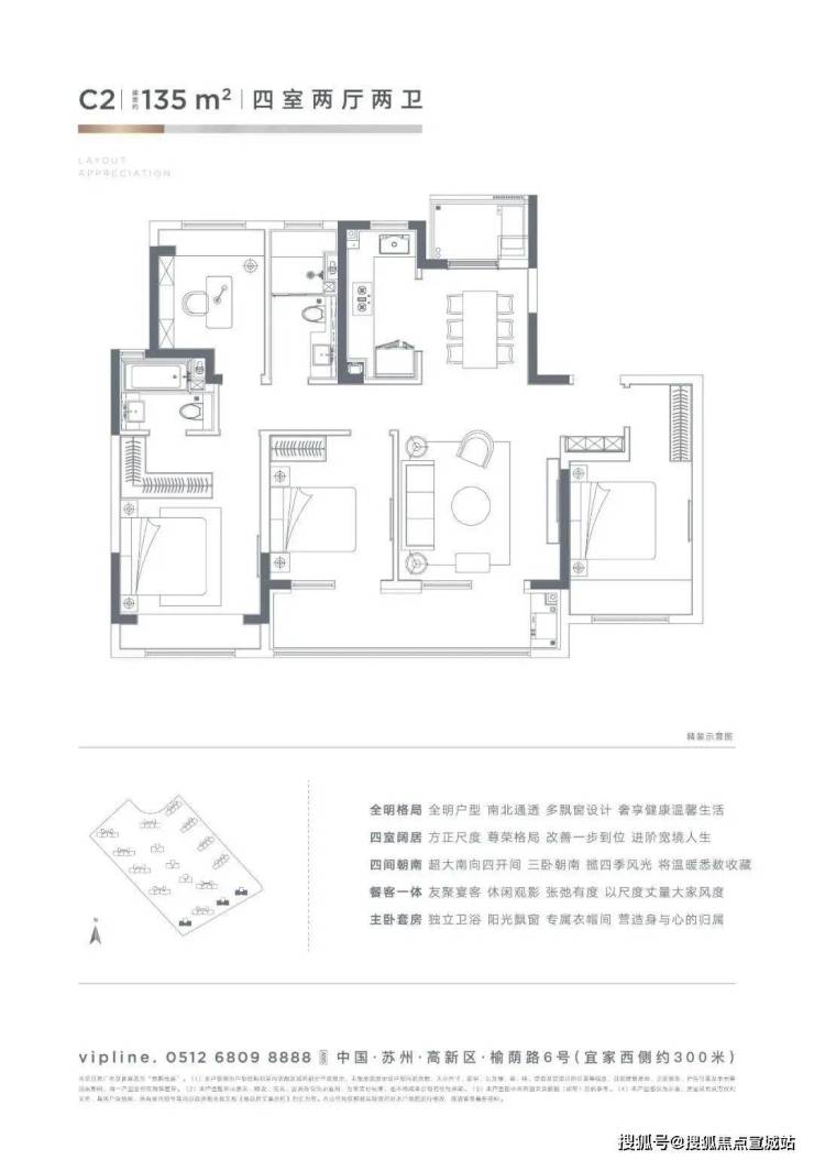
户型配置:建面约105、125、135、165、220㎡
精装装标:全装修交付,最低装标1500元/平
价格信息:楼面价8928-9044元/㎡,整体备案均价30200元/平
雅乐云庭
江苏省苏州市虎丘区浒墅关镇浒墅关大道与榆荫路交汇处
苏高新产城&朗诗地产,时代巨匠携手,与土地更契合,与城市更相容,为城市带来前沿的产品和理念同时,也更尊重苏州的人文精神和居住习惯,于运河之畔、新区新中心,打造超级产城作品。
苏高新产城
苏州新区高新技术产业股份有限公司(以下简称“苏高新股份”)由苏州国家高新技术产业开发区管理委员会于1994年发起成立,1996年于上交所挂牌上市,是苏州高新区首家、苏州市首批上市公司。截至今年6月,公司直接控股子公司14家,间接控股子公司64家,参股企业35家。
苏高新股份立足“高新技术产业培育与投资运营商”的战略定位,以创新地产、文旅商贸、节能环保和战略新兴产业作为主要发展方向,以非银金融与产业投资作为蓄能产业,赋能主业全面发展。
苏高新产城为苏高新股份下属公司,公司以发展产业为基础,推进产城融合开发,实现地产转型升级,驱动城市创新迭代。
朗诗地产
中国领先的绿色地产开发服务商,中国房地产百强企业。
朗诗地产成立于2001年,朗诗控股旗下核心业务。秉持“人本、阳光、绿色”的企业价值观和“为人造房”的使命,依托朗诗控股平台成熟的绿建科技及优质绿建资源,朗诗地产业务覆盖全国主要一二线城市及重点经济区域,基本实现全国化布局,开发超过150个项目,开发总面积逾2500万平方米,为50万用户打造“健康、舒适、节能、环保、智慧、人文”的优秀绿色住宅产品。
一、千年运河之滨 擎动世界繁华风向
天赋至贵,文脉源远流长。从尼罗河、幼发拉底河、底格里斯河、印度河到黄河,人类灿烂的文明,无不肇始于一条伟大的河流。一条大运河,半部中国史。总长1797公里的京杭大运河,是世界上里程最长、工程最大的古代运河,与长城、坎儿井并称为中国古代的三项伟大工程,是中国文化地位的象征之一。
蜿蜒流淌的大运河,承载着苏州的历史沉淀与国际活力;而今素有“江南要冲地,吴中活码头”之称的北新区·浒墅关,正展现“大运河”的底蕴,成就时代稀贵恒产。

二、苏州高新区 城市发展价值高地
苏州高新区,全称苏州高新技术产业开发区,位于苏州古城西侧,东临京杭大运河,南邻吴中区,北接相城区,西至太湖,交通十分便利。2013年4月苏州高新区下属苏州科技城(苏州浒墅关经济开发区)与高邮经济开发区实现南北共建园区。2018年6月,苏州高新区入选第四批“全国法治县(市、区)创建活动先进单位”。(相关信息来源苏州高新区官方词条)

苏州高新区城市规划紧紧围绕争创“一流园区”目标,全力打造“效益新区”、“活力新区”、“和谐新区”,全面提升“五个功能组团”建设。在协调发展规划指导下,把通浒片区建成集生产、生活和生态相配套的现代化产业区和北部新城,给落址于高新区城芯的乐云庭带来了区域政策利好,坐享时代发展红利。(相关信息来源苏州高新区官方词条)


·地铁:无缝对接地铁3号线惠昌路站、6号线(在建)
·主干道:毗邻中环北线、中环西线、浒墅关大道,直通高架,通达全城
·机场/火车站:距离新区火车站约1km,乘地铁3号线约5min左右即可抵达;距苏州西站约3km,约35min即可抵达苏南硕放机场
·铁路:接轨长三角中轴枢纽——沪宁城际铁路,约40min可达上海虹桥,约90min直抵南京、杭州

·商业:1km内拥揽开市客、永旺梦乐城、宜家、迪卡侬四大巨头商业,与世界共享都会繁华。

·教育:项目毗邻幼儿园(规划中);项目西北侧——苏州高新区实验初级中学(文昌校区)、文正小学。

·自然:毗邻绵延千年的京杭大运河,邻接总占地面积约50公顷的大白荡城市生态公园。

百万方 TOD 多功能综合体,超级大城擎领未来
————
巡礼全球都市中心,赋能苏州全新未来,驾接地铁三号线惠昌路站(地铁就在地块中心),苏高新产城联手朗诗地产打造百万方TOD多功能综合体——阅帆汇,以集约化、复合型、内外而合的“立体城市”形式,汇集“商业+枢纽+住宅”,并以四个下沉庭院为转换核心,实现地铁、办公、地下车库、住宅等之间的互联互通,板块内总部办公、商务集群、国际酒店、商业街区、品牌公寓、科技住宅汇聚,六大业态,先见TOD生活新场景,擎画城市未来蓝图。作为TOD之上的人居臻品,乐云庭更是以“科技住宅”之名,引领苏州绿色人居潮向。

·总部办公:引入两大省重大项目:“中国检验认证集团苏州检验检测基地”,为打造长三角地区检验认证产业基地奠定坚实的基础;“中软国际有限公司苏州软件开发及集成测试中心”,为打造长三角数字经济发展的“新坐标”实现苏州数字产业化和产业数字化双轮驱动。
·商务集群:于运河畔,打造高端产业集群,全定制式高级商务空间、地标写字楼,释放国际商务的感召力,演绎企业雄心气度。
·国际酒店:规划引入洲际酒店旗下豪华酒店品牌,融东方文化与现代艺术,打造商务会晤、企业峰会城市会客厅,为城市精英敬献圈层资源社交场。

·商业街区:聚合国际都会商业风景,规划打造开放式、街区式、体验式商业区,承载商业文化、城市繁华的功能,近揽万象生活。
·品牌公寓:高品质公寓,为高端商务人士,提供全方位、国际化、个性化的服务,以高质量的国际标准满足商务精英的生活需求。
·科技住宅:苏高新产城与朗诗地产强强联袂,汲取各家精粹,融合前沿国际美学,以大师手笔,匠造建面约105-220㎡国际滨水科技住区,乐云庭焕新城市人居。

世界美学住宅 国际健康人居典范
立面以经典高级灰色调,搭配高透low-E玻璃,融合中西在地风格,高窗比流线体,金属质感包边,超大窗墙比,彰显精致典雅,形成国际化与未来感的交错重叠,凸显国际恒贵人居质感,敬献圈层人物。

全龄化生活园林景观 雕琢生活大美
引入大公园概念,以“一带两轴多节点”的连接方式,打造公园社区,实现景观资源自有共享,营造满分“绿色公园街区”系统。并打造“社区公园——礼仪大堂——邻里花园——入户花园”四重归家礼序,创造最具有特色的全龄化、人性化的氧气社区。

乐云庭融合自然之意,以多重绿植组团效果,构建“一环二轴多亮点”的景观空间结构,中心康养漫步环,让健康生活在自然里发生;礼仪归家轴、尊享归家轴,铺排业主归家的仪式感;邻里环氧乐园、城市会客厅、儿童乐园、活力乐园、口袋公园,功能迥异却紧密相连,自然绿意,围合生活之美。

朗诗科技——硬核科技 迭变居住
住宅采用朗诗全新一代智控科技系统「自由方舟」,以“集中能源+户式末端”相结合的系统形式、八大自由主张,全方位覆盖绿色生活,迭代苏州奢适人居新体验。

八大自由主张:
·温度自由:不用空调,四季如春;温度均匀,无温差感。

·湿度自由:告别梅雨潮湿,告别冬日干燥;加湿除湿,舒爽宜人。

·新风自由:置换式新风系统多档调节;全屋置换鲜氧,畅快“森”呼吸。

·声光自由:隔音高性能门窗,屏蔽声光干扰,整夜好眠。

·智控自由:一键智控,轻松便捷;室内外空气质量监测,多模式调节。

·预约自由:手机APP可远程预约;一键定制舒适环境,预享安心。

·用能自由:用能可视化,支持用户行为节能;科学用量,绿色环保。

·空间自由:解放住宅产品常规设计限制,提升居家使用空间,装修更多样。

苏州高新区雅乐云庭
售楼处电话:400-886-2334(预约热线)
如有问题欢迎来电咨询,专业一对一热情服务,让您用专业眼光去买房。
雅乐云庭售楼处电话:400-886-2334【售楼热线】营销中心热线400-886-2334售楼处地址400-886-2334,楼盘项目全面介绍,本电话为开发商提供线上售楼电话,楼盘项目全面介绍(包含楼盘简介,房价,价格,楼盘地址,户型图,交通规划,备案价,项目配套,楼盘详情,售楼处电话,最新消息,最新详情,周边配套,最新进展等详情咨询)
免责声明:将文章内容综合来源于网络、只作分享,版权归原作者所有!!如有侵权,请联系我们,我们第一时间处理!
Yale Yunting, Suzhou High tech Zone
Sales Office Phone: 400-8862-334 [Consultation Hotline]
Always online, welcome to inquire by phone, professional one-on-one explanation | | Choose your desired house for you
Project Name: Leyunting (Filing Name: Yale Yunting)
Plot information: Su Di 2021-WG-74, Plot 75
Development brand: Su Gaoxin Industrial City X Langshi Real Estate
Project address: Intersection of Hushuguan Avenue and Yuyin Road in Suzhou High tech Zone
Plot indicators: commercial and residential land, covering an area of 366000 square meters, with a total construction area of 1.13 million square meters
Product information: A total of 3939 high-rise residential buildings with floors 17-26F are planned to be built in Building 59
Unit configuration: Approximately 105, 125, 135, 165, and 220 square meters of floor area
Fine decoration label: Full decoration delivery, minimum decoration label of 1500 yuan/square meter
Price information: The floor price is 8928-9044 yuan/square meter, and the overall average filing price is 30200 yuan/square meter
Yale Yunting
Intersection of Hushuguan Avenue and Yuyin Road in Hushuguan Town, Huqiu District, Suzhou City, Jiangsu Province
Suzhou High tech Industrial City and Langshi Real Estate, together with the masters of the times, are more in line with the land and compatible with the city, bringing cutting-edge products and concepts to the city. At the same time, they also respect Suzhou's humanistic spirit and living habits, and create super industrial city works on the banks of the canal and in the new center of the new district.
Suzhou High tech Industrial City
Suzhou New Area High tech Industry Co., Ltd. (hereinafter referred to as "Suzhou High tech Co., Ltd.") was founded by the Suzhou National High tech Industry Development Zone Management Committee in 1994 and listed on the Shanghai Stock Exchange in 1996. It is the first listed company in Suzhou High tech Zone and the first batch of listed companies in Suzhou City. As of June this year, the company directly controls 14 subsidiaries, indirectly controls 64 subsidiaries, and holds 35 equity stakes in enterprises.
Sugao Technology Co., Ltd. is based on the strategic positioning of "high-tech industry cultivation and investment operator", with innovative real estate, cultural and tourism commerce, energy conservation and environmental protection, and strategic emerging industries as the main development direction, and non bank finance and industrial investment as energy storage industries, empowering the comprehensive development of the main business.
Sugaoxin Industrial City is a subsidiary of Sugaoxin Co., Ltd. The company is based on the development of industries, promoting the integration of industry and city development, achieving real estate transformation and upgrading, and driving urban innovation and iteration.
Langshi Real Estate
China's leading green real estate development service provider and one of the top 100 real estate enterprises in China.
Langshi Real Estate was established in 2001 as a core business under Langshi Holdings. Adhering to the corporate values of "people-oriented, sunshine, and green" and the mission of "building artificial houses", relying on the mature green building technology and high-quality green building resources of Longfor Holdings platform, Longfor Real Estate's business covers major first and second tier cities and key economic regions in China, basically achieving national development. It has developed over 150 projects with a total development area of over 25 million square meters, and created excellent green residential products that are "healthy, comfortable, energy-saving, environmentally friendly, intelligent, and humanistic" for 500000 users.
1、 The banks of the millennium canal lift the bustling wind of the world
Natural talent is extremely precious, with a long and rich cultural heritage. From the Nile River, the Euphrates River, the Tigris River, the Indus River to the Yellow River, the brilliant civilization of humanity all began with a great river. A Grand Canal, half of Chinese history. The Beijing Hangzhou Grand Canal, with a total length of 1797 kilometers, is the longest and largest ancient canal in the world. Along with the Great Wall and Karez, it is known as one of the three great ancient Chinese projects and is a symbol of China's cultural status.
The winding Grand Canal carries the historical sedimentation and international vitality of Suzhou; The Hushuguan Pass in Beixin District, known as the "vital hub of Jiangnan and the active dock of Wuzhong," is now showcasing the heritage of the "Grand Canal," achieving rare and valuable resources of the times.
2、 Suzhou High tech Zone Urban Development Value Highland
Suzhou High tech Zone, the full name of Suzhou High tech Industrial Development Zone, is located in the west of the ancient city of Suzhou, facing the Beijing Hangzhou Grand Canal in the east, Wuzhong District in the south, Xiangcheng District in the north, and the Taihu Lake Lake in the west. The transportation is very convenient. In April 2013, Suzhou Science and Technology City (Suzhou Hushuguan Economic Development Zone) under Suzhou High tech Zone and Gaoyou Economic Development Zone jointly established a north-south park. In June 2018, Suzhou High tech Zone was selected into the fourth batch of "exemplary organization in National Legal County (City, District) Creation Activities". (Relevant information sourced from the official entry of Suzhou High tech Zone)
The urban planning of Suzhou High tech Zone closely revolves around the goal of striving for a "first-class park", making every effort to create a "benefit new area", a "vitality new area", and a "harmonious new area", and comprehensively improving the construction of the "five functional clusters". Under the guidance of coordinated development planning, the Tonghu area has been built into a modern industrial zone and a new northern city that integrates production, living, and ecology, bringing regional policy benefits to Leyunting located in the core of the high-tech zone and enjoying the dividends of the times. (Relevant information sourced from the official entry of Suzhou High tech Zone)
·Subway: seamless connection between Huichang Road Station on Line 3 and Line 6 (under construction)
·Main Road: Adjacent to the Central North Line, Central West Line, and Hushuguan Avenue, it leads directly to the elevated road and reaches the entire city
·Airport/Railway Station: About 1km away from the New Area Railway Station, it can be reached in about 5 minutes by taking Metro Line 3; About 3km away from Suzhou West Station, it takes about 35 minutes to reach Sunan Shuofang Airport
·Railway: Connected to the central axis hub of the Yangtze River Delta - the Shanghai Nanjing Intercity Railway, it takes about 40 minutes to reach Shanghai Hongqiao and about 90 minutes to directly reach Nanjing and Hangzhou
·Commerce: within 1km, it will attract four giants, namely, market opening customers, Aeon Dream City, IKEA and Decathlon, and share the prosperity of the city with the world.
·Education: The project is adjacent to a kindergarten (under planning); To the northwest of the project - Suzhou High tech Zone Experimental Junior High School (Wenchang Campus) and Wenzheng Primary School.
·Nature: Adjacent to the millennium long Beijing Hangzhou Grand Canal and adjacent to the approximately 50 hectare Dabaidang Urban Ecological Park.
Million square TOD multifunctional complex, super big city leading the future
————
Touring the global urban center, empowering Suzhou with a new future, driving to the Huichang Road Station of Metro Line 3 (the subway is located in the center of the plot), Su High tech Industry and City teamed up with Landsea Real Estate to create a million square meter TOD multifunctional complex - Yuefanhui. In the form of an intensive, composite, and integrated "urban body", it gathers "commercial+hub+residential", and uses four sunken courtyards as the conversion core to achieve interconnection between the subway, office, underground garage, residential, etc. The headquarters office, business cluster, international hotels, commercial blocks, brand apartments, and technology residential areas in the area converge, with six major business formats, pioneering TOD living new scenes, and painting a blueprint for the future of the city. As a living masterpiece above TOD, Leyunting leads the trend of green living in Suzhou under the name of "technological housing".
·Headquarters Office: Introducing two major provincial projects: "China Inspection and Certification Group Suzhou Inspection and Testing Base", laying a solid foundation for building an inspection and certification industry base in the Yangtze River Delta region; The Suzhou Software Development and Integration Testing Center of China Software International Co., Ltd. aims to create a "new coordinate" for the development of the digital economy in the Yangtze River Delta and achieve a dual drive of Suzhou's digital industrialization and industrial digitization.
·Business Cluster: By the banks of the Yunhe River, we aim to create a high-end industrial cluster with fully customized high-end business spaces and landmark office buildings, unleashing the appeal of international business and showcasing the ambition of the enterprise.
·International Hotel: Plan to introduce the luxury hotel brand under the Intercontinental Hotel brand, integrating Eastern culture and modern art, to create a city reception hall for business meetings and corporate summits, and to dedicate social resources to urban elites.
·Commercial Block: Aggregating the commercial landscape of the international metropolis, planning to create an open, block style, and experiential commercial area, carrying the functions of commercial culture and urban prosperity, and embracing the life of all.
·Brand Apartments: High quality apartments provide comprehensive, international, and personalized services for high-end business people, meeting the living needs of business elites with high-quality international standards.
·Technology Residential: Suzhou High tech Industrial City and Langshi Real Estate have teamed up to draw on the essence of various industries and integrate cutting-edge international aesthetics. With master craftsmanship, they have built an international waterfront technology residential area with an area of approximately 105-220 square meters, creating a new urban living environment in Leyun Ting.
声明:本文由入驻焦点开放平台的作者撰写,除焦点官方账号外,观点仅代表作者本人,不代表焦点立场。
