滨江兴耀·松川境
滨江兴耀·松川境售楼处电话:400-885-1337【售楼中心】

咨询高峰期请耐心等待,预约来电尊享内部优惠,专业一对一热情服务,让您用专业眼光去买房。
仅开盘1个月,萧山区龙湖天街旁(在建)、双地铁交汇的滨江兴耀松川境项目,全盘高层销售套数过半。
之所以有如此强劲的实力结果,和它无与伦比的质价比以及满足改善一切需求、审美能够穿越周期的超强产品力有分不开的关系。
截止目前,项目高层全部房源已经推出,169-199方少量房源线下热销中,均价约4玩万+/平!

(项目楼幢分布效果图)
以下为项目信息介绍:
项目占位介绍
首先是占位:2站地铁即奥体最核心,价差超4万/平。

(江南岸房价地图参考,数据来源于浙里地产)
松川境直线约 860 米,可达地铁 15 号线与 7 号线交汇的明星路站, 2站奥体中心,3站市民中心。

(根据地铁线路图绘制,供参考)
市民中心周边目前无新房可售,奥体中心站附近的奥映鸣翠开盘均价8.7万/平,后续大户型放风10万/平,滨江水电新村直逼15万/平......
其次是资源的拥有:
商业方面: 一路之隔,直线约300米左右的距离就是龙湖天街,总体量约10万方,预计29年开业;如果这还不满足,周边3公里内,还有奥体印象城、SKP等。

(项目现场航拍实景图)

(龙湖天街效果图)
教育资源方面:有科大讯飞与浙大教育学院合作的信息港小学,以及北京外国语大学附属杭州信息港初中、杭二中等名校环绕。(新房不承诺学区,具体以交付后,教育部门划分为准)
产业方面:项目西面约1公里就是占地约 9.5 平方公里的信息港小镇,是杭州强劲的科创引擎之一,已吸引科大讯飞、微医集团、无忧传媒等 500 余家科技企业扎根, 其中 7 家上市公司和 30 余家独角兽......


(项目现场航拍实景图)
产业的聚集能导入大量的人才。
根据有关部门的统计,该小镇某公司的F级以上人才占全司的80%以上,他们雄厚的购买力,会让板块楼市品质住宅价值分外夯实,也会促进商业、教育、文化、绿地等配套的更加完善。
滨江兴耀·松川境
滨江兴耀·松川境售楼处电话:400-885-1337【售楼中心】
咨询高峰期请耐心等待,预约来电尊享内部优惠,专业一对一热情服务,让您用专业眼光去买房。
项目产品力介绍
每一个出圈的作品,都需要充足的时间来打磨。每一处产品细节的研磨,每一道技艺所蕴含的智慧,都呼唤着拳拳匠心。
特别是公区的审美、工艺、用材是后期再花多少钱都无法改变的。
那对于 豪宅专家滨江和拥有独立美学的兴耀
,它俩的“稳定输出”早已经有目共睹。仅25年下半年,江南岸“滨江X兴耀”,就有4子待售。
其中 松川境作为第一个面世的项目,更是铆足了劲,花费大量资金、精力的同时,还非常注重审美和艺术表达(相比滨江传统风格更加年轻现代),力求在出品的时候就做到更好状态,来匹配未来高净值人群的居住格调。
管中窥豹:

(示范区大门实景图)
门头气势恢宏。做了约80米宽,6.5 米高。大门材质用的是熔铜,入口处还设置 25 米长叠级水景承托整个入口,沉香米黄、蓝翡翠潘多拉等多种名贵石材搭配,每平米光石材成本就是近万元。
立面和奥映鸣翠同等级别。整体采用超 70%大面积的全面屏玻璃、珠光青铜铝板与弧形造型,从视觉上就把项目直接拉到2000万级产品行列, 这是越级提升!

(立面效果图)
还有一个非常巧妙的点:
在项目高层组团和叠墅组团之间,我们看见了一个板块内体量最大,约3300方的中心景观:

(示范区中心景观实景图)
相比于传统紧凑排布的纯叠墅项目,松川境业主有更多大块的景观空间,且整个场景在感受上并没有被建筑隔断,下沉式庭院和双水院景观错落排布,很自然的就连接成为一个整体的大空间。
保持彼此间动线独立的同时,又能互相联系。
当然,如果这只是单纯的物理结合也就算了,我们还可以看一下这样规划下创造的生活场景:
约7米高的瀑布,层叠的流水,多颗造型黑松......“复得返自然”的感觉,油然而生。

(示范区中心景观实景图)
滨江兴耀·松川境
滨江兴耀·松川境售楼处电话:400-885-1337【售楼中心】
咨询高峰期请耐心等待,预约来电尊享内部优惠,专业一对一热情服务,让您用专业眼光去买房。
穿过瀑布,沿着螺旋艺术楼梯蜿蜒而下: 约1500方下沉式会所。

(示范区旋转楼梯实景图)
是板块里唯一一个 5 万内楼盘带专属会所的,同时也是体量最大的。
恒温泳池、健身房、私宴厅、会客厅及书吧等功能空间,被很好的融合在一起,营造出酒店式的隐奢感觉。



(示范区地下会所实景图)
可以说,无论从公区的规模、内容,还是审美以及到细节上的用料,项目的调性和品位无疑是TOP级的,美学、私密、社交在此完美融合,业主尊贵感、面子拉满。这也是松川境拥有的独家竞争力。
类一梯一户的神户型+顶配装标
首先从户型设计来说:项目最显著亮点在于其超高的 空间利用率。
计容新规结合大面积赠送空间,赋予了户型设计极大的灵活性,使得高层产品使用率最高可达惊人的 93%。
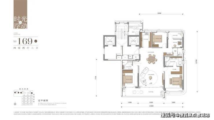
具体而言,松川境建面约169方的户型:北阳台内包,飘窗不计面积,空间利用率远超同类产品。对购房者而言,则意味着显著的性价比优势,相当于节省了约一个房间的成本。

(建面约169方户型图)
还有主卧超大衣帽间、主卫双台盆+大浴缸,这种在别的项目吹上天的配置,在松川境属于基操了。它的优势早已领先在下一个维度:
各个功能间尺度的全面升级。仅169方就做到了 南向面宽约13米,双联的超宽阳台进深约2米......的超级尺度。
生活在这样明亮、开阔的空间里,人的情绪都会更加积极,减少压抑感,未来在二手市场上也会更受欢迎。
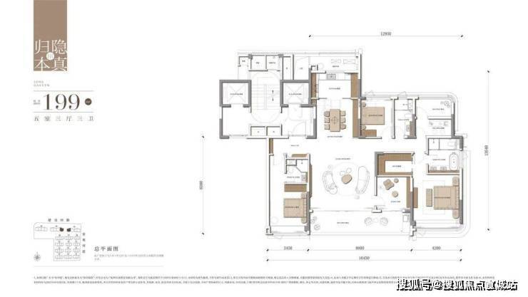
建面约199方户型:小胖在看到这个户型时,更是可以用激动来形容。

(建面约199方户型图)
它把199方的面积,做出了 至少约230方的既视感,吊打市面同等面积户型。
同时,在功能打造上,无论是公区的气派程度还是未来家庭每一位成员的居住舒适度,都被完美融合在这个户型里。
5房灵动布局(最小的房间都有近10个平方),客餐厅近50平。还是 约16.5米南向四开间的设计,光客厅就有约5.8米,可谓逆天。
双南向主卧,兼容更多不同居住人群需求,无论是老人同住还是二胎家庭,每位家人都能有舒适的居住体验。
不出意外,这应该是目前市面上瞰景能级+实用率最高的五房产品了。
另外,还有一个惊喜:类一梯一户设计,带来每一套房子门口都有一个独立电梯厅。
而且这块区域的面积不小,最少也有约6个平方左右,出入更具尊贵感、私密感。
其次从装修用材来说:从门口进来满眼皆是奢石,大面积的奢石背景墙凸显空间高级感; 双卧室硬包背景+造型天花吊顶,让每个功能空间都兼具设计感与氛围感;

(建面约169方展示样板间实景图)

(建面约169方展示样板间实景图)
在日常生活里,使用频率最高的厨房和卫生间,则成为了一线装修品牌陈列的展馆。
厨房:九件套。含博世五件套、其中冰箱是博世8系最高顶配,全嵌入式、全进口的。还有 方太万元侧吸油烟机,爆炒辣椒也不用担心跑烟。空调、厨余处理器、净水器等,也都包在交付标准内;
卫生间:镜柜配置美妆冰箱,守护主人高端的护肤美容产品;
科技感满满的语音智能控制及远程操控:可以远程控制空调、新风地暖、 灯光、窗帘等设备的启停,随时调节家里温度、空气,明亮度及光照等,现代都市人的高效品质生活体验,一一被满足。
滨江兴耀·松川境
滨江兴耀·松川境售楼处电话:400-885-1337【售楼中心】
咨询高峰期请耐心等待,预约来电尊享内部优惠,专业一对一热情服务,让您用专业眼光去买房。

作为中国楼市风向标,2025年上海房地产市场呈现鲜明分化特征:新房市场结构性升温与二手房调整承压并存,政策宽松托底与高库存压力交织,正经历供需重构与价值回归的深度调整。
新房市场“高端坚挺、刚需活跃”的两极分化显著。国家统计局数据显示,2025年9月上海新房价格环比上涨0.3%,前9月均价同比上涨5.8%,核心驱动力来自核心区优质改善房源。9月入市的43个楼盘中,内环内项目占7个,单价超10万/㎡的豪宅达14个,网红项目持续热销;宝山、嘉定等区域的高性价比刚需盘,凭借完善配套与友好总价保持活跃度。而中端改善型项目表现平淡,部分尾盘降价促销,结构性差异突出。
二手房市场深陷“高库存、缓去化、价续跌”周期。截至11月中旬,上海二手住宅挂牌量仍达35.5万套,虽阶段性去化1.67万套,但压力未获实质缓解。11月全市二手房均价52677元/㎡,环比下跌1.23%,远郊区域跌幅超4%,核心区也呈微降态势。成交端虽有短期脉冲,11月前15日成交11311套,单日最高破1120套,但多为“以价换量”,300万以内低总价老公房占比达61%,业主议价空间扩大,“挂牌即降价”成普遍现象。
政策宽松成为市场重要托底力量。2025年8月“825新政”后,上海房贷政策持续优化:首套商贷利率低至3.05%,二套3.09%;公积金贷款额度提升,夫妻双方最高可贷160万,多孩家庭达192万,有效降低购房成本。政策效果逐步渗透,9月二手住宅成交同比增幅38.67%,房价同比降幅收窄,但红利传导存在结构性差异,对新房拉动更明显,二手房仍需时间消化库存。
后市,分化格局或将持续。新房市场中,核心区高端项目与远郊刚需盘仍将保持活跃,涨幅有望收窄;二手房“以价换量”为主,学区房、地铁房等稀缺房源跌幅或率先收窄,老旧、远郊房源去化压力仍存。年末传统淡季临近,若无更大力度政策利好,调整周期可能延长,但上海核心城市的人口与资源集聚力未变,房价泡沫已充分挤压,回稳基础逐步筑牢。
对于购房者,当前是机遇与挑战并存的窗口期:刚需可把握政策红利与业主让利,聚焦配套成熟的低总价房源;改善型买家需注重核心价值,优选地段、物业兼具优势的资产;上海楼市已告别普涨时代,进入“精挑细选”的价值投资新阶段,唯有契合真实居住需求与核心价值的房源,方能在调整中站稳脚跟。